一、特点
● 泵室完全封闭,取消轴封,通过磁力耦合器间接驱动叶轮工作。
● 新型材 料的隔离套耐压好、寿命长。
● 过流部件采用氟塑料制造,具有优异的耐腐性。
● 承重部分为金属材料,足以承受管道和流体的重量及机械冲击。
CQB系列氟塑料磁力驱动泵,其过流部件采用氟塑料及高纯度工业陶瓷制成,具有优异的耐腐性及密封性; 泵的承重部分为金属材料,足以承受管道和流体的重量及机械冲击,泵室完全封闭,通过磁力偶合器间接驱动叶 轮工作,取消了轴封,因此彻底杜绝了一般轴传动式离心泵轴封处跑、冒、滴、漏的现象,达到了零泄漏、无污 染的较佳工况要求,因此广泛用于化工、医药、铝箔、制酸、涂装、有色金属等行业。 该系列泵因结构的特殊性,不适宜输送润滑性差的液态烃,带结晶的碱、盐以及含固体颗粒的料浆;只能输 送纯清液,适用温度:-20℃~100℃。可以用来输送强酸、强碱、剧毒、有机溶剂及纯净、贵重的化学介质,适 用于各种化工流程,充分满足严格的安全性、可靠性和生态环保要求。
二、型号说明

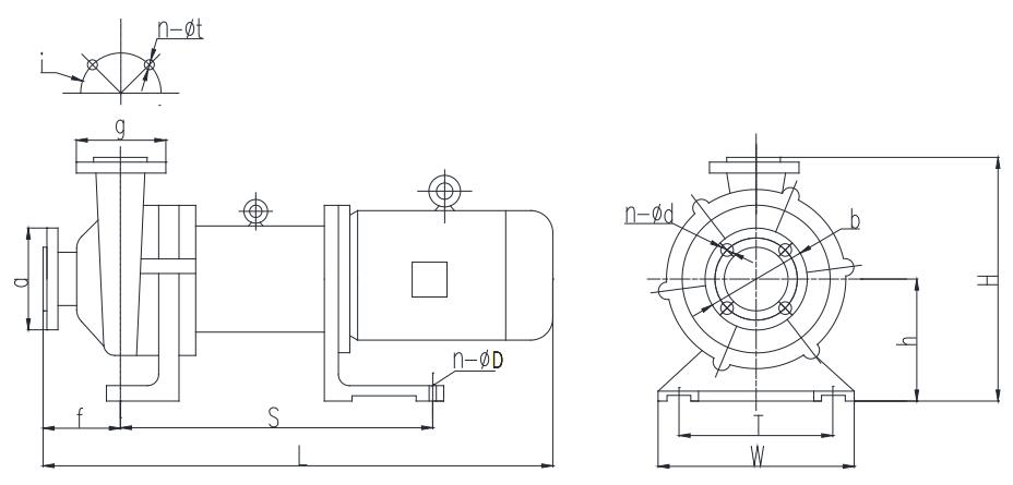
三、结构简图
3.1 全塑壳体泵的结构简图

| 序号 | 零部件名称 | 材质 | 序号 | 零部件名称 | 材质 | 序号 | 零部件名称 | 材质 |
| 1 |
进口法兰 |
聚乙烯 | √8 |
叶轮 |
45钢/F46 | √15 |
外磁联轴节 | |
| 2 |
进口托板 |
1Cr18Ni9Ti | √9 |
泵轴 |
填充四氟 | √16 |
轴承 |
填充四氟 |
| 3 |
出口托板 |
1Cr18Ni9Ti | √10 |
密封圈 |
氟橡胶 | 17 |
连接螺栓 | |
| 4 |
出口法兰 |
聚乙烯 | √11 |
隔离套 |
F46 | 18 |
紧定螺钉 | |
| √5 |
泵壳 |
F46 | √12 |
不锈钢套 |
304 | 19 |
底板 |
HT-200 |
| √6 |
泵体口环 |
Al2O3 | √13 |
叶轮瓷管 |
SiC/F4 | 20 |
电机 | |
| √7 |
叶轮口环 |
Al2O3 | √14 |
支架 |
Al2O3 |
注:序号前带有“√”标志的为易损件,供用户采购备件参考
3.2 钢衬塑壳体泵的结构简图(不带底板)

| 序号 | 零部件名称 | 材质 | 序号 | 零部件名称 | 材质 | 序号 | 零部件名称 | 材质 |
| √1 |
泵壳 |
HT200/F46 | √7 |
隔离套 |
F46 | √13 |
外磁联轴节 |
HT200/HS38 |
| 2 |
泵体口环 |
Al2O3 | √8 |
不锈钢套 |
304 | 14 |
紧定螺钉 | |
| √3 |
叶轮口环 |
Al2O3 | √9 |
叶轮瓷管 |
SiC/SiN | 15 |
电机 | |
| √4 |
泵轴 |
填充四氟 | √10 |
支架 |
HT200 | 16 |
底板 |
HT-200 |
| √5 |
叶轮 |
45钢/F46 | √11 |
轴承 |
填充四氟 | |||
| √6 |
密封圈 |
氟橡胶 | 12 |
连接螺栓 |
注:序号前带有“√”标志的为易损件,供用户采购备件参考
3.3 钢衬塑壳体泵的结构简图(带底板)

| 序号 | 零部件名称 | 材质 | 序号 | 零部件名称 | 材质 | 序号 | 零部件名称 | 材质 |
| √1 |
泵壳 |
QT衬F46 | √7 |
轴承座总成 |
HT衬F46 | 13 |
键 |
45钢 |
| √2 |
叶轮 |
45钢/F46 | √8 |
轴承 |
F4填充 | 14 |
支架 |
HT-200 |
| 3 |
锁紧螺母 |
PVDF | √9 |
连接螺栓 |
A1-50 | 15 |
紧定螺钉 | |
| 4 |
泵轴 |
SiC | √10 |
隔离套组合 |
F46/PPS | 16 |
电机 | |
| √5 |
止推环 |
SiC | √11 |
内磁转子总成 | 17 |
底板 |
HT-200 | |
| √6 |
O型圈 |
FPM | √12 |
外磁联轴器 |
45钢/HS38 |
注:序号前带有“√”标志的为易损件,供用户采购备件参考
四、性能参数表

五、安装尺寸表






六、使用及维护
安装及注意事项:
1.按基础尺寸做好混凝土基础,同时预埋好地脚螺栓。
2.在安装前应对泵和电机进行仔细检查,各部分应完好无损,泵内应无杂物。
3.将机组放在基础上,在底板和基础之间放成对楔垫,通过调整楔垫,找正泵的水平。调好后,拧紧
地脚螺栓。
4.泵的进口、出口管路应另设支架、支撑。
5.安装完毕,最后用手转动联轴器,检查有无擦碰、串动等现象,转动轻松、自如即可。
6.磁力泵严禁抽取带有颗粒的介质。
7.为防止杂物进入泵内,建议在进口处设过滤器,过滤面积应大于管路截面积的3~4倍。
8.扬程高的泵在出口管路上还应该安装逆止阀,以防突然停机的水锤破坏。
9.必须保证泵的安装高度符合泵的汽蚀余量,并考虑管路损失及介质温度。
启动和运行
1.开车前应将泵内灌满需输送的液体(如泵是在吸上的情况),关闭出口闸阀,接好电源。
2.接通电源,正确按指示牌方向检查泵的转向是否正确。
3.机组试运转5~10分钟,如无异常现象即可投入运行。
4.停机时,应先将出口的闸阀关闭,然后再切断电源。
维修和保养
1.定期检查泵和电机,更换易损零件。
2.长期停机不用时,应清洗泵内流道并切断电源,加盖防尘罩。
3.按指示牌方向开机运转,严禁倒转及空转。
拆卸和组装
1.拆卸时首先用清水冲洗泵体直至泵壳内腐蚀性介质完全干净。
2.更换泵机配件时,不得用尖物、硬物重击泵零件,应用软布包木头轻击,拆下的零部件应轻
放,密封面朝上。
3.维修使用的工具,金属零部件应远离磁力泵叶轮、磁性联轴器。
服务承诺
1.易损部件和其它配件,保证长期供应。
2.可根据用户要求设计耐腐蚀新型泵,为定型泵匹配防爆电机。
3.对本公司所有产品提供免费咨询及终身服务。
4.负责免费上门调试、维修(易损件按厂价收费)。
七、安全须知
(1)磁力泵具有很强的磁场,要防止磁性零部件强吸引力对身体的伤害(如夹伤手指、对带有电子医疗设
备或装置<如电子起搏器>的人有不利的影响)。
(2)禁止空运转:空运转会使轴承发热膨胀致抱死轴,造成泵损坏。当泵在进口阀门关闭状态下运行,也
视为空运转。
(3)防止静电的破坏:当泵输送导电率低的液体时,如超纯净水或含氟惰性液体时,在泵中会产生静电,
这会引起放电和泵的损坏,应采取对策,防止静电产生或引走静电。
(4)确定材料的磁力泵只能用于特定的工况。在超过工况条件下使用,将无法保证泵正常性能及寿命,甚
至导致事故的发生。
(5)根据电机的规格,例如额定电压和额定功率等,选用电磁开关。
(6)如果泵在户外,电气线路必须采取防护措施,以防开关进水。
(7)电磁开关和按钮开关要安全安装,并远离泵。
(8)磁力泵禁止抽取带有颗粒或结晶的化学介质。
说明书版权归属:宜兴市宙斯泵业有限公司官网网址:www.zsbyw.com




