联系

UHB-UF(UP)是一种全塑型防腐耐泵,UF型过流部件为改性超高分子量聚乙烯材料,UP型过流部件为改性聚丙烯材料该系列泵是本公司的一项创新发明产品,其结构在于泵体内外均包裹塑料,中间设有支撑性(抗拉伸和压缩变形)钢骨架的防腐(耐磨)泵。其突出的比较性功能优势在于:
一、克服了衬塑泵内防腐外不防腐和制造成本高的缺点保留了衬塑泵钢性强度好,安装方便的优点。
二、克服了全塑泵因塑料线胀系数大,泵体受热胀冷缩轴向变形量大,从而造成全塑泵机械稳定性差、容易损坏的不足,却有效保留了全塑泵内外均防腐,在腐蚀性空气条件下使用,表面不会腐蚀,防腐性好的优点。
三、其它比较性优势(和同类泵相比):
1. 抗压缩变形和抗热变形,机械性能稳定。
2. 新型密封结构,密封寿命长。(B型结构)
① 参数范围:进口直径中32~200mm,流量范围3~500m3/h任选,最低扬程5m(压力为0.05MPa)最高扬程70m(压力为0.7MPa以内),根据不同规格选定。
② 密封形式:K型动力密封和机械密封任选。
3.1 适用范围 :
UF型过流部件为改性超高分子量聚乙烯,使用特性为耐腐、耐磨。因此,适用于输送温度100℃以内的腐蚀性和非腐蚀性料浆或清液。主要适用输送酸碱类介质,不适用输送强氧化性酸和溶剂类介质。
UP型适用输送温度100℃内的清液类腐蚀性介质。
3.2 典型的应用行业与岗位 :
① 硫酸磷肥业 : 稀酸、母液、污水、含硅胶的氟硅酸、磷酸料浆等介质的输送
② 有色金属冶炼业 : 特别适用于铅、锌、金、银、铜、锰、钴、稀土等湿法冶炼的各种酸液,腐蚀性矿浆,料浆(压滤机配用)电解液,污水等介质输送。
③ 化工及其它企业 : 各种硫酸、盐酸、碱性、油类的清液或料浆岗位。钛白粉、铁红粉生产,各种染料、颜料生产,非金属矿产加工等行业。
④ 氯碱业 : 盐酸、液碱、电解液等
⑤ 水处理业 : 纯水、高纯水、污水(皮革污水、电镀污水、电子污水、造纸污水、纺织污水、食品污水、生活污水、制药业污水等等)
⑥ 钢铁企业 : 酸洗系统的硫酸、盐酸岗位、带杂质的污水,
⑦ 湿式脱硫循环泵 : 能同时适用碱性、酸性、腐蚀性岗位。
⑧ 煤炭工业、煤化工中的腐蚀性液体、煤浆的输送;洗选煤配用泵。
⑨ 锂电、新能源、化纤、纺织印染等其他行业相关类似工况。
5.1 不带副叶轮泵结构简图

| 序号 | 零部件名称 | 材质 | 序号 | 零部件名称 | 材质 | 序号 | 零部件名称 | 材质 | |
| √ 1 | 泵盖 | UHMWPE | √ 12 | 轴套 | 氮化硅陶瓷 | √ 23 | 轴套垫 | F26B | |
| 2 | 泵盖连接螺栓 | 45#钢 | √ 13 | 密封盒垫 | F26B | √ 24 | 挡酸片 | 玻璃钢 | |
| 3 | 泵盖压紧圈 | QT | 14 | 密封盒垫块 | PP | 25 | 轴承侧盖 | HT-200 | |
| 4 | 泵盖垫 | F26B | 15 | 密封盒连接螺栓 | 45#钢 | 26 | 轴承油封 | 氯丁胶 | |
| √ 5 | 锁紧螺母 | UHMWPE/A3 | √ 16 | 密封盒 | 玻璃钢 | 27 | 轴承 | ||
| √ 6 | 防转螺母 | A3 | √ 17 | K形密封圈 | F4/F26B | 28 | 轴承座连接螺栓 | 28 | |
| √ 7 | 华司 | A3 | 18 | 冷却水嘴 | PP | 29 | 轴承座 | HT-200 | |
| √8 | 锁紧螺母L垫 | F26B | 19 | 水封环 | 玻璃钢 | 30 | 主轴 | 40Cr | |
| √ 9 | 叶轮 | UHMWPE/A3 | √ 20 | O形密封圈 | F26B | 31 | 油塞 | 玻璃钢 | |
| √ 10 | 泵壳(内置钢骨架) | UHMWPE/A3 | 21 | 顶圈 | PP | ||||
| √ 11 | 叶轮垫 | F26B | 22 | 密封盒盖 | 玻璃钢 | ||||
注:序号前带有“√”标志的为易损件,供用户采购备件参考
5.2 带副叶轮泵结构简图

| 序号 | 零部件名称 | 材质 | 序号 | 零部件名称 | 材质 | 序号 | 零部件名称 | 材质 | |
| 1 | 进口哈呋环与O形圈 | A3F26B | 13 | 叶轮调节圈 | 45#钢 | √25 | O形密封圈 | F26B | |
| 2 | 泵盖连接螺栓 | 45#钢 | √14 | 副叶轮 | UHMWPE/A3 | 26 | 密封盒盖 | 玻璃钢 | |
| 3 | 泵盖压紧圈 | QT | √15 | 密封盒垫 | F26B | 27 | 挡酸片 | 玻璃钢 | |
| √ 4 | 泵盖 | UHMWPE | 16 | 密封盒垫块 | UHMWPE | √28 | 轴套垫 | F26B | |
| √ 5 | 泵盖垫 | F26B | 17 | 密封盒压盖 | QT | 29 | 主轴拼帽 | 45#钢 | |
| √ 6 | 锁紧螺母 | UHMWPE/A3 | √18 | 副叶轮垫 | F26B | 30 | 轴承侧盖 | HT-200 | |
| √ 7 | 防转螺母 | A3 | 19 | 密封盒连接螺栓 | 45#钢 | 31 | 轴承油封 | 氯丁胶 | |
| 8 | 华司 | A3 | √ 20 | 密封盒 | 玻璃钢 | 32 | 轴承 | 轴承合金钢 | |
| √ 9 | 锁紧螺母L垫 | F26B | √21 | K形密封圈 | F4/F26B | 33 | 轴承座 | HT-200 | |
| √ 10 | 叶轮 | UHMWPE/A3 | √22 | 轴套 | 氮化硅陶瓷 | 34 | 油塞 | ||
| √ 11 | 泵壳(内置钢骨架) | UHMWPE/A3 | 23 | 冷却水嘴 | PP | 35 | 轴承座连接螺栓 | 45#钢 | |
| √ 12 | 叶轮垫 | F26B | 24 | 水封环 | 玻璃钢 | 36 | 主轴 | 40Cr | |
注:序号前带有“√”标志的为易损件,供用户采购备件参考

工作原理:
该密封主要由副叶轮(或副叶片)与停车密封(K形密封圈)组成。工作时由于副叶轮(或副叶片)旋转产生的离心力使密封腔处于负压状态,从而阻止液体向外泄漏,此时,停车密封不起作用。K形密封圈的唇口因负压而松开,与轴套产生一定间隙,减小其之间的磨损,延长了使用寿命;停机时,由于副叶轮(或副叶片)停止旋转,密封腔由负压转为正压,停车密封开始工作,K形密封圈的唇口在压力作用下紧紧包住轴套,从而达到密封目的。若允许冷却水渗入介质内,可选用带冷却水K型动力密封,即可添加外冷却水装置,延长密封圈的使用寿命。该密封的密封圈采用氟橡胶制成,主要适用于输送含固体颗粒的料浆、含杂质的污水等腐蚀性介质
(带冷却水K型动力密封用的冷却水为洁净的自来水,压力适宜在0.05MPa以内)。
6.3 G3、G4型机械密封结构简图及简介

G3密封为本公司自行设计的一种改良型抗颗粒泵用机械密封;密封的动、静环均由碳化硅或硬质合金制成可用于输送含大量颗粒的腐蚀性液体。该密封和同类内装式机械密封相比,静环与密封盒之间设置了挡砂圈,硬颗粒不能进入静环与密封盒之间的间隙中,使静环前后位移自如,克服了原有耐颗粒密封的“卡砂”失效的缺点G4密封是对G3密封防砂K形圈部位的进一步改进,性能更加稳定可靠。G3、G4密封均为本公司专利技术。
6.4 G5防腐型集装式机械密封结构简图及简介
该密封是对常用的集装式机封的改良品种,改良的目的在于:提供一种能适用于各类腐蚀性清液及料浆输送的集装式泵轴机械密封,方便客户的采购、运输、贮存,安装等。
改良的方法 :
一是把密封与介质接触部位的材料全部改为腐蚀性能极好的非金属材料,使密封既有良好的防腐性能,又有极好的经济性,能使用户在花较少的成本的同时,又能使用到性能好的防腐型集装式密封;
二是在冷却水密封圈前端设置了渗漏液收集腔和渗漏液排除通道。防止冷却水密封的滴漏,克服了常规的集装机封滴漏的不足。
注意上述密封目前处于试验性试用阶段,欢迎用户使用!
6.5 JS组合双密封结构简图及简介
JS1型风冷密封各部件的功能介绍:
1、固液分离腔(5)功能为三:一是存液,使密封部位有足够的存液,不会产生干磨;二是固液分离腔里旋转的液体把浓浆中的固体分离排出,留下相对清液冷却、润滑橡胶密封圈;三是封闭局部液体,有利于产生密封部位的负压场。
2、外置式排液通道(4)设置在叶轮的幅板上,叶轮转动时,产生离心力,进而抽吸固液分离腔中的渣浆,把含固量高的渣浆抽排出固液分离腔(5),同时使固液分离腔中的液体处于负压状态,进而保护唇形橡胶圈的使用安全。
3、进液孔(3)设在叶轮幅板上,呈轴向设置,其功能主要是把泵吸入口的浆体引入固液分离腔,为固液分离腔补液。
4、第一个K型橡胶密封圈(6)功能为挡砂,不让固液分离腔中的砂粒进入带动静环的机封部(9)。
5、第二个K型橡胶密封圈(7)为反装式结构,功能为密封存油腔(8)中的油脂,不让存液腔中的油脂流失。
6、存油腔(8)设置于机封(9)与K形密封圈之间,功能有二:一是存油,润滑机封的动静环;二是导热,把轴套上的热能传递给机封的动环(10)部,进而散发出去。
7、带动静环的机封(9)+(10)设在K形密封圈的后侧,功能为密封空气,使泵机外部的空气不进入泵腔中。
8、风轮(11)设在主轴上,随主轴转动,功能为生风,吹散密封部位各部件的热量。
JS型风冷密封整体工作原理介绍:
泵起动后,叶轮(1)旋转带动固液分离腔中的液体旋转,流体旋转产生离心力,把固液分离腔(5)中的固液分离,固体靠近外侧的抽吸孔(4)部,相对的清液靠近内侧的橡胶密封圈部,补液孔(3)为固液分离腔补液,保证固液分离腔液体充盈。设置于叶轮幅板上的径向抽吸孔(4)在叶轮转动时,产生的吸力把固液分离腔中的碴浆排出,并使固液分离腔中形成负压流体区,进而使得K形密封圈不带压运行,保证了密封圈的使用安全性。K形密封圈(1)挡住了泵腔中的浆体,使浆体不能进入机封(9)部(因为浆体呈负压状态)。第二只密封圈(2)封住存油腔中的油脂(8),不进入泵腔中。机封(10)则起到密封空气,使外部空气不进入泵机内部。风轮(11)产生的风,冷却机封的各部件。
| 序号 | 规格 | 参考型号 | 流量 m3/h | 扬程 | 轴功率(kw) | 配备 电机 | 电机转速 (r/min) | 进口× 出口 mm |
|---|---|---|---|---|---|---|---|---|
| 1 | 32UHB-UF | 32UHB-UF-3-13 | 3 | 13 | 0.3 | 0.75kW-2 | 2900 | DN32*25 |
| 2 | 32UHB-UF-3-18 | 3 | 18 | 0.4 | 0.75kW-2 | 2900 | ||
| 3 | 32UHB-UF-5-5 | 5 | 5 | 0.25 | 0.75kW-4 | 1450 | ||
| 4 | 32UHB-UF-5-12 | 5 | 12 | 0.42 | 0.75kW-2 | 2900 | ||
| 5 | 32UHB-UF-5-15 | 5 | 15 | 0.55 | 1.1kW-2 | 2900 | ||
| 6 | 32UHB-UF-5-20 | 5 | 20 | 0.72 | 1.1kW-2 | 2900 | ||
| 7 | 32UHB-UF-5-25 | 5 | 25 | 1.5 | 2.2kW-2 | 2900 | ||
| 8 | 32UHB-UF-7-10 | 7 | 10 | 0.5 | 0.75kW-2 | 2900 | ||
| 9 | 32UHB-UF-8-5 | 8 | 5 | 0.32 | 0.75kW-4 | 1450 | ||
| 10 | 32UHB-UF-8-12 | 8 | 12 | 0.7 | 1.1kW-2 | 2900 | ||
| 11 | 32UHB-UF-8-18 | 8 | 18 | 1.2 | 1.5kW-2 | 2900 | ||
| 12 | 32UHB-UF-10-20 | 10 | 20 | 1.6 | 2.2kW-2 | 2900 | ||
| 13 | 32UHB-UF-12-15 | 12 | 15 | 1.3 | 2.2kW-2 | 2900 | ||
| 14 | 32UHB-UF-15-15 | 15 | 15 | 1.7 | 2.2kW-2 | 2900 | ||
| 15 | 40UHB-UF | 40UHB-UF-5-7.5 | 5 | 7.5 | 0.25 | 0.75kW-4 | 1450 | DN40*32 |
| 16 | 40UHB-UF-8-7.5 | 8 | 7.5 | 0.32 | 0.75kW-4 | 1450 | ||
| 17 | 40UHB-UF-10-18 | 10 | 18 | 1.6 | 2.2kW-2 | 2900 | ||
| 18 | 40UHB-UF-10-30 | 10 | 30 | 2.2 | 3kW-2 | 2900 | ||
| 19 | 40UHB-UF-15-15 | 15 | 15 | 1.7 | 2.2kW-2 | 2900 | ||
| 20 | 40UHB-UF-15-25 | 15 | 25 | 2.7 | 3kW-2 | 2900 | ||
| 21 | 40UHB-UF-18-20 | 18 | 20 | 2.6 | 3kW-2 | 2900 | ||
| 22 | 50UHB-UF | 50UHB-UF-10-7.5 | 10 | 7.5 | 1.1 | 2.2kW-4 | 1450 | DN50*40 |
| 23 | 50UHB-UF-10-35 | 10 | 35 | 3.2 | 4kW-2 | 2900 | ||
| 24 | 50UHB-UF-10-40 | 10 | 40 | 4.3 | 5.5kW-2 | 2900 | ||
| 25 | 50UHB-UF-15-32 | 15 | 32 | 3.5 | 5.5kW-2 | 2900 | ||
| 26 | 50UHB-UF-15-40 | 15 | 40 | 5.4 | 7.5kW-2 | 2900 | ||
| 27 | 50UHB-UF-20-20 | 20 | 20 | 3 | 4kW-2 | 2900 | ||
| 28 | 50UHB-UF-20-30 | 20 | 30 | 4.3 | 5.5kW-2 | 2900 | ||
| 29 | 50UHB-UF-25-18 | 25 | 18 | 3.2 | 4kW-2 | 2900 | ||
| 30 | 50UHB-UF-25-28 | 25 | 28 | 5 | 5.5kW-2 | 2900 | ||
| 31 | 50UHB-UF-30-15 | 30 | 15 | 3.1 | 4kW-2 | 2900 | ||
| 32 | 65UHB-UF | 65UHB-UF-10-40 | 10 | 40 | 4.2 | 5.5kW-2 | 2900 | DN65*50 |
| 33 | 65UHB-UF-15-7.5 | 15 | 7.5 | 0.68 | 1.1kW-4 | 1450 | ||
| 34 | 65UHB-UF-30-20 | 30 | 20 | 5.1 | 5.5kW-2 | 2900 | ||
| 35 | 65UHB-UF-30-25 | 30 | 25 | 5.3 | 5.5kW-2 | 2900 | ||
| 36 | 65UHB-UF-30-32 | 30 | 32 | 6.5 | 7.5kW-2 | 2900 | ||
| 37 | 65UHB-UF-35-25 | 35 | 25 | 6.2 | 7.5kW-2 | 2900 | ||
| 38 | 65UHB-UF-40-15 | 40 | 15 | 4.5 | 5.5kW-2 | 2900 | ||
| 39 | 65UHB-UF-40-20 | 40 | 20 | 6.1 | 7.5kW-2 | 2900 | ||
| 40 | 65UHB-UF-M2 | 65UHB-UF-M2-10-30 | 10 | 30 | 1.72 | 2.2kW-4 | 1450 | DN65*50 |
| 41 | 65UHB-UF-M2-20-27 | 20 | 27 | 3 | 4kW-4 | 1450 | ||
| 42 | 65UHB-UF-M2-30-25 | 30 | 25 | 4.2 | 5.5kW-4 | 1450 | ||
| 43 | 65UHB-UF-M2-40-20 | 40 | 20 | 4.4 | 5.5kW-4 | 1450 | ||
| 44 | 65UHB-UF-H | 65UHB-UF-H-10-40 | 10 | 40 | 4.3 | 5.5kW-2 | 2900 | DN65*50 |
| 45 | 65UHB-UF-H-10-50 | 10 | 50 | 5.4 | 7.5kW-2 | 2900 | ||
| 46 | 65UHB-UF-H-15-45 | 15 | 45 | 6.5 | 7.5kW-2 | 2900 | ||
| 47 | 65UHB-UF-H-25-45 | 25 | 45 | 9.6 | 11kW-2 | 2900 | ||
| 48 | 65UHB-UF-H-25-55 | 25 | 55 | 11.8 | 15kW-2 | 2900 | ||
| 49 | 65UHB-UF-H-10-55 | 10 | 55 | 8.6 | 11kW-2 | 2900 | ||
| 50 | 65UHB-UF-H-20-50 | 20 | 50 | 8.7 | 11kW-2 | 2900 | ||
| 51 | 65UHB-UF-H-30-40 | 30 | 40 | 9.6 | 11kW-2 | 2900 | ||
| 52 | 65UHB-UF-H-30-50 | 30 | 50 | 12 | 15kW-2 | 2900 | ||
| 53 | 65UHB-UF-H-35-45 | 35 | 45 | 12.8 | 15kW-2 | 2900 | ||
| 序号 | 规格 | 参考型号 | 流量 m3/h | 扬程 | 轴功率(kw) | 配备 电机 | 电机转速 (r/min) | 进口× 出口 mm |
| 54 | 80UHB-UF | 80UHB-UF-35-45 | 35 | 45 | 10.8 | 11kW-2 | 2900 | DN80*65 |
| 55 | 80UHB-UF-40-35 | 40 | 35 | 10.2 | 11kW-2 | 2900 | ||
| 56 | 80UHB-UF-45-20 | 45 | 20 | 10.2 | 11kW-2 | 2900 | ||
| 57 | 80UHB-UF-45-50 | 45 | 50 | 14.8 | 15kW-2 | 2900 | ||
| 58 | 80UHB-UF-50-30 | 50 | 30 | 10.2 | 11kW-2 | 2900 | ||
| 59 | 80UHB-UF-55-40 | 55 | 40 | 15.8 | 18.5kW-2 | 2900 | ||
| 60 | 80UHB-UF-60-30 | 60 | 30 | 12.7 | 15kW-2 | 2900 | ||
| 61 | 80UHB-UF-II | 80UHB-UF-II-30-36 | 30 | 36 | 5.88 | 7.5kW-4 | 1450 | DN80*65 |
| 62 | 80UHB-UF-II-40-35 | 40 | 35 | 8.57 | 11kW-4 | 1450 | ||
| 63 | 80UHB-UF-II-45-32 | 45 | 32 | 7.8 | 11kW-4 | 1450 | ||
| 64 | 80UHB-UF-II-50-30 | 50 | 30 | 8.16 | 11kW-4 | 1450 | ||
| 65 | 80UHB-UF-II-60-28 | 60 | 28 | 9.14 | 11kW-4 | 1450 | ||
| 66 | 80UHB-UF-M | 80UHB-UF-M-30-63 | 30 | 63 | 10.3 | 15kW-4 | 1450 | DN80*65 |
| 67 | 80UHB-UF-M-40-60 | 40 | 60 | 13.1 | 15kW-4 | 1450 | ||
| 68 | 80UHB-UF-M-45-56 | 45 | 56 | 13.7 | 15kW-4 | 1450 | ||
| 69 | 80UHB-UF-M-50-55 | 50 | 55 | 14.9 | 18.5kW-4 | 1450 | ||
| 70 | 80UHB-UF-M-60-40 | 60 | 40 | 13 | 15kW-4 | 1450 | ||
| 71 | 100UHB-UF | 100UHB-UF-50-11 | 50 | 11 | 4.2 | 5.5kW-4 | 1450 | DN100*80 |
| 72 | 100UHB-UF-50-50 | 50 | 50 | 17.5 | 18.5kW-2 | 2900 | ||
| 73 | 100UHB-UF-50-60 | 50 | 60 | 20.5 | 22kW-2 | 2900 | ||
| 74 | 100UHB-UF-60-10 | 60 | 10 | 4.1 | 5.5kW-4 | 1450 | ||
| 75 | 100UHB-UF-60-35 | 60 | 35 | 14.5 | 18.5kW-2 | 2900 | ||
| 76 | 100UHB-UF-60-40 | 60 | 40 | 16.8 | 18.5kW-2 | 2900 | ||
| 77 | 100UHB-UF-60-50 | 60 | 50 | 22.8 | 30kW-2 | 2900 | ||
| 78 | 100UHB-UF-70-45 | 70 | 45 | 23.5 | 30kW-2 | 2900 | ||
| 79 | 100UHB-UF-80-30 | 80 | 30 | 17.5 | 18.5kW-2 | 2900 | ||
| 80 | 100UHB-UF-80-35 | 80 | 35 | 17.8 | 22kW-2 | 2900 | ||
| 81 | 100UHB-UF-80-50 | 80 | 50 | 27 | 30kW-2 | 2900 | ||
| 82 | 100UHB-UF-100-20 | 100 | 20 | 16.4 | 18.5kW-2 | 2900 | ||
| 83 | 100UHB-UF-100-25 | 100 | 25 | 17.9 | 22kW-2 | 2900 | ||
| 84 | 100UHB-UF-100-40 | 100 | 40 | 26.5 | 30kW-2 | 2900 | ||
| 85 | 100UHB-UF-120-15 | 120 | 15 | 17.1 | 18.5kW-2 | 2900 | ||
| 86 | 100UHB-UF140-10 | 140 | 10 | 16.4 | 18.5kW-2 | 2900 | ||
| 87 | 100UHB-UF-145-28 | 145 | 28 | 28.5 | 30kW-2 | 2900 | ||
| 88 | 100UHB-UF-II | 100UHB-UF-II-60-35 | 60 | 35 | 12.3 | 15kW-4 | 1450 | DN100*80 |
| 89 | 100UHB-UF-II-70-33 | 70 | 33 | 12.1 | 15kW-4 | 1450 | ||
| 90 | 100UHB-UF-II-80-32 | 80 | 32 | 18.7 | 22kW-4 | 1450 | ||
| 91 | 100UHB-UF-II-100-30 | 100 | 30 | 15.7 | 18.5kW-4 | 1450 | ||
| 92 | 100UHB-UF-II-120-25 | 120 | 25 | 13.1 | 15kW-4 | 1450 |
| 序号 | 规格 | 参考型号 | 流量 m3/h | 扬程 | 轴功率(kw) | 配备 电机 | 电机转速 (r/min) | 进口× 出口 mm |
| 93 | 100UHB-UF-M | 100UHB-UF-M-50-70 | 50 | 70 | 31.4 | 37kW-4 | 1450 | DN100*80 |
| 94 | 100UHB-UF-M-60-65 | 60 | 65 | 33.6 | 37kW-4 | 1450 | ||
| 95 | 100UHB-UF-M-80-50 | 80 | 50 | 30.3 | 37kW-4 | 1450 | ||
| 96 | 100UHB-UF-M-80-60 | 80 | 60 | 30.9 | 37kW-4 | 1450 | ||
| 97 | 100UHB-UF-M-100-60 | 100 | 60 | 47.8 | 55kW-4 | 1450 | ||
| 98 | 100UHB-UF-M-120-50 | 120 | 50 | 39 | 45kW-4 | 1450 | ||
| 99 | 100UHB-UF-M-120-60 | 120 | 60 | 50.5 | 55kW-4 | 1450 | ||
| 100 | 125UHB-UF | 125UHB-UF-100-40 | 100 | 40 | 28.8 | 30kW-2 | 2900 | DN125*100 |
| 101 | 125UHB-UF-120-20 | 120 | 20 | 17.2 | 18.5kW-2 | 2900 | ||
| 102 | 125UHB-UF-120-32 | 120 | 32 | 26.8 | 30kW-2 | 2900 | ||
| 103 | 125UHB-UF-120-35 | 120 | 35 | 29.6 | 30kW-2 | 2900 | ||
| 104 | 125UHB-UF-140-18 | 150 | 18 | 21 | 30kW-2 | 2900 | ||
| 105 | 125UHB-UF-140-25 | 150 | 25 | 25 | 30kW-2 | 2900 | ||
| 106 | 125UHB-UF-140-28 | 140 | 28 | 27.6 | 30kW-2 | 2900 | ||
| 107 | 125UHB-UF-160-24 | 160 | 24 | 28.1 | 30kW-2 | 2900 | ||
| 108 | 125UHB-UF-II | 125UHB-UF-II-60-15 | 60 | 15 | 4.8 | 5.5kW-4 | 1450 | DN125*100 |
| 109 | 125UHB-UF-II-80-13 | 80 | 13 | 5.9 | 7.5kW-4 | 1450 | ||
| 110 | 125UHB-UF-II-100-35 | 100 | 35 | 18.3 | 22kW-4 | 1450 | ||
| 111 | 125UHB-UF-II-110-33 | 110 | 33 | 19 | 22kW-4 | 1450 | ||
| 112 | 125UHB-UF-II-120-30 | 120 | 30 | 18.8 | 22kW-4 | 1450 | ||
| 113 | 125UHB-UF-II-140-26 | 140 | 26 | 19.5 | 22kW-4 | 1450 | ||
| 114 | 125UHB-UF-M | 125UHB-UF-M-100-50 | 100 | 50 | 33.2 | 37kW-4 | 1450 | DN125*100 |
| 115 | 125UHB-UF-M-100-60 | 100 | 60 | 40.5 | 45kW-4 | 1450 | ||
| 116 | 125UHB-UF-M-100-65 | 100 | 65 | 47.6 | 55kW-4 | 1450 | ||
| 117 | 125UHB-UF-M-120-40 | 120 | 40 | 32.1 | 37kW-4 | 1450 | ||
| 118 | 125UHB-UF-M-120-55 | 120 | 55 | 41 | 45kW-4 | 1450 | ||
| 119 | 125UHB-UF-M-120-60 | 120 | 60 | 49.2 | 55kW-4 | 1450 | ||
| 120 | 125UHB-UF-M-140-56 | 140 | 56 | 46.9 | 55kW-4 | 1450 | ||
| 121 | 125UHB-UF-M-150-50 | 150 | 50 | 48.3 | 55kW-4 | 1450 | ||
| 122 | 125UHB-UF-M-170-40 | 170 | 40 | 47.5 | 55kW-4 | 1450 | ||
| 123 | 150UHB-UF | 150UHB-UF-120-26 | 120 | 26 | 15.4 | 18.5kW-4 | 1450 | DN150*125 |
| 124 | 150UHB-UF-120-35 | 120 | 35 | 22.4 | 30kW-4 | 1450 | ||
| 125 | 150UHB-UF-130-30 | 130 | 30 | 20.0 | 22kW-4 | 1450 | ||
| 126 | 150UHB-UF-130-38 | 130 | 38 | 26.4 | 30kW-4 | 1450 | ||
| 127 | 150UHB-UF-135-24 | 135 | 24 | 17.3 | 22kW-4 | 1450 | ||
| 128 | 150UHB-UF-135-32 | 135 | 32 | 21.4 | 30kW-4 | 1450 | ||
| 129 | 150UHB-UF-150-28 | 150 | 28 | 20.8 | 30kW-4 | 1450 | ||
| 130 | 150UHB-UF-150-36 | 150 | 36 | 26.3 | 30kW-4 | 1450 | ||
| 131 | 150UHB-UF-155-22 | 155 | 22 | 17.2 | 22kW-4 | 1450 | ||
| 132 | 150UHB-UF-155-29 | 155 | 29 | 23.5 | 30kW-4 | 1450 | ||
| 133 | 150UHB-UF-165-33 | 165 | 33 | 26.5 | 30kW-4 | 1450 | ||
| 134 | 150UHB-UF-175-25 | 175 | 25 | 22.1 | 30kW-4 | 1450 | ||
| 135 | 150UHB-UF-200-26 | 200 | 26 | 25.3 | 30kW-4 | 1450 | ||
| 136 | 150UHB-UF-200-35 | 200 | 35 | 37.4 | 45kW-4 | 1450 | ||
| 137 | 150UHB-UF-210-39 | 210 | 39 | 40.5 | 45kW-4 | 1450 | ||
| 138 | 150UHB-UF-220-30 | 220 | 30 | 32.7 | 37kW-4 | 1450 | ||
| 139 | 150UHB-UF-230-24 | 230 | 24 | 27.8 | 30kW-4 | 1450 | ||
| 140 | 150UHB-UF-230-32 | 230 | 32 | 36.7 | 45kW-4 | 1450 | ||
| 141 | 150UHB-UF-250-28 | 250 | 28 | 34 | 37kW-4 | 1450 | ||
| 142 | 150UHB-UF-250-30 | 250 | 30 | 38 | 45kW-4 | 1450 | ||
| 143 | 150UHB-UF-250-36 | 250 | 36 | 46 | 55kW-4 | 1450 | ||
| 144 | 150UHB-UF-265-21 | 265 | 21 | 29.7 | 37kW-4 | 1450 | ||
| 145 | 150UHB-UF-265-33 | 265 | 33 | 48 | 55kW-4 | 1450 | ||
| 146 | 150UHB-UF-285-25 | 285 | 25 | 34.6 | 37kW-4 | 1450 |
| 序号 | 规格 | 参考型号 | 流量 m3/h | 扬程 | 轴功率(kw) | 配备 电机 | 电机转速 (r/min) | 进口× 出口 mm |
| 147 | 200UHB-UF | 200UHB-UF-280-20 | 280 | 20 | 27.2 | 30kW-4 | 1450 | DN200*150 |
| 148 | 200UHB-UF-290-27 | 290 | 27 | 13.7 | 45kW-4 | 1450 | ||
| 149 | 200UHB-UF-290-34 | 290 | 34 | 10.5 | 55kW-4 | 1450 | ||
| 150 | 200UHB-UF-300-22 | 300 | 22 | 5.0 | 37kW-4 | 1450 | ||
| 151 | 200UHB-UF-310-30 | 310 | 30 | 5.6 | 55kW-4 | 1450 | ||
| 152 | 200UHB-UF-310-38 | 310 | 38 | 5.8 | 75kW-4 | 1450 | ||
| 153 | 200UHB-UF-330-18 | 330 | 18 | 28.9 | 30kW-4 | 1450 | ||
| 154 | 200UHB-UF-330-25 | 330 | 25 | 40.8 | 45kW-4 | 1450 | ||
| 155 | 200UHB-UF-330-32 | 330 | 32 | 50.4 | 55kW-4 | 1450 | ||
| 156 | 200UHB-UF-350-20 | 350 | 20 | 34.0 | 37kW-4 | 1450 | ||
| 157 | 200UHB-UF-350-28 | 350 | 28 | 48.5 | 55kW-4 | 1450 | ||
| 158 | 200UHB-UF-350-36 | 350 | 36 | 62.4 | 75kW-4 | 1450 | ||
| 159 | 200UHB-UF-370-30 | 370 | 30 | 56 | 75kW-4 | 1450 | ||
| 160 | 200UHB-UF-375-23 | 375 | 23 | 41.9 | 45kW-4 | 1450 | ||
| 161 | 200UHB-UF-380-16 | 380 | 16 | 31.2 | 37kW-4 | 1450 | ||
| 162 | 200UHB-UF-380-25.5 | 380 | 25.5 | 49.8 | 55kW-4 | 1450 | ||
| 163 | 200UHB-UF-385-34 | 385 | 34 | 68.5 | 75kW-4 | 1450 | ||
| 164 | 200UHB-UF-400-18 | 400 | 18 | 37.7 | 45kW-4 | 1450 |
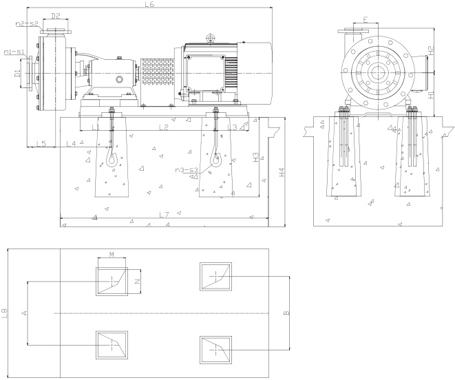
8.1 泵的出口在左侧(从进口方向看)
规格有 : 32UHB-UF、40UHB-UF、50UHB-UF、65UHB-UF、65UHB-UF-M2、65UHB-UF-H、80UHB-UF、100UHB-UF、125UHB-UF

| 型号 | 配套电机 | A | B | C | E | H1 | H2 | L1 | L2 | L3 | L4 | L5 | L6 | h | n3×s3 | D1 | n1×s1 | D2 | n2×s2 | M1 | M2 | N1 | N2 | H3 | L7 | L8 | H4 | kg 重量 |
|---|---|---|---|---|---|---|---|---|---|---|---|---|---|---|---|---|---|---|---|---|---|---|---|---|---|---|---|---|
| 32UHB-UF | 0.75~1.1KW-2 0.75kW-4 | 260 | 260 | 315 | 85 | 160 | 170 | 100 | 335 | 100 | 225 | 110 | 800 | 10 | 4-M12×300 | 100 | 4×φ18 | 85 | 4×φ14 | 140 | 170 | 120 | 150 | 350 | 700 | 500 | 450 | 85 |
| 1.5~2.2KW-2 | 260 | 260 | 315 | 85 | 165 | 170 | 100 | 335 | 100 | 225 | 110 | 830 | 10 | 4-M12×300 | 100 | 4×φ18 | 85 | 4×φ14 | 140 | 170 | 120 | 150 | 350 | 700 | 500 | 450 | 110 | |
| 40UHB-UF | 0.75KW-4 | 260 | 260 | 315 | 92 | 160 | 185 | 100 | 335 | 100 | 245 | 120 | 830 | 10 | 4-M12×300 | 110 | 4×φ18 | 100 | 4×φ18 | 140 | 170 | 120 | 150 | 350 | 800 | 500 | 450 | 100 |
| 2.2KW-2 | 260 | 260 | 315 | 92 | 165 | 185 | 100 | 335 | 100 | 240 | 120 | 860 | 10 | 4-M12×300 | 110 | 4×φ18 | 100 | 4×φ18 | 140 | 170 | 120 | 150 | 350 | 800 | 500 | 450 | 110 | |
| 3KW-2 | 260 | 260 | 315 | 92 | 170 | 185 | 120 | 335 | 120 | 256 | 120 | 910 | 10 | 4-M12×300 | 110 | 4×φ18 | 100 | 4×φ18 | 140 | 170 | 120 | 150 | 350 | 800 | 500 | 450 | 120 | |
| 50UHB-UF | 2.2KW-4 | 320 | 320 | 380 | 97 | 208 | 200 | 160 | 400 | 160 | 280 | 135 | 1000 | 10 | 4-M12×300 | 125 | 4×φ18 | 110 | 4×φ18 | 140 | 170 | 120 | 150 | 350 | 870 | 600 | 450 | 130 |
| 4kW-2 | 320 | 320 | 380 | 97 | 208 | 200 | 160 | 400 | 160 | 280 | 135 | 1040 | 10 | 4-M12×300 | 125 | 4×φ18 | 110 | 4×φ18 | 140 | 170 | 120 | 150 | 350 | 870 | 600 | 450 | 140 | |
| 5.5~7.5kW-2 | 320 | 320 | 380 | 97 | 208 | 200 | 160 | 400 | 160 | 280 | 135 | 1090 | 10 | 4-M12×300 | 125 | 4×φ18 | 110 | 4×φ18 | 140 | 170 | 120 | 150 | 350 | 870 | 600 | 450 | 150 | |
| 65UHB-UF | 1.1kW-4 | 320 | 320 | 380 | 112 | 208 | 215 | 160 | 400 | 160 | 280 | 145 | 960 | 10 | 4-M12×300 | 145 | 4×φ18 | 125 | 4×φ18 | 140 | 170 | 120 | 150 | 350 | 870 | 600 | 450 | 115 |
| 5.5~7.5kW-2 | 320 | 320 | 380 | 112 | 208 | 215 | 160 | 400 | 160 | 280 | 145 | 1100 | 10 | 4-M12×300 | 145 | 4×φ18 | 125 | 4×φ18 | 140 | 170 | 120 | 150 | 350 | 870 | 600 | 450 | 160 | |
| 65UHB-UF-M2 | 2.2kW-4 | 320 | 320 | 380 | 165 | 208 | 245 | 160 | 400 | 160 | 280 | 155 | 1020 | 25 | 4-M12×300 | 145 | 4×φ18 | 125 | 4×φ18 | 140 | 170 | 120 | 150 | 350 | 870 | 600 | 450 | 160 |
| 4kW-4 | 320 | 320 | 380 | 165 | 208 | 245 | 160 | 400 | 160 | 280 | 155 | 1050 | 25 | 4-M12×300 | 145 | 4×φ18 | 125 | 4×φ18 | 140 | 170 | 120 | 150 | 350 | 870 | 600 | 450 | 170 | |
| 5.5kW-4 | 320 | 320 | 380 | 165 | 208 | 245 | 160 | 400 | 160 | 280 | 155 | 1100 | 25 | 4-M12×300 | 145 | 4×φ18 | 125 | 4×φ18 | 140 | 170 | 120 | 150 | 350 | 870 | 600 | 450 | 180 | |
| 11~15kW-4 | 320 | 370 | 435 | 165 | 222 | 245 | 165 | 525 | 165 | 285 | 155 | 1250 | 35 | 4-M16×300 | 145 | 4×φ18 | 125 | 4×φ18 | 140 | 170 | 120 | 150 | 400 | 1050 | 650 | 550 | 250 | |
| 65UHB-UF-H | 5.5kW-2 | 320 | 320 | 380 | 125 | 208 | 225 | 160 | 400 | 160 | 280 | 145 | 1100 | 10 | 4-M12×300 | 145 | 4×φ18 | 125 | 4×φ18 | 140 | 170 | 120 | 150 | 350 | 870 | 600 | 450 | 150 |
| 11~15kW-4 | 320 | 370 | 435 | 125 | 222 | 225 | 165 | 525 | 165 | 280 | 145 | 1225 | 10 | 4-M16×300 | 145 | 4×φ18 | 125 | 4×φ18 | 140 | 170 | 120 | 150 | 400 | 1050 | 650 | 550 | 220 | |
| 18.5kW-2 | 320 | 370 | 435 | 125 | 222 | 225 | 165 | 570 | 165 | 280 | 145 | 1280 | 10 | 4-M16×300 | 145 | 4×φ18 | 125 | 4×φ18 | 140 | 170 | 120 | 150 | 400 | 1050 | 650 | 550 | 260 | |
| 22kW-2 | 396 | 485 | 555 | 125 | 285 | 225 | 210 | 670 | 210 | 250 | 145 | 1460 | 10 | 4-M16×300 | 145 | 4×φ18 | 125 | 4×φ18 | 140 | 170 | 120 | 150 | 400 | 1300 | 850 | 550 | 290 | |
| 80UHB-UF | 7.5kW-2 | 320 | 320 | 380 | 124 | 208 | 230 | 160 | 400 | 160 | 280 | 150 | 1100 | 10 | 4-M12×300 | 160 | 4×φ18 | 145 | 4×φ18 | 140 | 170 | 120 | 150 | 350 | 870 | 600 | 450 | 170 |
| 11~15kW-2 | 320 | 370 | 435 | 124 | 222 | 230 | 165 | 525 | 165 | 280 | 150 | 1240 | 10 | 4-M16×300 | 160 | 4×φ18 | 145 | 4×φ18 | 140 | 170 | 120 | 150 | 400 | 1050 | 650 | 550 | 250 | |
| 18.5kW-2 | 320 | 370 | 435 | 124 | 222 | 230 | 165 | 570 | 165 | 280 | 150 | 1290 | 10 | 4-M16×300 | 160 | 4×φ18 | 145 | 4×φ18 | 140 | 170 | 120 | 150 | 400 | 1100 | 650 | 550 | 280 | |
| 22KW-2 | 395 | 485 | 555 | 124 | 285 | 230 | 210 | 670 | 210 | 260 | 150 | 1400 | 10 | 4-M16×300 | 160 | 4×φ18 | 145 | 4×φ18 | 140 | 170 | 120 | 150 | 400 | 1100 | 850 | 550 | 350 | |
| 100UHB-UF | 5.5kW-4 | 400 | 400 | 475 | 128 | 280 | 240 | 190 | 550 | 190 | 308 | 170 | 1325 | 20 | 4-M16×300 | 180 | 8×φ18 | 160 | 4×φ18 | 140 | 170 | 120 | 150 | 400 | 1300 | 850 | 550 | 260 |
| 18.5kW-2 | 410 | 460 | 530 | 128 | 280 | 240 | 190 | 705 | 190 | 308 | 170 | 1470 | 20 | 4-M16×300 | 180 | 8×φ18 | 160 | 4×φ18 | 140 | 170 | 120 | 150 | 400 | 1300 | 850 | 550 | 350 | |
| 22kW-2 | 410 | 460 | 530 | 128 | 280 | 240 | 190 | 705 | 190 | 308 | 170 | 1510 | 20 | 4-M16×300 | 180 | 8×φ18 | 160 | 4×φ18 | 140 | 170 | 120 | 150 | 400 | 1300 | 850 | 550 | 380 | |
| 30kW-2 | 395 | 485 | 555 | 128 | 305 | 240 | 210 | 670 | 210 | 345 | 170 | 1560 | 20 | 4-M16×300 | 180 | 8×φ18 | 160 | 4×φ18 | 140 | 170 | 120 | 150 | 400 | 1300 | 850 | 550 | 480 | |
| 125UHB-UF | 18.5KW-2 | 410 | 460 | 530 | 128 | 280 | 250 | 190 | 705 | 190 | 318 | 170 | 1490 | 20 | 4-M16×300 | 210 | 8×φ18 | 180 | 4×φ18 | 140 | 170 | 120 | 150 | 400 | 1300 | 850 | 550 | 350 |
| 22kW-2 | 410 | 460 | 530 | 128 | 280 | 250 | 190 | 705 | 190 | 318 | 170 | 1520 | 20 | 4-M16×300 | 210 | 8×φ18 | 180 | 4×φ18 | 140 | 170 | 120 | 150 | 400 | 1300 | 850 | 550 | 380 | |
| 30~37kW-2 | 395 | 485 | 555 | 128 | 305 | 250 | 210 | 670 | 210 | 345 | 170 | 1570 | 20 | 4-M16×300 | 210 | 8×φ18 | 180 | 4×φ18 | 140 | 170 | 120 | 150 | 400 | 1300 | 850 | 550 | 480 |
8.2 泵的出口在右侧(从进口方向看)
规格有 : 80UHB-UF-11、80UHB-UF-M、100UHB-UF-11、100UHB-UF-M、125UHB-UF-11、125UHB-UF-M、150UHB-UF、200UHB-UF

| 型号 | 配套电机 | A | B | C | E | H1 | H2 | L1 | L2 | L3 | L4 | L5 | L6 | h | n3×s3 | D1 | n1×s1 | D2 | n2×s2 | M1 | M2 | N1 | N2 | H3 | L7 | L8 | H4 | kg 重量 |
|---|---|---|---|---|---|---|---|---|---|---|---|---|---|---|---|---|---|---|---|---|---|---|---|---|---|---|---|---|
| 80UHB-UF-II | 7.5KW-4 | 425 | 365 | 495 | 198 | 300 | 335 | 200 | 600 | 200 | 355 | 155 | 1420 | 20 | 4-M20×300 | 160 | 8×M16 | 145 | 4×φ18 | 160 | 190 | 120 | 150 | 450 | 1200 | 700 | 650 | 350 |
| 11kW-4 | 460 | 460 | 525 | 198 | 300 | 335 | 210 | 800 | 210 | 320 | 155 | 1490 | 20 | 4-M20×300 | 160 | 8×M16 | 145 | 4×φ18 | 160 | 190 | 120 | 150 | 450 | 1500 | 750 | 650 | 450 | |
| 80UHB-UF-M | 15kW-4 | 510 | 510 | 580 | 255 | 370 | 465 | 250 | 850 | 190 | 340 | 165 | 1600 | 20 | 4-M20×300 | 160 | 8×M16 | 145 | 4×φ18 | 160 | 190 | 120 | 150 | 450 | 1600 | 1000 | 650 | 600 |
| 18.5kW-4 | 510 | 510 | 580 | 255 | 370 | 465 | 250 | 850 | 190 | 340 | 165 | 1655 | 20 | 4-M20×300 | 160 | 8×M16 | 145 | 4×φ18 | 160 | 190 | 120 | 150 | 450 | 1600 | 1000 | 650 | 650 | |
| 100UHB-UF-II | 15KW-4 | 460 | 460 | 525 | 193 | 300 | 335 | 210 | 800 | 210 | 330 | 160 | 1545 | 20 | 4-M20×300 | 180 | 8×M16 | 160 | 4×φ18 | 160 | 190 | 120 | 150 | 450 | 1500 | 750 | 650 | 450 |
| 18.5~22KW-4 | 460 | 460 | 525 | 193 | 300 | 335 | 210 | 800 | 210 | 310 | 160 | 1620 | 20 | 4-M20×300 | 180 | 8×M16 | 160 | 4×φ18 | 160 | 190 | 120 | 150 | 450 | 1500 | 750 | 650 | 500 | |
| 100UHB-UF-M | 37~45KW-4 | 510 | 610 | 700 | 248 | 370 | 480 | 250 | 935 | 250 | 340 | 170 | 1800 | 20 | 4-M20×300 | 180 | 8×M16 | 160 | 4×φ18 | 160 | 190 | 120 | 150 | 450 | 1800 | 1100 | 650 | 800 |
| 55KW-4 | 510 | 630 | 750 | 248 | 390 | 480 | 245 | 1000 | 245 | 340 | 170 | 1855 | 20 | 4-M20×300 | 210 | 8×M16 | 180 | 8×φ18 | 160 | 190 | 120 | 150 | 450 | 1900 | 1100 | 650 | 950 | |
| 125UHB-UF-II | 5.5~7.5kW-4 | 425 | 365 | 495 | 188 | 300 | 335 | 200 | 600 | 200 | 360 | 165 | 1445 | 20 | 4-M20×300 | 160 | 8×M16 | 145 | 4×φ18 | 160 | 190 | 120 | 150 | 450 | 1200 | 700 | 650 | 350 |
| 22kW-4 | 460 | 460 | 525 | 188 | 300 | 335 | 210 | 800 | 210 | 330 | 165 | 1630 | 20 | 4-M20×300 | 210 | 8×M16 | 180 | 8×φ18 | 160 | 190 | 120 | 150 | 450 | 1500 | 750 | 650 | 500 | |
| 125UHB-UF-M | 37~45kW-4 | 510 | 610 | 700 | 248 | 370 | 525 | 250 | 935 | 250 | 350 | 175 | 1810 | 20 | 4-M20×300 | 210 | 8×M16 | 180 | 8×φ18 | 160 | 190 | 120 | 150 | 450 | 1800 | 1100 | 650 | 900 |
| 55kW-4 | 510 | 630 | 750 | 248 | 390 | 525 | 245 | 1000 | 245 | 365 | 175 | 1865 | 20 | 4-M20×300 | 210 | 8×M16 | 180 | 8×φ18 | 160 | 190 | 120 | 150 | 450 | 1900 | 1100 | 650 | 950 | |
| 150UHB-UF | 11KW-6 | 510 | 510 | 580 | 223 | 370 | 370 | 250 | 850 | 190 | 350 | 350 | 1795 | 20 | 4-M20×300 | 240 | 8×φ22 | 210 | 8×φ18 | 160 | 190 | 120 | 150 | 450 | 1600 | 1000 | 650 | 625 |
| 30KW-4 | 510 | 510 | 580 | 223 | 370 | 370 | 250 | 850 | 190 | 350 | 350 | 1920 | 20 | 4-M20×300 | 240 | 8×φ22 | 210 | 8×φ18 | 160 | 190 | 120 | 150 | 450 | 1600 | 1000 | 650 | 800 | |
| 37~45kW-4 | 510 | 610 | 700 | 223 | 370 | 370 | 250 | 935 | 250 | 350 | 350 | 1960 | 20 | 4-M20×300 | 240 | 8×φ22 | 210 | 8×φ18 | 160 | 190 | 120 | 150 | 450 | 1800 | 1100 | 650 | 920 | |
| 200UHB-UF | 18.5~22kW-6 | 510 | 510 | 580 | 215 | 370 | 385 | 250 | 850 | 190 | 350 | 220 | 1810 | 20 | 4-M24×300 | 295 | 8×M16 | 210 | 8×φ22 | 180 | 210 | 120 | 150 | 550 | 3000 | 1300 | 1000 | 800 |
30kW-6 45kW-4 | 510 | 610 | 680 | 215 | 370 | 385 | 250 | 935 | 250 | 370 | 220 | 1880 | 20 | 4-M24×300 | 295 | 8×M16 | 210 | 8×φ22 | 180 | 210 | 120 | 150 | 550 | 3000 | 1300 | 1000 | 920 | |
| 55kW-4 | 510 | 630 | 750 | 215 | 390 | 385 | 245 | 1000 | 245 | 365 | 220 | 1930 | 20 | 4-M24×300 | 295 | 8×M16 | 210 | 8×φ22 | 180 | 210 | 120 | 150 | 550 | 3000 | 1300 | 1000 | 980 | |
| 75kW-4 | 510 | 660 | 750 | 215 | 390 | 385 | 245 | 1000 | 345 | 365 | 220 | 2000 | 20 | 4-M24×300 | 295 | 8×M16 | 210 | 8×φ22 | 180 | 210 | 120 | 150 | 550 | 3000 | 1300 | 1000 | 1200 | |
| 90kW-4 | 510 | 660 | 750 | 215 | 390 | 385 | 245 | 1000 | 345 | 365 | 220 | 2080 | 20 | 4-M24×300 | 295 | 8×M16 | 210 | 8×φ22 | 180 | 210 | 120 | 150 | 550 | 3000 | 1300 | 1000 | 1250 |
8.3 进出口法兰尺寸










