联系

UHB-FX是一种改良全塑型防腐耐磨泵,该系列泵过流部件材料为超高分子聚乙烯,其具有极好的耐腐蚀性、优异的耐磨性及抗蠕变性(耐环境应力开裂),与衬塑型防腐泵相比较有重量轻、维修方便、内外防腐等优点;与市场同类全塑泵比有效率高、轴密封性能好的优势,该系列泵是本公司对原有的UF系列全塑泵的升级改造品种,改进的主要方面在于泵的效率提高和轴密封可靠性改良(不用水冷却,用风冷却密封)。
本公司对UHB-FX系列泵的外观、结构及轴密封均具有知识产权保护。
最高扬程70m(压力为0.7MPa以内),根据不同规格选定。
② 密封形式:K型动力密封和机械密封任选,其中JS免加冷却水密封为公司优势专利技术。专利号:CN218151617U
3.1 适用范围:
UHB-FX型过流部件为改性超高分子量聚乙烯,使用特性为耐腐、耐磨。因此,适用于输送温度100℃以内的腐蚀性和非腐蚀性料浆或清液。主要适用输送酸碱类介质,不适用输送强氧化性酸和溶剂类介质。
3.2 典型的应用行业与岗位:
① 硫酸磷肥业:稀酸、母液、污水、含硅胶的氟硅酸、磷酸料浆等介质的输送。
② 有色金属冶炼业:特别适用于铅、锌、金、银、铜、锰、钴、稀土等湿法冶炼的各种酸液,腐蚀性矿浆,料浆(压滤机配用)电解液,污水等介质输送。
③ 化工及其它企业:各种硫酸、盐酸、碱性、油类的清液或料浆岗位。钛白粉、铁红粉生产,各种染料、颜料生产,非金属矿产加工等行业。
④ 氯碱业:盐酸、液碱、电解液等。
⑤ 水处理业:纯水、高纯水、污水(皮革污水、电镀污水、电子污水、造纸污水、纺织污水、食品污水、生活污水、制药业污水等等)
⑥ 钢铁企业:酸洗系统的硫酸、盐酸岗位、带杂质的污水。
⑦ 湿式脱硫循环泵:能同时适用碱性、酸性、腐蚀性岗位。
⑧ 煤炭工业、煤化工中的腐蚀性液体、煤浆的输送;洗选煤配用泵。
⑨ 锂电、新能源、化纤、纺织印染等其他各业相关类似的工况。
5.1 不带副叶轮泵的结构简图

| 序号 | 零部件名称 | 材质 | 序号 | 零部件名称 | 材质 | 序号 | 零部件名称 | 材质 |
| √1 | 泵盖 | UHMWPE | √ 12 | 轴套 | 氮化硅陶瓷 | √ 23 | 轴套垫 | 玻璃钢 |
| 2 | 泵盖连接螺栓 | A3 | √ 13 | 密封盒垫 | F26B | 24 | 挡酸片 | F26B |
| 3 | 泵盖压紧圈 | A3 | 14 | 密封盒垫块 | PP | 25 | 轴承侧盖 | 玻璃钢 |
| √ 4 | 泵盖垫 | F26B | 15 | 密封盒连接螺栓 | A3 | 26 | 轴承油封 | HT-200 |
| √ 5 | 锁紧螺母 | UHMWPE/A3 | √ 16 | 密封盒 | 玻璃钢 | 27 | 轴承 | 氯丁胶 |
| √ 6 | 防转螺母 | A3 | √ 17 | K形密封圈 | F4/F26B | 28 | 轴承座连接螺栓 | A3 |
| 7 | 华司 | A3 | 18 | 冷却水嘴 | PP | 29 | 轴承座 | 合金钢 |
| √8 | 锁紧螺母L垫 | F26B | 19 | 水封环 | 玻璃钢 | 30 | 主轴 | 40Cr钢 |
| √ 9 | 叶轮 | UHMWPE/A3 | √ 20 | O形密封圈 | F26B | 31 | 油塞 | |
| √ 10 | 泵壳 | UHMWPE | 21 | 顶圈 | PP | |||
| √ 11 | 叶轮垫 | F26B | 22 | 密封盒盖 | PP |
注:序号前带有“√”标志的为易损件,供用户采购备件参考
5.2 带副叶轮泵的结构简图

| 序号 | 零部件名称 | 材质 | 序号 | 零部件名称 | 材质 | 序号 | 零部件名称 | 材质 |
| 1 | 进口哈夫 | A3 | 13 | 叶轮调节圈 | A3 | 25 | 密封盒盖 | 玻璃钢 |
| 2 | 哈夫锁紧带 | 304不锈钢 | √ 14 | 泵壳 | UHMWPE/QT | 26 | 挡酸片 | 玻璃钢 |
| 3 | 泵盖板 | QT | √ 15 | 副叶轮 | UHMWPE | √ 27 | 轴套 | 氮化硅陶瓷 |
| √ 4 | 泵盖 | UHMWPE/QT | √ 16 | 密封盒垫 | F26B | √28 | 轴套垫 | F26B |
| √ 5 | 泵盖垫 | 氯丁胶 | 17 | 密封盒垫块 | PP | 29 | 主轴拼帽 | A3 |
| √ 6 | 锁紧螺母 | UHMWPE/A3 | 18 | 密封盒压盖 | QT | 30 | 轴承侧盖 | HT-200 |
| √ 7 | 防转螺母 | A3 | √ 19 | 副叶轮垫 | FPM | 31 | 轴承油封 | 氯丁胶 |
| 8 | 止退圈 | A3 | √ 20 | 密封盒 | 玻璃钢 | 32 | 轴承 | 合金钢 |
| 9 | 华司 | A3 | √21 | K形密封圈 | F4/F26B | 33 | 油塞 | HT-200 |
| √ 10 | 锁紧螺母L垫 | FPM | 22 | 冷却水嘴 | PP | 34 | 主轴 | 40Cr钢 |
| √ 11 | 主叶轮 | UHMWPE/A3 | 23 | 水封环 | 玻璃钢 | 35 | 轴承座 | HT-200 |
| √ 12 | 主叶轮垫 | FPM | √24 | O形密封圈 | F26B |
注:序号前带有“√”标志的为易损件,供用户采购备件参考
6.1 K型动力密封结构简图及简介
6.1.1不带冷却水K型动力密封局部图 6.1.2带冷却水K型动力密封局部图

工作原理
该密封主要由副叶轮(或副叶片)与停车密封(K形密封圈)组成。工作时由于副叶轮(或副叶片)旋转产生的离心力使密封腔处于负压状态,从而阻止液体向外泄漏,此时,停车密封不起作用。K形密封圈的唇口因负压而松开,与轴套产生一定间隙,减小其之间的磨损,延长了使用寿命;停机时,由于副叶轮 (或副叶片)停止旋转,密封腔由负压转为正压,停车密封开始工作,K形密封圈的唇口在压力作用下紧紧包住轴套,从而达到密封目的。若允许冷却水渗入介质内,可选用带冷却水K型动力密封,即可添加外冷却水装置,延长密封圈的使用寿命。该密封的密封圈采用氟橡胶制成,主要适用于输送含固体颗粒的料浆、含杂质的污水等腐蚀性介质(带冷却水K型动力密封用的冷却水为洁净的自来水,压力适宜在0.05MPa以内)。
6.2 G3、G4型机械密封结构简图及简介

G3密封为本公司自行设计的一种改良型抗颗粒泵用机械密封;密封的动、静环均由碳化硅或硬质合金制成,可用于输送含大量颗粒的腐蚀性液体。该密封和同类内装式机械密封相比,静环与密封盒之间设置了挡砂圈,硬颗粒不能进入静环与密封盒之间的间隙中,使静环前后位移自如,克服了原有耐颗粒密封的“卡砂”失效的缺点。G4密封是对G3密封防砂K形圈部位的进一步改进,性能更加稳定可靠。G3、G4密封均为本公司专利技术。
6.3 G5防腐型集装式机械密封结构简图及简介

| 1.叶轮 | 5.静环 | 9.蓄能垫 | 13.冷却水封 |
| 2.泵壳 | 6.顶圈 | 10.密封盒 | 14.轴承 |
| 3.轴套1 | 7.静环固定圈 | 11.主轴 | |
| 4.动环 | 8.轴套2 | 12.主轴护套 |
该密封是对常用的集装式机封的改良品种,改良的目的在于:提供一种能适用于各类腐蚀性清液及料浆输送的集装式泵轴机械密封,方便客户的采购、运输、贮存,安装等。
改良的方法:一是把密封与介质接触部位的材料全部改为腐蚀性能 极好的非金属材料,使密封既有良好的防腐性能,又有极好的经济性, 能使用户在花较少的成本的同时,又能使用到性能好的防腐型集装式密 封;二是在冷却水密封圈前端设置了渗漏液收集腔和渗漏液排除通道。 防止冷却水密封的滴漏,克服了常规的集装机封滴漏的不足。

6.4 JZ1单端面集装式机械密封结构简图及简介
JZ1单端面集装式机械密封,集装外壳基材为不锈钢,适用于含固量在25%以下的泵使用。密封原理同G5,密封常用主体材料有:不锈钢904L、316L、双相不锈钢2205。
冷却水要求:1、加冲洗水冲洗洁净水或自来水水压力为0.3MPa,水量为30-120L/h,冲洗水全部进入泵腔,无冷却水出口,密封使用寿命长。注意:运行或调试正反转启动前必须先接通冷却水,否则密封将会损坏!2、含固量少于10%时也可不加冷却水使用,使用时直接堵掉冷却水入口即可。注意:若密封不设置内冲洗水,则调试点启动及运行前泵腔内必须充满液体!
6.5 JZ2双端面集装式机械密封结构简图及简介
| 1、叶轮 | 2、后泵盖 | 3、密封挡环 | 4、机封垫块垫 | 5、机封垫块 |
| 6、机封垫 | 7、机封压盖 | 8、内冲洗水嘴 | 9、外冲洗水嘴 | 10、机封组合 |
| 11、定位板 | 12、固定环 | 13、主轴 | 14、叶轮垫圈 |
双端面集装式机械密封有着使用寿命长、运行稳定、安装维修方便等优点,适用于目前绝大部分烟气脱硫循环岗位。其独特的内冲洗系统在提供润滑、冷却作用的同时,有效地防止了固体颗粒杂质堆积在密封环上,延长了密封的使用寿命。
技术参数:压力0~0.6MPa,温度-20~90℃,含固量≤20%,主体材质可以选择双相不锈钢或316L等材料,动静环材质为无压烧结碳化硅。适用于输送含固体颗粒物的浆液,特别是石灰浆液、泥浆液、煤渣液、矿渣液、废酸、污水等。
使用注意:禁止密封腔内无水情况运行!泵运行前,内、外冲洗水必须同时接通且为洁净水。外冲洗水自流通过即可,水压约为0.05MPa,流量约为5L/min;内冲洗水压大于0.3MPa即可,流量约为8L/min。停用时必须先关泵,再关冲洗水,内冲洗水的阀门也需关闭(防止浆液倒流)。
JS1型风冷密封各部件的功能介绍:
1、固液分离腔(5)功能为三:一是存液,使密封部位有足够的存液,不会产生干磨;二是固液分离腔里旋转的液体把浓浆中的固体分离排出,留下相对清液冷却、润滑橡胶密封圈;三是封闭局部液体,有利于产生密封部位的负压场。
2、外置式排液通道(4)设置在叶轮的幅板上,叶轮转动时,产生离心力,进而抽吸固液分离腔中的渣浆,把含固量高的渣浆抽排出固液分离腔(5),同时使固液分离腔中的液体处于负压状态,进而保护唇形橡胶圈的使用安全。
3、进液孔(3)设在叶轮幅板上,呈轴向设置,其功能主要是把泵吸入口的浆体引入固液分离腔,为固液分离腔补液。
4、第一个K型橡胶密封圈(6)功能为挡砂,不让固液分离腔中的砂粒进入带动静环的机封部(9)。
5、第二个K型橡胶密封圈(7)为反装式结构,功能为密封存油腔(8)中的油脂,不让存液腔中的油脂流失。
6、存油腔(8)设置于机封(9)与K形密封圈之间,功能有二:一是存油,润滑机封的动静环;二是导热,把轴套上的热能传递给机封的动环(10)部,进而散发出去。
7、带动静环的机封(9)+(10)设在K形密封圈的后侧,功能为密封空气,使泵机外部的空气不进入泵腔中。
8、风轮(11)设在主轴上,随主轴转动,功能为生风,吹散密封部位各部件的热量。

JS型风冷密封整体工作原理介绍:
泵起动后,叶轮(1)旋转带动固液分离腔中的液体旋转,流体旋转产生离心力,把固液分离腔(5)中的固液分离,固体靠近外侧的抽吸孔(4)部,相对的清液靠近内侧的橡胶密封圈部,补液孔(3)为固液分离腔补液,保证固液分离腔液体充盈。设置于叶轮幅板上的径向抽吸孔(4)在叶轮转动时,产生的吸力把固液分离腔中的碴浆排出,并使固液分离腔中形成负压流体区,进而使得K形密封圈不带压运行,保证了密封圈的使用安全性。K形密封圈(1)挡住了泵腔中的浆体,使浆体不能进入机封(9)部(因为浆体呈负压状态)。第二只密封圈(2)封住存油腔中的油脂(8),不进入泵腔中。机封(10)则起到密封空气,使外部空气不进入泵机内部。风轮(11)产生的风,冷却机封的各部件。
在JS型风冷密封的组件与各自的功能组合中,各组件有各自的功能,各种功能又相互关联、相互作用、相互依存,形成了一个动态的密封生态整体。使这种组合机封,不外接冷却水也能正常地密封泵机,功能与优势有别于其它密封。体现了这种机封的特质,也形成了JS型风冷密封的差异化优势,达到了技术创新的目的,我们希也望这个创新能回报更多的客户。
★ 该系列泵禁止在泵腔内无液的状态下长时间运转,否则会损毁泵内部件。
★ 出液阀门全关闭的情况下,开闷泵不得超过五分钟,否则泵内液体升温会造成泵机损坏。
| 规格 | 进口× | 额定转速 2900r/min | 额定转速 1450r/min | ||||||||||
|---|---|---|---|---|---|---|---|---|---|---|---|---|---|
| 流量 范围 m3/h | 扬程 范围 m | 参考型号 | 流量 m3/h | 范围 | 配备 电机 | 流量 范围 m3/h | 扬程 范围 m | 参考型号 | 流量 m3/h | 扬程 m | 配备电机 | ||
| 32UHB-FX | 32 × 25 | 3 ~ 12 | 10 ~ 25 | 32UHB-FX-3-13 | 3 | 13 | 1.1kW -2 | 1.5 ~ 8 | 2.5 ~ 6 | 32UHB-FX-1.5-3 | 1.5 | 3 | 0.75kW-4 |
| 32UHB-FX-3-18 | 3 | 18 | 1.1kW-2 | 32UHB-FX-1.5-4.5 | 1.5 | 4.5 | 0.75kW-4 | ||||||
| 32UHB-FX-5-12 | 5 | 12 | 1.1kW-2 | 32UHB-FX-2.5-3 | 2.5 | 3 | 0.75kW-4 | ||||||
| 32UHB-FX-5-15 | 5 | 15 | 1.1kW-2 | 32UHB-FX-2.5-4 | 2.5 | 4 | 0.75kW-4 | ||||||
| 32UHB-FX-5-20 | 5 | 20 | 1.5kW-2 | 32UHB-FX-2.5-5 | 2.5 | 5 | 0.75kW-4 | ||||||
| 32UHB-FX-5-25 | 5 | 25 | 2.2kW-2 | 32UHB-FX-2.5-6 | 2.5 | 6 | 0.75kW-4 | ||||||
| 32UHB-FX-7-10 | 7 | 10 | 1.1kW-2 | 32UHB-FX-3.5-2.5 | 3.5 | 2.5 | 0.75kW-4 | ||||||
| 32UHB-FX-8-12 | 8 | 12 | 1.1kW-2 | 32UHB-FX-4-3 | 4 | 3 | 0.75kW-4 | ||||||
| 32UHB-FX-8-18 | 8 | 18 | 1.5kW-2 | 32UHB-FX-4-4.5 | 4 | 4.5 | 0.75kW-4 | ||||||
| 32UHB-FX-8-23 | 8 | 23 | 2.2kW-2 | 32UHB-FX-4-5.5 | 4 | 5.5 | 0.75kW-4 | ||||||
| 32UHB-FX-10-15 | 10 | 15 | 1.5kW-2 | 32UHB-FX-5-3.5 | 5 | 3.5 | 0.75kW-4 | ||||||
| 32UHB-FX-10-20 | 10 | 20 | 2.2kW-2 | 32UHB-FX-5-5 | 5 | 5 | 0.75kW-4 | ||||||
| 32UHB-FX-12-16 | 12 | 16 | 2.2kW-2 | 32UHB-FX-6-4 | 6 | 4 | 0.75kW-4 | ||||||
| 40UHB-FX | 40 × 32 | 5 ~ 20 | 10 ~ 34 | 40UHB-FX-10-18 | 10 | 18 | 2.2kW-2 | 2.5 ~ 10 | 2.5 ~ 8.5 | 40UHB-FX-5-4.5 | 5 | 4.5 | 0.75kW-4 |
| 40UHB-FX-10-25 | 10 | 25 | 3kW-2 | 40UHB-FX-5-6 | 5 | 6 | 0.75kW-4 | ||||||
| 40UHB-FX-10-30 | 10 | 30 | 3kW-2 | 40UHB-FX-5-7.5 | 5 | 7.5 | 0.75kW-4 | ||||||
| 40UHB-FX-15-15 | 15 | 15 | 2.2kW-2 | 40UHB-FX-7.5-3.5 | 7.5 | 3.5 | 0.75kW-4 | ||||||
| 40UHB-FX-15-20 | 15 | 20 | 3kW-2 | 40UHB-FX-7.5-5 | 7.5 | 5 | 0.75kW-4 | ||||||
| 40UHB-FX-15-25 | 15 | 25 | 4kW-2 | 40UHB-FX-7.5-6 | 7.5 | 6 | 0.75kW-4 | ||||||
| 40UHB-FX-18-20 | 18 | 20 | 3kW-2 | 40UHB-FX-9-5 | 9 | 5 | 0.75kW-4 | ||||||
| 40UHB-FX-20-10 | 20 | 10 | 3kW-2 | 40UHB-FX-10-2.5 | 10 | 2.5 | 0.75kW-4 | ||||||
| 50UHB-FX | 50 × 40 | 5 ~ 30 | 10 ~ 43 | 50UHB-FX-10-35 | 10 | 35 | 4kW-2 | 2.5 ~ 15 | 2.5 ~ 10.5 | 50UHB-FX-5-8.5 | 5 | 8.5 | 0.75kW-4 |
| 50UHB-FX-12-40 | 12 | 40 | 5.5kW-2 | 50UHB-FX-6-10 | 6 | 10 | 0.75kW-4 | ||||||
| 50UHB-FX-15-24 | 15 | 24 | 4kW-2 | 50UHB-FX-7.5-6 | 7.5 | 6 | 0.75kW-4 | ||||||
| 50UHB-FX-15-32 | 15 | 32 | 5.5kW-2 | 50UHB-FX-7.5-8 | 7.5 | 8 | 1.1kW-4 | ||||||
| 50UHB-FX-15-43 | 15 | 43 | 7.5kW-2 | 50UHB-FX-7.5-10.5 | 7.5 | 10.5 | 1.1kW-4 | ||||||
| 50UHB-FX-20-15 | 20 | 15 | 3kW-2 | 50UHB-FX-10-3.5 | 10 | 3.5 | 1.1kW-4 | ||||||
| 50UHB-FX-20-20 | 20 | 20 | 4kW-2 | 50UHB-FX-10-5 | 10 | 5 | 1.1kW-4 | ||||||
| 50UHB-FX-20-30 | 20 | 30 | 5.5kW-2 | 50UHB-FX-10-7.5 | 10 | 7.5 | 1.1kW-4 | ||||||
| 50UHB-FX-25-15 | 25 | 15 | 4kW-2 | 50UHB-FX-12.5-3.5 | 12.5 | 3.5 | 1.1kW-4 | ||||||
| 50UHB-FX-25-28 | 25 | 28 | 5.5kW-2 | 50UHB-FX-12.5-7 | 12.5 | 7 | 1.1kW-4 | ||||||
| 50UHB-FX-30-15 | 30 | 15 | 5.5kW-2 | 50UHB-FX-15-3.5 | 15 | 3.5 | 1.1kW-4 | ||||||
| 65UHB-FX | 65 × 50 | 20 ~ 40 | 15 ~ 36 | 65UHB-FX-25-35 | 25 | 35 | 7.5kW-2 | 10 ~ 20 | 3.5 ~ 9 | 65UHB-FX-12.5-8.5 | 12.5 | 8.5 | 1.5kW-4 |
| 65UHB-FX-30-20 | 30 | 20 | 5.5kW-2 | 65UHB-FX-15-5 | 15 | 5 | 1.1kW-4 | ||||||
| 65UHB-FX-30-25 | 30 | 25 | 7.5kW-2 | 65UHB-FX-15-6 | 15 | 6 | 1.1kW-4 | ||||||
| 65UHB-FX-30-32 | 30 | 32 | 7.5kW-2 | 65UHB-FX-15-8 | 15 | 8 | 1.5kW-4 | ||||||
| 65UHB-FX-35-20 | 35 | 20 | 5.5kW-2 | 65UHB-FX-17.5-5 | 17.5 | 5 | 1.1kW-4 | ||||||
| 65UHB-FX-35-25 | 35 | 25 | 7.5kW-2 | 65UHB-FX-17.5-6 | 17.5 | 6 | 1.5kW-4 | ||||||
| 65UHB-FX-40-15 | 40 | 15 | 5.5kW-2 | 65UHB-FX-20-3.5 | 20 | 3.5 | 1.1kW-4 | ||||||
| 65UHB-FX-40-20 | 40 | 20 | 7.5kW-2 | 65UHB-FX-20-5 | 20 | 5 | 1.5kW-4 | ||||||
| 65UHB-FX-H | 65 × 50 | 5 ~ 36 | 35 ~ 58 | 65UHB-FX-H-10-40 | 10 | 40 | 5.5kW-2 | 2.5 ~ 18 | 8.5 ~ 14.5 | 65UHB-FX-H-5-10 | 5 | 10 | 1.1kW-4 |
| 65UHB-FX-H-10-50 | 10 | 50 | 7.5kW-2 | 65UHB-FX-H-5-12.5 | 5 | 12.5 | 1.1kW-4 | ||||||
| 65UHB-FX-H-10-55 | 10 | 55 | 11kW-2 | 65UHB-FX-H-5-13.5 | 5 | 13.5 | 1.1kW-4 | ||||||
| 65UHB-FX-H-15-45 | 15 | 45 | 7.5kW-2 | 65UHB-FX-H-7.5-11 | 7.5 | 11 | 1.1kW-4 | ||||||
| 65UHB-FX-H-20-50 | 20 | 50 | 11kW-2 | 65UHB-FX-H-10-12.5 | 10 | 12.5 | 1.5kW-4 | ||||||
| 65UHB-FX-H-25-45 | 25 | 45 | 11kW-2 | 65UHB-FX-H-12.5-11 | 12.5 | 11 | 2.2kW-4 | ||||||
| 65UHB-FX-H-25-55 | 25 | 55 | 15kW-2 | 65UHB-FX-H-12.5-13.5 | 12.5 | 13.5 | 2.2kW-4 | ||||||
| 65UHB-FX-H-30-40 | 30 | 40 | 11kW-2 | 65UHB-FX-H-15-10 | 15 | 10 | 2.2kW-4 | ||||||
| 65UHB-FX-H-30-50 | 30 | 50 | 15kW-2 | 65UHB-FX-H-15-12.5 | 15 | 12.5 | 2.2kW-4 | ||||||
| 65UHB-FX-H-35-45 | 35 | 45 | 15kW-2 | 65UHB-FX-H-17.5-11 | 17.5 | 11 | 2.2kW-4 | ||||||
| 80UHB-FX | 80 × 65 | 20 ~ 60 | 10 ~ 60 | 80UHB-FX-35-20 | 35 | 20 | 7.5kW-2 | 10 ~ 30 | 2.5 ~ 15 | 80UHB-FX-17.5-5 | 17.5 | 5 | 1.1kW-4 |
| 80UHB-FX-35-30 | 35 | 30 | 11kW-2 | 80UHB-FX-17.5-7.5 | 17.5 | 7.5 | 1.5kW-4 | ||||||
| 80UHB-FX-35-40 | 35 | 40 | 11kW-2 | 80UHB-FX-17.5-10 | 17.5 | 10 | 2.2kW-4 | ||||||
| 80UHB-FX-35-50 | 35 | 50 | 15kW-2 | 80UHB-FX-17.5-12.5 | 17.5 | 12.5 | 2.2kW-4 | ||||||
| 80UHB-FX-40-20 | 40 | 20 | 7.5kW-2 | 80UHB-FX-20-5 | 20 | 5 | 1.5kW-4 | ||||||
| 80UHB-FX-40-30 | 40 | 30 | 11kW-2 | 80UHB-FX-20-7.5 | 20 | 7.5 | 1.5kW-4 | ||||||
| 80UHB-FX-40-40 | 40 | 40 | 15kW-2 | 80UHB-FX-20-10 | 20 | 10 | 2.2kW-4 | ||||||
| 80UHB-FX-40-50 | 40 | 50 | 15kW-2 | 80UHB-FX-20-12.5 | 20 | 12.5 | 3kW-4 | ||||||
| 80UHB-FX-45-18 | 45 | 18 | 7.5kW-2 | 80UHB-FX-22.5-4.5 | 22.5 | 4.5 | 1.1kW-4 | ||||||
| 80UHB-FX-45-25 | 45 | 25 | 11kW-2 | 80UHB-FX-22.5-6 | 22.5 | 6 | 1.5kW-4 | ||||||
| 规格 | 进口× | 额定转速 2900r/min | 额定转速 1450r/min | ||||||||||
|---|---|---|---|---|---|---|---|---|---|---|---|---|---|
| 流量 范围 m3/h | 扬程 范围 m | 参考型号 | 流量 m3/h | 范围 | 配备 电机 | 流量 范围 m3/h | 扬程 范围 m | 参考型号 | 流量 m3/h | 扬程 m | 配备电机 | ||
| 80UHB-FX | 80 × 65 | 20 ~ 60 | 10 ~ 60 | 80UHB-FX-45-35 | 45 | 35 | 11kW-2 | 10 ~ 30 | 2.5 ~ 15 | 80UHB-FX-22.5-8.5 | 22.5 | 8.5 | 2.2kW-4 |
| 80UHB-FX-45-50 | 45 | 50 | 15kW-2 | 80UHB-FX-22.5-12.5 | 22.5 | 12.5 | 3kW-4 | ||||||
| 80UHB-FX-45-60 | 45 | 60 | 22kW-2 | 80UHB-FX-22.5-15 | 22.5 | 15 | 3kW-4 | ||||||
| 80UHB-FX-50-15 | 50 | 15 | 7.5kW-2 | 80UHB-FX-25-3.5 | 25 | 3.5 | 1.1kW-4 | ||||||
| 80UHB-FX-50-30 | 50 | 30 | 11kW-2 | 80UHB-FX-25-7.5 | 25 | 7.5 | 2.2kW-4 | ||||||
| 80UHB-FX-50-40 | 50 | 40 | 15kW-2 | 80UHB-FX-25-10 | 25 | 10 | 3kW-4 | ||||||
| 80UHB-FX-50-45 | 50 | 45 | 18.5kW-2 | 80UHB-FX-25-11 | 25 | 11 | 3kW-4 | ||||||
| 80UHB-FX-55-40 | 55 | 40 | 18.5kW-2 | 80UHB-FX-27.5-10 | 27.5 | 10 | 3kW-4 | ||||||
| 80UHB-FX-60-30 | 60 | 30 | 8.5kW-2 | 80UHB-FX-30-7.5 | 30 | 7.5 | 2.2kW-4 | ||||||
| 100UHB-FX | 100 × 80 | 50 ~ 145 | 10 ~ 60 | 100UHB-FX-50-50 | 50 | 50 | 18.5kW-2 | 25 ~ 72.5 | 2.5 ~ 15 | 100UHB-FX-25-12.5 | 25 | 12.5 | 3kW-4 |
| 100UHB-FX-50-58 | 50 | 58 | 22kW-2 | 100UHB-FX-25-14.5 | 25 | 14.5 | 3kW-4 | ||||||
| 100UHB-FX-60-30 | 60 | 30 | 15kW-2 | 100UHB-FX-30-7.5 | 30 | 7.5 | 2.2kW-4 | ||||||
| 100UHB-FX-60-40 | 60 | 40 | 18.5kW-2 | 100UHB-FX-30-10 | 30 | 10 | 3kW-4 | ||||||
| 100UHB-FX-60-50 | 60 | 50 | 22kW-2 | 100UHB-FX-30-12.5 | 30 | 12.5 | 4kW-4 | ||||||
| 100UHB-FX-70-30 | 70 | 30 | 18.5kW-2 | 100UHB-FX-35-7.5 | 35 | 7.5 | 3kW-4 | ||||||
| 100UHB-FX-70-40 | 70 | 40 | 22kW-2 | 100UHB-FX-35-10 | 35 | 10 | 3kW-4 | ||||||
| 100UHB-FX-70-45 | 70 | 45 | 30kW-2 | 100UHB-FX-35-11 | 35 | 11 | 4kW-4 | ||||||
| 100UHB-FX-80-15 | 80 | 15 | 11kW-2 | 100UHB-FX-40-3.5 | 40 | 3.5 | 2.2kW-4 | ||||||
| 100UHB-FX-80-25 | 80 | 25 | 15kW-2 | 100UHB-FX-40-6 | 40 | 6 | 2.2kW-4 | ||||||
| 100UHB-FX-80-30 | 80 | 30 | 18.5kW-2 | 100UHB-FX-40-7.5 | 40 | 7.5 | 3kW-4 | ||||||
| 100UHB-FX-80-40 | 80 | 40 | 22kW-2 | 100UHB-FX-40-10 | 40 | 10 | 4kW-4 | ||||||
| 100UHB-FX-80-50 | 80 | 50 | 30kW-2 | 100UHB-FX-40-12.5 | 40 | 12.5 | 4kW-4 | ||||||
| 100UHB-FX-100-20 | 100 | 20 | 15kW-2 | 100UHB-FX-50-5 | 50 | 5 | 2.2kW-4 | ||||||
| 100UHB-FX-100-25 | 100 | 25 | 18.5kW-2 | 100UHB-FX-50-6 | 50 | 6 | 3kW-4 | ||||||
| 100UHB-FX-100-30 | 100 | 30 | 22kW-2 | 100UHB-FX-50-7.5 | 50 | 7.5 | 3kW-4 | ||||||
| 100UHB-FX-100-40 | 100 | 40 | 30kW-2 | 100UHB-FX-50-10 | 50 | 10 | 4kW-4 | ||||||
| 100UHB-FX-100-50 | 100 | 50 | 37kW-2 | 100UHB-FX-50-12.5 | 50 | 12.5 | 5.5kW-4 | ||||||
| 100UHB-FX-120-15 | 120 | 15 | 18.5kW-2 | 100UHB-FX-60-3.5 | 60 | 3.5 | 3kW-4 | ||||||
| 100UHB-FX-120-25 | 120 | 25 | 22kW-2 | 100UHB-FX-60-6 | 60 | 6 | 4kW-4 | ||||||
| 100UHB-FX-120-35 | 120 | 35 | 30kW-2 | 100UHB-FX-60-8.5 | 60 | 8.5 | 5.5kW-4 | ||||||
| 100UHB-FX-140-10 | 140 | 10 | 18.5kW-2 | 100UHB-FX-70-2.5 | 70 | 2.5 | 2.2kW-4 | ||||||
| 100UHB-FX-140-15 | 140 | 15 | 22kW-2 | 100UHB-FX-70-3.5 | 70 | 3.5 | 3kW-4 | ||||||
| 100UHB-FX-140-28 | 140 | 28 | 30kW-2 | 100UHB-FX-70-7 | 70 | 7 | 5.5kW-4 | ||||||
| 100UHB-FX-145-28 | 145 | 28 | 37kW-2 | 100UHB-FX-72.5-7 | 72.5 | 7 | 5.5kW-4 | ||||||
| 125UHB-FX | 125 × 100 | 90 ~ 170 | 15 ~ 52 | 125UHB-FX-100-40 | 100 | 40 | 30kW-2 | 45 ~ 85 | 3.5 ~ 13 | 125UHB-FX-50-10 | 50 | 10 | 4kW-4 |
| 125UHB-FX-100-50 | 100 | 50 | 37kW-2 | 125UHB-FX-50-12.5 | 50 | 12.5 | 5.5kW-4 | ||||||
| 125UHB-FX-120-25 | 120 | 25 | 22kW-2 | 125UHB-FX-60-6 | 60 | 6 | 4kW-4 | ||||||
| 125UHB-FX-120-35 | 120 | 35 | 30kW-2 | 125UHB-FX-60-8.5 | 60 | 8.5 | 4kW-4 | ||||||
| 125UHB-FX-120-40 | 120 | 40 | 37kW-2 | 125UHB-FX-60-10 | 60 | 10 | 5.5kW-4 | ||||||
| 125UHB-FX-140-20 | 140 | 20 | 22kW-2 | 125UHB-FX-70-5 | 70 | 5 | 4kW-4 | ||||||
| 125UHB-FX-140-25 | 140 | 25 | 30kW-2 | 125UHB-FX-70-6 | 70 | 6 | 4kW-4 | ||||||
| 125UHB-FX-140-35 | 140 | 35 | 37kW-2 | 125UHB-FX-70-8.5 | 70 | 8.5 | 5.5kW-4 | ||||||
| 规格 | 进口 | 额定转速 1450r/min | 额定转速 980r/min | ||||||||||
|---|---|---|---|---|---|---|---|---|---|---|---|---|---|
| 流量 范围 m3/h | 扬程 范围 m | 参考型号 | 流量 m3/h | 范围 | 配备 电机 | 流量 范围 m3/h | 扬程 范围 m | 参考型号 | 流量 m3/h | 扬程 m | 配备电机 | ||
| 80UHB-FX-II | 80×65 | 28~60 | 24~36 | 80UHB-FX-II-30-35 | 30 | 35 | 7.5kW-4 | 18.5~40 | 10.5~16 | 80UHB-FX-II-20-16 | 20 | 16 | 3kW-6 |
| 80UHB-FX-II-40-30 | 40 | 30 | 11kW-4 | 80UHB-FX-II-27-13.5 | 27 | 13.5 | 4kW-6 | ||||||
| 80UHB-FX-II-40-35 | 40 | 35 | 11kW-4 | 80UHB-FX-II-27-16 | 27 | 16 | 4kW-6 | ||||||
| 80UHB-FX-II-45-32 | 45 | 32 | 11kW-4 | 80UHB-FX-II-30-14.5 | 30 | 14.5 | 4kW-6 | ||||||
| 80UHB-FX-II-50-30 | 50 | 30 | 11kW-4 | 80UHB-FX-II-33.5-13.5 | 33.5 | 13.5 | 4kW-6 | ||||||
| 100UHB-FX-II | 100× 80 | 55~ 125 | 20~ 36 | 100UHB-FX-II-60-35 | 60 | 35 | 15kW-4 | 37~ 84 | 9~ 16 | 100UHB-FX-II-40.5-16 | 40.5 | 16 | 5.5kW-6 |
| 100UHB-FX-II-70-30 | 70 | 30 | 15kW-4 | 100UHB-FX-II-47-13.5 | 47 | 13.5 | 5.5kW-6 | ||||||
| 100UHB-FX-II-70-35 | 70 | 35 | 18.5kW-4 | 100UHB-FX-II-47-16 | 47 | 16 | 7.5kW-6 | ||||||
| 100UHB-FX-II-80-30 | 80 | 30 | 18.5kW-4 | 100UHB-FX-II-54-13.5 | 54 | 13.5 | 5.5kW-6 | ||||||
| 100UHB-FX-II-80-35 | 80 | 35 | 22kW-4 | 100UHB-FX-II-54-16 | 54 | 16 | 7.5kW-6 | ||||||
| 100UHB-FX-II-100-30 | 100 | 30 | 22kW-4 | 100UHB-FX-II-67.5-13.5 | 67.5 | 13.5 | 7.5kW-6 | ||||||
| 规格 | 进口× | 额定转速 1450r/min | 额定转速 980r/min | ||||||||||
|---|---|---|---|---|---|---|---|---|---|---|---|---|---|
| 流量 范围 m3/h | 扬程 范围 m | 参考型号 | 流量 m3/h | 范围 | 配备 电机 | 流量 范围 m3/h | 扬程 范围 m | 参考型号 | 流量 m3/h | 扬程 m | 配备电机 | ||
| 125UHB-FX-II | 125 × 100 | 75 ~ 145 | 22 ~ 40 | 125UHB-FX-II-80-35 | 80 | 35 | 18.5kW-4 | 50.5 ~ 98 | 10 ~ 18 | 125UHB-FX-II-54-16 | 54 | 16 | 11kW-6 |
| 125UHB-FX-II-90-33 | 90 | 33 | 22kW-4 | 125UHB-FX-II-60-15 | 60 | 15 | 11kW-6 | ||||||
| 125UHB-FX-II-90-38 | 90 | 38 | 22kW-4 | 125UHB-FX-II-60-17 | 60 | 17 | 11kW-6 | ||||||
| 125UHB-FX-II-100-30 | 100 | 30 | 22kW-4 | 125UHB-FX-II-67.5-13.5 | 67.5 | 13.5 | 11kW-6 | ||||||
| 125UHB-FX-II-110-36 | 110 | 36 | 30kW-4 | 125UHB-FX-II-74-16 | 74 | 16 | 11kW-6 | ||||||
| 125UHB-FX-II-120-28 | 120 | 28 | 22kW-4 | 125UHB-FX-II-80-13 | 80 | 13 | 11W-6 | ||||||
| 125UHB-FX-II-120-33 | 120 | 33 | 30kW-4 | 125UHB-FX-II-80-15 | 80 | 15 | 11kW-6 | ||||||
| 125UHB-FX-II-140-25 | 140 | 25 | 30kw -4 | 125UHB-FX-II-95-11.5 | 95 | 11.5 | 11kW-6 | ||||||
| 125UHB-FX-II-140-30 | 140 | 30 | 30kW-4 | 125UHB-FX-II-95-14 | 95 | 14 | 15kW-6 | ||||||
| 80UHB-FX-M | 80 × 65 | 20 ~ 60 | 40 ~ 60 | 80UHB-FX-M-20-50 | 20 | 50 | 11kW-4 | 13.5 ~ 40.5 | 18 ~ 27 | 80UHB-FX-M-13.5-22.5 | 13.5 | 22.5 | 4kW-6 |
| 80UHB-FX-M-30-50 | 30 | 50 | 15kW-4 | 80UHB-FX-M-20-22.5 | 20 | 22.5 | 5.5kW-6 | ||||||
| 80UHB-FX-M-30-60 | 30 | 60 | 18.5kW-4 | 80UHB-FX-M-20-27 | 20 | 27 | 7.5kW-6 | ||||||
| 80UHB-FX-M-40-40 | 40 | 40 | 15kW-4 | 80UHB-FX-M-27-18 | 27 | 18 | 5.5kW-6 | ||||||
| 80UHB-FX-M-40-50 | 40 | 50 | 18.5kW-4 | 80UHB-FX-M-27-22.5 | 27 | 22.5 | 7.5kW-6 | ||||||
| 80UHB-FX-M-40-60 | 40 | 60 | 22kW-4 | 80UHB-FX-M-27-27 | 27 | 27 | 7.5kW-6 | ||||||
| 80UHB-FX-M-50-56 | 50 | 56 | 30kW-4 | 80UHB-FX-M-33.5-25.5 | 33.5 | 25.5 | 11kW-6 | ||||||
| 80UHB-FX-M-60-55 | 60 | 55 | 30kW-4 | 80UHB-FX-M-40.5-25 | 40.5 | 25 | 11kW-6 | ||||||
| 100UHB-FX-M | 100 × 80 | 50 ~ 120 | 40 ~ 70 | 100UHB-FX-M-50-70 | 50 | 70 | 30kW-4 | 33.5 ~ 81 | 18 ~ 32 | 100UHB-FX-M-33.5-32 | 33.5 | 32 | 11kW-6 |
| 100UHB-FX-M-60-65 | 60 | 65 | 30kW-4 | 100UHB-FX-M-40.5-29.5 | 40.5 | 29.5 | 11kW-6 | ||||||
| 100UHB-FX-M-80-40 | 80 | 40 | 22kW-4 | 100UHB-FX-M-54-18 | 54 | 18 | 7.5kW-6 | ||||||
| 100UHB-FX-M-80-50 | 80 | 50 | 30kW-4 | 100UHB-FX-M-54-22.5 | 54 | 22.5 | 11kW-6 | ||||||
| 100UHB-FX-M-80-60 | 80 | 60 | 37kW-4 | 100UHB-FX-M-54-27 | 54 | 27 | 11kW-6 | ||||||
| 100UHB-FX-M-100-40 | 100 | 40 | 30kW-4 | 100UHB-FX-M-67.5-18 | 67.5 | 18 | 11kW-6 | ||||||
| 100UHB-FX-M-100-50 | 100 | 50 | 37kW-4 | 100UHB-FX-M-67.5-22.5 | 67.5 | 22.5 | 15kW-6 | ||||||
| 100UHB-FX-M-100-60 | 100 | 60 | 45kW-4 | 100UHB-FX-M-67.5-27 | 67.5 | 27 | 15kW-6 | ||||||
| 100UHB-FX-M-120-50 | 100 | 50 | 45kW-4 | 100UHB-FX-M-81-22.5 | 81 | 22.5 | 15kW-6 | ||||||
| 125UHB-FX-M | 125 × 100 | 95 ~ 180 | 36 ~ 60 | 125UHB-FX-M-100-50 | 100 | 50 | 37kW-4 | 64 ~ 121 | 16 ~ 27 | 125UHB-FX-M-67.5-22.5 | 67.5 | 22.5 | 11kW-6 |
| 125UHB-FX-M-100-60 | 100 | 60 | 45kW-4 | 125UHB-FX-M-67.5-27 | 67.5 | 27 | 15kW-6 | ||||||
| 125UHB-FX-M-120-50 | 120 | 50 | 45kW-4 | 125UHB-FX-M-81-22.5 | 81 | 22.5 | 15kW-6 | ||||||
| 125UHB-FX-M-120-60 | 120 | 60 | 55kW-4 | 125UHB-FX-M-81-27 | 81 | 27 | 15kW-6 | ||||||
| 125UHB-FX-M-140-40 | 140 | 40 | 37kW-4 | 125UHB-FX-M-94.5-18 | 94.5 | 18 | 15kW-6 | ||||||
| 125UHB-FX-M-140-50 | 140 | 50 | 45kW-4 | 125UHB-FX-M-94.5-22.5 | 94.5 | 22.5 | 15kW-6 | ||||||
| 125UHB-FX-M-160-40 | 160 | 40 | 45kW-4 | 125UHB-FX-M-108-18 | 108 | 18 | 15kW-6 | ||||||
| 125UHB-FX-M-160-50 | 160 | 50 | 55kW-4 | 125UHB-FX-M-108-22.5 | 108 | 22.5 | 18.5kW-6 | ||||||
| 125UHB-FX-M-180-40 | 180 | 40 | 55kW-4 | 125UHB-FX-M-121-18 | 121 | 18 | 15W-6 | ||||||
| 150UHB-FX | 150 × 125 | 110 ~ 290 | 20 ~ 40 | 150UHB-FX-120-26 | 120 | 26 | 18.5kW-4 | 74~ 196 | 9 ~ 18 | 150UHB-FX-80-11.5 | 80 | 11.5 | 7.5kW-6 |
| 150UHB-FX-120-35 | 120 | 35 | 30kW-4 | 150UHB-FX-80-16 | 80 | 16 | 11kW-6 | ||||||
| 150UHB-FX-30-30 | 130 | 30 | 22kW-4 | 150UHB-FX-87.5-13.5 | 87.5 | 13.5 | 11kW-6 | ||||||
| 150UHB-FX-130-38 | 130 | 38 | 30kW-4 | 150UHB-FX-87.5-17 | 87.5 | 17 | 11kW-6 | ||||||
| 150UHB-FX-135-24 | 135 | 24 | 22kW-4 | 150UHB-FX-90-10.5 | 90 | 10.5 | 7.5kW-6 | ||||||
| 150UHB-FX-135-32 | 135 | 32 | 30kW-4 | 150UHB-FX-90-14.5 | 90 | 14.5 | 11kW-6 | ||||||
| 150UHB-FX-150-28 | 150 | 28 | 30kW-4 | 150UHB-FX-100-12.5 | 100 | 12.5 | 11kW-6 | ||||||
| 150UHB-FX-150-36 | 150 | 36 | 30kW-4 | 150UHB-FX-100-16 | 100 | 16 | 11kW-6 | ||||||
| 150UHB-FX-155-22 | 155 | 22 | 22kW-4 | 150UHB-FX-104-10 | 104 | 10 | 7.5kW-6 | ||||||
| 150UHB-FX-155-29 | 155 | 29 | 30kW-4 | 150UHB-FX-104-13 | 104 | 13 | 11kW-6 | ||||||
| 150UHB-FX-165-33 | 165 | 33 | 30kW-4 | 150UHB-FX-111-15 | 111 | 15 | 11kW-6 | ||||||
| 150UHB-FX-175-25 | 175 | 25 | 30kW-4 | 150UHB-FX-118-11 | 118 | 11 | 11kW-6 | ||||||
| 150UHB-FX-200-26 | 200 | 26 | 30kW-4 | 150UHB-FX-135-11.5 | 135 | 11.5 | 11kW-6 | ||||||
| 150UHB-FX-200-35 | 200 | 35 | 45kW-4 | 150UHB-FX-135-16 | 135 | 16 | 15kW-6 | ||||||
| 150UHB-FX-210-39 | 210 | 39 | 45kW-4 | 150UHB-FX-142-17.5 | 142 | 17.5 | 18.5kW-6 | ||||||
| 150UHB-FX-220-30 | 220 | 30 | 37kW-4 | 150UHB-FX-150-13.5 | 150 | 13.5 | 15kW-6 | ||||||
| 150UHB-FX-230-24 | 230 | 24 | 30kW-4 | 150UHB-FX-155-10.5 | 155 | 10.5 | 15kW-6 | ||||||
| 150UHB-FX-230-32 | 230 | 32 | 45kW-4 | 150UHB-FX-155-14.5 | 155 | 14.5 | 15kW-6 | ||||||
| 150UHB-FX-250-28 | 250 | 28 | 37kW-4 | 150UHB-FX-170-12.5 | 170 | 12.5 | 15kW-6 | ||||||
| 150UHB-FX-50-30 | 250 | 30 | 45kW-4 | 150UHB-FX-170-13.5 | 170 | 13.5 | 18.5kW-6 | ||||||
| 150UHB-FX-250-36 | 250 | 36 | 55kW-4 | 150UHB-FX-170-16 | 170 | 16 | 18.5kW-6 | ||||||
| 150UHB-FX-265-21 | 265 | 21 | 37kW-4 | 150UHB-FX-180-9.5 | 180 | 9.5 | 15kW-6 | ||||||
| 150UHB-FX-280-33 | 280 | 33 | 55kW-4 | 150UHB-FX-190-15 | 190 | 15 | 18.5kW-6 | ||||||
| 150UHB-FX-285-25 | 285 | 25 | 37kW-4 | 150UHB-FX-192-11 | 192 | 11 | 15kW-6 | ||||||
| 150UHB-FX-AH | 150 × 125 | 150 ~ 230 | 52 ~ 65 | 150UHB-FX-AH-160-59 | 160 | 59 | 55kW-4 | 101 ~ 155 | 23.5 ~ 29.5 | 150UHB-FX-AH-105-26.5 | 105 | 26.5 | 18.5kW-6 |
| 150UHB-FX-AH-175-63 | 175 | 63 | 75kW-4 | 150UHB-FX-AH-120-28.5 | 120 | 28.5 | 22kW-6 | ||||||
| 150UHB-FX-AH-180-56 | 180 | 56 | 55kW-4 | 150UHB-FX-AH-121-25.5 | 121 | 25.5 | 22kW-6 | ||||||
| 150UHB-FX-AH-195-54 | 195 | 54 | 75kW-4 | 150UHB-FX-AH-131-24.5 | 131 | 24.5 | 22kW-6 | ||||||
| 150UHB-FX-AH-200-60 | 200 | 60 | 75kW-4 | 150UHB-FX-AH-135-27 | 135 | 27 | 22kW-6 | ||||||
| 150UHB-FX-AH-215-57 | 215 | 57 | 75kW-4 | 150UHB-FX-AH-145-26 | 145 | 26 | 30kW-6 | ||||||
| 200UHB-FX | 200 × 150 | 260 ~ 410 | 15 ~ 40 | 200UHB-FX-280-20 | 280 | 20 | 37kW-4 | 175 ~ 277 | 6.5 ~ 18 | 200UHB-FX-190-9 | 190 | 9 | 15kW-6 |
| 200UHB-FX-290-27 | 290 | 27 | 45kW-4 | 200UHB-FX-195-12 | 195 | 12 | 18.5kW-6 | ||||||
| 200UHB-FX-290-34 | 290 | 34 | 55kW-4 | 200UHB-FX-195-15.5 | 195 | 15.5 | 22kW-6 | ||||||
| 200UHB-FX-300-22 | 300 | 22 | 37kW-4 | 200UHB-FX-200-10 | 200 | 10 | 15kW-6 | ||||||
| 200UHB-FX-310-30 | 310 | 30 | 55kW-4 | 200UHB-FX-209-13.5 | 209 | 13.5 | 18.5kW-6 | ||||||
| 200UHB-FX-310-38 | 310 | 38 | 75kW-4 | 200UHB-FX-209-17 | 209 | 17 | 30kW-6 | ||||||
| 200UHB-FX-330-18 | 330 | 18 | 30kW-4 | 200UHB-FX-223-8 | 223 | 8 | 15kW-6 | ||||||
| 200UHB-FX-330-25 | 330 | 25 | 45kW-4 | 200UHB-FX-223-11 | 223 | 11 | 18.5kW-6 | ||||||
| 200UHB-FX-330-32 | 330 | 32 | 55kW-4 | 200UHB-FX-223-14.5 | 223 | 14.5 | 22kW-6 | ||||||
| 200UHB-FX-350-20 | 350 | 20 | 37kW-4 | 200UHB-FX-236-9 | 236 | 9 | 15kW-6 | ||||||
| 200UHB-FX-350-28 | 350 | 28 | 55kW-4 | 200UHB-FX-236-12.5 | 236 | 12.5 | 18.5kW-6 | ||||||
| 200UHB-FX-350-36 | 350 | 36 | 75kW-4 | 200UHB-FX-236-16 | 236 | 16 | 30kW-6 | ||||||
| 200UHB-FX-370-30 | 370 | 30 | 75kW-4 | 200UHB-FX-250-13.5 | 250 | 13.5 | 22kW-6 | ||||||
| 200UHB-FX-375-23 | 375 | 23 | 45kW-4 | 200UHB-FX-253-10.5 | 253 | 10.5 | 18.5kW-6 | ||||||
| 200UHB-FX-380-16 | 380 | 16 | 37kW-4 | 200UHB-FX-256-7 | 256 | 7 | 15kW-6 | ||||||
| 200UHB-FX-380-25.5 | 380 | 25.5 | 55kW-4 | 200UHB-FX-256-11.5 | 256 | 11.5 | 22kW-6 | ||||||
| 200UHB-FX-385-34 | 385 | 34 | 75kW-4 | 200UHB-FX-260-15.5 | 260 | 15.5 | 30kW-6 | ||||||
| 200UHB-FX-400-18 | 400 | 18 | 45kW-4 | 200UHB-FX-270-8 | 270 | 8 | 15kW-6 | ||||||
| 规格 | 进口× | 额定转速 1450r/min | 额定转速 980r/min | ||||||||||
|---|---|---|---|---|---|---|---|---|---|---|---|---|---|
| 流量 范围 m3/h | 扬程 范围 m | 参考型号 | 流量 m3/h | 范围 | 配备 电机 | 流量 范围 m3/h | 扬程 范围 m | 参考型号 | 流量 m3/h | 扬程 m | 配备电机 | ||
| 200UHB-FX-AH | 200 × 150 | 270 ~ 420 | 48 ~ 67 | 200UHB-FX-AH-290-58 | 290 | 58 | 90kW-4 | 182 ~ 283 | 21.5 ~ 30.5 | 200UHB-FX-AH-195-26 | 195 | 26 | 37kW-6 |
| 200UHB-FX-AH-300-65 | 300 | 65 | 110kW-4 | 200UHB-FX-AH-200-29.5 | 200 | 29.5 | 37kW-6 | ||||||
| 200UHB-FX-AH-320-55 | 320 | 55 | 110kW-4 | 200UHB-FX-AH-216-25 | 216 | 25 | 37kW-6 | ||||||
| 200UHB-FX-AH-350-60 | 350 | 60 | 110kW-4 | 200UHB-FX-AH-236-27 | 236 | 27 | 45kW-6 | ||||||
| 200UHB-FX-AH-360-50 | 360 | 50 | 110kW-4 | 200UHB-FX-AH-245-22.5 | 245 | 22.5 | 37kW-6 | ||||||
| 200UHB-FX-AH-400-53 | 400 | 53 | 110kW-4 | 200UHB-FX-AH-270-24 | 270 | 24 | 45kW-6 | ||||||
| 250UHB-FX-L | 250 × 200 | 380 ~ 500 | 18 ~ 35 | 250UHB-FX-L-400-19 | 400 | 19 | 45kW-4 | 256 ~ 340 | 7 ~ 15 | 250UHB-FX-L-270-8.5 | 270 | 8.5 | 15kW-6 |
| 250UHB-FX-L-400-27 | 400 | 27 | 75kW-4 | 250UHB-FX-L-270-12 | 270 | 12 | 22kW-6 | ||||||
| 250UHB-FX-L-410-34 | 410 | 34 | 75kW-4 | 250UHB-FX-L-275-15.5 | 275 | 15.5 | 30kW-6 | ||||||
| 250UHB-FX-L-420-22 | 420 | 22 | 55kW-4 | 250UHB-FX-L-285-10 | 285 | 10 | 18.5kW-6 | ||||||
| 250UHB-FX-L-440-30 | 440 | 30 | 75kW-4 | 250UHB-FX-L-295-13.5 | 295 | 13.5 | 30kW-6 | ||||||
| 250UHB-FX-L-460-17 | 460 | 17 | 45kW-4 | 250UHB-FX-L-310-7.5 | 310 | 7.5 | 15kW-6 | ||||||
| 250UHB-FX-L-460-25 | 460 | 25 | 75kW-4 | 250UHB-FX-L-310-11 | 310 | 11 | 22kW-6 | ||||||
| 250UHB-FX-L-460-32 | 460 | 32 | 75kW-4 | 250UHB-FX-L-310-14.5 | 310 | 14.5 | 30kW-6 | ||||||
| 250UHB-FX-DL | 250 x 200 | 450 ~ 680 | 20 ~ 38 | 250UHB-FX-DL-400-35 | 400 | 35 | 75kW-4 | 260 ~ 450 | 8 ~ 17 | 250UHB-FX-DL-270-16 | 270 | 16 | 30kW-6 |
| 250UHB-FX-DL-450-33 | 450 | 33 | 75kW-4 | 250UHB-FX-DL-304-15 | 304 | 15 | 30kW-6 | ||||||
| 250UHB-FX-DL-500-30 | 500 | 30 | 75kW-4 | 250UHB-FX-DL-335-14 | 335 | 14 | 30kW-6 | ||||||
| 250UHB-FX-DL-520-25 | 520 | 25 | 75kW-4 | 250UHB-FX-DL-350-11.5 | 350 | 12 | 22kW-6 | ||||||
| 250UHB-FX-DL-550-28 | 550 | 28 | 75kW-4 | 250UHB-FX-DL-375-12.5 | 375 | 13 | 30kW-6 | ||||||
| 250UHB-FX-DL-560-22 | 560 | 22 | 75kW-4 | 250UHB-FX-DL-370-10 | 370 | 10 | 22kW-6 | ||||||
| 250UHB-FX-DL-600-20 | 600 | 20 | 75kW-4 | 250UHB-FX-DL-400-9 | 400 | 9 | 22kW-6 | ||||||
| 250UHB-FX | 250 × 200 | 450 ~ 740 | 15 ~ 50 | 250UHB-FX-480-19.5 | 480 | 19.5 | 45kW-4 | 304 ~ 500 | 6.5 ~ 22.5 | 250UHB-FX-325-8.5 | 325 | 8.5 | 18.5kW-6 |
| 250UHB-FX-480-23.5 | 480 | 23.5 | 55kW-4 | 250UHB-FX-325-10.5 | 325 | 10.5 | 18.5kW-6 | ||||||
| 250UHB-FX-500-22 | 500 | 22 | 55kW-4 | 250UHB-FX-340-10 | 340 | 10 | 18.5kW-6 | ||||||
| 250UHB-FX-500-34 | 500 | 34 | 90kW-4 | 250UHB-FX-340-15.5 | 340 | 15.5 | 30kW-6 | ||||||
| 250UHB-FX-500-43 | 500 | 43 | 110kW-4 | 250UHB-FX-335-19.5 | 335 | 19.5 | 37kW-6 | ||||||
| 250UHB-FX-520-27.5 | 520 | 27.5 | 75kW-4 | 250UHB-FX-350-12.5 | 350 | 12.5 | 22kW-6 | ||||||
| 250UHB-FX-520-39 | 520 | 39 | 90kW-4 | 250UHB-FX-350-17.5 | 350 | 17.5 | 37kW-6 | ||||||
| 250UHB-FX-520-49 | 520 | 49 | 132kW-4 | 250UHB-FX-350-22 | 350 | 22 | 45kW-6 | ||||||
| 250UHB-FX-550-18 | 550 | 18 | 45kW-4 | 250UHB-FX-370-8 | 370 | 8 | 18.5kW-6 | ||||||
| 250UHB-FX-550-22 | 550 | 22 | 55kW-4 | 250UHB-FX-370-10 | 370 | 10 | 22kW-6 | ||||||
| 250UHB-FX-560-32 | 560 | 32 | 90kW-4 | 250UHB-FX-380-14.5 | 380 | 14.5 | 30kW-6 | ||||||
| 250UHB-FX-565-40 | 565 | 40 | 110kW-4 | 250UHB-FX-380-18 | 380 | 18 | 37kW-6 | ||||||
| 250UHB-FX-600-20 | 600 | 20 | 55kW-4 | 250UHB-FX-405-9 | 405 | 9 | 22kW-6 | ||||||
| 250UHB-FX-600-26 | 600 | 26 | 75kW-4 | 250UHB-FX-405-11.5 | 405 | 11.5 | 30kW-6 | ||||||
| 250UHB-FX-600-32 | 600 | 32 | 90kW-4 | 250UHB-FX-405-14.5 | 405 | 14.5 | 37kW-6 | ||||||
| 250UHB-FX-600-34 | 600 | 34 | 90kW-4 | 250UHB-FX-405-15.5 | 405 | 15.5 | 37kW-6 | ||||||
| 250UHB-FX-600-36 | 600 | 36 | 110kW-4 | 250UHB-FX-405-16 | 405 | 16 | 37kW-6 | ||||||
| 250UHB-FX-600-45 | 600 | 45 | 132kW-4 | 250UHB-FX-405-20.5 | 405 | 20.5 | 45kW-6 | ||||||
| 250UHB-FX-620-16 | 620 | 16 | 55kW-4 | 250UHB-FX-420-7 | 420 | 7 | 18.5kW-6 | ||||||
| 250UHB-FX-620-30 | 620 | 30 | 90kW-4 | 250UHB-FX-420-13.5 | 420 | 13.5 | 37kW-6 | ||||||
| 250UHB-FX-620-36 | 620 | 36 | 110kW-4 | 250UHB-FX-420-16 | 420 | 16 | 37kW-6 | ||||||
| 250UHB-FX-660-42 | 660 | 42 | 132kW-4 | 250UHB-FX-445-19 | 445 | 19 | 45kW-6 | ||||||
| 250UHB-FX-670-30 | 670 | 30 | 110kW-4 | 250UHB-FX-450-13.5 | 450 | 13.5 | 37kW-6 | ||||||
| 250UHB-FX-670-34 | 670 | 34 | 110kW-4 | 250UHB-FX-455-15.5 | 455 | 15.5 | 37kW-6 | ||||||
| 250UHB-FX-680-23 | 680 | 23 | 75kW-4 | 250UHB-FX-459-10.5 | 459 | 10.5 | 30kW-6 | ||||||
| 250UHB-FX-700-18 | 700 | 18 | 75kW-4 | 250UHB-FX-475-8 | 475 | 8 | 22kW-6 | ||||||
| 250UHB-FX-700-32 | 700 | 32 | 110kW-4 | 250UHB-FX-475-14.5 | 475 | 14.5 | 37kW-6 | ||||||
| 250UHB-FX-720-28 | 720 | 28 | 110kW-4 | 250UHB-FX-485-12.5 | 485 | 12.5 | 37kW-6 | ||||||
| 300UHB-FX-L | 300 × 250 | 500 ~ 900 | 15 ~ 55 | 300UHB-FX-L-550-55 | 550 | 55 | 160kW-4 | 360 ~ 600 | 6.5 ~ 25 | 300UHB-FX-L-370-25 | 370 | 25 | 55kW-6 |
| 300UHB-FX-L-625-20 | 625 | 20 | 75kW-4 | 300UHB-FX-L-422-9 | 422 | 9 | 22kW-6 | ||||||
| 300UHB-FX-L-650-48 | 650 | 48 | 160kW-4 | 300UHB-FX-L-440-21.5 | 440 | 21.5 | 55kW-6 | ||||||
| 300UHB-FX-L-650-53 | 650 | 53 | 160kW-4 | 300UHB-FX-L-440-24 | 440 | 24 | 55kW-6 | ||||||
| 300UHB-FX-L-680-21.5 | 680 | 21.5 | 75kW-4 | 300UHB-FX-L-459-9.5 | 459 | 9.5 | 30kW-6 | ||||||
| 300UHB-FX-L-700-46 | 700 | 46 | 160kW-4 | 300UHB-FX-L-475-21 | 475 | 21 | 55kW-6 | ||||||
| 300UHB-FX-L-750-18 | 750 | 18 | 75kW-4 | 300UHB-FX-L-506-8 | 506 | 8 | 22kW-6 | ||||||
| 300UHB-FX-L-750-50 | 750 | 50 | 185kW-4 | 300UHB-FX-L-510-22 | 510 | 22 | 75kW-6 | ||||||
| 300UHB-FX-L-780-40 | 780 | 40 | 160kW-4 | 300UHB-FX-L-525-18 | 525 | 18 | 75kW-6 | ||||||
| 300UHB-FX-L-800-20 | 800 | 20 | 75kW-4 | 300UHB-FX-L-540-9 | 540 | 9 | 30kW-6 | ||||||
| 300UHB-FX-L-800-23.5 | 800 | 23.5 | 90kW-4 | 300UHB-FX-L-540-10.5 | 540 | 10.5 | 37kW-6 | ||||||
| 300UHB-FX-L-800-32 | 800 | 32 | 132kW-4 | 300UHB-FX-L-540-14.5 | 540 | 14.5 | 45kW-6 | ||||||
| 300UHB-FX-L-820-45 | 820 | 45 | 185kW-4 | 300UHB-FX-L-550-20 | 550 | 20 | 75kW-6 | ||||||
| 300UHB-FX-L-840-16 | 840 | 16 | 75kW-4 | 300UHB-FX-L-567-7 | 567 | 7 | 22kW-6 | ||||||
| 300UHB-FX-L-880-18.5 | 880 | 18.5 | 75kW-4 | 300UHB-FX-L-594-8 | 594 | 8 | 30kW-6 | ||||||
| 300UHB-FX-L-880-28 | 880 | 28 | 110kW-4 | 300UHB-FX-L-594-12.5 | 594 | 12.5 | 45kW-6 | ||||||
注:1. 表中轴功率为密度ρ=1时的轴功率,配备电机功率的选用应大于轴功率×ρ(介质密度);
3. 本公司保留修正、调整性能参数的权利,恕不另行通知。
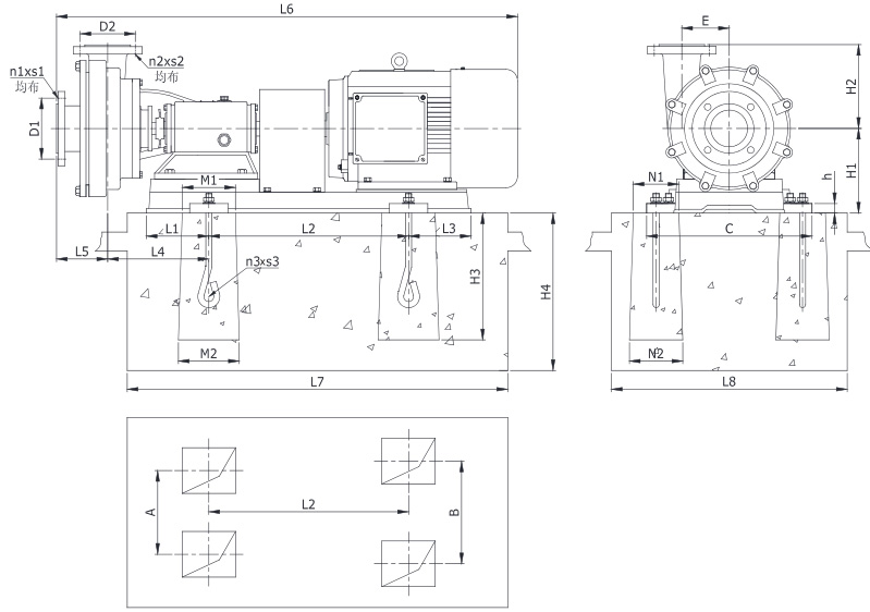
8.1 泵的出口在左侧(从进口方向看)

| 型号 | 配套电机 | A | B | C | E | H1 | H2 | L1 | L2 | L3 | L4 | L5 | L6 | h | n3×s3 | D1 | n1×s1 | D2 | n2×s2 | M1 | M2 | N1 | N2 | H3 | L7 | L8 | H4 | kg 重量 |
|---|---|---|---|---|---|---|---|---|---|---|---|---|---|---|---|---|---|---|---|---|---|---|---|---|---|---|---|---|
| 32UHB-FX | 0.75-1.1KW-2 0.75kW-4 | 260 | 260 | 315 | 78 | 160 | 170 | 100 | 335 | 100 | 210 | 115 | 775 | 10 | 4-M12×300 | 100 | 4×φ18 | 85 | 4×φ14 | 140 | 170 | 120 | 150 | 350 | 700 | 500 | 450 | 100 |
| 1.5~2.2kW-2 | 260 | 260 | 315 | 78 | 165 | 170 | 100 | 335 | 100 | 210 | 115 | 800 | 10 | 4-M12×300 | 100 | 4×φ18 | 85 | 4×φ14 | 140 | 170 | 120 | 150 | 350 | 700 | 500 | 450 | 110 | |
| 40UHB-FX | 0.75KW-4 | 260 | 260 | 315 | 86 | 165 | 180 | 100 | 335 | 100 | 230 | 120 | 800 | 10 | 4-M12×300 | 110 | 4×φ18 | 100 | 4×φ18 | 140 | 170 | 120 | 150 | 350 | 800 | 500 | 450 | 100 |
| 2.2KW-2 | 260 | 260 | 315 | 86 | 165 | 180 | 100 | 335 | 100 | 230 | 120 | 840 | 10 | 4-M12×300 | 110 | 4×φ18 | 100 | 4×φ18 | 140 | 170 | 120 | 150 | 350 | 800 | 500 | 450 | 115 | |
| 3kW-2 | 260 | 260 | 315 | 86 | 170 | 180 | 120 | 335 | 120 | 245 | 120 | 900 | 10 | 4-M12×300 | 110 | 4×φ18 | 100 | 4×φ18 | 140 | 170 | 120 | 150 | 350 | 800 | 500 | 450 | 120 |
| 型号 | 配套电机 | A | B | C | E | H1 | H2 | L1 | L2 | L3 | L4 | L5 | L6 | h | n3×s3 | D1 | n1×s1 | D2 | n2×s2 | M1 | M2 | N1 | N2 | H3 | L7 | L8 | H4 | kg 重量 |
|---|---|---|---|---|---|---|---|---|---|---|---|---|---|---|---|---|---|---|---|---|---|---|---|---|---|---|---|---|
| 50UHB-FX | 0.75KW-4 | 320 | 320 | 380 | 95 | 210 | 195 | 160 | 400 | 160 | 265 | 130 | 910 | 10 | 4-M12×300 | 125 | 4×φ18 | 110 | 4×φ18 | 140 | 170 | 120 | 150 | 350 | 870 | 600 | 450 | 120 |
| 1.1kW-4 | 320 | 320 | 380 | 95 | 210 | 195 | 160 | 400 | 160 | 265 | 130 | 960 | 10 | 4-M12×300 | 125 | 4×φ18 | 110 | 4×φ18 | 140 | 170 | 120 | 150 | 350 | 870 | 600 | 450 | 125 | |
| 3kW-2 | 320 | 320 | 380 | 95 | 210 | 195 | 160 | 400 | 160 | 265 | 130 | 1000 | 10 | 4-M12×300 | 125 | 4×φ18 | 110 | 4×φ18 | 140 | 170 | 120 | 150 | 350 | 870 | 600 | 450 | 135 | |
| 4kW-2 | 320 | 320 | 380 | 95 | 210 | 195 | 160 | 400 | 160 | 265 | 130 | 1020 | 10 | 4-M12×300 | 125 | 4×φ18 | 110 | 4×φ18 | 140 | 170 | 120 | 150 | 350 | 870 | 600 | 450 | 140 | |
| 5.5~7.5kW-2 | 320 | 320 | 380 | 95 | 210 | 195 | 160 | 400 | 160 | 265 | 130 | 1030 | 10 | 4-M12×300 | 125 | 4×φ18 | 110 | 4×φ18 | 140 | 170 | 120 | 150 | 350 | 870 | 600 | 450 | 150 | |
| 65UHB-FX | 1.1kW-4 | 320 | 320 | 380 | 105 | 210 | 190 | 160 | 400 | 160 | 270 | 125 | 950 | 10 | 4-M12×300 | 145 | 4×φ18 | 125 | 4×φ18 | 140 | 170 | 120 | 150 | 350 | 870 | 600 | 450 | 115 |
| 1.5kW-4 | 320 | 320 | 380 | 105 | 210 | 190 | 160 | 400 | 160 | 270 | 125 | 980 | 10 | 4-M12×300 | 145 | 4×φ18 | 125 | 4×φ18 | 140 | 170 | 120 | 150 | 350 | 870 | 600 | 450 | 120 | |
| 5.5~7.5kW-2 | 320 | 320 | 380 | 105 | 210 | 190 | 160 | 400 | 160 | 270 | 125 | 1070 | 10 | 4-M12×300 | 145 | 4×φ18 | 125 | 4×φ18 | 140 | 170 | 120 | 150 | 350 | 870 | 600 | 450 | 150 | |
| 65UHB-FM-H | 1.1KW-4 | 320 | 320 | 380 | 123 | 210 | 205 | 160 | 400 | 160 | 280 | 140 | 960 | 10 | 4-M12×300 | 145 | 4×φ18 | 125 | 4×φ18 | 140 | 170 | 120 | 150 | 350 | 870 | 600 | 450 | 115 |
| 1.5KW-4 | 320 | 320 | 380 | 123 | 210 | 205 | 160 | 400 | 160 | 280 | 140 | 1000 | 10 | 4-M12×300 | 145 | 4×φ18 | 125 | 4×φ18 | 140 | 170 | 120 | 150 | 350 | 870 | 600 | 450 | 120 | |
| 2.2KW-4 | 320 | 320 | 380 | 123 | 210 | 205 | 160 | 400 | 160 | 280 | 140 | 1015 | 10 | 4-M12×300 | 145 | 4×φ18 | 125 | 4×φ18 | 140 | 170 | 120 | 150 | 350 | 870 | 600 | 450 | 125 | |
| 5.5~7.5kW-2 | 320 | 320 | 380 | 123 | 210 | 205 | 160 | 400 | 160 | 280 | 140 | 1080 | 10 | 4-M12×300 | 145 | 4×φ18 | 125 | 4×φ18 | 140 | 170 | 120 | 150 | 350 | 870 | 600 | 450 | 165 | |
| 11~15kW-2 | 320 | 370 | 435 | 123 | 225 | 205 | 165 | 525 | 165 | 280 | 140 | 1230 | 10 | 4-M16×300 | 145 | 4×φ18 | 125 | 4×φ18 | 140 | 170 | 120 | 150 | 400 | 1050 | 650 | 550 | 220 | |
| 80UHB-FX | 1.1KW-4 | 320 | 320 | 380 | 125 | 210 | 220 | 160 | 400 | 160 | 260 | 135 | 965 | 10 | 4-M12×300 | 160 | 4×φ18 | 145 | 4×φ18 | 140 | 170 | 120 | 150 | 350 | 870 | 600 | 450 | 130 |
| 1.5KW-4 | 320 | 320 | 380 | 125 | 210 | 220 | 160 | 400 | 160 | 260 | 135 | 1005 | 10 | 4-M12×300 | 160 | 4×φ18 | 145 | 4×φ18 | 140 | 170 | 120 | 150 | 350 | 870 | 600 | 450 | 135 | |
| 2.2~3kW-4 | 320 | 320 | 380 | 125 | 210 | 220 | 160 | 400 | 160 | 260 | 135 | 1010 | 10 | 4-M12×300 | 160 | 4×φ18 | 145 | 4×φ18 | 140 | 170 | 120 | 150 | 350 | 870 | 600 | 450 | 140 | |
| 7.5kW-2 | 320 | 320 | 380 | 125 | 210 | 220 | 160 | 400 | 160 | 270 | 135 | 1080 | 10 | 4-M12×300 | 160 | 4×φ18 | 145 | 4×φ18 | 140 | 170 | 120 | 150 | 350 | 870 | 600 | 450 | 175 | |
| 11~15kW-2 | 320 | 370 | 435 | 125 | 225 | 220 | 165 | 525 | 165 | 270 | 135 | 1210 | 10 | 4-M16×300 | 160 | 4×φ18 | 145 | 4×φ18 | 140 | 170 | 120 | 150 | 400 | 1050 | 650 | 550 | 250 | |
| 18.5kW-2 | 320 | 370 | 435 | 125 | 225 | 220 | 165 | 570 | 165 | 270 | 135 | 1260 | 10 | 4-M16×300 | 160 | 4×φ18 | 145 | 4×φ18 | 140 | 170 | 120 | 150 | 400 | 1100 | 650 | 550 | 275 | |
| 22KW-2 | 395 | 485 | 555 | 125 | 285 | 220 | 210 | 670 | 210 | 245 | 140 | 1380 | 10 | 4-M16×300 | 160 | 4×φ18 | 145 | 4×φ18 | 140 | 170 | 120 | 150 | 400 | 1300 | 850 | 550 | 350 | |
| 100UHB-FX | 2.2~3kW-4 | 400 | 400 | 475 | 130 | 280 | 230 | 190 | 550 | 190 | 305 | 135 | 1335 | 20 | 4-M16×300 | 180 | 8×φ18 | 160 | 4×φ18 | 140 | 170 | 120 | 150 | 400 | 1300 | 850 | 550 | 230 |
| 4kW-4 | 400 | 400 | 475 | 130 | 280 | 230 | 190 | 550 | 190 | 305 | 135 | 1335 | 20 | 4-M16×300 | 180 | 8×φ18 | 160 | 4×φ18 | 140 | 170 | 120 | 150 | 400 | 1300 | 850 | 550 | 245 | |
| 5.5kW-4 | 400 | 400 | 475 | 130 | 280 | 230 | 190 | 550 | 190 | 305 | 135 | 1335 | 20 | 4-M16×300 | 180 | 8×φ18 | 160 | 4×φ18 | 140 | 170 | 120 | 150 | 400 | 1300 | 850 | 550 | 270 | |
| 11~15kW-2 | 410 | 460 | 530 | 130 | 280 | 230 | 190 | 705 | 190 | 305 | 135 | 1390 | 20 | 4-M16×300 | 180 | 8×φ18 | 160 | 4×φ18 | 140 | 170 | 120 | 150 | 400 | 1300 | 850 | 550 | 320 | |
| 18.5kW-2 | 410 | 460 | 530 | 130 | 280 | 230 | 190 | 705 | 190 | 305 | 135 | 1430 | 20 | 4-M16×300 | 180 | 8×φ18 | 160 | 4×φ18 | 140 | 170 | 120 | 150 | 400 | 1300 | 850 | 550 | 350 | |
| 22kW-2 | 410 | 460 | 530 | 130 | 280 | 230 | 190 | 705 | 190 | 305 | 135 | 1500 | 20 | 4-M16×300 | 180 | 8×φ18 | 160 | 4×φ18 | 140 | 170 | 120 | 150 | 400 | 1300 | 850 | 550 | 380 | |
| 30~37kW-2 | 395 | 485 | 555 | 130 | 305 | 230 | 210 | 670 | 210 | 335 | 135 | 1520 | 20 | 4-M16×300 | 180 | 8×φ18 | 160 | 4×φ18 | 140 | 170 | 120 | 150 | 400 | 1300 | 850 | 550 | 460 | |
| 125UHB-FX | 4kW-4 | 400 | 400 | 475 | 131 | 280 | 210 | 190 | 550 | 190 | 315 | 155 | 1360 | 20 | 4-M16×300 | 210 | 8×φ18 | 180 | 4×φ18 | 140 | 170 | 120 | 150 | 400 | 1300 | 850 | 550 | 260 |
| 5.5KW-4 | 400 | 400 | 475 | 131 | 280 | 210 | 190 | 550 | 190 | 315 | 155 | 1360 | 20 | 4-M16×300 | 210 | 8×φ18 | 180 | 4×φ18 | 140 | 170 | 120 | 150 | 400 | 1300 | 850 | 550 | 260 | |
| 22kW-2 | 410 | 460 | 530 | 131 | 280 | 210 | 190 | 705 | 190 | 315 | 155 | 1530 | 20 | 4-M16×300 | 210 | 8×φ18 | 180 | 4×φ18 | 140 | 170 | 120 | 150 | 400 | 1300 | 850 | 550 | 260 | |
| 30~37kW-2 | 395 | 485 | 555 | 131 | 305 | 210 | 210 | 670 | 210 | 345 | 155 | 1560 | 20 | 4-M16×300 | 210 | 8×φ18 | 180 | 4×φ18 | 140 | 170 | 120 | 150 | 400 | 1300 | 850 | 550 | 260 |
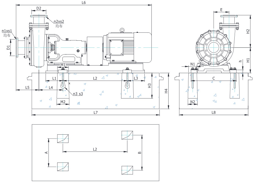
8.2 泵的出口在右侧(从进口方向看)

| 型号 | 配套电机 | A | B | C | E | H1 | H2 | L1 | L2 | L3 | L4 | L5 | L6 | h | n3-s3 | D1 | n1×s1 | D2 | n2×s2 | M1 | M2 | N1 | N2 | H3 | L7 | L8 | H4 | kg 重量 |
|---|---|---|---|---|---|---|---|---|---|---|---|---|---|---|---|---|---|---|---|---|---|---|---|---|---|---|---|---|
| 80UHB-FX-II | 3KW-6 | 425 | 365 | 495 | 187 | 300 | 365 | 200 | 600 | 200 | 355 | 135 | 1395 | 20 | 4-M20×300 | 160 | 8×M16 | 145 | 4×φ18 | 160 | 190 | 120 | 150 | 450 | 1200 | 700 | 650 | 340 |
| 7.5kW-4 | 425 | 365 | 495 | 187 | 300 | 365 | 200 | 600 | 200 | 355 | 135 | 1420 | 20 | 4-M20×300 | 160 | 8×M16 | 145 | 4×φ18 | 160 | 190 | 120 | 150 | 450 | 1200 | 700 | 650 | 350 | |
| 4KW-6 | ||||||||||||||||||||||||||||
| 11kW-4 | 460 | 460 | 530 | 187 | 300 | 365 | 210 | 800 | 210 | 315 | 135 | 1470 | 20 | 4-M20×300 | 160 | 8×M16 | 145 | 4×φ18 | 160 | 190 | 120 | 150 | 450 | 1500 | 750 | 650 | 450 | |
| 80UHB-FX-M | 4KW-6 5.5KW-6 | 510 | 510 | 580 | 240 | 370 | 430 | 250 | 850 | 190 | 350 | 275 | 1700 | 20 | 4-M20×300 | 160 | 4×φ18 | 145 | 4×φ18 | 160 | 190 | 120 | 150 | 450 | 1600 | 1000 | 650 | 550 |
| 11KW-4 7.5KW-6 | 510 | 510 | 580 | 240 | 370 | 430 | 250 | 850 | 190 | 350 | 275 | 1680 | 20 | 4-M20×300 | 160 | 4×φ18 | 145 | 4×φ18 | 160 | 190 | 120 | 150 | 450 | 1600 | 1000 | 650 | 600 | |
| 15KW-4 11KW-6 | 510 | 510 | 580 | 240 | 370 | 430 | 250 | 850 | 190 | 350 | 275 | 1750 | 20 | 4-M20×300 | 160 | 4×φ18 | 145 | 4×φ18 | 160 | 190 | 120 | 150 | 450 | 1600 | 1000 | 650 | 610 | |
| 18.5kW-4 | 510 | 510 | 580 | 240 | 370 | 430 | 250 | 850 | 190 | 350 | 275 | 1765 | 20 | 4-M20×300 | 160 | 4×φ18 | 145 | 4×φ18 | 160 | 190 | 120 | 150 | 450 | 1600 | 1000 | 650 | 650 | |
| 22kW-4 | 510 | 510 | 580 | 240 | 370 | 430 | 250 | 850 | 190 | 350 | 275 | 1800 | 20 | 4-M20×300 | 160 | 4×φ18 | 145 | 4×φ18 | 160 | 190 | 120 | 150 | 450 | 1600 | 1000 | 650 | 665 | |
| 30KW-4 | 510 | 510 | 580 | 240 | 370 | 430 | 250 | 850 | 190 | 350 | 275 | 1850 | 20 | 4-M20×300 | 160 | 4×φ18 | 145 | 4×φ18 | 160 | 190 | 120 | 150 | 450 | 1600 | 1000 | 650 | 700 | |
| 100UHB-FX-II | 5.5KW-6 | 425 | 365 | 495 | 200 | 300 | 390 | 200 | 600 | 200 | 355 | 150 | 1420 | 20 | 4-M20×300 | 180 | 8×M16 | 160 | 4×φ18 | 160 | 190 | 120 | 150 | 450 | 1200 | 700 | 650 | 350 |
| 15kW-4 7.5KW-6 | 460 | 460 | 530 | 200 | 300 | 390 | 210 | 800 | 210 | 320 | 150 | 1540 | 20 | 4-M20×300 | 180 | 8×M16 | 160 | 4×φ18 | 160 | 190 | 120 | 150 | 450 | 1500 | 750 | 650 | 450 | |
| 18.5KW-4 | 460 | 460 | 530 | 200 | 300 | 390 | 210 | 800 | 210 | 320 | 150 | 1560 | 20 | 4-M20×300 | 180 | 8×M16 | 160 | 4×φ18 | 160 | 190 | 120 | 150 | 450 | 1500 | 750 | 650 | 480 | |
| 22kW-4 | 460 | 460 | 530 | 200 | 300 | 390 | 210 | 800 | 210 | 320 | 150 | 1605 | 20 | 4-M20×300 | 180 | 8×M16 | 160 | 4×φ18 | 160 | 190 | 120 | 150 | 450 | 1500 | 750 | 650 | 500 |
| 型号 | 配套电机 | A | B | C | E | H1 | H2 | L1 | L2 | L3 | L4 | L5 | L6 | h | n3×s3 | D1 | n1×s1 | D2 | n2×s2 | M1 | M2 | N1 | N2 | H3 | L7 | L8 | H4 | kg 重量 |
|---|---|---|---|---|---|---|---|---|---|---|---|---|---|---|---|---|---|---|---|---|---|---|---|---|---|---|---|---|
| 100UHB FX-M | 7.5KW-6 | 510 | 510 | 580 | 250 | 370 | 440 | 250 | 850 | 190 | 360 | 275 | 1685 | 20 | 4-M20×300 | 180 | 8×φ18 | 160 | 4×φ18 | 160 | 190 | 120 | 150 | 450 | 1600 | 1000 | 650 | 580 |
| 11KW-6 | 510 | 510 | 580 | 250 | 370 | 440 | 250 | 850 | 190 | 360 | 275 | 1730 | 20 | 4-M20×300 | 180 | 8×φ18 | 160 | 4×φ18 | 160 | 190 | 120 | 150 | 450 | 1600 | 1000 | 650 | 600 | |
22KW-4 15kW-6 | 510 | 510 | 580 | 250 | 370 | 440 | 250 | 850 | 190 | 360 | 275 | 1830 | 20 | 4-M20×300 | 180 | 8×φ18 | 160 | 4×φ18 | 160 | 190 | 120 | 150 | 450 | 1600 | 1000 | 650 | 655 | |
| 30kW-4 | 510 | 510 | 580 | 250 | 370 | 440 | 250 | 850 | 190 | 360 | 275 | 1885 | 20 | 4-M20×300 | 180 | 8×φ18 | 160 | 4×φ18 | 160 | 190 | 120 | 150 | 450 | 1600 | 1000 | 650 | 700 | |
| 37kW-4 | 510 | 610 | 700 | 250 | 370 | 440 | 250 | 935 | 250 | 360 | 275 | 1920 | 20 | 4-M20×300 | 180 | 8×φ18 | 160 | 4×φ18 | 160 | 190 | 120 | 150 | 450 | 1800 | 1100 | 650 | 750 | |
| 45kW-4 | 510 | 610 | 700 | 250 | 370 | 440 | 250 | 935 | 250 | 360 | 275 | 1945 | 20 | 4-M20×300 | 180 | 8×φ18 | 160 | 4×φ18 | 160 | 190 | 120 | 150 | 450 | 1800 | 1100 | 650 | 900 | |
| 125UHB-FX-II | 11KW-6 | 460 | 460 | 530 | 200 | 300 | 390 | 210 | 800 | 210 | 325 | 150 | 1525 | 20 | 4-M20×300 | 210 | 8×M16 | 180 | 8×φ18 | 160 | 190 | 120 | 150 | 450 | 1500 | 750 | 650 | 450 |
| 18.5kW-4 | 460 | 460 | 530 | 200 | 300 | 390 | 210 | 800 | 210 | 325 | 150 | 1570 | 20 | 4-M20×300 | 210 | 8×M16 | 180 | 8×φ18 | 160 | 190 | 120 | 150 | 450 | 1500 | 750 | 650 | 650 | |
22kW-4 15kW-6 | 460 | 460 | 530 | 200 | 300 | 390 | 210 | 800 | 210 | 325 | 150 | 1610 | 20 | 4-M20×300 | 210 | 8×M16 | 180 | 8×φ18 | 160 | 190 | 120 | 150 | 450 | 1500 | 750 | 650 | 660 | |
| 30KW-4 | 420 | 536 | 606 | 200 | 335 | 390 | 250 | 700 | 300 | 350 | 150 | 1635 | 20 | 4-M20×300 | 210 | 8×M16 | 180 | 8×φ18 | 160 | 190 | 120 | 150 | 450 | 1500 | 850 | 650 | 700 | |
| 125UHB-FX-M | 11kW-6 | 510 | 510 | 580 | 240 | 370 | 440 | 250 | 850 | 190 | 370 | 320 | 1800 | 20 | 4-M20×300 | 210 | 8×φ18 | 180 | 8×φ18 | 160 | 190 | 120 | 150 | 450 | 1600 | 1000 | 650 | 610 |
| 15kW-6 | 510 | 510 | 580 | 240 | 370 | 440 | 250 | 850 | 190 | 370 | 320 | 1830 | 20 | 4-M20×300 | 210 | 8×φ18 | 180 | 8×φ18 | 160 | 190 | 120 | 150 | 450 | 1600 | 1000 | 650 | 650 | |
| 18.5KW-6 | 510 | 510 | 580 | 240 | 370 | 440 | 250 | 850 | 190 | 370 | 320 | 1910 | 20 | 4-M20×300 | 210 | 8×φ18 | 180 | 8×φ18 | 160 | 190 | 120 | 150 | 450 | 1600 | 1000 | 650 | 700 | |
| 37~45kW-4 | 510 | 610 | 700 | 240 | 370 | 440 | 250 | 935 | 250 | 370 | 320 | 1980 | 20 | 4-M20×300 | 210 | 8×φ18 | 180 | 8×φ18 | 160 | 190 | 120 | 150 | 450 | 1800 | 1100 | 650 | 900 | |
| 55KW-4 | 510 | 630 | 745 | 240 | 390 | 440 | 245 | 1000 | 245 | 370 | 320 | 2030 | 20 | 4-M20×300 | 210 | 8×φ18 | 180 | 8×φ18 | 160 | 190 | 120 | 150 | 450 | 1900 | 1100 | 650 | 950 | |
| 150UHB-FX | 7.5KW-6 | 510 | 510 | 580 | 223 | 370 | 470 | 250 | 850 | 190 | 350 | 330 | 1750 | 20 | 4-M20×300 | 240 | 8×φ22 | 210 | 8×φ18 | 160 | 190 | 120 | 150 | 450 | 1600 | 1000 | 650 | 600 |
| 11kW-6 | 510 | 510 | 580 | 223 | 370 | 470 | 250 | 850 | 190 | 350 | 330 | 1780 | 20 | 4-M20×300 | 240 | 8×φ22 | 210 | 8×φ18 | 160 | 190 | 120 | 150 | 450 | 1600 | 1000 | 650 | 625 | |
| 18.5KW-4 | 510 | 510 | 580 | 223 | 370 | 470 | 250 | 850 | 190 | 350 | 330 | 1800 | 20 | 4-M20×300 | 240 | 8×φ22 | 210 | 8×φ18 | 160 | 190 | 120 | 150 | 450 | 1600 | 1000 | 650 | 650 | |
| 22kW-4 15kW-6 | 510 | 510 | 580 | 223 | 370 | 470 | 250 | 850 | 190 | 350 | 330 | 1850 | 20 | 4-M20×300 | 240 | 8×φ22 | 210 | 8×φ18 | 160 | 190 | 120 | 150 | 450 | 1600 | 1000 | 650 | 700 | |
| 30kW-4 18.5KW-6 | 510 | 510 | 580 | 223 | 370 | 470 | 250 | 850 | 190 | 350 | 330 | 1900 | 20 | 4-M20×300 | 240 | 8×φ22 | 210 | 8×φ18 | 160 | 190 | 120 | 150 | 450 | 1600 | 1000 | 650 | 750 | |
| 37kW-4 | 510 | 610 | 700 | 223 | 370 | 470 | 250 | 935 | 250 | 350 | 330 | 1950 | 20 | 4-M20×300 | 240 | 8×φ22 | 210 | 8×φ18 | 160 | 190 | 120 | 150 | 450 | 1800 | 1100 | 650 | 880 | |
| 45kW-4 | 510 | 610 | 700 | 223 | 370 | 470 | 250 | 935 | 250 | 350 | 330 | 2000 | 20 | 4-M20×300 | 240 | 8×φ22 | 210 | 8×φ18 | 160 | 190 | 120 | 150 | 450 | 1800 | 1100 | 650 | 920 | |
| 55KW-4 | 510 | 630 | 745 | 223 | 390 | 470 | 245 | 1000 | 245 | 345 | 330 | 2020 | 20 | 4-M20×300 | 240 | 8×φ22 | 210 | 8×φ18 | 160 | 190 | 120 | 150 | 450 | 1900 | 1100 | 650 | 950 | |
| 150UHB FX-AH | 18.5~22KW-6 | 510 | 510 | 580 | 272 | 370 | 500 | 250 | 850 | 250 | 370 | 360 | 1920 | 20 | 4-M20×300 | 240 | 8×φ22 | 210 | 8×φ18 | 160 | 190 | 120 | 150 | 450 | 1600 | 1000 | 650 | 810 |
| 30KW-6 | 510 | 610 | 680 | 272 | 370 | 500 | 250 | 935 | 250 | 370 | 360 | 1985 | 20 | 4-M20×300 | 240 | 8×φ22 | 210 | 8×φ18 | 160 | 190 | 120 | 150 | 450 | 1800 | 1100 | 650 | 885 | |
| 55kW-4 | 510 | 630 | 745 | 272 | 390 | 500 | 245 | 1000 | 245 | 370 | 360 | 2040 | 20 | 4-M20×300 | 240 | 8×φ22 | 210 | 8×φ18 | 160 | 190 | 120 | 150 | 450 | 1900 | 1100 | 650 | 940 | |
| 75kW-4 | 510 | 660 | 745 | 272 | 390 | 500 | 245 | 1000 | 345 | 370 | 360 | 2120 | 20 | 4-M20×300 | 240 | 8×φ22 | 210 | 8×φ18 | 160 | 190 | 120 | 150 | 450 | 2200 | 1000 | 800 | 1180 | |
| 200UHB FX | 15KW-6 | 510 | 510 | 580 | 235 | 370 | 480 | 250 | 850 | 190 | 360 | 340 | 1870 | 20 | 4-M20×300 | 295 | 8×φ22 | 240 | 8×φ22 | 160 | 190 | 120 | 150 | 450 | 1600 | 1000 | 650 | 750 |
| 30KW-4 18.5~22KW-6 | 510 | 510 | 580 | 235 | 370 | 480 | 250 | 850 | 190 | 360 | 340 | 1920 | 20 | 4-M20×300 | 295 | 8×φ22 | 240 | 8×φ22 | 160 | 190 | 120 | 150 | 450 | 1600 | 1000 | 650 | 800 | |
| 37KW-4 | 510 | 610 | 700 | 235 | 370 | 480 | 250 | 935 | 250 | 360 | 340 | 1960 | 20 | 4-M20×300 | 295 | 8×φ22 | 240 | 8×φ22 | 160 | 190 | 120 | 150 | 450 | 1800 | 1100 | 650 | 880 | |
| 45kW-4 30KW-6 | 510 | 610 | 700 | 235 | 370 | 480 | 250 | 935 | 250 | 360 | 340 | 2015 | 20 | 4-M20×300 | 295 | 8×φ22 | 240 | 8×φ22 | 160 | 190 | 120 | 150 | 450 | 1800 | 1100 | 650 | 920 | |
| 55kW-4 | 510 | 630 | 745 | 235 | 390 | 480 | 245 | 1000 | 245 | 360 | 340 | 2040 | 20 | 4-M20×300 | 295 | 8×φ22 | 240 | 8×φ22 | 160 | 190 | 120 | 150 | 450 | 1900 | 1100 | 650 | 980 | |
| 75kW-4 | 510 | 660 | 745 | 235 | 390 | 480 | 245 | 1000 | 345 | 360 | 340 | 2125 | 20 | 4-M20×300 | 295 | 8×φ22 | 240 | 8×φ22 | 160 | 190 | 120 | 150 | 450 | 2200 | 1100 | 800 | 1200 |
| 型号 | 配套电机 | A | B | C | E | H1 | H2 | L1 | L2 | L3 | L4 | L5 | L6 | h | n3×s3 | D1 | n1×s1 | D2 | n2×s2 | M1 | M2 | N1 | N2 | H3 | L7 | L8 | H4 | kg 重量 |
|---|---|---|---|---|---|---|---|---|---|---|---|---|---|---|---|---|---|---|---|---|---|---|---|---|---|---|---|---|
| 200UHB-FX-AH | 37KW-6 | 770 | 770 | 850 | 310 | 655 | 540 | 570 | 1200 | 390 | 450 | 395 | 2415 | 20 | 4-M24×400 | 295 | 8×φ22 | 240 | 8×φ22 | 180 | 210 | 120 | 150 | 550 | 3000 | 1300 | 1000 | 1685 |
| 45KW-6 | 770 | 770 | 850 | 310 | 655 | 540 | 570 | 1200 | 390 | 450 | 395 | 2500 | 20 | 4-M24×400 | 295 | 8×φ22 | 240 | 8×φ22 | 180 | 210 | 120 | 150 | 550 | 3000 | 1300 | 1000 | 1850 | |
| 90kW-4 | 770 | 770 | 850 | 310 | 655 | 540 | 570 | 1200 | 390 | 450 | 395 | 2560 | 20 | 4-M24×400 | 295 | 8×φ22 | 240 | 8×φ22 | 180 | 210 | 120 | 150 | 550 | 3000 | 1300 | 1000 | 1950 | |
| 110kW-4 | 770 | 770 | 850 | 310 | 655 | 540 | 570 | 1200 | 530 | 450 | 395 | 2700 | 20 | 4-M24×400 | 295 | 8×φ22 | 240 | 8×φ22 | 180 | 210 | 120 | 150 | 550 | 3000 | 1300 | 1000 | 2350 | |
| 250UHB-FX-L | 15KW-6 | 510 | 510 | 580 | 235 | 370 | 515 | 250 | 850 | 190 | 360 | 340 | 1910 | 20 | 4-M20×300 | 350 | 12×φ22 | 295 | 8×φ22 | 160 | 190 | 120 | 150 | 450 | 1600 | 1000 | 650 | 685 |
| 18.5~22KW-6 | 510 | 510 | 580 | 235 | 370 | 515 | 250 | 850 | 190 | 360 | 340 | 1960 | 20 | 4-M20×300 | 350 | 12×φ22 | 295 | 8×φ22 | 160 | 190 | 120 | 150 | 450 | 1600 | 1000 | 650 | 770 | |
| 45KW-4 30KW-6 | 510 | 610 | 700 | 235 | 370 | 515 | 250 | 935 | 250 | 360 | 340 | 2050 | 20 | 4-M20×300 | 350 | 12×φ22 | 295 | 8×φ22 | 160 | 190 | 120 | 150 | 450 | 1800 | 1100 | 650 | 920 | |
| 55kW-4 | 510 | 630 | 745 | 235 | 390 | 515 | 245 | 1000 | 245 | 360 | 340 | 2080 | 20 | 4-M20×300 | 350 | 12×φ22 | 295 | 8×φ22 | 160 | 190 | 120 | 150 | 450 | 1900 | 1100 | 650 | 980 | |
| 75kW-4 | 510 | 660 | 750 | 235 | 390 | 515 | 245 | 1000 | 345 | 360 | 340 | 2160 | 20 | 4-M20×300 | 350 | 12×φ22 | 295 | 8×φ22 | 160 | 190 | 120 | 150 | 450 | 2200 | 1100 | 800 | 1200 | |
| 250UHB-FX-DL | 18.5~22KW-6 | 510 | 510 | 580 | 245 | 370 | 480 | 250 | 850 | 250 | 375 | 355 | 1955 | 20 | 4-M20×300 | 350 | 12×φ22 | 295 | 8×φ22 | 180 | 210 | 120 | 150 | 450 | 1600 | 1000 | 650 | 980 |
| 30KW-6 | 510 | 610 | 680 | 245 | 370 | 480 | 250 | 935 | 250 | 380 | 365 | 2050 | 20 | 4-M20×300 | 350 | 12×φ22 | 295 | 8×φ22 | 160 | 190 | 120 | 150 | 450 | 1800 | 1100 | 650 | 1045 | |
| 250UHB-FX | 18.5KW-6 22KW-6 | 770 | 770 | 850 | 310 | 650 | 510 | 570 | 1200 | 390 | 450 | 390 | 2505 | 20 | 4-M24×400 | 350 | 12×φ22 | 295 | 8×φ22 | 180 | 210 | 120 | 150 | 550 | 3000 | 1300 | 1000 | 1535 |
| 45KW-4 30kW-6 | 770 | 770 | 850 | 310 | 650 | 510 | 570 | 1200 | 390 | 450 | 390 | 2505 | 25 | 4-M24×400 | 350 | 12×φ22 | 295 | 8×φ22 | 180 | 210 | 120 | 150 | 550 | 3000 | 1300 | 1000 | 1640 | |
| 55KW-4 37kW-6 | 770 | 770 | 850 | 310 | 650 | 510 | 570 | 1200 | 390 | 450 | 390 | 2505 | 25 | 4-M24×400 | 350 | 12×φ22 | 295 | 8×φ22 | 180 | 210 | 120 | 150 | 550 | 3000 | 1300 | 1000 | 1735 | |
| 75kW-4 45KW-6 | 770 | 770 | 850 | 310 | 650 | 510 | 570 | 1200 | 390 | 450 | 390 | 2540 | 25 | 4-M24×400 | 350 | 12×φ22 | 295 | 8×φ22 | 180 | 210 | 120 | 150 | 550 | 3000 | 1300 | 1000 | 1900 | |
| 90kW-4 | 770 | 770 | 850 | 310 | 650 | 510 | 570 | 1200 | 390 | 450 | 390 | 2600 | 25 | 4-M24×400 | 350 | 12×φ22 | 295 | 8×φ22 | 180 | 210 | 120 | 150 | 550 | 3000 | 1300 | 1000 | 2000 | |
| 110kW-4 | 770 | 770 | 850 | 310 | 650 | 510 | 570 | 1200 | 530 | 450 | 390 | 2740 | 25 | 4-M24×400 | 350 | 12×φ22 | 295 | 8×φ22 | 180 | 210 | 120 | 150 | 550 | 3000 | 1300 | 1000 | 2400 | |
| 132kW-4 | 770 | 770 | 850 | 310 | 650 | 510 | 570 | 1200 | 530 | 450 | 390 | 2775 | 25 | 4-M24×400 | 350 | 12×φ22 | 295 | 8×φ22 | 180 | 210 | 120 | 150 | 550 | 3000 | 1300 | 1000 | 2600 | |
| 300UHB-FX-L | 22KW-6 | 770 | 770 | 850 | 310 | 650 | 525 | 570 | 1200 | 390 | 475 | 425 | 2535 | 25 | 4-M24×400 | 400 | 12×φ22 | 350 | 12×φ22 | 180 | 210 | 120 | 150 | 550 | 3000 | 1300 | 1000 | 1535 |
| 30KW-6 | 770 | 770 | 850 | 310 | 650 | 525 | 570 | 1200 | 390 | 475 | 425 | 2535 | 25 | 4-M24×400 | 400 | 12×φ22 | 350 | 12×φ22 | 180 | 210 | 120 | 150 | 550 | 3000 | 1300 | 1000 | 1640 | |
| 37KW-6 | 770 | 770 | 850 | 310 | 650 | 525 | 570 | 1200 | 390 | 475 | 425 | 2535 | 25 | 4-M24×400 | 400 | 12×φ22 | 350 | 12×φ22 | 180 | 210 | 120 | 150 | 550 | 3000 | 1300 | 1000 | 1735 | |
| 75KW-4 45KW-6 | 770 | 770 | 850 | 310 | 650 | 525 | 570 | 1200 | 390 | 475 | 425 | 2570 | 25 | 4-M24×400 | 400 | 12×φ22 | 350 | 12×φ22 | 180 | 210 | 120 | 150 | 550 | 3000 | 1300 | 1000 | 1900 | |
| 90KW-4 55KW-6 | 770 | 770 | 850 | 310 | 650 | 525 | 570 | 1200 | 390 | 475 | 425 | 2620 | 25 | 4-M24×400 | 400 | 12×φ22 | 350 | 12×φ22 | 180 | 210 | 120 | 150 | 550 | 3000 | 1300 | 1000 | 2000 | |
| 110kW-4 75KW-6 | 770 | 770 | 850 | 310 | 650 | 525 | 570 | 1200 | 530 | 475 | 425 | 2770 | 25 | 4-M24×400 | 400 | 12×φ22 | 350 | 12×φ22 | 180 | 210 | 120 | 150 | 550 | 3000 | 1300 | 1000 | 2400 | |
| 132kW-4 | 770 | 770 | 850 | 310 | 650 | 525 | 570 | 1200 | 530 | 475 | 425 | 2805 | 25 | 4-M24×400 | 400 | 12×φ22 | 350 | 12×φ22 | 180 | 210 | 120 | 150 | 550 | 3000 | 1300 | 1000 | 2500 | |
| 160KW-4 | 770 | 770 | 850 | 310 | 650 | 540 | 570 | 1200 | 530 | 475 | 425 | 2880 | 25 | 4-M24×400 | 400 | 12×φ22 | 350 | 12×φ22 | 180 | 210 | 120 | 150 | 550 | 3000 | 1300 | 1000 | 2600 |
注:1. 表中基础安装尺寸(A/B/L2)保证与泵底座匹配连接;基础土建尺寸(L7/L8/H4)仅供参考,实际施工请以工程设计要求为准。
2. 表中重量为配标准电机时的整机重量。
3. 进出口法兰尺寸引用标准:GB/T 9116-2010 PN 1.0MPa。
4. 此处备注适用于本说明书中所有的安装尺寸及重量表,不再赘述。
5. 本公司保留修正安装尺寸及重量数据的权利,恕不另行通知。
8.3 进出口法兰尺寸 引用标准:GB/T 9116-2010 PN 1.0MPa

9.1 搬运与安装
(1) 泵经长途运输到达工程现场,安装前应检查整机零件是否完好无损,紧固件应予紧固,检查泵轴与电机轴的同心度,如有移位应予以校正。
(2) 搬运时应以泵体及电机上的吊环为着力点,并要轻起轻放,不要有大的震动和撞击。
(3) 泵要安装在宽敞明亮、便于维护的地方,基础要求平整。
(4) 进出口管路的管径不能小于泵的进出口内径。为减少管道流阻、提高输送效率,配管建议大于泵进出口一个等级。
(5) 进出口管路应清理干净,应设重力支撑系统,泵不能承受管路重量,否则容易损坏;
(6) 为方便检修与控制,泵进出口管路都应安装阀门。
(7) 泵进出口应安装补偿器,又称柔性管道接头。其主要作用是补偿输液管路因热涨冷缩或开机震动等原因引起拉伸、挤压、扭曲的应力,从而提高设备的可拆卸性能和使用安全性能。
(8) 出口管路距离长(高)的岗位,应在靠近泵的出口处安装止回阀,以防止停车时出口高压水锤对泵产生破坏力。
(9) 建议先紧固泵进出口与管路的连接螺栓,再紧固泵的地脚螺栓,以防连接管路时对泵产生拉伸应力而损坏泵机。
(10) 泵在安装过程中应经常用手转动联轴器,检查泵内有无摩擦及碰撞的异响。
(11) 泵的进口应尽量靠近液源,推荐采用倒灌工况,吸上工况需配虹吸桶使用;两种常见工况的安装方法
如下图:

倒灌工况(液位高于泵的进口)泵机与管路的安装方法

吸上工况(液位低于泵的进口)泵机、管路与虹吸桶的安装方法
9.2 运行前的检查
(1) 运行前应先用手盘动联轴器,检查运转是否灵活、有无异响,有异常情况应先予以排除。
(2) 检查泵的运转方向是否与标示箭头一致。检查电机转向时,切勿联接联轴器,防止电机反转损坏叶轮和泵体。
(3) 从轴承座上的油镜孔处查看润滑油(CD40#柴机油)的位置是否在标志线附近,太多应放掉一些,太少应加上一些。
(4) 检查密封冷却水的流量与压力值(参见密封结构简图与简介部分的要求),冷却水压力太高可能会造成冷却水泄漏、影响密封的使用寿命等问题。
(5) 对吸上工况,需要将虹吸桶灌满,并确保进口管路及虹吸桶密封不漏气;池漕中液位到泵进口的垂直距离H应不超过2m(建议在1m以内,越短越好),否则可能无法吸上,并会影响泵的使用寿命。
9.3 启动
(1) 打开进口阀门,使液体流进泵腔。(2) 接通密封冷却水。 (3) 接通电源。
(4) 及时打开出口阀门(避免长时间逼压运行),并调节至额定的流量、扬程(严禁使用进口阀门调节)。
9.4 运行
(1) 泵运行中如有异响或其它故障时,应立即停车检查,待故障排除后才能继续运转。
(2) 要经常检查泵和电机的温升情况。轴承的温升不应大于40℃,极限温度不大于90℃;电机的最高温升为90℃,极限温度不超过130℃。
(3) 当电机超电流时,应关小出口阀门以降低流量,防止长时间超电流运行损坏电机。
(4) 泵运行中密封冷却水不能中断;K型动力密封的陶瓷轴套,要严防升温后遇冷水,以免因温度骤降而开裂。
(5) 泵运行中要严防泵腔内缺液空运转(如池漕内液体已抽空、进口管路堵塞、低位池无法吸上等),接通冷却水的状态下空运转不得超过3分钟,否则会烧毁泵内部件。水泵空运转后严禁立即继续使用,应待泵及密封部位冷却后再使用。
(6) 泵在关闭出口阀门时的运行称为逼压运行状态,衬塑泵的逼压运行时间应尽可能减短,常温介质以不超过5分钟为限,高温介质最好不要超过2分钟。
9.5 停泵
(1) 关闭出口阀门(防止出口管路液体倒流产生水锤冲击叶轮,使泵机反转造成叶轮松动)。
(2) 切断电源。 (3) 关闭进口阀门及密封冷却水。
9.6 维护
(1) 定期检查轴承座内润滑油的油位,定期更换润滑油(新泵首次更换周期为一个月,以后六个月更换一次)。
(2) 保持泵机外部及环境的清洁,用水冲洗时,应防止电机受潮,冲洗后用布擦净泵机上的水迹。
(3) 对含固量高或容易结晶的工况,停泵前应用清水冲洗管路及泵腔,防止沉淀物或结晶造成堵塞。
(4) 低温环境下液体可能会冰冻,停车后应将泵腔内的液体放空,以防冻裂。若有结冰现象,必要时可加热水进去解冻,直到用手盘动联轴器能灵活转动后再启动泵。
(5) 长期停用的泵,除将泵内的腐蚀性液体放空外,还要用清水将泵体(尤其是密封部件)冲洗干净。最后将泵进出口封闭好,妥善保管。
(6) 使用虹吸桶的工况,要定期检查虹吸桶中的存液情况,如有不足应补满。








