联系

侧吸式钢衬塑结构,密封不承受正压力,不泄漏,双级泵输送压力更高,
耐腐耐磨,配套双端面集装密封寿命更长,配套K型或JS型密封寿命长,更经济。
HFM系列防腐耐磨型压滤泵是本公司在2004年根据压滤机、过滤机配用泵的三高(高磨、高腐、高压)特殊使用特点着手研发的专用型泵,至今已有十余个年头。经过历年来的多次改进、改良,从产品的使用寿命、密封技术、耐磨性能、规格及品种的多样性、完备性等方面来考量,HFM系列压滤泵已趋向成熟期。从品种看,现在已有单级系列、双级系列,包括单级低压系列(0.5MPa以内)、单级高压系列(0.5~0.8MPa)、双级低压系列(0.8~1MPa)、双级高压系列(1~1.4MPa);产品进口直径φ50~250mm均已齐全,流量范围3~600m3/h,已开发了衬塑系列和全塑系列的泵型,供不同需求的用户选择。从该泵的研发趋势看,公司准备开发多种材质、多种性能用途的HFM系列泵,从品种上向大规格型号发展,以满足各种不同用户的需求
HFM系列无泄漏耐腐耐磨泵是一种新型的衬里型后吸式(轴密封位置与进液口同向)的耐腐耐磨泵(见下图)。该泵是总结了普通耐腐耐磨泵,在运行时,密封容易泄漏的情况下开发的一种新型压力输送泵,其中应用五项创新技术(专利)。其主要特点是: 一. 泵进液口在轴密封同向,轴密封处在负压环境下,因此不会泄漏,克服了原有耐腐耐磨泵易损坏,轴密封易泄漏的固疾。
二. 应用范围广泛:该泵备有多种可以互换的衬里材料,可以适用各种化学性质的腐蚀性、磨蚀性清液和料浆的输送,而且各种不同材料的备件互换性能好,用户调整极为方便。
三. 运行费用低:其主要因素有二个,一是易损件泵盖和吸入口等采用了分体式结构,设有独立的耐腐耐磨易损件,更换方便,更为经济。二是泵的密封不采用背叶轮减压,节省了轴功率的消耗,节省了能源。
四. HFM-II型双级耐腐耐磨料浆泵的另一个优点是:耐磨性好,因为以较低的单个叶轮线速度,获得较高的泵出口压力,从而克服了单级料浆泵为增加压力而增加叶轮线速度,而导致叶轮、泵壳磨损加剧的缺点,有效提高了叶轮、泵盖等磨损件的使用寿命。
五. HFM-II型双级耐腐耐磨泵由于压力高,在配用高压过滤的压滤机时、过滤效果好,滤饼含水量少,克服了压滤机配用泵压力不足的缺点。
一. 本系列泵可输送100℃温度以内的各类腐蚀性和非腐蚀性清液和料浆或用作各类压滤机加压喂料用泵,例如:有色金属的锌、铜、钴、镍、锰等湿法冶炼工艺的压滤机配用泵或工艺流程泵,矿山选矿、非金属矿产加工(钛白粉、高岭土等)工艺中的浆体输送泵,环保产业中的污泥、废渣输送泵,锂电、新能源、化纤、纺织印染等其它化工、染料、制药、食品生产工艺中的压滤泵或压力输送泵。
二. 长期逼压运行(泵出口压力高)输送腐蚀性介质的岗位,如烟气脱硫、大气治理中的压力喷淋泵、压力冲洗泵等。
三. 其它泵输送介质时,容易泄漏的岗位。
四. 该泵有单级和双级二个系列,能满足需要小流量高压力输送腐蚀性料浆的岗位。
不适用岗位:吸入口液体液位低于泵位置0.5m以下或吸入口负压过大的岗位。
4.1 型号说明

4.2 过流材料的选定
默认为改性超高分子量聚乙烯:适用于100℃以内的腐蚀性、磨蚀性料浆的输送。
耐腐耐磨不锈钢(B):适用于110℃以内的磨蚀性料浆的输送。例如用于电解锌、电解锰等高温浸出的工序中的高温浆体的输送,效果会更好。
氟塑料(F):主要适用输送带溶剂的介质和强氧化性介质,例如浓硝酸等。
聚氨脂橡胶(PU):主要适用于腐蚀性要求低,而磨蚀性严重的岗位,如排渣泵,或选矿中的旋流器配用泵。
过流部件需不锈钢、A3钢等金属材料,请与本公司联系!
5.1 HFM-I型单级泵的结构简图

| 序号 | 零部件名称 | 材质 | 序号 | 零部件名称 | 材质 | 序号 | 零部件名称 | 材质 | |
| * 1 | 前泵盖 | UHMWPE | *15 | 前轴套 | 99瓷 | 29 | 前轴承侧盖 | HT-200 | |
| * 2 | 锁紧螺母 | UHMWPE/A3 | *16 | 吸入口三通 | UHMWPE/QT | 30 | 前轴承油封 | 氯丁胶 | |
| 3 | 前泵盖压紧圈 | QT | 17 | 轴承座 | HT-200 | 31 | 前轴承 | 合金钢 | |
| * 4 | 前泵盖垫 | FPM | *18 | 前轴套垫 | FPM | 32 | 油塞 | NBR/Al | |
| 5 | 防转螺母 | A3 | *19 | 减压副叶轮 | 75瓷 | 33 | 主轴 | 40Cr钢 | |
| 6 | 华司 | A3 | *20 | 减压副叶轮垫 | FPM | 34 | 轴肩过渡圈一 | QT | |
| * 7 | 锁紧螺母L垫 | FPM | *21 | 密封盒垫 | FPM | 35 | 平面轴承 | ||
| * 8 | 叶轮 | UHMWPE/A3 | *22 | 密封盒 | 玻璃钢 | 36 | 轴肩过渡圈二 | QT | |
| * 9 | 泵壳 | UHMWPE/QT | *23 | K形密封圈 | F4/FPM | 37 | 后轴承 | ||
| * 10 | 叶轮垫 | FPM | 24 | 密封盒压盖 | A3 | 38 | 后轴承侧盖 | HT-200 | |
| 11 | 叶轮顶圈 | 45#钢 | *25 | 后轴套 | 99瓷 | 39 | 后轴承油封 | 氯丁胶 | |
| * 12 | 后泵盖垫 | FPM | *26 | 后轴套垫 | FPM | 40 | 冷却水嘴 | PP | |
| * 13 | 后泵盖 | UHMWPE/QT | 27 | 挡酸片 | 玻璃钢 | 41 | O形密封圈 | FPM | |
| * 14 | 吸入口三通垫床 | FPM | 28 | 主轴拼帽 | 45#钢 | 42 | 水封环 | 玻璃钢 | |
注:序号前带有“*”标志的为易损件,供用户采购备件参考
5.2 HFM-II型双级泵的结构简图


注:红色序号为与主结构图的差异部分。双级泵的“吸入管弯头”部分在图中未作标示,可参见说明书封面上的外观图。
| 序号 | 零部件名称 | 材质 | 序号 | 零部件名称 | 材质 | 序号 | 零部件名称 | 材质 | |
| * 1 | 前泵盖 | UHMWPE | *16 | 前轴套 | 99瓷 | 31 | 前轴承油封 | 氯丁胶 | |
| * 2 | 锁紧螺母 | UHMWPE/A3 | *17 | 吸入口三通 | UHMWPE/QT | 32 | 前轴承 | 合金钢 | |
| *3 | 前泵盖垫 | FPM | *18 | 前轴套垫 | FPM | 33 | 油塞 | NBR/Al | |
| 4 | 防转螺母 | A3 | *19 | 减压副叶轮 | 75瓷 | 34 | 主轴 | 40Cr钢 | |
| 5 | 华司 | A3 | 20 | 轴承座 | HT-200 | 35 | 轴肩过渡圈一 | QT | |
| *6 | 锁紧螺母L垫 | FPM | *21 | 减压副叶轮垫 | FPM | 36 | 平面轴承 | 合金钢 | |
| * 7 | 泵壳 | UHMWPE/QT | *22 | 密封盒 | 玻璃钢 | 37 | 轴肩过渡圈二 | QT | |
| * 8 | 二级叶轮 | UHMWPE/A3 | *23 | K形密封圈 | F4/FPM | 38 | 后轴承 | 合金钢 | |
| * 9 | 二级叶轮垫 | FPM | *24 | 密封盒垫 | FPM | 39 | 后轴承侧盖 | 玻璃钢 | |
| * 10 | 一级叶轮 | UHMWPE/QT | 25 | 密封盒压盖 | A3 | 40 | 后轴承油封 | 氯丁胶 | |
| 11 | 叶轮顶圈 | 45#钢 | *26 | 后轴套 | 99瓷 | 41 | 冷却水嘴 | PP | |
| * 12 | 一级叶轮垫 | FPM | 27 | 挡酸片 | 玻璃钢 | 42 | O形密封圈 | FPM | |
| * 13 | 吸入口三通垫床 | FPM | *28 | 后轴套垫 | FPM | 43 | 水封环 | 玻璃钢 | |
| * 14 | 后泵盖垫 | FPM | 29 | 主轴拼帽 | 45#钢 | 44 | 吸入管弯头 | UHMWPE/A3 | |
| * 15 | 后泵盖 | UHMWPE/A3 | 30 | 前轴承侧盖 | HT-200 | 45 | 联轴器 | HT200 | |
注:序号前带有“*”标志的为易损件,供用户采购备件参考
5.3 HFM-HJ型单级泵的结构简图

| 序号 | 零部件名称 | 材质 | 序号 | 零部件名称 | 材质 | 序号 | 零部件名称 | 材质 | |
| 1 | 封盖 | A3 UHMW | * 13 | 前轴套 | 99瓷 | 25 | 前轴承油封 | 氯丁胶 | |
| * 2 | 泵壳 | UHMWPE/A3 | *14 | 吸入口三通 | UHMWPE/QT | 26 | 前轴承 | ||
| *3 | 锁紧螺母 | UHMWPE/A3 | *15 | 轴套垫 | F26B | 27 | 油塞 | NBR/Al | |
| * 4 | 防转螺母 | A3 | *16 | 轴套1 | 不锈钢/F46 | 28 | 主轴 | 40Cr钢 | |
| *5 | 锁紧螺母L垫 | FPM | *17 | 动环座 | FPM | 29 | 轴承座 | HT-200 | |
| 6 | 华司 | A3 | *18 | 介质端动环 | SSIC | 30 | 轴肩过渡圈一 | QT | |
| * 7 | 叶轮 | UHMWPE/A3 | *19 | 介质端静环 | SSIC | 31 | 平面轴承 | ||
| * 8 | 叶轮垫 | F26B | *20 | 隔盘套 | 不锈钢/SSIC | 32 | 轴肩过渡圈二 | QT | |
| * 9 | 叶轮顶圈 | 45# 钢 | *21 | 轴套2 | 不锈钢 | 33 | 后轴承 | ||
| 10 | 后泵盖垫 | F26B | *22 | 机封基座 | 不锈钢 | 34 | 后轴承侧盖 | HT-200 | |
| *11 | 后泵盖 | UHMWPE/QT | *23 | 主轴拼帽 | 45#钢 | 35 | 后轴承油封 | 氯丁胶 | |
| * 12 | 吸入口三通垫床 | F26B | 24 | 前轴承侧盖 | HT-200 | 36 | 联轴器 | HT200 | |
注:序号前带有“*”标志的为易损件,供用户采购备件参考;
部分泵前泵盖、前泵盖压紧圈为闷盖、闷盖压板的形式;
部分泵后泵盖与轴承座之间有后泵盖连接圈(QT材质),规格有:100HFM-I-M、125HFM-I-M、150HFM-I-M、200HFM-I-M。
部分泵挡酸片与主轴拼帽之间设有过渡套(QT材质),规格有:100HFM-I-M、125HFM-I-M及进口DN150往上规格(除250HFM-I)。
HFM-II型双级泵亦可装配HJ集装式机械密封。
6.1 JZ1/JZ2集装式机械密封的结构简图及简介

JZ1单端面集装式机械密封,集装外壳基材为不锈钢,适用于含固量在25%以下的泵使用。密封常用主体材料有:不锈钢940L、316L、双相不锈钢2205。冷却水要求:1、加冲洗水冲洗洁净水或自来水水压力为0.3MPa,水量为30-120L/h,冲洗水全部进入泵腔,无冷却水出口,密封使用寿命长。注意:运行或调试正反转启动前必须先接通冷却水,否则密封将会损坏!2、含固量少于10%时也可不加冷却水使用,使用时直接堵掉冷却水入口即可。注意:若密封不设置内外冲洗水,则调试点启动及运行前泵腔内必须充满液体!

JZ2双端面集装式机械密封有着使用寿命长、运行稳定、安装维修方便等优点,其独特的内冲洗系统在提供润滑、冷却作用的同时,有效地防止了固体颗粒杂质堆积在密封环上,延长了密封的使用寿命。技术参数:压力0~0.6MPa,温度-20~90℃,含固量≤20%,主体材质可以选择双相不锈钢或316L,动静环材质为无压烧结碳化硅。使用注意:禁止密封腔内无水情况运行!泵运行前,内、外冲洗水必须同时接通且为洁净水。外冲洗水自流通过即可,水压约为0.05MPa,流量约为5L/min;内冲洗水压大于0.3MPa即可,流量约为8L/min。停用时必须先关泵,再关冲洗水,内冲洗水的阀门也需关闭(防止浆液倒流)。
6.2 HJ1/HJ2集装式机械密封的结构简图及简介
HJ系列集装式机械密封的特点是通过至少一组动、静环密封端面,通过补偿机构弹簧的弹力配合,使密封面贴合组成相对的滑动摩擦副,从而达到防止泄漏的效果。从密封结构分类有:单端面(HJ1)、双端面(HJ2)两种密封形式;密封材料上分类可以根据工况的不同,配置不同的过流材质主要过流部件材料有:动、静环SSic、Sic;轴套等过流部件钢衬F46、O型圈、垫床氟橡胶;其他配套件材料可分别选用非金属陶瓷、PPS等或2205、2507、904、钛材等金属材料。由于结构形式和材料的优化配置,满足了不同化工介质、不同含固量介质的使用要求。同时由于该密封选用F46氟塑料作为主要的过流部位材料,可以完全避免金属件接触或污染介质,从密封材料的选用上部份取代了贵金属的使用,使该密封更具有对物料成分安全无污染,性价比高的特点也是设计、开发、使用的亮点所在。

HJ1单端面集装式机械密封适用于含固量在20%以下的泵使用。注意:调试点启动及运行前泵腔内必须充满液体!
HJ2双端面集装式机械密封有着使用寿命长、运行稳定、安装维修方便等优点,其外冲洗系统提供润滑、冷却的作用,延长了密封的使用寿命。技术参数:压力0~0.6MPa,温度-20~90℃,含固量≤20%。
注意:禁止密封腔内无水情况运行!泵运行前,外冲洗水必须同时接通且为洁净水。
外冲洗水自流通过即可,水压约为0.05MPa,流量约为5L/h。
6.3 JS风冷密封的结构简图及简介
1.结构特点:JS组合双密封(见左图)是一种有动力密封、机械密封组合安装使用的泵轴密封。动力密封在叶轮侧,机械密封在电机侧,两种密封之间有存液腔,存液腔中有导热介质,机封部位有生风散热的风轮或风叶。
2.使用特点:JS组合密封有自冷却体系,自润滑体系。因此使用时不需外接冷却水。该密封能适用于输送料浆或和清液的腐蚀性和非腐蚀性介质的离心泵上,包括前吸型、侧吸型、单级或双级离心泵。
3.组合密封的科学性和工作原理
其科学性在于:把动力密封的挡砂功能,存液腔的存液功能,机封的封液功能,存液的导热功能和润滑功能,风轮的散热功能,有机地联系并组合起来,形成一个有特殊整体功能的新型密封,其新颖性在于:一是可以输送料浆;二是不用外接冷却水冲洗;三是可以适当空运转。
其工作原理为:动力密封在前挡砂,起到密封砂浆的作用,机械密封在后密封存液腔中的存液(清液或油脂),存液腔中的存液起到润滑机封的动静环和轴套与唇形橡胶密封圈的作用。与此同时,又起到传递热能的作用,即密封部位的热量传导到密封外侧的散热装置上。风轮的功能是在泵机运转时把密封部位的热量散布出去,保证轴密封安全运行。JS组合双密封的科学性就是把各单一组件的独立功能组合联系起来,使他们互相配合,互相作用,功能互补,相互依存,形成一个整体的、有润滑功能的、有冷却水功能的、有挡砂功能的、有停车开车均有防漏功能的,同时还可以适当开空机的先进的密封整体。
6.4立体结构示意图

7.1 HFM-I型单级泵的性能参数表
| 序号 | 型号 | 转速 =2900r/min | 介质密度 =1000kg/m³ | |||||
|---|---|---|---|---|---|---|---|---|
| 流量 (m /h)3 | 扬程 (m) | 进口(mm) | 出口(mm) | 配备电机 | 转速 (r/min) | 重量 (kg) | ||
| 1 | 50HFMI | 5 | 25 | 50 | 40 | 2.2kW -2 | 2900 | 180 |
| 2 | 5 | 30 | 3kW -2 | 2900 | 180 | |||
| 3 | 5 | 35 | 3kW-2 | 2900 | 190 | |||
| 4 | 5 | 40 | 4kW-2 | 2900 | 200 | |||
| 5 | 10 | 25 | 3kW-2 | 2900 | 190 | |||
| 6 | 10 | 30 | 4kW-2 | 2900 | 200 | |||
| 7 | 10 | 35 | 5.5kW-2 | 2900 | 220 | |||
| 8 | 10 | 40 | 7.5kW-2 | 2900 | 220 | |||
| 9 | 15 | 25 | 3kW-2 | 2900 | 190 | |||
| 10 | 15 | 30 | 4kW-2 | 2900 | 200 | |||
| 11 | 15 | 35 | 5.5kW-2 | 2900 | 220 | |||
| 12 | 15 | 40 | 7.5kW-2 | 2900 | 220 | |||
| 13 | 20 | 25 | 4kW-2 | 2900 | 200 | |||
| 14 | 20 | 30 | 5.5kW-2 | 2900 | 220 | |||
| 15 | 65HFM-I | 20 | 35 | 65 | 50 | 7.5kW-2 | 2900 | 320 |
| 16 | 20 | 40 | 7.5kW-2 | 2900 | 320 | |||
| 17 | 20 | 50 | 11kW-2 | 2900 | 350 | |||
| 18 | 30 | 35 | 11kW-2 | 2900 | 350 | |||
| 19 | 30 | 40 | 11kW-2 | 2900 | 350 | |||
| 20 | 30 | 50 | 15kW-2 | 2900 | 350 | |||
| 21 | 65HFM -I-H | 10 | 60 | 65 | 50 | 11kW-2 | 2900 | 350 |
| 22 | 10 | 70 | 15kW-2 | 2900 | 350 | |||
| 23 | 15 | 80 | 15kW-2 | 2900 | 350 | |||
| 24 | 20 | 60 | 15kW-2 | 2900 | 350 | |||
| 25 | 20 | 70 | 18.5kW-2 | 2900 | 350 | |||
| 序号 | 型号 | 转速 =1450r/min | 介质密度 =1000kg/m³ | |||||
|---|---|---|---|---|---|---|---|---|
| 流量 (m /h)3 | 扬程 (m) | 进口(mm) | 出口(mm) | 配备电机 | 转速 (r/min) | 重量 (kg) | ||
| 26 | 65HFM-I-H | 20 | 75 | 65 | 50 | 18.5kW-2 | 2900 | 350 |
| 27 | 25 | 73 | 18.5kW-2 | 2900 | 350 | |||
| 28 | 30 | 70 | 22kW -2 | 2900 | 365 | |||
| 29 | 35 | 70 | 22kW-2 | 2900 | 400 | |||
| 30 | 80HFM-I | 40 | 35 | 80 | 65 | 11kW-2 | 2900 | 350 |
| 31 | 40 | 40 | 15kW-2 | 2900 | 350 | |||
| 32 | 40 | 50 | 18.5kW-2 | 2900 | 360 | |||
| 33 | 45 | 35 | 15kW-2 | 2900 | 350 | |||
| 34 | 45 | 40 | 15kW-2 | 2900 | 350 | |||
| 35 | 45 | 50 | 18.5kW-2 | 2900 | 360 | |||
| 36 | 80HFM-I-H | 25 | 80 | 80 | 65 | 22kW-2 | 2900 | 400 |
| 37 | 30 | 60 | 18.5kW-2 | 2900 | 365 | |||
| 38 | 30 | 70 | 22kW-2 | 2900 | 400 | |||
| 39 | 40 | 60 | 22kW-2 | 2900 | 400 | |||
| 40 | 40 | 70 | 30kW-2 | 2900 | 500 | |||
| 41 | 40 | 75 | 30kW-2 | 2900 | 500 | |||
| 42 | 45 | 73 | 30kW-2 | 2900 | 500 | |||
| 43 | 50 | 60 | 30kW-2 | 2900 | 500 | |||
| 44 | 50 | 70 | 30kW-2 | 2900 | 500 | |||
| 45 | 60 | 70 | 37kW-2 | 2900 | 500 | |||
| 46 | 100HFM-I | 50 | 35 | 100 | 80 | 15kW-2 | 2900 | 350 |
| 47 | 50 | 40 | 18.5kW-2 | 2900 | 360 | |||
| 48 | 50 | 50 | 22kW-2 | 2900 | 400 | |||
| 49 | 60 | 35 | 18.5kW-2 | 2900 | 350 | |||
| 50 | 60 | 40 | 18.5kW-2 | 2900 | 360 | |||
| 51 | 60 | 45 | 22kW-2 | 2900 | 400 | |||
| 52 | 60 | 50 | 22kW-2 | 2900 | 400 | |||
| 53 | 80 | 35 | 18.5kW-2 | 2900 | 360 | |||
| 54 | 80 | 40 | 22kW-2 | 2900 | 400 | |||
| 55 | 100 | 35 | 22kW-2 | 2900 | 400 | |||
| 56 | 100HFM-I-H | 40 | 80 | 100 | 80 | 30kW-2 | 2900 | 520 |
| 57 | 50 | 60 | 30kW-2 | 2900 | 520 | |||
| 58 | 50 | 70 | 30kW-2 | 2900 | 520 | |||
| 59 | 60 | 60 | 30kW-2 | 2900 | 520 | |||
| 60 | 60 | 70 | 37kW-2 | 2900 | 520 | |||
| 61 | 80 | 50 | 30kW-2 | 2900 | 520 | |||
| 62 | 80 | 60 | 37kW-2 | 2900 | 520 | |||
| 63 | 100 | 40 | 30kW-2 | 2900 | 520 | |||
| 64 | 100 | 50 | 37kW-2 | 2900 | 520 | |||
| 65 | 60 | 80 | 45kW-2 | 2900 | 600 | |||
| 66 | 80 | 70 | 45kW-2 | 2900 | 600 | |||
| 67 | 100 | 60 | 45kW-2 | 2900 | 600 | |||
| 68 | 120 | 60 | 55kW-2 | 2900 | 650 | |||
| 69 | 125HFM-I-H | 100 | 45 | 125 | 100 | 37kW-2 | 2900 | 520 |
| 70 | 100 | 75 | 55kW-2 | 2900 | 665 | |||
| 71 | 130 | 70 | 55kW-2 | 2900 | 665 | |||
| 72 | 150 | 40 | 45kW-2 | 2900 | 580 | |||
| 73 | 100 | 65 | 45kW-2 | 2900 | 580 | |||
| 74 | 130 | 60 | 55kW-2 | 2900 | 665 | |||
| 75 | 150 | 55 | 55kW-2 | 2900 | 665 | |||
| 序号 | 型号 | 转速 =1450r/min | 介质密度 =1000kg/m³ | |||||
|---|---|---|---|---|---|---|---|---|
| 流量 (m /h)3 | 扬程 (m) | 进口(mm) | 出口(mm) | 配备电机 | 转速 (r/min) | 重量 (kg) | ||
| 1 | 50HFM -I | 5 | 10 | 50 | 40 | 0.75kW -4 | 1450 | 180 |
| 2 | 7.5 | 10 | 0.75kW -4 | 1450 | 180 | |||
| 3 | 10 | 10 | 1.1kW-4 | 1450 | 180 | |||
| 4 | 65HFM-I-H | 5 | 15 | 65 | 50 | 2.2kW -4 | 1450 | 280 |
| 5 | 5 | 17.5 | 2.2kW -4 | 1450 | 280 | |||
| 6 | 10 | 15 | 2.2kW-4 | 1450 | 280 | |||
| 7 | 10 | 17.5 | 2.2kW-4 | 1450 | 280 | |||
| 8 | 15 | 15 | 3kW-4 | 1450 | 280 | |||
| 9 | 15 | 17.5 | 3kW-4 | 1450 | 280 | |||
| 10 | 30 | 28 | 7.5kW-4 | 1450 | 280 | |||
| 11 | 35 | 26 | 7.5kW-4 | 1450 | 280 | |||
| 12 | 80HFM -I | 20 | 15 | 80 | 65 | 3kW-4 | 1450 | 300 |
| 13 | 25 | 15 | 3kW-4 | 1450 | 300 | |||
| 14 | 25 | 17.5 | 4kW-4 | 1450 | 300 | |||
| 15 | 80HFM-I-H | 15 | 15 | 80 | 65 | 2.2kW-4 | 1450 | 300 |
| 16 | 15 | 17.5 | 3kW-4 | 1450 | 300 | |||
| 17 | 80HFM-I-M1 | 40 | 35 | 80 | 65 | 11KW-4 | 1450 | 500 |
| 18 | 45 | 32 | 11KW-4 | 1450 | 500 | |||
| 19 | 50 | 30 | 11KW-4 | 1450 | 500 | |||
| 20 | 100HFM-I | 25 | 15 | 100 | 80 | 3kW-4 | 1450 | 250 |
| 21 | 25 | 17.5 | 4kW-4 | 1450 | 250 | |||
| 22 | 50 | 15 | 5.5kW-4 | 1450 | 300 | |||
| 23 | 50 | 17.5 | 7.5kW-4 | 1450 | 300 | |||
| 24 | 100HFM-I-H | 30 | 15 | 100 | 80 | 4kW-4 | 1450 | 250 |
| 25 | 30 | 17.5 | 4kW-4 | 1450 | 250 | |||
| 26 | 40 | 15 | 5.5kW-4 | 1450 | 300 | |||
| 27 | 40 | 17.5 | 5.5kW-4 | 1450 | 300 | |||
| 28 | 100HFM-I-M | 60 | 75 | 100 | 80 | 30kW-4 | 1450 | 1170 |
| 29 | 60 | 85 | 37kW-4 | 1450 | 1250 | |||
| 30 | 80 | 72 | 37kW-4 | 1450 | 1250 | |||
| 31 | 80 | 85 | 45kW-4 | 1450 | 1300 | |||
| 32 | 100 | 70 | 45kW-4 | 1450 | 1300 | |||
| 33 | 100 | 80 | 55kW-4 | 1450 | 1390 | |||
| 34 | 120 | 68 | 55kW-4 | 1450 | 1390 | |||
| 35 | 120 | 75 | 75kW-4 | 1450 | 1500 | |||
| 36 | 100HFM-I-M1 | 60 | 35 | 100 | 80 | 15KW-4 | 1450 | 550 |
| 37 | 70 | 33 | 15KW-4 | 1450 | 550 | |||
| 38 | 80 | 32 | 18.5KW-4 | 1450 | 600 | |||
| 39 | 100 | 30 | 22KW-4 | 1450 | 620 | |||
| 40 | 125HFM-I-M | 80 | 70 | 125 | 100 | 37kW -4 | 1450 | 1260 |
| 41 | 80 | 85 | 45kW-4 | 1450 | 1300 | |||
| 42 | 100 | 70 | 45kW -4 | 1450 | 1300 | |||
| 43 | 100 | 85 | 55kW-4 | 1450 | 1385 | |||
| 44 | 120 | 70 | 55kW-4 | 1450 | 1385 | |||
| 45 | 120 | 85 | 75kW-4 | 1450 | 1550 | |||
| 46 | 130 | 68 | 55kW -4 | 1450 | 1385 | |||
| 47 | 140 | 65 | 75kW -4 | 1450 | 1500 | |||
| 48 | 150 | 62 | 75kW-4 | 1450 | 1500 | |||
| 49 | 125HFM-I-M1 | 100 | 35 | 125 | 100 | 22KW-4 | 1450 | 650 |
| 50 | 110 | 32 | 22KW-4 | 1450 | 650 | |||
| 51 | 120 | 30 | 22KW-4 | 1450 | 650 | |||
| 序号 | 型号 | 转速 =1450r/min | 介质密度 =1000kg/m³ | |||||
|---|---|---|---|---|---|---|---|---|
| 流量 (m /h)3 | 扬程 (m) | 进口(mm) | 出口(mm) | 配备电机 | 转速 (r/min) | 重量 (kg) | ||
| 52 | 150HFM-I | 120 | 40 | 150 | 125 | 37kW-4 | 1450 | 1210 |
| 53 | 150 | 40 | 45kW-4 | 1450 | 1240 | |||
| 54 | 200 | 32 | 45kW-4 | 1450 | 1240 | |||
| 55 | 250 | 30 | 45kW-4 | 1450 | 1240 | |||
| 56 | 300 | 25 | 45kW-4 | 1450 | 1240 | |||
| 57 | 150HFM-I-M | 100 | 90 | 150 | 125 | 75kW-4 | 1450 | 1550 |
| 58 | 120 | 85 | 75kW-4 | 1450 | 1550 | |||
| 59 | 150 | 70 | 75kW-4 | 1450 | 1550 | |||
| 60 | 150 | 85 | 90kW-4 | 1450 | 1680 | |||
| 61 | 180 | 68 | 90kW-4 | 1450 | 1680 | |||
| 62 | 180 | 80 | 90kW-4 | 1450 | 1680 | |||
| 63 | 200 | 66 | 90kW-4 | 1450 | 1680 | |||
| 64 | 200 | 72 | 110kW-4 | 1450 | 1980 | |||
| 65 | 200 | 75 | 110kW-4 | 1450 | 1980 | |||
| 66 | 200HFM-I | 250 | 45 | 200 | 150 | 75kW-4 | 1450 | 1240 |
| 67 | 300 | 38 | 75kW-4 | 1450 | 1240 | |||
| 68 | 320 | 24 | 45kW-4 | 1450 | 1090 | |||
| 69 | 320 | 32 | 55kW-4 | 1450 | 1210 | |||
| 70 | 350 | 20 | 45kW-4 | 1450 | 1090 | |||
| 71 | 350 | 28 | 55kW-4 | 1450 | 1210 | |||
| 72 | 350 | 34 | 75kW-4 | 1450 | 1240 | |||
| 73 | 400 | 18 | 45kW-4 | 1450 | 1090 | |||
| 74 | 400 | 25 | 75kW-4 | 1450 | 1240 | |||
| 75 | 500 | 12 | 45kW-4 | 1450 | 1090 | |||
| 76 | 200HFM-I-M | 120 | 85 | 200 | 150 | 75kW-4 | 1450 | 1650 |
| 77 | 150 | 75 | 75kW-4 | 1450 | 1650 | |||
| 78 | 150 | 83 | 90kW-4 | 1450 | 1700 | |||
| 79 | 180 | 73 | 90kW-4 | 1450 | 1700 | |||
| 80 | 200 | 70 | 90kW-4 | 1450 | 1700 | |||
| 81 | 200 | 80 | 110kW-4 | 1450 | 1845 | |||
| 82 | 250 | 67 | 110kW-4 | 1450 | 1845 | |||
| 83 | 250 | 75 | 132kW-4 | 1450 | 2050 | |||
| 84 | 200HFM-I-AH | 200 | 75 | 200 | 150 | 110kW-4 | 1450 | 2450 |
| 85 | 200 | 80 | 110kW-4 | 1450 | 2450 | |||
| 86 | 250 | 72 | 132kW-4 | 1450 | 2450 | |||
| 87 | 250 | 76 | 132kW-4 | 1450 | 2450 | |||
| 88 | 300 | 70 | 132kW-4 | 1450 | 2450 | |||
| 89 | 350 | 60 | 132kW-4 | 1450 | 2450 | |||
| 90 | 350 | 68 | 132kW-4 | 1450 | 2450 | |||
| 91 | 250HFM-I | 300 | 65 | 250 | 200 | 132kW-4 | 1450 | 2520 |
| 92 | 350 | 63 | 132kW-4 | 1450 | 2520 | |||
| 93 | 400 | 55 | 132kW-4 | 1450 | 2520 | |||
| 94 | 400 | 63 | 160kW-4 | 1450 | 2620 | |||
| 95 | 500 | 52 | 160kW-4 | 1450 | 2620 | |||
| 96 | 500 | 60 | 185kW-4 | 1450 | 2620 | |||
| 97 | 600 | 49 | 185kW-4 | 1450 | 2620 | |||
| 98 | 600 | 56 | 200kW-4 | 1450 | 2690 | |||
| 99 | 700 | 45 | 185kW-4 | 1450 | 2620 | |||
| 100 | 700 | 52 | 200kW-4 | 1450 | 2690 | |||
| 101 | 800 | 42 | 200kW-4 | 1450 | 2690 | |||
| 102 | 800 | 48 | 220kW-4 | 1450 | 3290 | |||
7.2 HFM-II型双级泵的性能参数表
| 序号 | 型号 | 转速 =1450r/min | 介质密度 =1000kg/m³ | |||||
|---|---|---|---|---|---|---|---|---|
| 流量 (m /h)3 | 扬程 (m) | 进口(mm) | 出口(mm) | 配备电机 | 转速 (r/min) | 重量 (kg) | ||
| 1 | 65HFM-II | 10 | 60 | 65 | 50 | 11kW-2 | 2900 | 370 |
| 2 | 10 | 70 | 11kW-2 | 2900 | 370 | |||
| 3 | 10 | 80 | 15kW-2 | 2900 | 370 | |||
| 4 | 10 | 90 | 15kW-2 | 2900 | 370 | |||
| 5 | 10 | 100 | 22kW-2 | 2900 | 370 | |||
| 6 | 15 | 60 | 11kW-2 | 2900 | 370 | |||
| 7 | 15 | 70 | 15kW-2 | 2900 | 370 | |||
| 8 | 15 | 80 | 15kW-2 | 2900 | 370 | |||
| 9 | 15 | 90 | 18.5kW-2 | 2900 | 380 | |||
| 10 | 15 | 100 | 22kW-2 | 2900 | 420 | |||
| 11 | 30 | 80 | 22kW-2 | 2900 | 420 | |||
| 12 | 30 | 90 | 30kW-2 | 2900 | 480 | |||
| 13 | 30 | 100 | 37kW-2 | 2900 | 480 | |||
| 14 | 80HFM-II | 20 | 60 | 80 | 65 | 15kW-2 | 2900 | 370 |
| 15 | 20 | 70 | 15kW-2 | 2900 | 370 | |||
| 16 | 20 | 80 | 18.5kW-2 | 2900 | 480 | |||
| 17 | 30 | 60 | 18.5kW-2 | 2900 | 480 | |||
| 18 | 30 | 70 | 22kW-2 | 2900 | 500 | |||
| 19 | 30 | 80 | 22kW-2 | 2900 | 500 | |||
| 20 | 30 | 90 | 30kW-2 | 2900 | 600 | |||
| 21 | 30 | 100 | 37kW-2 | 2900 | 600 | |||
| 22 | 80HFM-II-H | 30 | 120 | 80 | 65 | 30kW-2 | 2900 | 600 |
| 23 | 40 | 100 | 30kW-2 | 2900 | 600 | |||
| 24 | 100HFM-II | 40 | 60 | 100 | 80 | 18.5kW-2 | 2900 | 520 |
| 25 | 40 | 70 | 22kW-2 | 2900 | 580 | |||
| 26 | 40 | 80 | 30kW-2 | 2900 | 600 | |||
| 27 | 50 | 60 | 22kW-2 | 2900 | 580 | |||
| 28 | 50 | 70 | 30kW-2 | 2900 | 600 | |||
| 29 | 50 | 80 | 30kW-2 | 2900 | 600 | |||
| 30 | 50 | 90 | 37kW-2 | 2900 | 650 | |||
| 31 | 50 | 100 | 45kW-2 | 2900 | 700 | |||
| 32 | 60 | 55 | 30kW-2 | 2900 | 600 | |||
| 33 | 60 | 60 | 30kW-2 | 2900 | 600 | |||
| 34 | 60 | 70 | 37kW-2 | 2900 | 650 | |||
| 35 | 60 | 80 | 37kW-2 | 2900 | 650 | |||
| 36 | 60 | 90 | 45kW-2 | 2900 | 700 | |||
| 37 | 70 | 50 | 30kW-2 | 2900 | 600 | |||
| 38 | 70 | 60 | 37kW-2 | 2900 | 650 | |||
| 39 | 70 | 70 | 37kW-2 | 2900 | 650 | |||
| 40 | 70 | 80 | 45kW-2 | 2900 | 700 | |||
| 41 | 70 | 90 | 55kW-2 | 2900 | 750 | |||
| 42 | 80 | 50 | 37kW-2 | 2900 | 650 | |||
| 43 | 80 | 60 | 37kW-2 | 2900 | 650 | |||
| 44 | 80 | 70 | 45kW-2 | 2900 | 700 | |||
| 45 | 80 | 80 | 55kW-2 | 2900 | 750 | |||
| 46 | 80 | 90 | 55kW-2 | 2900 | 750 | |||
| 47 | 100HFM-II-H | 60 | 120 | 100 | 80 | 45kW-2 | 2900 | 750 |
| 48 | 80 | 100 | 55kW-2 | 2900 | 800 | |||
注:泵差异化代号中的H、H2、AH为高扬程泵,M为慢转速泵;
有差异化的泵与常规泵零部件不通用,具体请与我公司确认;
表中配备电机功率是在密度ρ=1时的参考值,实际电机功率应大于轴功率×介质密度ρ。
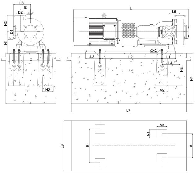
8.1 HFM-I型双级泵的外形图与安装尺寸表

| 型号 | 配套电机 | A | B | C | E | H1 | H2 | L1 | L2 | L3 | L4 | L5 | L6 | h | n3×s3 | D1 | n1×s1 | D2 | n2×s2 | M1 | M2 | N1 | N2 | H3 | L7 | L8 | H4 | kg 重量 |
|---|---|---|---|---|---|---|---|---|---|---|---|---|---|---|---|---|---|---|---|---|---|---|---|---|---|---|---|---|
| 50HFM-I | 1.1KW-4 | 290 | 290 | 330 | 107 | 242 | 190 | 150 | 500 | 117 | 215 | 119 | 185 | 25 | 4-M12×300 | 125 | 4×φ18 | 110 | 4×φ14 | 140 | 170 | 120 | 150 | 350 | 1200 | 550 | 500 | 180 |
| 0.75kW-4 | 290 | 290 | 330 | 107 | 242 | 190 | 150 | 500 | 117 | 215 | 119 | 185 | 25 | 4-M12×300 | 125 | 4×φ18 | 110 | 4×φ14 | 140 | 170 | 120 | 150 | 350 | 1200 | 550 | 500 | 180 | |
| 1.5~2.2kW-2 | 290 | 290 | 330 | 107 | 242 | 190 | 150 | 500 | 117 | 215 | 119 | 185 | 25 | 4-M12×300 | 125 | 4×φ18 | 110 | 4×φ14 | 140 | 170 | 120 | 150 | 350 | 1200 | 550 | 500 | 180 | |
| 3kW-2 | 290 | 290 | 330 | 107 | 242 | 190 | 150 | 530 | 125 | 215 | 119 | 185 | 25 | 4-M12×300 | 125 | 4×φ18 | 110 | 4×φ14 | 140 | 170 | 120 | 150 | 350 | 1200 | 550 | 500 | 190 | |
| 4kW-2 | 290 | 290 | 330 | 107 | 242 | 190 | 150 | 530 | 126 | 215 | 119 | 185 | 25 | 4-M12×300 | 125 | 4×φ18 | 110 | 4×φ14 | 140 | 170 | 120 | 150 | 350 | 1200 | 550 | 500 | 200 | |
| 5.5~7.5kW-2 | 290 | 325 | 365 | 107 | 242 | 190 | 150 | 563 | 117 | 215 | 119 | 185 | 25 | 4-M12×300 | 125 | 4×φ18 | 110 | 4×φ14 | 140 | 170 | 120 | 150 | 350 | 1200 | 550 | 500 | 220 | |
| 65HFM-I | 5.5~7.5kW-2 | 335 | 355 | 405 | 125 | 280 | 218 | 190 | 730 | 180 | 250 | 150 | 235 | 35 | 4-M16×300 | 145 | 4×φ18 | 125 | 4×φ18 | 140 | 170 | 120 | 150 | 450 | 1500 | 600 | 550 | 320 |
| 11~15kW-2 | 335 | 425 | 475 | 125 | 280 | 218 | 190 | 830 | 180 | 250 | 150 | 235 | 35 | 4-M16×300 | 145 | 4×φ18 | 125 | 4×φ18 | 140 | 170 | 120 | 150 | 450 | 1600 | 700 | 550 | 350 | |
| 18.5kW-2 | 335 | 425 | 475 | 125 | 280 | 218 | 190 | 830 | 180 | 250 | 150 | 235 | 35 | 4-M16×300 | 145 | 4×φ18 | 125 | 4×φ18 | 140 | 170 | 120 | 150 | 450 | 1600 | 700 | 550 | 365 | |
| 65HFM-I-H | 1.1kW-4 | 335 | 335 | 385 | 140 | 280 | 230 | 190 | 650 | 155 | 250 | 150 | 235 | 35 | 4-M16×300 | 145 | 4×φ18 | 125 | 4×φ18 | 140 | 170 | 120 | 150 | 450 | 1600 | 700 | 550 | 280 |
| 2.2~3kW-4 | 335 | 335 | 385 | 140 | 280 | 230 | 190 | 650 | 155 | 250 | 150 | 235 | 35 | 4-M16×300 | 145 | 4×φ18 | 125 | 4×φ18 | 140 | 170 | 120 | 150 | 450 | 1600 | 700 | 550 | 280 | |
| 5.5~7.5kW-2 | 335 | 335 | 385 | 140 | 280 | 230 | 190 | 650 | 155 | 250 | 150 | 235 | 35 | 4-M16×300 | 145 | 4×φ18 | 125 | 4×φ18 | 140 | 170 | 120 | 150 | 450 | 1600 | 700 | 550 | 320 | |
| 11~15kW-2 | 335 | 425 | 475 | 140 | 280 | 230 | 190 | 830 | 180 | 250 | 150 | 235 | 35 | 4-M16×300 | 145 | 4×φ18 | 125 | 4×φ18 | 140 | 170 | 120 | 150 | 450 | 1600 | 700 | 550 | 350 | |
| 18.5kW-2 | 335 | 425 | 475 | 140 | 280 | 230 | 190 | 830 | 180 | 250 | 150 | 235 | 35 | 4-M16×300 | 145 | 4×φ18 | 125 | 4×φ18 | 140 | 170 | 120 | 150 | 450 | 1600 | 700 | 550 | 365 | |
| 22kW-2 | 335 | 425 | 475 | 140 | 280 | 230 | 190 | 830 | 180 | 250 | 150 | 235 | 35 | 4-M16×300 | 145 | 4×φ18 | 125 | 4×φ18 | 140 | 170 | 120 | 150 | 450 | 1600 | 700 | 550 | 400 | |
| 30kW-2 | 335 | 470 | 520 | 140 | 300 | 230 | 190 | 830 | 200 | 250 | 150 | 235 | 35 | 4-M16×300 | 145 | 4×φ18 | 125 | 4×φ18 | 140 | 170 | 120 | 150 | 450 | 1600 | 700 | 700 | 460 | |
| 80HFM-I | 2.2~3kW-4 | 335 | 335 | 385 | 125 | 280 | 228 | 190 | 650 | 155 | 250 | 150 | 235 | 35 | 4-M16×300 | 160 | 4×φ18 | 145 | 4×φ18 | 140 | 170 | 120 | 150 | 450 | 1500 | 600 | 550 | 300 |
| 4kW-4 | 335 | 335 | 385 | 125 | 280 | 228 | 190 | 650 | 155 | 250 | 150 | 235 | 35 | 4-M16×300 | 160 | 4×φ18 | 145 | 4×φ18 | 140 | 170 | 120 | 150 | 450 | 1550 | 600 | 550 | 300 | |
| 7.5kW-2 | 335 | 355 | 405 | 125 | 280 | 228 | 190 | 730 | 180 | 250 | 150 | 235 | 35 | 4-M16×300 | 160 | 4×φ18 | 145 | 4×φ18 | 140 | 170 | 120 | 150 | 450 | 1550 | 600 | 550 | 320 | |
| 11~15KW-2 | 335 | 425 | 475 | 125 | 280 | 228 | 190 | 830 | 180 | 250 | 150 | 235 | 35 | 4-M16×300 | 160 | 4×φ18 | 145 | 4×φ18 | 140 | 170 | 120 | 150 | 450 | 1600 | 700 | 550 | 350 | |
| 18.5KW-2 | 335 | 425 | 475 | 125 | 280 | 228 | 190 | 830 | 180 | 250 | 150 | 235 | 35 | 4-M16×300 | 160 | 4×φ18 | 145 | 4×φ18 | 140 | 170 | 120 | 150 | 450 | 1600 | 700 | 550 | 360 | |
| 22KW-2 | 335 | 425 | 475 | 125 | 280 | 228 | 190 | 830 | 180 | 250 | 150 | 235 | 35 | 4-M16×300 | 160 | 4×φ18 | 145 | 4×φ18 | 140 | 170 | 120 | 150 | 450 | 1600 | 700 | 550 | 400 | |
| 80HFM-I-H | 2.2~3KW-4 | 335 | 335 | 385 | 140 | 280 | 230 | 190 | 650 | 155 | 250 | 150 | 235 | 35 | 4-M16×300 | 160 | 4×φ18 | 145 | 4×φ18 | 140 | 170 | 120 | 150 | 450 | 1600 | 700 | 550 | 290 |
| 4KW-4 | 335 | 335 | 385 | 140 | 280 | 230 | 190 | 650 | 155 | 250 | 150 | 235 | 35 | 4-M16×300 | 160 | 4×φ18 | 145 | 4×φ18 | 140 | 170 | 120 | 150 | 450 | 1600 | 700 | 550 | 300 | |
| 7.5KW-2 | 335 | 355 | 405 | 140 | 280 | 230 | 190 | 730 | 180 | 250 | 150 | 235 | 35 | 4-M16×300 | 160 | 4×φ18 | 145 | 4×φ18 | 140 | 170 | 120 | 150 | 450 | 1600 | 700 | 550 | 320 | |
| 11KW-2 | 335 | 425 | 475 | 140 | 280 | 230 | 190 | 830 | 180 | 250 | 150 | 235 | 35 | 4-M16×300 | 160 | 4×φ18 | 145 | 4×φ18 | 140 | 170 | 120 | 150 | 450 | 1600 | 700 | 550 | 365 | |
| 18.5KW-2 | 335 | 425 | 475 | 140 | 280 | 230 | 190 | 830 | 180 | 250 | 150 | 235 | 35 | 4-M16×300 | 160 | 4×φ18 | 145 | 4×φ18 | 140 | 170 | 120 | 150 | 450 | 1600 | 700 | 550 | 365 | |
| 22KW-2 | 335 | 425 | 475 | 140 | 280 | 230 | 190 | 830 | 180 | 250 | 150 | 235 | 35 | 4-M16×300 | 160 | 4×φ18 | 145 | 4×φ18 | 140 | 170 | 120 | 150 | 450 | 1600 | 700 | 550 | 400 | |
| 30~37KW-2 | 335 | 470 | 520 | 140 | 300 | 230 | 190 | 860 | 200 | 250 | 150 | 235 | 35 | 4-M16×300 | 160 | 4×φ18 | 145 | 4×φ18 | 140 | 170 | 120 | 150 | 450 | 1600 | 700 | 550 | 500 | |
| 80HFM-I-M | 11KW-4 | 400 | 400 | 480 | 205 | 385 | 265 | 200 | 850 | 200 | 370 | 195 | 245 | 20 | 4-M20×300 | 160 | 4×φ18 | 145 | 4×φ18 | 160 | 170 | 160 | 190 | 450 | 1800 | 900 | 800 | 500 |
| 型号 | 配套电机 | A | B | C | E | H1 | H2 | L1 | L2 | L3 | L4 | L5 | L6 | h | n3×s3 | D1 | n1×s1 | D2 | n2×s2 | M1 | M2 | N1 | N2 | H3 | L7 | L8 | H4 | kg 重量 |
| 100HFM-I | 3KW-4 | 335 | 335 | 385 | 130 | 280 | 225 | 190 | 650 | 155 | 250 | 150 | 235 | 35 | 4-M16×300 | 180 | 4×φ18 | 160 | 4×φ18 | 140 | 170 | 120 | 150 | 450 | 1600 | 700 | 550 | 250 |
| 4KW-4 | 335 | 335 | 385 | 130 | 280 | 225 | 190 | 650 | 155 | 250 | 150 | 235 | 35 | 4-M16×300 | 180 | 4×φ18 | 160 | 4×φ18 | 140 | 170 | 120 | 150 | 450 | 1600 | 700 | 550 | 250 | |
| 5.5KW-4 | 335 | 355 | 405 | 130 | 280 | 225 | 190 | 730 | 180 | 250 | 150 | 235 | 35 | 4-M16×300 | 180 | 4×φ18 | 160 | 4×φ18 | 140 | 170 | 120 | 150 | 450 | 1600 | 700 | 550 | 300 | |
| 7.5KW-4 | 335 | 355 | 405 | 130 | 280 | 225 | 190 | 730 | 180 | 250 | 150 | 235 | 35 | 4-M16×300 | 180 | 4×φ18 | 160 | 4×φ18 | 140 | 170 | 120 | 150 | 450 | 1600 | 700 | 550 | 320 | |
| 15KW-2 | 335 | 425 | 475 | 130 | 280 | 225 | 190 | 830 | 180 | 250 | 150 | 235 | 35 | 4-M16×300 | 180 | 4×φ18 | 160 | 4×φ18 | 140 | 170 | 120 | 150 | 450 | 1600 | 700 | 550 | 350 | |
| 18.5KW-2 | 335 | 425 | 475 | 130 | 280 | 225 | 190 | 830 | 180 | 250 | 150 | 235 | 35 | 4-M16×300 | 180 | 4×φ18 | 160 | 4×φ18 | 140 | 170 | 120 | 150 | 450 | 1600 | 700 | 550 | 360 | |
| 22KW-2 | 335 | 425 | 475 | 130 | 280 | 225 | 190 | 830 | 180 | 250 | 150 | 235 | 35 | 4-M16×300 | 180 | 4×φ18 | 160 | 4×φ18 | 140 | 170 | 120 | 150 | 450 | 1600 | 700 | 550 | 400 | |
| 30KW-2 | 335 | 470 | 520 | 130 | 300 | 225 | 190 | 860 | 200 | 250 | 150 | 225 | 35 | 4-M16×300 | 180 | 4×φ18 | 160 | 4×φ18 | 140 | 170 | 120 | 150 | 450 | 1600 | 700 | 700 | 500 | |
| 45KW-2 | 335 | 520 | 570 | 130 | 325 | 225 | 190 | 860 | 265 | 250 | 150 | 225 | 35 | 4-M16×300 | 180 | 4×φ18 | 160 | 4×φ18 | 140 | 170 | 120 | 150 | 450 | 1600 | 800 | 700 | 600 | |
| 100HFM-I-H | 4KW-4 | 335 | 335 | 385 | 140 | 280 | 235 | 190 | 650 | 155 | 250 | 150 | 235 | 35 | 4-M16×300 | 180 | 4×φ18 | 160 | 4×φ18 | 140 | 170 | 120 | 150 | 450 | 1600 | 700 | 550 | 250 |
| 5.5KW-4 | 335 | 425 | 475 | 140 | 280 | 235 | 190 | 830 | 180 | 250 | 150 | 225 | 35 | 4-M16×300 | 180 | 4×φ18 | 160 | 4×φ18 | 140 | 170 | 120 | 150 | 450 | 1600 | 700 | 550 | 260 | |
| 30~37KW-2 | 335 | 470 | 520 | 140 | 300 | 235 | 190 | 860 | 200 | 250 | 150 | 225 | 35 | 4-M16×300 | 180 | 4×φ18 | 160 | 4×φ18 | 140 | 170 | 120 | 150 | 450 | 1600 | 700 | 700 | 520 | |
| 45KW-2 | 335 | 520 | 570 | 140 | 325 | 235 | 190 | 860 | 265 | 250 | 150 | 235 | 35 | 4-M16×300 | 180 | 4×φ18 | 160 | 4×φ18 | 140 | 170 | 120 | 150 | 450 | 1600 | 800 | 700 | 600 | |
| 55KW-2 | 390 | 630 | 720 | 140 | 420 | 235 | 230 | 1000 | 150 | 305 | 150 | 225 | 35 | 4-M20×300 | 180 | 4×φ18 | 160 | 4×φ18 | 160 | 190 | 120 | 150 | 450 | 1800 | 900 | 800 | 650 | |
| 100HFM-I-M1 | 15KW-4 | 400 | 400 | 480 | 200 | 385 | 270 | 200 | 850 | 200 | 370 | 200 | 245 | 20 | 4-M20×300 | 180 | 4×φ18 | 160 | 4×φ18 | 160 | 170 | 160 | 190 | 450 | 1800 | 900 | 800 | 550 |
| 18.5KW-4 | 400 | 400 | 480 | 200 | 385 | 270 | 200 | 850 | 250 | 370 | 200 | 245 | 20 | 4-M20×300 | 180 | 4×φ18 | 160 | 4×φ18 | 160 | 170 | 160 | 190 | 450 | 1800 | 900 | 800 | 600 | |
| 22KW-4 | 400 | 400 | 480 | 200 | 385 | 270 | 200 | 850 | 250 | 370 | 200 | 245 | 20 | 4-M20×300 | 180 | 4×φ18 | 160 | 4×φ18 | 160 | 170 | 160 | 190 | 450 | 1800 | 900 | 800 | 620 | |
| 100HFM-I-M | 30KW-4 | 600 | 600 | 670 | 290 | 485 | 455 | 200 | 960 | 270 | 455 | 300 | 320 | 20 | 4-M20×300 | 180 | 4×φ18 | 160 | 4×φ18 | 160 | 190 | 120 | 150 | 450 | 2200 | 1000 | 900 | 1170 |
| 37KW-4 | 600 | 600 | 670 | 290 | 485 | 455 | 200 | 960 | 340 | 455 | 300 | 320 | 20 | 4-M20×300 | 180 | 4×φ18 | 160 | 4×φ18 | 160 | 190 | 120 | 150 | 450 | 2200 | 1000 | 900 | 1250 | |
| 45KW-4 | 600 | 600 | 670 | 290 | 485 | 455 | 200 | 960 | 340 | 455 | 300 | 320 | 20 | 4-M20×300 | 180 | 4×φ18 | 160 | 4×φ18 | 160 | 190 | 120 | 150 | 450 | 2200 | 1000 | 900 | 1300 | |
| 55KW-4 | 650 | 650 | 740 | 290 | 575 | 455 | 200 | 1200 | 220 | 455 | 300 | 320 | 25 | 4-M20×300 | 180 | 4×φ18 | 160 | 4×φ18 | 160 | 190 | 120 | 150 | 450 | 2200 | 1000 | 900 | 1390 | |
| 75KW-4 | 650 | 650 | 740 | 290 | 575 | 455 | 200 | 1200 | 300 | 455 | 300 | 320 | 25 | 4-M20×300 | 180 | 4×φ18 | 160 | 4×φ18 | 160 | 190 | 120 | 150 | 450 | 2200 | 1000 | 900 | 1500 | |
| 125HFM-I-H | 37KW-2 | 520 | 520 | 590 | 155 | 385 | 260 | 250 | 835 | 250 | 430 | 220 | 270 | 20 | 4-M20×300 | 210 | 8×φ18 | 180 | 8×φ18 | 160 | 190 | 120 | 150 | 450 | 2000 | 900 | 900 | 520 |
| 45KW-2 | 555 | 555 | 625 | 155 | 385 | 260 | 250 | 835 | 250 | 430 | 220 | 270 | 20 | 4-M20×300 | 210 | 8×φ18 | 180 | 8×φ18 | 160 | 190 | 120 | 150 | 450 | 2000 | 900 | 900 | 580 | |
| 55KW-2 | 555 | 555 | 625 | 155 | 410 | 260 | 250 | 900 | 250 | 420 | 220 | 270 | 20 | 4-M20×300 | 210 | 8×φ18 | 180 | 8×φ18 | 160 | 190 | 120 | 150 | 450 | 2000 | 900 | 900 | 650 | |
| 125HFM-I-M | 37KW-4 | 600 | 600 | 670 | 285 | 485 | 465 | 200 | 960 | 340 | 450 | 295 | 320 | 22 | 4-M20×300 | 210 | 8×φ18 | 180 | 8×φ18 | 160 | 190 | 120 | 150 | 450 | 2200 | 1000 | 900 | 1260 |
| 45KW-4 | 600 | 600 | 670 | 285 | 485 | 465 | 200 | 960 | 340 | 450 | 295 | 320 | 22 | 4-M20×300 | 210 | 8×φ18 | 180 | 8×φ18 | 160 | 190 | 120 | 150 | 450 | 2200 | 1000 | 900 | 1300 | |
| 55KW-4 | 650 | 650 | 740 | 285 | 575 | 465 | 200 | 1200 | 220 | 450 | 295 | 320 | 25 | 4-M20×300 | 210 | 8×φ18 | 180 | 8×φ18 | 160 | 190 | 120 | 150 | 450 | 2200 | 1000 | 900 | 1385 | |
| 75KW-4 | 650 | 650 | 740 | 285 | 575 | 465 | 200 | 1200 | 300 | 450 | 295 | 320 | 25 | 4-M20×300 | 210 | 8×φ18 | 180 | 8×φ18 | 160 | 190 | 120 | 150 | 450 | 2200 | 1000 | 900 | 1550 | |
| 125HFM-I-M1 | 22KW-4 | 400 | 400 | 480 | 195 | 385 | 275 | 200 | 850 | 250 | 370 | 230 | 270 | 20 | 4-M20×300 | 210 | 4×φ18 | 180 | 4×φ18 | 160 | 170 | 160 | 190 | 450 | 1800 | 900 | 800 | 650 |
| 150HFM-I | 15KW-4 11KW-6 | 600 | 600 | 670 | 218 | 485 | 495 | 200 | 950 | 250 | 400 | 225 | 320 | 22 | 4-M20×300 | 240 | 8×φ22 | 210 | 8×φ22 | 160 | 190 | 120 | 150 | 450 | 2200 | 1000 | 900 | 1050 |
18.5KW-4 15KW-6 | 600 | 600 | 670 | 218 | 485 | 495 | 200 | 960 | 250 | 400 | 225 | 320 | 22 | 4-M20×300 | 240 | 8×φ22 | 210 | 8×φ22 | 160 | 190 | 120 | 150 | 450 | 2200 | 1000 | 900 | 1090 | |
| 30KW-4 | 600 | 600 | 670 | 218 | 485 | 495 | 200 | 960 | 270 | 400 | 225 | 320 | 22 | 4-M20×300 | 240 | 8×φ22 | 210 | 8×φ22 | 160 | 190 | 120 | 150 | 450 | 2200 | 1000 | 900 | 1160 | |
| 37KW-4 | 600 | 600 | 670 | 218 | 485 | 495 | 200 | 960 | 340 | 400 | 225 | 320 | 22 | 4-M20×300 | 240 | 8×φ22 | 210 | 8×φ22 | 160 | 190 | 120 | 150 | 450 | 2200 | 1000 | 900 | 1210 | |
| 45KW-4 | 600 | 600 | 670 | 218 | 485 | 495 | 200 | 960 | 340 | 400 | 225 | 320 | 22 | 4-M20×300 | 240 | 8×φ22 | 210 | 8×φ22 | 160 | 190 | 120 | 150 | 450 | 2200 | 1000 | 900 | 1240 | |
| 150HFM-I-M | 75KW-4 | 650 | 650 | 740 | 276 | 575 | 508 | 200 | 1200 | 300 | 420 | 290 | 320 | 25 | 4-M20×300 | 240 | 8×φ22 | 210 | 8×φ22 | 160 | 190 | 120 | 150 | 450 | 2200 | 1000 | 900 | 1550 |
| 90KW-4 | 650 | 650 | 740 | 276 | 575 | 508 | 200 | 1200 | 300 | 420 | 290 | 320 | 25 | 4-M20×300 | 240 | 8×φ22 | 210 | 8×φ22 | 160 | 190 | 120 | 150 | 450 | 2200 | 1000 | 900 | 1680 | |
| 110KW-4 | 650 | 650 | 740 | 276 | 575 | 508 | 300 | 1200 | 350 | 525 | 290 | 320 | 25 | 4-M20×300 | 240 | 8×φ22 | 210 | 8×φ22 | 160 | 190 | 120 | 150 | 450 | 2200 | 1000 | 900 | 1980 | |
| 200HFM-I | 18.5KW-6 30KW-4 | 600 | 600 | 670 | 205 | 485 | 495 | 200 | 960 | 270 | 422 | 300 | 320 | 45 | 4-M20×300 | 295 | 8×φ22 | 240 | 8×φ22 | 160 | 190 | 120 | 150 | 450 | 2200 | 1000 | 900 | 1050 |
37KW-4 | 600 | 600 | 670 | 205 | 485 | 495 | 200 | 960 | 340 | 422 | 300 | 320 | 45 | 4-M20×300 | 295 | 8×φ22 | 240 | 8×φ22 | 160 | 190 | 120 | 150 | 450 | 2200 | 1000 | 900 | 1340 | |
30KW-6 45KW-4 | 600 | 600 | 670 | 205 | 485 | 495 | 200 | 960 | 340 | 422 | 300 | 320 | 45 | 4-M20×300 | 295 | 8×φ22 | 240 | 8×φ22 | 160 | 190 | 120 | 150 | 450 | 2200 | 1000 | 900 | 1090 | |
55KW-6 | 650 | 650 | 740 | 205 | 575 | 495 | 200 | 1200 | 220 | 422 | 300 | 320 | 45 | 4-M20×300 | 295 | 8×φ22 | 240 | 8×φ22 | 160 | 190 | 120 | 150 | 450 | 2200 | 1000 | 900 | 1210 | |
75KW-6 | 650 | 650 | 740 | 205 | 575 | 495 | 200 | 1200 | 300 | 422 | 300 | 320 | 45 | 4-M20×300 | 295 | 8×φ22 | 240 | 8×φ22 | 160 | 190 | 120 | 150 | 450 | 2200 | 1000 | 900 | 1240 | |
| 200HFM-I-M | 75KW-4 | 650 | 650 | 740 | 263 | 575 | 520 | 200 | 1200 | 300 | 450 | 335 | 320 | 45 | 4-M20×300 | 295 | 8×φ22 | 240 | 8×φ22 | 160 | 190 | 120 | 150 | 450 | 2200 | 1000 | 900 | 1650 |
| 90KW-4 | 650 | 650 | 740 | 263 | 575 | 520 | 200 | 1200 | 300 | 450 | 335 | 320 | 45 | 4-M20×300 | 295 | 8×φ22 | 240 | 8×φ22 | 160 | 190 | 120 | 150 | 450 | 2200 | 1000 | 900 | 1700 | |
| 110KW-4 | 760 | 760 | 850 | 263 | 575 | 520 | 300 | 1200 | 350 | 450 | 335 | 320 | 45 | 4-M20×300 | 295 | 8×φ22 | 240 | 8×φ22 | 160 | 190 | 120 | 150 | 450 | 2200 | 1000 | 900 | 1845 | |
| 132KW-4 | 760 | 760 | 850 | 263 | 575 | 520 | 300 | 1200 | 370 | 450 | 335 | 320 | 45 | 4-M20×300 | 295 | 8×φ22 | 240 | 8×φ22 | 160 | 190 | 120 | 150 | 450 | 2200 | 1000 | 900 | 2050 | |
| 200HFM-I-AH | 100KW-4 | 760 | 760 | 850 | 310 | 645 | 520 | 315 | 1000×2 | 315 | 160 | 370 | 530 | 45 | 4-M20×300 | 295 | 8×φ22 | 240 | 8×φ22 | 160 | 190 | 120 | 150 | 450 | 3000 | 1100 | 1000 | 2450 |
| 132KW-4 | 760 | 760 | 850 | 310 | 645 | 540 | 315 | 1000×2 | 315 | 160 | 370 | 530 | 45 | 4-M20×300 | 295 | 12×φ22 | 240 | 8×φ22 | 160 | 190 | 120 | 150 | 450 | 3000 | 1100 | 1000 | 2450 | |
| 250HFM-I | 132KW-4 | 760 | 760 | 850 | 274 | 645 | 550 | 315 | 1000×2 | 315 | 175 | 383 | 635 | 45 | 4-M20×300 | 350 | 8×φ22 | 295 | 8×φ22 | 160 | 190 | 120 | 150 | 450 | 3000 | 1100 | 1000 | 2500 |
| 160~185KW-4 | 760 | 760 | 850 | 274 | 645 | 550 | 315 | 1000×2 | 315 | 175 | 383 | 635 | 45 | 4-M20×300 | 350 | 8×φ22 | 295 | 8×φ22 | 160 | 190 | 120 | 150 | 450 | 3000 | 1100 | 1000 | 2620 | |
| 200KW-4 | 760 | 760 | 850 | 274 | 645 | 550 | 315 | 1000×2 | 315 | 175 | 383 | 635 | 45 | 4-M20×300 | 350 | 8×φ22 | 295 | 8×φ22 | 160 | 190 | 120 | 150 | 450 | 3000 | 1100 | 1000 | 2690 | |
| 220KW-4 | 760 | 760 | 850 | 274 | 645 | 550 | 315 | 1000×2 | 315 | 175 | 383 | 635 | 45 | 4-M20×300 | 350 | 8×φ22 | 295 | 8×φ22 | 160 | 190 | 120 | 150 | 450 | 3000 | 1100 | 1000 | 3290 |
注:表中L2尺寸“1000×2”表示底板有三个安装孔,两两之间距离是1000mm。
我公司保留技术改进及尺寸修正的权利,恕不另行通知用户。
具体安装尺寸请以订货时提供的图纸为准。
8.2 HFM-II型双级泵的外形图与安装尺寸表

| 型号 | 配套电机 | A | B | C | E | H1 | H2 | L1 | L2 | L3 | L4 | L5 | L6 | h | n3×s3 | D1 | n1×s1 | D2 | n2×s2 | M1 | M2 | N1 | N2 | H3 | L7 | L8 | H4 | kg 重量 |
|---|---|---|---|---|---|---|---|---|---|---|---|---|---|---|---|---|---|---|---|---|---|---|---|---|---|---|---|---|
| 65HFM-II | 11~15KW-2 | 335 | 425 | 475 | 125 | 870 | 350 | 190 | 830 | 180 | 313.5 | 213.5 | 235 | 35 | 4-M20×300 | 145 | 4×φ18 | 125 | 4×φ18 | 160 | 170 | 160 | 190 | 450 | 1600 | 700 | 550 | 370 |
| 18.5KW-2 | 335 | 425 | 475 | 125 | 870 | 350 | 190 | 830 | 180 | 313.5 | 213.5 | 235 | 35 | 4-M20×300 | 145 | 4×φ18 | 125 | 4×φ18 | 160 | 170 | 160 | 190 | 450 | 1600 | 700 | 550 | 380 | |
| 22KW-2 | 335 | 425 | 475 | 125 | 870 | 350 | 190 | 830 | 180 | 313.5 | 213.5 | 235 | 35 | 4-M20×300 | 145 | 4×φ18 | 125 | 4×φ18 | 160 | 170 | 160 | 190 | 450 | 1600 | 700 | 550 | 420 | |
| 30~37KW-2 | 335 | 470 | 520 | 125 | 870 | 350 | 190 | 860 | 200 | 313.5 | 213.5 | 235 | 35 | 4-M20×300 | 145 | 4×φ18 | 125 | 4×φ18 | 160 | 170 | 160 | 190 | 450 | 1600 | 700 | 550 | 480 | |
| 80HFM-II | 15KW-2 | 335 | 425 | 475 | 125 | 725 | 228 | 190 | 830 | 180 | 313.5 | 213.5 | 235 | 35 | 4-M20×300 | 160 | 4×φ18 | 145 | 4×φ18 | 160 | 170 | 160 | 190 | 450 | 1600 | 700 | 550 | 370 |
| 18.5KW-2 | 335 | 425 | 475 | 125 | 725 | 228 | 190 | 830 | 180 | 313.5 | 213.5 | 235 | 35 | 4-M20×300 | 160 | 4×φ18 | 145 | 4×φ18 | 160 | 170 | 160 | 190 | 450 | 1600 | 700 | 550 | 480 | |
| 22KW-2 | 335 | 425 | 475 | 125 | 725 | 228 | 190 | 830 | 180 | 313.5 | 213.5 | 235 | 35 | 4-M20×300 | 160 | 4×φ18 | 145 | 4×φ18 | 160 | 170 | 160 | 190 | 450 | 1600 | 700 | 550 | 500 | |
| 30~37KW-2 | 335 | 470 | 520 | 125 | 745 | 228 | 190 | 860 | 200 | 313.5 | 213.5 | 235 | 35 | 4-M20×300 | 160 | 4×φ18 | 145 | 4×φ18 | 160 | 170 | 160 | 190 | 450 | 1600 | 700 | 700 | 600 | |
| 100HFM-II | 18.5KW-2 | 335 | 425 | 475 | 118 | 730 | 228 | 190 | 830 | 180 | 372 | 272 | 235 | 35 | 4-M20×300 | 180 | 4×φ18 | 160 | 4×φ18 | 160 | 170 | 160 | 190 | 450 | 1600 | 700 | 550 | 520 |
| 22KW-2 | 335 | 425 | 475 | 118 | 730 | 228 | 190 | 830 | 180 | 372 | 272 | 235 | 35 | 4-M20×300 | 180 | 4×φ18 | 160 | 4×φ18 | 160 | 170 | 160 | 190 | 450 | 1600 | 700 | 550 | 580 | |
| 30~37KW-2 | 335 | 470 | 520 | 118 | 750 | 228 | 190 | 860 | 200 | 372 | 272 | 235 | 35 | 4-M20×300 | 180 | 4×φ18 | 160 | 4×φ18 | 160 | 170 | 160 | 190 | 450 | 1600 | 700 | 700 | 650 | |
| 45KW-2 | 335 | 520 | 570 | 118 | 775 | 228 | 190 | 860 | 265 | 372 | 272 | 235 | 35 | 4-M20×300 | 180 | 4×φ18 | 160 | 4×φ18 | 160 | 170 | 160 | 190 | 450 | 1800 | 800 | 700 | 700 | |
| 55KW-2 | 390 | 630 | 720 | 118 | 805 | 228 | 230 | 1000 | 155 | 427 | 272 | 235 | 35 | 4-M20×300 | 180 | 4×φ18 | 160 | 4×φ18 | 160 | 170 | 160 | 190 | 450 | 1800 | 1000 | 800 | 750 |
注:我公司保留技术改进及尺寸修正的权利,恕不另行通知用户。
具体安装尺寸请以订货时提供的图纸为准。
8.3 进出口法兰尺寸 引用标准:GB/T 9116-2010 PN 1.0MPa

9.1 安装注意事项








