联系

UHB-XJ系列离心泵是原UHB-ZK耐腐耐磨泵基础上通过改进而来的新型耐腐耐磨离心泵。其改进之处为:
密封改良:由原K型动力密封改为了XJ集装机械密封。
叶轮改良:采用新式结构叶轮与XJ系列密封适配。
XJ系列集装式机封与原有密封技术的相比其显著特点在于:
① 密封的动环座、静环座全部采用氟塑料制作,动环、静环采用碳化硅制作,因此机封与输送液体接触的部件,都是耐强腐蚀的材质,克服了原有技术中机封局部组件材质不耐腐蚀的不足。因此改良后的XJ系列机封几乎可耐绝大数强腐蚀介质的腐蚀。
② 密封的动环座与金属安装套一体化热熔组合,减少了机封动环部的组合件,进而减少了机封的漏点,提升了机封的使用安全可靠性。
③ 优化了密封动环结构,外包套筒式动环使密封有更好的耐料浆磨损性能。
④ 经过改进后的密封结构简单,储运、安装、维护更为方便。
XJ系列密封改良后,提高了泵机密封的防腐性、耐磨性、抗泄漏性,进而提升泵机运行的安全性。且密封不易损坏和相对制造成本轻,因此还能大幅度降低用户的泵机运行成本,得到了用户的好评。
① 新能源产业:锂电池原料的生产及回收。
② 有色金属冶业:锂、镍、钴、金、银、铜、锌、锰、稀土等金属化工冶炼、工艺流程、压滤机配用、污水处理等介质输送。
③ 硫酸磷肥业:稀酸、母液、污水、海水、含硅胶的氟硅酸,磷酸料浆等介质的输送。
④ 化工及其它企业:各种硫酸、盐酸、碱性、油类的清液或料浆岗位。钛白粉、铁红粉生产,各种染料、颜料生产,非金属矿产加工等行业。
⑤ 氯碱业:盐酸、液碱、电解液等。
⑥ 水处理业:纯水、高纯水、污水(皮革污水、电镀污水、电子污水、造纸污水、纺织污水、食品污水、生活污水、制药业污水等等)。
⑦ 钢铁企业:酸洗系统的硫酸、盐酸岗位、带杂质的污水。
⑧ 湿式脱硫循环泵:能同时适用碱性、酸性、腐蚀性岗位。
⑨ 化纤、纺织印染等其他行业。(可与我司联系后确认适用情况)
5.1 不带副叶轮泵的结构简图(带冷却水K型动力密封)
| 序号 | 零部件名称 | 材质 | 序号 | 零部件名称 | 材质 | 序号 | 零部件名称 | 材质 | |
| 1 | 进口哈夫 | √ 11 | 泵壳 | UHMWPE/QT | √ 21 | 大气端静环 | SSic | ||
| 2 | 进口法兰 | √ 12 | 叶轮垫 | F26B | √ 22 | 大气端动环 | 聚苯酯 | ||
| √ 3 | 泵盖 | UHMWPE | √ 13 | 调节圈 | 304/F46 | 23 | 销紧螺钉 | ||
| √ 4 | 泵盖压紧圈 | A3 | √ 14 | 机封垫块垫 | √ 24 | 轴套 | 304 | ||
| √ 5 | 锁紧螺母 | UHMWPE/A3 | √ 15 | 机封轴套 | 304/F46 | 25 | 轴承侧盖 | HT-200 | |
| √ 6 | 泵盖垫 | F26B | √ 16 | 机封垫块 | A3/F46 | 26 | 轴承油封 | 氯丁胶 | |
| √ 7 | 防转螺母 | A3 | √ 17 | 机封垫 | F4/FPM | 27 | 轴承 | ||
| 8 | 华司 | A3 | √ 18 | 介质端静环 | SSic | 28 | 轴承座 | HT-200 | |
| √ 9 | 锁紧螺母L垫 | F26B | √ 19 | 介质端动环 | SSic | 29 | 油塞 | ||
| √ 10 | 叶轮 | UHMWPE/A3 | √ 20 | 密封盒 | PPS | 30 | 主轴 | 40Cr钢 | |
5.2 :带副叶轮泵的结构简图(带冷却水K型动力密封)

| 序号 | 零部件名称 | 材质 | 序号 | 零部件名称 | 材质 | 序号 | 零部件名称 | 材质 | |
| 1 | 进口哈夫 | √ 12 | 叶轮垫 | F26B | √ 23 | 密封盒 | 玻璃钢/PPS | ||
| √2 | O形密封圈 | FPM | 13 | 调节圈 | 304/F46 | √ 24 | 机封轴套 | 304/F46 | |
| 3 | 泵盖板 | QT | √ 14 | 泵壳 | UHMWPE/QT | √ 25 | 大气端静环 | SSic | |
| √ 4 | 泵盖 | UHMWPE | √ 15 | 机封轴套 | 304/F46 | √26 | 大气端动环 | SSic | |
| √ 5 | 泵盖垫 | 氯丁胶 | √ 16 | 机封垫块垫 | FPM | 27 | 锁紧螺钉 | ||
| √ 6 | 锁紧螺母 | UHMWPE/A3 | √ 17 | 机封垫块 | A3/F46 | 28 | 轴承侧盖 | HT-200 | |
| √ 7 | 防转螺母 | A3 | √ 18 | 介质端静环 | SSic | 29 | 轴承油封 | 氯丁胶 | |
| √8 | 止退圈 | A3 | √ 19 | 机封垫 | F4/FPM | 30 | 轴承 | ||
| 9 | 华司 | A3 | 20 | 机封压盖 | A3 | 31 | 油塞 | ||
| √ 10 | 锁紧螺母L垫 | F26B | √ 21 | 隔盘套 | A3/F46 | 32 | 主轴 | 40Cr钢 | |
| √ 11 | 叶轮 | UHMWPE/A3 | √ 22 | 介质端动环 | SSic | 33 | 轴承座 | HT-200 | |
6.1 XJ1/XJ2集装式机械密封的结构简图及简介

XJ系列集装式机械密封的特点是通过至少一组动、静环密封端面,通过补偿机构弹簧的弹力配合,使密封面贴合组成相对的滑动摩擦副,从而达到防止泄漏的效果。从密封结构分类有:单端面(XJ1)、双端面(XJ2)两种密封形式;密封材料上分类可以根据工况的不同,配置不同的过流材质主要过流部件材料有:动、静环SSic、Sic;轴套等过流部件钢衬F46、O型圈、垫床氟橡胶;其他配套件材料可分别选用非金属陶瓷、PPS等或2205、2507、904、钛材等金属材料。由于结构形式和材料的优化配置,满足了不同化工介质、不同含固量介质的使用要求。
同时由于该密封选用F46氟塑料作为主要的过流部位材料,可以完全避免金属件接触或污染介质,从密封材料的选用上部份取代了贵金属的使用,使该密封更具有对物料成分安全无污染,性价比高的特点也是设计、开发、使用的亮点所在。
XJ1单端面集装式机械密封适用于含固量在20%以下的泵使用。注意:调试点启动及运行前泵腔内必须充满液体!
XJ2双端面集装式机械密封有着使用寿命长、运行稳定、安装维修方便等优点,其外冲洗系统提供润滑、冷却的作用,延长了密封的使用寿命。技术参数:冷却水压力≤0.03MPa,温度-20~90℃,含固量≤20%。注意:禁止密封腔内无水情况运行!泵运行前,外冲洗水必须同时接通且为洁净水。
| 规格 | 进口× | 额定转速 2900r/min | 额定转速 1450r/min | ||||||||||
|---|---|---|---|---|---|---|---|---|---|---|---|---|---|
| 流量 范围 m3/h | 扬程 范围 m | 参考型号 | 流量 m3/h | 范围 | 配备 电机 | 流量 范围 m3/h | 扬程 范围 m | 参考型号 | 流量 m3/h | 扬程 m | 配备电机 | ||
| 32UHB-XJ | 32 × 25 | 3 ~ 12 | 10 ~ 25 | 32UHB-XJ-3-13 | 3 | 13 | 1.1kW -2 | 1.5 ~ 8 | 2.5 ~ 6 | 32UHB-XJ-1.5-3 | 1.5 | 3 | 0.75kW-4 |
| 32UHB-XJ-3-18 | 3 | 18 | 1.1kW-2 | 32UHB-XJ-1.5-4.5 | 1.5 | 4.5 | 0.75kW-4 | ||||||
| 32UHB-XJ-5-12 | 5 | 12 | 1.1kW-2 | 32UHB-XJ-2.5-3 | 2.5 | 3 | 0.75kW-4 | ||||||
| 32UHB-XJ-5-15 | 5 | 15 | 1.1kW-2 | 32UHB-XJ-2.5-4 | 2.5 | 4 | 0.75kW-4 | ||||||
| 32UHB-XJ-5-20 | 5 | 20 | 1.5kW-2 | 32UHB-XJ-2.5-5 | 2.5 | 5 | 0.75kW-4 | ||||||
| 32UHB-XJ-5-25 | 5 | 25 | 2.2kW-2 | 32UHB-XJ-2.5-6 | 2.5 | 6 | 0.75kW-4 | ||||||
| 32UHB-XJ-7-10 | 7 | 10 | 1.1kW-2 | 32UHB-XJ-3.5-2.5 | 3.5 | 2.5 | 0.75kW-4 | ||||||
| 32UHB-XJ-8-12 | 8 | 12 | 1.1kW-2 | 32UHB-XJ-4-3 | 4 | 3 | 0.75kW-4 | ||||||
| 32UHB-XJ-8-18 | 8 | 18 | 1.5kW-2 | 32UHB-XJ-4-4.5 | 4 | 4.5 | 0.75kW-4 | ||||||
| 32UHB-XJ-8-23 | 8 | 23 | 2.2kW-2 | 32UHB-XJ-4-5.5 | 4 | 5.5 | 0.75kW-4 | ||||||
| 32UHB-XJ-10-15 | 10 | 15 | 1.5kW-2 | 32UHB-XJ-5-3.5 | 5 | 3.5 | 0.75kW-4 | ||||||
| 32UHB-XJ-10-20 | 10 | 20 | 2.2kW-2 | 32UHB-XJ-5-5 | 5 | 5 | 0.75kW-4 | ||||||
| 32UHB-XJ-12-16 | 12 | 16 | 2.2kW-2 | 32UHB-XJ-6-4 | 6 | 4 | 0.75kW-4 | ||||||
| 40UHB-XJ | 40 × 32 | 5 ~ 20 | 10 ~ 34 | 40UHB-XJ-10-18 | 10 | 18 | 2.2kW-2 | 2.5 ~ 10 | 2.5 ~ 8.5 | 40UHB-XJ-5-4.5 | 5 | 4.5 | 0.75kW-4 |
| 40UHB-XJ-10-25 | 10 | 25 | 3kW-2 | 40UHB-XJ-5-6 | 5 | 6 | 0.75kW-4 | ||||||
| 40UHB-XJ-10-30 | 10 | 30 | 3kW-2 | 40UHB-XJ-5-7.5 | 5 | 7.5 | 0.75kW-4 | ||||||
| 40UHB-XJ-15-15 | 15 | 15 | 2.2kW-2 | 40UHB-XJ-7.5-3.5 | 7.5 | 3.5 | 0.75kW-4 | ||||||
| 40UHB-XJ-15-20 | 15 | 20 | 3kW-2 | 40UHB-XJ-7.5-5 | 7.5 | 5 | 0.75kW-4 | ||||||
| 40UHB-XJ-15-25 | 15 | 25 | 4kW-2 | 40UHB-XJ-7.5-6 | 7.5 | 6 | 0.75kW-4 | ||||||
| 40UHB-XJ-18-20 | 18 | 20 | 3kW-2 | 40UHB-XJ-9-5 | 9 | 5 | 0.75kW-4 | ||||||
| 40UHB-XJ-20-10 | 20 | 10 | 3kW-2 | 40UHB-XJ-10-2.5 | 10 | 2.5 | 0.75kW-4 | ||||||
| 50UHB-XJ | 50 × 40 | 5 ~ 30 | 10 ~ 43 | 50UHB-XJ-10-35 | 10 | 35 | 4kW-2 | 2.5 ~ 15 | 2.5 ~ 10.5 | 50UHB-XJ-5-8.5 | 5 | 8.5 | 0.75kW-4 |
| 50UHB-XJ-12-40 | 12 | 40 | 5.5kW-2 | 50UHB-XJ-6-10 | 6 | 10 | 0.75kW-4 | ||||||
| 50UHB-XJ-15-24 | 15 | 24 | 4kW-2 | 50UHB-XJ-7.5-6 | 7.5 | 6 | 0.75kW-4 | ||||||
| 50UHB-XJ-15-32 | 15 | 32 | 5.5kW-2 | 50UHB-XJ-7.5-8 | 7.5 | 8 | 1.1kW-4 | ||||||
| 50UHB-XJ-15-43 | 15 | 43 | 7.5kW-2 | 50UHB-XJ-7.5-10.5 | 7.5 | 10.5 | 1.1kW-4 | ||||||
| 50UHB-XJ-20-15 | 20 | 15 | 3kW-2 | 50UHB-XJ-10-3.5 | 10 | 3.5 | 1.1kW-4 | ||||||
| 50UHB-XJ-20-20 | 20 | 20 | 4kW-2 | 50UHB-XJ-10-5 | 10 | 5 | 1.1kW-4 | ||||||
| 50UHB-XJ-20-30 | 20 | 30 | 5.5kW-2 | 50UHB-XJ-10-7.5 | 10 | 7.5 | 1.1kW-4 | ||||||
| 50UHB-XJ-25-15 | 25 | 15 | 4kW-2 | 50UHB-XJ-12.5-3.5 | 12.5 | 3.5 | 1.1kW-4 | ||||||
| 50UHB-XJ-25-28 | 25 | 28 | 5.5kW-2 | 50UHB-XJ-12.5-7 | 12.5 | 7 | 1.1kW-4 | ||||||
| 50UHB-XJ-30-15 | 30 | 15 | 5.5kW-2 | 50UHB-XJ-15-3.5 | 15 | 3.5 | 1.1kW-4 | ||||||
| 65UHB-XJ | 65 × 50 | 20 ~ 40 | 15 ~ 36 | 65UHB-XJ-25-35 | 25 | 35 | 7.5kW-2 | 10 ~ 20 | 3.5 ~ 9 | 65UHB-XJ-12.5-8.5 | 12.5 | 8.5 | 1.5kW-4 |
| 65UHB-XJ-30-20 | 30 | 20 | 5.5kW-2 | 65UHB-XJ-15-5 | 15 | 5 | 1.1kW-4 | ||||||
| 65UHB-XJ-30-25 | 30 | 25 | 7.5kW-2 | 65UHB-XJ-15-6 | 15 | 6 | 1.1kW-4 | ||||||
| 65UHB-XJ-30-32 | 30 | 32 | 7.5kW-2 | 65UHB-XJ-15-8 | 15 | 8 | 1.5kW-4 | ||||||
| 65UHB-XJ-35-20 | 35 | 20 | 5.5kW-2 | 65UHB-XJ-17.5-5 | 17.5 | 5 | 1.1kW-4 | ||||||
| 65UHB-XJ-35-25 | 35 | 25 | 7.5kW-2 | 65UHB-XJ-17.5-6 | 17.5 | 6 | 1.5kW-4 | ||||||
| 65UHB-XJ-40-15 | 40 | 15 | 5.5kW-2 | 65UHB-XJ-20-3.5 | 20 | 3.5 | 1.1kW-4 | ||||||
| 65UHB-XJ-40-20 | 40 | 20 | 7.5kW-2 | 65UHB-XJ-20-5 | 20 | 5 | 1.5kW-4 | ||||||
| 65UHB-H-XJ | 65 × 50 | 5 ~ 36 | 35 ~ 58 | 65UHB-H-XJ-10-40 | 10 | 40 | 5.5kW-2 | 2.5 ~ 18 | 8.5 ~ 14.5 | 65UHB-H-XJ-5-10 | 5 | 10 | 1.1kW-4 |
| 65UHB-H-XJ-10-50 | 10 | 50 | 7.5kW-2 | 65UHB-H-XJ-5-12.5 | 5 | 12.5 | 1.1kW-4 | ||||||
| 65UHB-H-XJ-10-55 | 10 | 55 | 11kW-2 | 65UHB-H-XJ-5-13.5 | 5 | 13.5 | 1.1kW-4 | ||||||
| 65UHB-H-XJ-15-45 | 15 | 45 | 7.5kW-2 | 65UHB-H-XJ-7.5-11 | 7.5 | 11 | 1.1kW-4 | ||||||
| 65UHB-H-XJ-20-50 | 20 | 50 | 11kW-2 | 65UHB-H-XJ-10-12.5 | 10 | 12.5 | 1.5kW-4 | ||||||
| 65UHB-H-XJ-25-45 | 25 | 45 | 11kW-2 | 65UHB-H-XJ-12.5-11 | 12.5 | 11 | 2.2kW-4 | ||||||
| 65UHB-H-XJ-25-55 | 25 | 55 | 15kW-2 | 65UHB-H-XJ-12.5-13.5 | 12.5 | 13.5 | 2.2kW-4 | ||||||
| 65UHB-H-XJ-30-40 | 30 | 40 | 11kW-2 | 65UHB-H-XJ-15-10 | 15 | 10 | 2.2kW-4 | ||||||
| 65UHB-H-XJ-30-50 | 30 | 50 | 15kW-2 | 65UHB-H-XJ-15-12.5 | 15 | 12.5 | 2.2kW-4 | ||||||
| 65UHB-H-XJ-35-45 | 35 | 45 | 15kW-2 | 65UHB-H-XJ-17.5-11 | 17.5 | 11 | 2.2kW-4 | ||||||
| 80UHB-XJ | 80 × 65 | 20 ~ 60 | 10 ~ 60 | 80UHB-XJ-35-20 | 35 | 20 | 7.5kW-2 | 10 ~ 30 | 2.5 ~ 15 | 80UHB-XJ-17.5-5 | 17.5 | 5 | 1.1kW-4 |
| 80UHB-XJ-35-30 | 35 | 30 | 11kW-2 | 80UHB-XJ-17.5-7.5 | 17.5 | 7.5 | 1.5kW-4 | ||||||
| 80UHB-XJ-35-40 | 35 | 40 | 11kW-2 | 80UHB-XJ-17.5-10 | 17.5 | 10 | 2.2kW-4 | ||||||
| 80UHB-XJ-35-50 | 35 | 50 | 15kW-2 | 80UHB-XJ-17.5-12.5 | 17.5 | 12.5 | 2.2kW-4 | ||||||
| 80UHB-XJ-40-20 | 40 | 20 | 7.5kW-2 | 80UHB-XJ-20-5 | 20 | 5 | 1.5kW-4 | ||||||
| 80UHB-XJ-40-30 | 40 | 30 | 11kW-2 | 80UHB-XJ-20-7.5 | 20 | 7.5 | 1.5kW-4 | ||||||
| 80UHB-XJ-40-40 | 40 | 40 | 15kW-2 | 80UHB-XJ-20-10 | 20 | 10 | 2.2kW-4 | ||||||
| 80UHB-XJ-40-50 | 40 | 50 | 15kW-2 | 80UHB-XJ-20-12.5 | 20 | 12.5 | 3kW-4 | ||||||
| 80UHB-XJ-45-18 | 45 | 18 | 7.5kW-2 | 80UHB-XJ-22.5-4.5 | 22.5 | 4.5 | 1.1kW-4 | ||||||
| 规格 | 进口× | 额定转速 2900r/min | 额定转速 1450r/min | ||||||||||
|---|---|---|---|---|---|---|---|---|---|---|---|---|---|
| 流量 范围 m3/h | 扬程 范围 m | 参考型号 | 流量 m3/h | 范围 | 配备 电机 | 流量 范围 m3/h | 扬程 范围 m | 参考型号 | 流量 m3/h | 扬程 m | 配备电机 | ||
| 80UHB-XJ | 80 × 65 | 20 ~ 60 | 10 ~ 60 | 80UHB-XJ-45-35 | 45 | 35 | 11kW-2 | 10 ~ 30 | 2.5 ~ 15 | 80UHB-XJ-22.5-8.5 | 22.5 | 8.5 | 2.2kW-4 |
| 80UHB-XJ-45-50 | 45 | 50 | 15kW-2 | 80UHB-XJ-22.5-12.5 | 22.5 | 12.5 | 3kW-4 | ||||||
| 80UHB-XJ-45-60 | 45 | 60 | 22kW-2 | 80UHB-XJ-22.5-15 | 22.5 | 15 | 3kW-4 | ||||||
| 80UHB-XJ-50-15 | 50 | 15 | 7.5kW-2 | 80UHB-XJ-25-3.5 | 25 | 3.5 | 1.1kW-4 | ||||||
| 80UHB-XJ-50-30 | 50 | 30 | 11kW-2 | 80UHB-XJ-25-7.5 | 25 | 7.5 | 2.2kW-4 | ||||||
| 80UHB-XJ-50-40 | 50 | 40 | 15kW-2 | 80UHB-XJ-25-10 | 25 | 10 | 3kW-4 | ||||||
| 80UHB-XJ-50-45 | 50 | 45 | 18.5kW-2 | 80UHB-XJ-25-11 | 25 | 11 | 3kW-4 | ||||||
| 80UHB-XJ-55-40 | 55 | 40 | 18.5kW-2 | 80UHB-XJ-27.5-10 | 27.5 | 10 | 3kW-4 | ||||||
| 100UHB-XJ | 100 × 80 | 50 ~ 145 | 10 ~ 60 | 100UHB-XJ-50-50 | 50 | 50 | 18.5kW-2 | 25 ~ 72.5 | 2.5 ~ 15 | 100UHB-XJ-25-12.5 | 25 | 12.5 | 3kW-4 |
| 100UHB-XJ-50-58 | 50 | 58 | 22kW-2 | 100UHB-XJ-25-14.5 | 25 | 14.5 | 3kW-4 | ||||||
| 100UHB-XJ-60-30 | 60 | 30 | 15kW-2 | 100UHB-XJ-30-7.5 | 30 | 7.5 | 2.2kW-4 | ||||||
| 100UHB-XJ-60-40 | 60 | 40 | 18.5kW-2 | 100UHB-XJ-30-10 | 30 | 10 | 3kW-4 | ||||||
| 100UHB-XJ-60-50 | 60 | 50 | 22kW-2 | 100UHB-XJ-30-12.5 | 30 | 12.5 | 4kW-4 | ||||||
| 100UHB-XJ-70-30 | 70 | 30 | 18.5kW-2 | 100UHB-XJ-35-7.5 | 35 | 7.5 | 3kW-4 | ||||||
| 100UHB-XJ-70-40 | 70 | 40 | 22kW-2 | 100UHB-XJ-35-10 | 35 | 10 | 3kW-4 | ||||||
| 100UHB-XJ-70-45 | 70 | 45 | 30kW-2 | 100UHB-XJ-35-11 | 35 | 11 | 4kW-4 | ||||||
| 100UHB-XJ-80-15 | 80 | 15 | 11kW-2 | 100UHB-XJ-40-3.5 | 40 | 3.5 | 2.2kW-4 | ||||||
| 100UHB-XJ-80-25 | 80 | 25 | 15kW-2 | 100UHB-XJ-40-6 | 40 | 6 | 2.2kW-4 | ||||||
| 100UHB-XJ-80-30 | 80 | 30 | 18.5kW-2 | 100UHB-XJ-40-7.5 | 40 | 7.5 | 3kW-4 | ||||||
| 100UHB-XJ-80-40 | 80 | 40 | 22kW-2 | 100UHB-XJ-40-10 | 40 | 10 | 4kW-4 | ||||||
| 100UHB-XJ-80-50 | 80 | 50 | 30kW-2 | 100UHB-XJ-40-12.5 | 40 | 12.5 | 4kW-4 | ||||||
| 100UHB-XJ-100-20 | 100 | 20 | 15kW-2 | 100UHB-XJ-50-5 | 50 | 5 | 2.2kW-4 | ||||||
| 100UHB-XJ-100-25 | 100 | 25 | 18.5kW-2 | 100UHB-XJ-50-6 | 50 | 6 | 3kW-4 | ||||||
| 100UHB-XJ-100-30 | 100 | 30 | 22kW-2 | 100UHB-XJ-50-7.5 | 50 | 7.5 | 3kW-4 | ||||||
| 100UHB-XJ-100-40 | 100 | 40 | 30kW-2 | 100UHB-XJ-50-10 | 50 | 10 | 4kW-4 | ||||||
| 100UHB-XJ-100-50 | 100 | 50 | 37kW-2 | 100UHB-XJ-50-12.5 | 50 | 12.5 | 5.5kW-4 | ||||||
| 100UHB-XJ-120-15 | 120 | 15 | 18.5kW-2 | 100UHB-XJ-60-3.5 | 60 | 3.5 | 3kW-4 | ||||||
| 100UHB-XJ-120-25 | 120 | 25 | 22kW-2 | 100UHB-XJ-60-6 | 60 | 6 | 4kW-4 | ||||||
| 100UHB-XJ-120-35 | 120 | 35 | 30kW-2 | 100UHB-XJ-60-8.5 | 60 | 8.5 | 5.5kW-4 | ||||||
| 100UHB-XJ-140-10 | 140 | 10 | 18.5kW-2 | 100UHB-XJ-70-2.5 | 70 | 2.5 | 2.2kW-4 | ||||||
| 100UHB-XJ-140-15 | 140 | 15 | 22kW-2 | 100UHB-XJ-70-3.5 | 70 | 3.5 | 3kW-4 | ||||||
| 100UHB-XJ-140-28 | 140 | 28 | 30kW-2 | 100UHB-XJ-70-7 | 70 | 7 | 5.5kW-4 | ||||||
| 100UHB-XJ-145-28 | 145 | 28 | 37kW-2 | 100UHB-XJ-72.5-7 | 72.5 | 7 | 5.5kW-4 | ||||||
| 100UHB-XJ-AH | 100 × 80 | 30 ~ 100 | 50 ~ 80 | 100UHB-XJ-AH-40-70 | 40 | 70 | 22kW-2 | 15 ~ 50 | 12.5 ~ 20 | 100UHB-XJ-AH-20-17.5 | 20 | 17.5 | 4kW-4 |
| 100UHB-XJ-AH-50-70 | 50 | 70 | 30kW-2 | 100UHB-XJ-AH-25-17.5 | 25 | 17.5 | 4kW-4 | ||||||
| 100UHB-XJ-AH-60-65 | 60 | 65 | 30kW-2 | 100UHB-XJ-AH-30-16 | 30 | 16 | 4kW-4 | ||||||
| 100UHB-XJ-AH-70-60 | 70 | 60 | 37kW-2 | 100UHB-XJ-AH-35-15 | 35 | 15 | 5.5kW-4 | ||||||
| 100UHB-XJ-AH-80-55 | 80 | 55 | 30kW-2 | 100UHB-XJ-AH-40-13.5 | 40 | 13.5 | 5.5kW-4 | ||||||
| 100UHB-XJ-AH-80-60 | 80 | 60 | 37kW-2 | 100UHB-XJ-AH-40-15 | 40 | 15 | 5.5kW-4 | ||||||
| 125UHB-XJ | 125 × 100 | 90 ~ 170 | 15 ~ 52 | 125UHB-XJ-100-40 | 100 | 40 | 30kW-2 | 45 ~ 85 | 3.5 ~ 13 | 125UHB-XJ-50-10 | 50 | 10 | 4kW-4 |
| 125UHB-XJ-100-50 | 100 | 50 | 37kW-2 | 125UHB-XJ-50-12.5 | 50 | 12.5 | 5.5kW-4 | ||||||
| 125UHB-XJ-120-25 | 120 | 25 | 22kW-2 | 125UHB-XJ-60-6 | 60 | 6 | 4kW-4 | ||||||
| 125UHB-XJ-120-35 | 120 | 35 | 30kW-2 | 125UHB-XJ-60-8.5 | 60 | 8.5 | 4kW-4 | ||||||
| 125UHB-XJ-120-40 | 120 | 40 | 37kW-2 | 125UHB-XJ-60-10 | 60 | 10 | 5.5kW-4 | ||||||
| 125UHB-XJ-140-20 | 140 | 20 | 22kW-2 | 125UHB-XJ-70-5 | 70 | 5 | 4kW-4 | ||||||
| 125UHB-XJ-140-25 | 140 | 25 | 30kW-2 | 125UHB-XJ-70-6 | 70 | 6 | 4kW-4 | ||||||
| 125UHB-XJ-140-35 | 140 | 35 | 37kW-2 | 125UHB-XJ-70-8.5 | 70 | 8.5 | 5.5kW-4 | ||||||
| 125UHB-F-XJ | 125 × 100 | 130 ~ 180 | 30 ~ 60 | 125UHB-F-XJ-130-58 | 130 | 58 | 55kW-2 | 65 ~ 90 | 7.5 ~ 15 | 125UHB-F -XJ-65-14.5 | 65 | 14.5 | 7.5kW-4 |
| 125UHB-F-XJ-150-52 | 150 | 52 | 55kW-2 | 125UHB-F-XJ-75-13 | 75 | 13 | 7.5kW-4 | ||||||
| 125UHB-F-XJ-170-40 | 170 | 40 | 55kW-2 | 125UHB-F-XJ-85-10 | 85 | 10 | 7.5kW-4 | ||||||
| 125UHB-F-XJ-180-32 | 180 | 32 | 55kW-2 | 125UHB-F-XJ-90-8 | 90 | 8 | 7.5kW-4 | ||||||
| 125UHB-F-XJ-100-58 | 100 | 58 | 45kW-2 | 125UHB-F-XJ-50-14.5 | 50 | 14.5 | 7.5kW-4 | ||||||
| 125UHB-F-XJ-120-50 | 120 | 50 | 45kW-2 | 125UHB-F-XJ-60-12.5 | 60 | 12.5 | 7.5kW-4 | ||||||
| 125UHB-F-XJ-140-43 | 140 | 43 | 45kW-2 | 125UHB-F-XJ-70-10.8 | 70 | 10.8 | 7.5kW-4 | ||||||
| 125UHB-F-XJ-170-34 | 170 | 34 | 45kW-2 | 125UHB-F-XJ-85-8.5 | 85 | 8.5 | 7.5kW-4 | ||||||
| 125UHB-F-XJ-100-47 | 100 | 47 | 45kW-2 | 125UHB-F -XJ-50-11.8 | 50 | 11.8 | 5.5kW-4 | ||||||
| 125UHB-F-XJ-120-44 | 120 | 44 | 45kW-2 | 125UHB-F-XJ-60-11 | 60 | 11 | 5.5kW-4 | ||||||
| 125UHB-F-XJ-140-40 | 140 | 40 | 45kW-2 | 125UHB-F-XJ-70-10 | 70 | 10 | 5.5kW-4 | ||||||
| 125UHB-F-XJ-160-32 | 160 | 32 | 55kW-2 | 125UHB-F-XJ-80-8 | 80 | 8 | 5.5kW-4 | ||||||
| 规格 | 进口× | 额定转速 2900r/min | 额定转速 1450r/min | ||||||||||
|---|---|---|---|---|---|---|---|---|---|---|---|---|---|
| 流量 范围 m3/h | 扬程 范围 m | 参考型号 | 流量 m3/h | 范围 | 配备 电机 | 流量 范围 m3/h | 扬程 范围 m | 参考型号 | 流量 m3/h | 扬程 m | 配备电机 | ||
| 150UHB-F-XJ | 150 × 125 | 150 ~ 300 | 40 ~ 70 | 150UHB-F -XJ-170-70 | 170 | 70 | 75kW-2 | 75 ~ 150 | 10 ~ 17.5 | 150UHB-F-XJ-85-17.5 | 85 | 17.5 | 11kw -4 |
| 150UHB-F-XJ-200-65 - | 200 | 65 | 75kW-2 | 150UHB-F-XJ-100-16.3 | 100 | 16.3 | 11kw -4 | ||||||
| 150UHB-F-XJ-230-60 | 230 | 60 | 90kW-2 | 150UHB-F -XJ-115-15 -XJ | 115 | 15 | 11kw -4 | ||||||
| 150UHB-F-XJ-260-55 | 260 | 55 | 90kW-2 | 150UHB-F-XJ-130-13.8 | 130 | 13.8 | 11kw -4 | ||||||
| 150UHB-F-XJ-300-50 | 300 | 50 | 90kW-2 | 150UHB-F-XJ-150-12.5 | 150 | 12.5 | 15kw -4 | ||||||
| 150UHB-F-XJ-150-60 | 150 | 60 | 55kW-2 | 150UHB-F-XJ-75-15 | 75 | 15 | 7.5kW-4 | ||||||
| 150UHB-F-XJ-200-56 | 200 | 56 | 75kW-2 | 150UHB-F-XJ-100-14 | 100 | 14 | 11kw -4 | ||||||
| 150UHB-F-XJ-250-50 | 250 | 50 | 75kW-2 | 150UHB-F-XJ-125-12.5 | 125 | 12.5 | 11kw -4 | ||||||
| 150UHB-F-XJ-300-42 | 300 | 42 | 75kW-2 | 150UHB-F -XJ-150-10.5 | 150 | 10.5 | 11kw -4 | ||||||
| 150UHB-F-XJ-150-46 | 150 | 46 | 45kW-2 | 150UHB-F -XJ-75-11.5 | 75 | 11.5 | 7.5kW-4 | ||||||
| 150UHB-F-XJ-200-42 | 200 | 42 | 55kW-2 | 150UHB-F -XJ-100-10.5 | 100 | 10.5 | 7.5kW-4 | ||||||
| 150UHB-F-XJ-250-36 | 250 | 36 | 75kW-2 | 150UHB-F-XJ-125-9 | 125 | 9 | 7.5kW-4 | ||||||
| 规格 | 进口 | 额定转速 1450r/min | 额定转速 980r/min | ||||||||||
|---|---|---|---|---|---|---|---|---|---|---|---|---|---|
| 流量 范围 m3/h | 扬程 范围 m | 参考型号 | 流量 m3/h | 范围 | 配备 电机 | 流量 范围 m3/h | 扬程 范围 m | 参考型号 | 流量 m3/h | 扬程 m | 配备电机 | ||
| 65UHB-XJ-M2 | 65×50 | 10~40 | 15~35 | 65UHB-XJ-M2-10-30 | 10 | 30 | 3kW-4 | 6.5~27 | 6.5~16 | 65UHB-XJ-M2-6.5-13.5 | 6.5 | 13.5 | 2.2kW-6 |
| 65UHB-XJ-M2-15-15 | 15 | 15 | 3kW-4 | 65UHB-XJ-M2-10-6.5 | 10 | 6.5 | 2.2kW-6 | ||||||
| 65UHB-XJ-M2-20-20 | 20 | 20 | 4kW-4 | 65UHB-XJ-M2-13.5-9 | 13.5 | 9 | 2.2kW-6 | ||||||
| 65UHB-XJ-M2-20-30 | 20 | 30 | 5.5kW-4 | 65UHB-XJ-M2-13.5-13.5 | 13.5 | 13.5 | 3kW-6 | ||||||
| 65UHB-XJ-M2-30-20 | 30 | 20 | 5.5kW-4 | 65UHB-XJ-M2-20-9 | 20 | 9 | 3kW-6 | ||||||
| 65UHB-XJ-M2-30-30 | 30 | 30 | 7.5kW-4 | 65UHB-XJ-M2-20-13.5 | 20 | 13.5 | 3kW-6 | ||||||
| 65UHB-XJ-M2-35-15 | 35 | 15 | 5.5kW-4 | 65UHB-XJ-M2-23.5-6.5 | 23.5 | 6.5 | 2.2kW-6 | ||||||
| 65UHB-XJ-M2-35-25 | 35 | 25 | 7.5kW-4 | 65UHB-XJ-M2-23.5-11 | 23.5 | 11 | 3kW-6 | ||||||
| 65UHB-XJ-M2-40-20 | 40 | 20 | 7.5kW-4 | 65UHB-XJ-M2-27-9 | 27 | 9 | 3kW-6 | ||||||
| 65UHB-MH-XJ | 65×50 | 10~30 | 35~40 | 65UHB-MH-XJ-10-40 | 10 | 40 | 4kW-4 | 6.5~20 | 16~18 | 65UHB-MH-XJ-6.5-18 | 6.5 | 18 | 2.2kW-6 |
| 65UHB-MH-XJ-20-35 | 20 | 35 | 5.5kW-4 | 65UHB-MH-XJ-13.5-16 | 13.5 | 16 | 3kW-6 | ||||||
| 65UHB-MH-XJ-20-40 | 20 | 40 | 7.5kW-4 | 65UHB-MH-XJ-13.5-18 | 13.5 | 18 | 3kW-6 | ||||||
| 65UHB-MH-XJ-30-35 | 30 | 35 | 7.5kW-4 | 65UHB-MH-XJ-20-16 | 20 | 16 | 4kW-6 | ||||||
| 65UHB-MH-XJ-30-40 | 30 | 40 | 11kW-4 | 65UHB-MH-XJ-20-18 | 20 | 18 | 4kW-6 | ||||||
| 80UHB-II-XJ | 80×65 | 28~60 | 24~36 | 80UHB-II-XJ-30-35 | 30 | 35 | 7.5kW-4 | 18.5~40 | 10.5~16 | 80UHB-II-XJ-20-16 | 20 | 16 | 3kW-6 |
| 80UHB-II-XJ-40-30 | 40 | 30 | 11kW-4 | 80UHB-II-XJ-27-13.5 | 27 | 13.5 | 4kW-6 | ||||||
| 80UHB-II-XJ-40-35 | 40 | 35 | 11kW-4 | 80UHB-II-XJ-27-16 | 27 | 16 | 4kW-6 | ||||||
| 80UHB-II-XJ-45-32 | 45 | 32 | 11kW-4 | 80UHB-II-XJ-30-14.5 | 30 | 14.5 | 4kW-6 | ||||||
| 80UHB-II-XJ-50-30 | 50 | 30 | 11kW-4 | 80UHB-II-XJ-33.5-13.5 | 33.5 | 13.5 | 4kW-6 | ||||||
| 80UHB-M-XJ | 80× 65 | 20~ 60 | 40~ 60 | 80UHB-M-XJ-20-50 | 20 | 50 | 11kW-4 | 13.5~ 40.5 | 18~ 27 | 80UHB-M-XJ-13.5-22.5 | 13.5 | 22.5 | 4kW-6 |
| 80UHB-M-XJ-30-50 | 30 | 50 | 15kW-4 | 80UHB-M-XJ-20-22.5 | 20 | 22.5 | 5.5kW-6 | ||||||
| 80UHB-M-XJ-30-60 | 30 | 60 | 18.5kW-4 | 80UHB-M-XJ-20-27 | 20 | 27 | 7.5kW-6 | ||||||
| 80UHB-M-XJ-40-40 | 40 | 40 | 15kW-4 | 80UHB-M-XJ-27-18 | 27 | 18 | 5.5kW-6 | ||||||
| 80UHB-M-XJ-40-50 | 40 | 50 | 18.5kW-4 | 80UHB-M-XJ-27-22.5 | 27 | 22.5 | 7.5kW-6 | ||||||
| 80UHB-M-XJ-40-60 | 40 | 60 | 22kW-4 | 80UHB-M-XJ-27-27 | 27 | 27 | 7.5kW-6 | ||||||
| 80UHB-M-XJ-50-56 | 50 | 56 | 30kW-4 | 80UHB-M-XJ-33.5-25.5 | 33.5 | 25.5 | 11kW-6 | ||||||
| 80UHB-M-XJ-60-55 | 60 | 55 | 30kW-4 | 80UHB-M-XJ-40.5-25 | 40.5 | 25 | 11kW-6 | ||||||
| 100UHB-II-XJ | 100× 80 | 55~ 125 | 20~ 36 | 100UHB-II-XJ-60-35 | 60 | 35 | 15kW-4 | 37~ 84 | 9~ 16 | 100UHB-II-XJ-40.5-16 | 40.5 | 16 | 5.5kW-6 |
| 100UHB-II-XJ-70-30 | 70 | 30 | 15kW-4 | 100UHB-II-XJ-47-13.5 | 47 | 13.5 | 5.5kW-6 | ||||||
| 100UHB-II-XJ-70-35 | 70 | 35 | 18.5kW-4 | 100UHB-II-XJ-47-16 | 47 | 16 | 7.5kW-6 | ||||||
| 100UHB-II-XJ-80-30 | 80 | 30 | 18.5kW-4 | 100UHB-II-XJ-54-13.5 | 54 | 13.5 | 5.5kW-6 | ||||||
| 100UHB-II-XJ-80-35 | 80 | 35 | 22kW-4 | 100UHB-II-XJ-54-16 | 54 | 16 | 7.5kW-6 | ||||||
| 100UHB-II-XJ-100-30 | 100 | 30 | 22kW-4 | 100UHB-II-XJ-67.5-13.5 | 67.5 | 13.5 | 7.5kW-6 | ||||||
| 100UHB-M-XJ | 100× 80 | 50~ 120 | 40~ 70 | 100UHB-M-XJ-50-70 | 50 | 70 | 30kW-4 | 33.5~ 81 | 18~ 32 | 100UHB-M-XJ-33.5-32 | 33.5 | 32 | 11kW-6 |
| 100UHB-M-XJ-60-65 | 60 | 65 | 30kW-4 | 100UHB-M-XJ-40.5-29.5 | 40.5 | 29.5 | 11kW-6 | ||||||
| 100UHB-M-XJ-80-40 | 80 | 40 | 22kW-4 | 100UHB-M-XJ-54-18 | 54 | 18 | 7.5kW-6 | ||||||
| 100UHB-M-XJ-80-50 | 80 | 50 | 30kW-4 | 100UHB-M-XJ-54-22.5 | 54 | 22.5 | 11kW-6 | ||||||
| 100UHB-M-XJ-80-60 | 80 | 60 | 37kW-4 | 100UHB-M-XJ-54-27 | 54 | 27 | 11kW-6 | ||||||
| 100UHB-M-XJ-100-40 | 100 | 40 | 30kW-4 | 100UHB-M-XJ-67.5-18 | 67.5 | 18 | 11kW-6 | ||||||
| 100UHB-M-XJ-100-50 | 100 | 50 | 37kW-4 | 100UHB-M-XJ-67.5-22.5 | 67.5 | 22.5 | 15kW-6 | ||||||
| 100UHB-M-XJ-100-60 | 100 | 60 | 45kW-4 | 100UHB-M-XJ-67.5-27 | 67.5 | 27 | 15kW-6 | ||||||
| 100UHB-M-XJ-120-50 | 120 | 50 | 45kW-4 | 100UHB-M-XJ-81-22.5 | 81 | 22.5 | 15kW-6 | ||||||
| 规格 | 进口× | 额定转速 1450r/min | 额定转速 980r/min | ||||||||||
|---|---|---|---|---|---|---|---|---|---|---|---|---|---|
| 流量 范围 m3/h | 扬程 范围 m | 参考型号 | 流量 m3/h | 范围 | 配备 电机 | 流量 范围 m3/h | 扬程 范围 m | 参考型号 | 流量 m3/h | 扬程 m | 配备电机 | ||
| 125UHB-II-XJ | 125 × 100 | 75 ~ 145 | 22 ~ 40 | 125UHB-II-XJ-80-35 | 80 | 35 | 18.5kW-4 | 50.5 ~ 98 | 10 ~ 18 | 125UHB-II-XJ-54-16 | 54 | 16 | 11kW-6 |
| 125UHB-II-XJ-90-33 | 90 | 33 | 22kW-4 | 125UHB-II-XJ-60-15 | 60 | 15 | 11kW-6 | ||||||
| 125UHB-II-XJ-90-38 | 90 | 38 | 22kW-4 | 125UHB-II-XJ-60-17 | 60 | 17 | 11kW-6 | ||||||
| 125UHB-II-XJ-100-30 | 100 | 30 | 22kW-4 | 125UHB-II-XJ-67.5-13.5 | 67.5 | 13.5 | 11kW-6 | ||||||
| 125UHB-II-XJ-110-36 | 110 | 36 | 30kW-4 | 125UHB-II-XJ-74-16 | 74 | 16 | 11kW-6 | ||||||
| 125UHB-II-XJ-120-28 | 120 | 28 | 22kW-4 | 125UHB-II-XJ-80-13 | 80 | 13 | 11W-6 | ||||||
| 125UHB-II-XJ-120-33 | 120 | 33 | 30kW-4 | 125UHB-II-XJ-80-15 | 80 | 15 | 11kW-6 | ||||||
| 125UHB-II-XJ-140-25 | 140 | 25 | 30kw -4 | 125UHB-II-XJ-95-11.5 | 95 | 11.5 | 11kW-6 | ||||||
| 125UHB-II-XJ-140-30 | 140 | 30 | 30kW-4 | 125UHB-II-XJ-95-14 | 95 | 14 | 15kW-6 | ||||||
| 125UHB-M-XJ | 125 × 100 | 95 ~ 180 | 36 ~ 60 | 125UHB-M-XJ-100-50 | 100 | 50 | 37kW-4 | 64 ~ 121 | 16 ~ 27 | 125UHB-M-XJ-67.5-22.5 | 67.5 | 22.5 | 11kW-6 |
| 125UHB-M-XJ-100-60 | 100 | 60 | 45kW-4 | 125UHB-M-XJ-67.5-27 | 67.5 | 27 | 15kW-6 | ||||||
| 125UHB-M-XJ-120-50 | 120 | 50 | 45kW-4 | 125UHB-M-XJ-81-22.5 | 81 | 22.5 | 15kW-6 | ||||||
| 125UHB-M-XJ-120-60 | 120 | 60 | 55kW-4 | 125UHB-M-XJ-81-27 | 81 | 27 | 15kW-6 | ||||||
| 125UHB-M-XJ-140-40 | 140 | 40 | 37kW-4 | 125UHB-M-XJ-94.5-18 | 94.5 | 18 | 15kW-6 | ||||||
| 125UHB-M-XJ-140-50 | 140 | 50 | 45kW-4 | 125UHB-M-XJ-94.5-22.5 | 94.5 | 22.5 | 15kW-6 | ||||||
| 125UHB-M-XJ-160-40 | 160 | 40 | 45kW-4 | 125UHB-M-XJ-108-18 | 108 | 18 | 15kW-6 | ||||||
| 125UHB-M-XJ-160-50 | 160 | 50 | 55kW-4 | 125UHB-M-XJ-108-22.5 | 108 | 22.5 | 18.5kW-6 | ||||||
| 125UHB-M-XJ-180-40 | 180 | 40 | 55kW-4 | 125UHB-M-XJ-121-18 | 121 | 18 | 15W-6 | ||||||
| 150UHB-XJ | 150 × 125 | 110 ~ 290 | 20 ~ 40 | 150UHB-XJ-120-26 | 120 | 26 | 18.5kW-4 | 74~ 196 | 9 ~ 18 | 150UHB-XJ-80-11.5 | 80 | 11.5 | 7.5kW-6 |
| 150UHB-XJ-120-35 | 120 | 35 | 30kW-4 | 150UHB-XJ-80-16 | 80 | 16 | 11kW-6 | ||||||
| 150UHB-XJ-130-30 | 130 | 30 | 22kW-4 | 150UHB-XJ-87.5-13.5 | 87.5 | 13.5 | 11kW-6 | ||||||
| 150UHB-XJ-130-38 | 130 | 38 | 30kW-4 | 150UHB-XJ-87.5-17 | 87.5 | 17 | 11kW-6 | ||||||
| 150UHB-XJ-135-24 | 135 | 24 | 22kW-4 | 150UHB-XJ-90-10.5 | 90 | 10.5 | 7.5kW-6 | ||||||
| 150UHB-XJ-135-32 | 135 | 32 | 30kW-4 | 150UHB-XJ-90-14.5 | 90 | 14.5 | 11kW-6 | ||||||
| 150UHB-XJ-150-28 | 150 | 28 | 30kW-4 | 150UHB-XJ-100-12.5 | 100 | 12.5 | 11kW-6 | ||||||
| 150UHB-XJ-150-36 | 150 | 36 | 30kW-4 | 150UHB-XJ-100-16 | 100 | 16 | 11kW-6 | ||||||
| 150UHB-XJ-155-22 | 155 | 22 | 22kW-4 | 150UHB-XJ-104-10 | 104 | 10 | 7.5kW-6 | ||||||
| 150UHB-XJ-155-29 | 155 | 29 | 30kW-4 | 150UHB-XJ-104-13 | 104 | 13 | 11kW-6 | ||||||
| 150UHB-XJ-165-33 | 165 | 33 | 30kW-4 | 150UHB-XJ-111-15 | 111 | 15 | 11kW-6 | ||||||
| 150UHB-XJ-175-25 | 175 | 25 | 30kW-4 | 150UHB-XJ-118-11 | 118 | 11 | 11kW-6 | ||||||
| 150UHB-XJ-200-26 | 200 | 26 | 30kW-4 | 150UHB-XJ-135-11.5 | 135 | 11.5 | 11kW-6 | ||||||
| 150UHB-XJ-200-35 | 200 | 35 | 45kW-4 | 150UHB-XJ-135-16 | 135 | 16 | 15kW-6 | ||||||
| 150UHB-XJ-210-39 | 210 | 39 | 45kW-4 | 150UHB-XJ-142-17.5 | 142 | 17.5 | 18.5kW-6 | ||||||
| 150UHB-XJ-220-30 | 220 | 30 | 37kW-4 | 150UHB-XJ-150-13.5 | 150 | 13.5 | 15kW-6 | ||||||
| 150UHB-XJ-230-24 | 230 | 24 | 30kW-4 | 150UHB-XJ-155-10.5 | 155 | 10.5 | 15kW-6 | ||||||
| 150UHB-XJ-230-32 | 230 | 32 | 45kW-4 | 150UHB-XJ-155-14.5 | 155 | 14.5 | 15kW-6 | ||||||
| 150UHB-XJ-250-28 | 250 | 28 | 37kW-4 | 150UHB-XJ-170-12.5 | 170 | 12.5 | 15kW-6 | ||||||
| 150UHB-XJ-250-30 | 250 | 30 | 45kW-4 | 150UHB-XJ-170-13.5 | 170 | 13.5 | 18.5kW-6 | ||||||
| 150UHB-XJ-250-36 | 250 | 36 | 55kW-4 | 150UHB-XJ-170-16 | 170 | 16 | 18.5kW-6 | ||||||
| 150UHB-XJ-265-21 | 265 | 21 | 37kW-4 | 150UHB-XJ-180-9.5 | 180 | 9.5 | 15kW-6 | ||||||
| 150UHB-XJ-280-33 | 280 | 33 | 55kW-4 | 150UHB-XJ-190-15 | 190 | 15 | 18.5kW-6 | ||||||
| 150UHB-XJ-285-25 | 285 | 25 | 37kW-4 | 150UHB-XJ-192-11 | 192 | 11 | 15kW-6 | ||||||
| 150UHB-AH-XJ | 150 × 125 | 150 ~ 230 | 52 ~ 65 | 150UHB-AH-XJ-160-59 | 160 | 59 | 55kW-4 | 101 ~ 155 | 23.5 ~ 29.5 | 150UHB-AH-XJ-105-26.5 | 105 | 26.5 | 18.5kW-6 |
| 150UHB-AH-XJ-175-63 | 175 | 63 | 75kW-4 | 150UHB-AH-XJ-120-28.5 | 120 | 28.5 | 22kW-6 | ||||||
| 150UHB-AH-XJ-180-56 | 180 | 56 | 55kW-4 | 150UHB-AH-XJ-121-25.5 | 121 | 25.5 | 22kW-6 | ||||||
| 150UHB-AH-XJ-195-54 | 195 | 54 | 75kW-4 | 150UHB-AH-XJ-131-24.5 | 131 | 24.5 | 22kW-6 | ||||||
| 150UHB-AH-XJ-200-60 | 200 | 60 | 75kW-4 | 150UHB-AH-XJ-135-27 | 135 | 27 | 22kW-6 | ||||||
| 150UHB-AH-XJ-215-57 | 215 | 57 | 75kW-4 | 150UHB-AH-XJ-145-26 | 145 | 26 | 30kW-6 | ||||||
| 200UHB-XJ | 200 × 150 | 260 ~ 410 | 15 ~ 40 | 200UHB-XJ-280-20 | 280 | 20 | 37kW-4 | 175 ~ 277 | 6.5 ~ 18 | 200UHB-XJ-190-9 | 190 | 9 | 15kW-6 |
| 200UHB-XJ-290-27 | 290 | 27 | 45kW-4 | 200UHB-XJ-195-12 | 195 | 12 | 18.5kW-6 | ||||||
| 200UHB-XJ-290-34 | 290 | 34 | 55kW-4 | 200UHB-XJ-195-15.5 | 195 | 15.5 | 22kW-6 | ||||||
| 200UHB-XJ-300-22 | 300 | 22 | 37kW-4 | 200UHB-XJ-200-10 | 200 | 10 | 15kW-6 | ||||||
| 200UHB-XJ-310-30 | 310 | 30 | 55kW-4 | 200UHB-XJ-209-13.5 | 209 | 13.5 | 18.5kW-6 | ||||||
| 200UHB-XJ-310-38 | 310 | 38 | 75kW-4 | 200UHB-XJ-209-17 | 209 | 17 | 30kW-6 | ||||||
| 200UHB-XJ-330-18 | 330 | 18 | 30kW-4 | 200UHB-XJ-223-8 | 223 | 8 | 15kW-6 | ||||||
| 200UHB-XJ-330-25 | 330 | 25 | 45kW-4 | 200UHB-XJ-223-11 | 223 | 11 | 18.5kW-6 | ||||||
| 200UHB-XJ-330-32 | 330 | 32 | 55kW-4 | 200UHB-XJ-223-14.5 | 223 | 14.5 | 22kW-6 | ||||||
| 200UHB-XJ-350-20 | 350 | 20 | 37kW-4 | 200UHB-XJ-236-9 | 236 | 9 | 15kW-6 | ||||||
| 200UHB-XJ-350-28 | 350 | 28 | 55kW-4 | 200UHB-XJ-236-12.5 | 236 | 12.5 | 18.5kW-6 | ||||||
| 200UHB-XJ-350-36 | 350 | 36 | 75kW-4 | 200UHB-XJ-236-16 | 236 | 16 | 30kW-6 | ||||||
| 200UHB-XJ-370-30 | 370 | 30 | 75kW-4 | 200UHB-XJ-250-13.5 | 250 | 13.5 | 22kW-6 | ||||||
| 200UHB-XJ-375-23 | 375 | 23 | 45kW-4 | 200UHB-XJ-253-10.5 | 253 | 10.5 | 18.5kW-6 | ||||||
| 200UHB-XJ-380-16 | 380 | 16 | 37kW-4 | 200UHB-XJ-256-7 | 256 | 7 | 15kW-6 | ||||||
| 200UHB-XJ-380-25.5 | 380 | 25.5 | 55kW-4 | 200UHB-XJ-256-11.5 | 256 | 11.5 | 22kW-6 | ||||||
| 200UHB-XJ-385-34 | 385 | 34 | 75kW-4 | 200UHB-XJ-260-15.5 | 260 | 15.5 | 30kW-6 | ||||||
| 200UHB-XJ-400-18 | 400 | 18 | 45kW-4 | 200UHB-XJ-270-8 | 270 | 8 | 15kW-6 | ||||||
| 规格 | 进口× | 额定转速 1450r/min | 额定转速 980r/min | ||||||||||
|---|---|---|---|---|---|---|---|---|---|---|---|---|---|
| 流量 范围 m3/h | 扬程 范围 m | 参考型号 | 流量 m3/h | 范围 | 配备 电机 | 流量 范围 m3/h | 扬程 范围 m | 参考型号 | 流量 m3/h | 扬程 m | 配备电机 | ||
| 200UHB-ZK-AH | 200 × 150 | 270 ~ 420 | 48 ~ 67 | 200UHB-ZK-AH-290-58 | 290 | 58 | 90kW-4 | 182 ~ 283 | 21.5 ~ 30.5 | 200UHB-ZK-AH-195-26 | 195 | 26 | 37kW-6 |
| 200UHB-ZK-AH-300-65 | 300 | 65 | 110kW-4 | 200UHB-ZK-AH-200-29.5 | 200 | 29.5 | 37kW-6 | ||||||
| 200UHB-ZK-AH-320-55 | 320 | 55 | 110kW-4 | 200UHB-ZK-AH-216-25 | 216 | 25 | 37kW-6 | ||||||
| 200UHB-ZK-AH-350-60 | 350 | 60 | 110kW-4 | 200UHB-ZK-AH-236-27 | 236 | 27 | 45kW-6 | ||||||
| 200UHB-ZK-AH-360-50 | 360 | 50 | 110kW-4 | 200UHB-ZK-AH-245-22.5 | 245 | 22.5 | 37kW-6 | ||||||
| 200UHB-ZK-AH-400-53 | 400 | 53 | 110kW-4 | 200UHB-ZK-AH-270-24 | 270 | 24 | 45kW-6 | ||||||
| 250UHB-ZK-L | 250 × 200 | 380 ~ 500 | 18 ~ 35 | 250UHB-ZK-L-400-19 | 400 | 19 | 45kW-4 | 256 ~ 340 | 7 ~ 15 | 250UHB-ZK-L-270-8.5 | 270 | 8.5 | 15kW-6 |
| 250UHB-ZK-L-400-27 | 400 | 27 | 75kW-4 | 250UHB-ZK-L-270-12 | 270 | 12 | 22kW-6 | ||||||
| 250UHB-ZK-L-410-34 | 410 | 34 | 75kW-4 | 250UHB-ZK-L-275-15.5 | 275 | 15.5 | 30kW-6 | ||||||
| 250UHB-ZK-L-420-22 | 420 | 22 | 55kW-4 | 250UHB-ZK-L-285-10 | 285 | 10 | 18.5kW-6 | ||||||
| 250UHB-ZK-L-440-30 | 440 | 30 | 75kW-4 | 250UHB-ZK-L-295-13.5 | 295 | 13.5 | 30kW-6 | ||||||
| 250UHB-ZK-L-460-17 | 460 | 17 | 45kW-4 | 250UHB-ZK-L-310-7.5 | 310 | 7.5 | 15kW-6 | ||||||
| 250UHB-ZK-L-460-25 | 460 | 25 | 75kW-4 | 250UHB-ZK-L-310-11 | 310 | 11 | 22kW-6 | ||||||
| 250UHB-ZK-L-460-32 | 460 | 32 | 75kW-4 | 250UHB-ZK-L-310-14.5 | 310 | 14.5 | 30kW-6 | ||||||
| 250UHB-ZK-DL | 250 x 200 | 450 ~ 680 | 20 ~ 38 | 250UHB-ZK-DL-400-35 | 400 | 35 | 75kW-4 | 260 ~ 450 | 8 ~ 17 | 250UHB-ZK-DL-270-16 | 270 | 16 | 30kW-6 |
| 250UHB-ZK-DL-450-33 | 450 | 33 | 75kW-4 | 250UHB-ZK-DL-304-15 | 304 | 15 | 30kW-6 | ||||||
| 250UHB-ZK-DL-500-30 | 500 | 30 | 75kW-4 | 250UHB-ZK-DL-335-14 | 335 | 14 | 30kW-6 | ||||||
| 250UHB-ZK-DL-520-25 | 520 | 25 | 75kW-4 | 250UHB-ZK-DL-350-11.5 | 350 | 12 | 22kW-6 | ||||||
| 250UHB-ZK-DL-550-28 | 550 | 28 | 75kW-4 | 250UHB-ZK-DL-375-12.5 | 375 | 13 | 30kW-6 | ||||||
| 250UHB-ZK-DL-560-22 | 560 | 22 | 75kW-4 | 250UHB-ZK-DL-370-10 | 370 | 10 | 22kW-6 | ||||||
| 250UHB-ZK-DL-600-20 | 600 | 20 | 75kW-4 | 250UHB-ZK-DL-400-9 | 400 | 9 | 22kW-6 | ||||||
| 250UHB-ZK | 250 × 200 | 450 ~ 740 | 15 ~ 50 | 250UHB-ZK-480-19.5 | 480 | 19.5 | 45kW-4 | 304 ~ 500 | 6.5 ~ 22.5 | 250UHB-ZK-325-8.5 | 325 | 8.5 | 18.5kW-6 |
| 250UHB-ZK-480-23.5 | 480 | 23.5 | 55kW-4 | 250UHB-ZK-325-10.5 | 325 | 10.5 | 18.5kW-6 | ||||||
| 250UHB-ZK-500-22 | 500 | 22 | 55kW-4 | 250UHB-ZK-340-10 | 340 | 10 | 18.5kW-6 | ||||||
| 250UHB-ZK-500-34 | 500 | 34 | 90kW-4 | 250UHB-ZK-340-15.5 | 340 | 15.5 | 30kW-6 | ||||||
| 250UHB-ZK-500-43 | 500 | 43 | 110kW-4 | 250UHB-ZK-335-19.5 | 335 | 19.5 | 37kW-6 | ||||||
| 250UHB-ZK-520-27.5 | 520 | 27.5 | 75kW-4 | 250UHB-ZK-350-12.5 | 350 | 12.5 | 22kW-6 | ||||||
| 250UHB-ZK-520-39 | 520 | 39 | 90kW-4 | 250UHB-ZK-350-17.5 | 350 | 17.5 | 37kW-6 | ||||||
| 250UHB-ZK-520-49 | 520 | 49 | 132kW-4 | 250UHB-ZK-350-22 | 350 | 22 | 45kW-6 | ||||||
| 250UHB-ZK-550-18 | 550 | 18 | 45kW-4 | 250UHB-ZK-370-8 | 370 | 8 | 18.5kW-6 | ||||||
| 250UHB-ZK-550-22 | 550 | 22 | 55kW-4 | 250UHB-ZK-370-10 | 370 | 10 | 22kW-6 | ||||||
| 250UHB-ZK-560-32 | 560 | 32 | 90kW-4 | 250UHB-ZK-380-14.5 | 380 | 14.5 | 30kW-6 | ||||||
| 250UHB-ZK-565-40 | 565 | 40 | 110kW-4 | 250UHB-ZK-380-18 | 380 | 18 | 37kW-6 | ||||||
| 250UHB-ZK-600-20 | 600 | 20 | 55kW-4 | 250UHB-ZK-405-9 | 405 | 9 | 22kW-6 | ||||||
| 250UHB-ZK-600-26 | 600 | 26 | 75kW-4 | 250UHB-ZK-405-11.5 | 405 | 11.5 | 30kW-6 | ||||||
| 250UHB-ZK-600-32 | 600 | 32 | 90kW-4 | 250UHB-ZK-405-14.5 | 405 | 14.5 | 37kW-6 | ||||||
| 250UHB-ZK-600-34 | 600 | 34 | 90kW-4 | 250UHB-ZK-405-15.5 | 405 | 15.5 | 37kW-6 | ||||||
| 250UHB-ZK-600-36 | 600 | 36 | 110kW-4 | 250UHB-ZK-405-16 | 405 | 16 | 37kW-6 | ||||||
| 250UHB-ZK-600-45 | 600 | 45 | 132kW-4 | 250UHB-ZK-405-20.5 | 405 | 20.5 | 45kW-6 | ||||||
| 250UHB-ZK-620-16 | 620 | 16 | 55kW-4 | 250UHB-ZK-420-7 | 420 | 7 | 18.5kW-6 | ||||||
| 250UHB-ZK-620-30 | 620 | 30 | 90kW-4 | 250UHB-ZK-420-13.5 | 420 | 13.5 | 37kW-6 | ||||||
| 250UHB-ZK-620-36 | 620 | 36 | 110kW-4 | 250UHB-ZK-420-16 | 420 | 16 | 37kW-6 | ||||||
| 250UHB-ZK-660-42 | 660 | 42 | 132kW-4 | 250UHB-ZK-445-19 | 445 | 19 | 45kW-6 | ||||||
| 250UHB-ZK-670-30 | 670 | 30 | 110kW-4 | 250UHB-ZK-450-13.5 | 450 | 13.5 | 37kW-6 | ||||||
| 250UHB-ZK-670-34 | 670 | 34 | 110kW-4 | 250UHB-ZK-455-15.5 | 455 | 15.5 | 37kW-6 | ||||||
| 250UHB-ZK-680-23 | 680 | 23 | 75kW-4 | 250UHB-ZK-459-10.5 | 459 | 10.5 | 30kW-6 | ||||||
| 250UHB-ZK-700-18 | 700 | 18 | 75kW-4 | 250UHB-ZK-475-8 | 475 | 8 | 22kW-6 | ||||||
| 250UHB-ZK-700-32 | 700 | 32 | 110kW-4 | 250UHB-ZK-475-14.5 | 475 | 14.5 | 37kW-6 | ||||||
| 250UHB-ZK-720-28 | 720 | 28 | 110kW-4 | 250UHB-ZK-485-12.5 | 485 | 12.5 | 37kW-6 | ||||||
| 250UHB-ZK-800-28 | 800 | 28 | 110kW-4 | 250UHB-ZK-540-12.5 | 540 | 12.5 | 37kW-6 | ||||||
| 300UHB-ZK-L | 300 × 250 | 500 ~ 900 | 15 ~ 55 | 300UHB-ZK-L-550-55 | 550 | 55 | 160kW-4 | 360 ~ 600 | 6.5 ~ 25 | 300UHB-ZK-L-370-25 | 370 | 25 | 55kW-6 |
| 300UHB-ZK-L-625-20 | 625 | 20 | 75kW-4 | 300UHB-ZK-L-422-9 | 422 | 9 | 22kW-6 | ||||||
| 300UHB-ZK-L-650-48 | 650 | 48 | 160kW-4 | 300UHB-ZK-L-440-21.5 | 440 | 21.5 | 55kW-6 | ||||||
| 300UHB-ZK-L-650-53 | 650 | 53 | 160kW-4 | 300UHB-ZK-L-440-24 | 440 | 24 | 55kW-6 | ||||||
| 300UHB-ZK-L-680-21.5 | 680 | 21.5 | 75kW-4 | 300UHB-ZK-L-459-9.5 | 459 | 9.5 | 30kW-6 | ||||||
| 300UHB-ZK-L-700-46 | 700 | 46 | 160kW-4 | 300UHB-ZK-L-475-21 | 475 | 21 | 55kW-6 | ||||||
| 300UHB-ZK-L-750-18 | 750 | 18 | 75kW-4 | 300UHB-ZK-L-506-8 | 506 | 8 | 22kW-6 | ||||||
| 300UHB-ZK-L-750-50 | 750 | 50 | 185kW-4 | 300UHB-ZK-L-510-22 | 510 | 22 | 75kW-6 | ||||||
| 300UHB-ZK-L-780-40 | 780 | 40 | 160kW-4 | 300UHB-ZK-L525-18 | 525 | 18 | 75kW-6 | ||||||
| 300UHB-ZK-L-800-20 | 800 | 20 | 75kW-4 | 300UHB-ZK-L-540-9 | 540 | 9 | 30kW-6 | ||||||
| 300UHB-ZK-L-800-23.5 | 800 | 23.5 | 90kW-4 | 300UHB-ZK-L-540-10.5 | 540 | 10.5 | 37kW-6 | ||||||
| 300UHB-ZK-L-800-32 | 800 | 32 | 132kW-4 | 300UHB-ZK-L-540-14.5 | 540 | 14.5 | 45kW-6 | ||||||
| 300UHB-ZK-L-820-45 | 820 | 45 | 185kW-4 | 300UHB-ZK-L-550-20 | 550 | 20 | 75kW-6 | ||||||
| 300UHB-ZK-L-840-16 | 840 | 16 | 75kW-4 | 300UHB-ZK-L-567-7 | 567 | 7 | 22kW-6 | ||||||
| 300UHB-ZK-L-880-18.5 | 880 | 18.5 | 75kW-4 | 300UHB-ZK-L-594-8 | 594 | 8 | 30kW-6 | ||||||
| 300UHB-ZK-L-880-28 | 880 | 28 | 110kW-4 | 300UHB-ZK-L-594-12.5 | 594 | 12.5 | 45kW-6 | ||||||
| 规格 | 进口× | 额定转速 14500r/min | 额定转速 980r/min | ||||||||||
| 流量 范围 m3/h | 扬程 范围 m | 参考型号 | 流量 m3/h | 范围 | 配备 电机 | 流量 范围 m3/h | 扬程 范围 m | 参考型号 | 流量 m3/h | 扬程 m | 配备电机 | ||
| 300UHB-ZK-DL | 300 ~ 250 | 800 ~ 1350 | 26 | 300UHB-ZK-DL-800-38 | 800 | 38 | 160kW-4 | 500 | 13 ~ 118 | 300UHB-ZK-DL-540-17 | 540 | 17 | 55kW-6 |
| 300UHB-ZK-DL-900-35 | 900 | 35 | 160kW-4 | 300UHB-ZK-DL-605-16 | 605 | 16 | 55kW-6 | ||||||
| 300UHB-ZK-DL-900-38 | 900 | 38 | 160kW-4 | 300UHB-ZK-DL-605-17.5 | 605 | 17.5 | 75kW-6 | ||||||
| 300UHB-ZK-DL-1000-32 | 1000 | 32 | 160kW-4 | 300UHB-ZK-DL-660-14.5 | 660 | 14.5 | 75kW-6 | ||||||
| 300UHB-ZK-DL-1100-30 | 1100 | 30 | 160kW-4 | 300UHB-ZK-DL-740-14 | 740 | 14 | 75kW-6 | ||||||
| 300UHB-ZK-DL-1100-32 | 1100 | 32 | 160kW-4 | 300UHB-ZK-DL-740-15 | 740 | 15 | 75kW-6 | ||||||
| 300UHB-ZK-DL-1200-28 | 1200 | 28 | 160kW-4 | 300UHB-ZK-DL-810-13 | 810 | 13 | 75kW-6 | ||||||
| 300UHB-ZK-DL-1300-28 | 1300 | 28 | 185kW-4 | 300UHB-ZK-DL-880-13 | 880 | 13 | 75kW-6 | ||||||
| 300UHB-ZK-H (300UHB-ZK-H-S) | 300 | 900 | 30 ~ 55 | 300UHB-ZK-H -920-43 | 920 | 43 | 200kW-4 | 680 | 10 ~ 20 | 300UHB-ZK-H -710-10.5 | 710 | 10.5 | 75kW-6 |
| 300UHB-ZK-H -980-55 | 980 | 55 | 250kW-4 | 300UHB-ZK-H -725-14.5 | 725 | 14.5 | 110kW-6 | ||||||
| 300UHB-ZK-H -1050-40 | 1050 | 40 | 200kW-4 | 300UHB-ZK-H -740-19 | 740 | 19 | 75kW-6 | ||||||
| 300UHB-ZK-H -1120-52 | 1120 | 52 | 250kW-4 | 300UHB-ZK-H -770-12.5 | 770 | 12.5 | 110kW-6 | ||||||
| 300UHB-ZK-H -1180-36 | 1180 | 36 | 200kW-4 | 300UHB-ZK-H -790-17 | 790 | 17 | 75kW-6 | ||||||
| 300UHB-ZK-H -1200-51 | 1200 | 51 | 280kW-4 | 300UHB-ZK-H -830-9.5 | 830 | 9.5 | 110kW-6 | ||||||
| 300UHB-ZK-H -1250-34 | 1250 | 34 | 200kW-4 | 300UHB-ZK-H -830-13.5 | 830 | 13.5 | 75kW-6 | ||||||
| 300UHB-ZK-H -1320-48 | 1320 | 48 | 185kW-4 | 300UHB-ZK-H -930-18 | 930 | 18 | 110kW-6 | ||||||
| 350UHB-ZK-H (350UHB-ZK-H-S) | 350 | 1150 | 40 ~ 60 | 350UHB-ZK-H-1200-52 | 1200 | 52 | 315kW-4 | 800 | 20 ~ 28 | 350UHB-ZK-H-810-23 | 810 | 23 | 110kW-6 |
| 350UHB-ZK-H-1250-60 | 1250 | 60 | 355kW-4 | 350UHB-ZK-H-850-27 | 850 | 27 | 132kW-6 | ||||||
| 350UHB-ZK-H-1350-48 | 1350 | 48 | 355kW-4 | 350UHB-ZK-H-910-22 | 910 | 22 | 132kW-6 | ||||||
| 350UHB-ZK-H-1350-55 | 1350 | 55 | 355kW-4 | 350UHB-ZK-H-910-25 | 910 | 25 | 132kW-6 | ||||||
| 350UHB-ZK-H-1400-44 | 1400 | 44 | 355kW-4 | 350UHB-ZK-H-950-20 | 950 | 20 | 110kW-6 | ||||||
| 350UHB-ZK-H-1400-50 | 1400 | 50 | 355kW-4 | 350UHB-ZK-H-950-23 | 950 | 23 | 132kW-6 | ||||||
| 规格 | 进口 | 额定转速 980r/min | 额定转速 750r/min | ||||||||||
|---|---|---|---|---|---|---|---|---|---|---|---|---|---|
| 流量 范围 m3/h | 扬程 范围 m | 参考型号 | 流量 m3/h | 范围 | 配备 电机 | 流量 范围 m3/h | 扬程 范围 m | 参考型号 | 流量 m3/h | 扬程 m | 配备电机 | ||
| 300UHB-ZK (300UHB-ZK-S) | 300 × 250 | 900 ~ 1400 | 15 ~ 50 | 300UHB-ZK-940-19 | 940 | 19 | 90kW-6 | 679 ~ 1057 | 8.5 ~ 28.5 | 300UHB-ZK-710-10.5 | 710 | 10.5 | 45kW-8 |
| 300UHB-ZK-960-26 | 960 | 26 | 132kW-6 | 300UHB-ZK-725-14.5 | 725 | 14.5 | 75kW-8 | ||||||
| 300UHB-ZK-980-34 | 980 | 34 | 160kW-6 | 300UHB-ZK-740-19 | 740 | 19 | 90kW-8 | ||||||
| 300UHB-ZK-1020-22 | 1020 | 22 | 110kW-6 | 300UHB-ZK-770-12.5 | 770 | 12.5 | 55kW-8 | ||||||
| 300UHB-ZK-1050-30 | 1050 | 30 | 160kW-6 | 300UHB-ZK-790-17 | 790 | 17 | 75kW-8 | ||||||
| 300UHB-ZK-1100-17 | 1100 | 17 | 90kW-6 | 300UHB-ZK-830-9.5 | 830 | 9.5 | 45kW-8 | ||||||
| 300UHB-ZK-1100-24 | 1100 | 24 | 132kW-6 | 300UHB-ZK-830-13.5 | 830 | 13.5 | 75kW-8 | ||||||
| 300UHB-ZK-1100-32 | 1100 | 32 | 160kW-6 | 300UHB-ZK-930-18 | 930 | 18 | 90kW-8 | ||||||
| 300UHB-ZK-1180-16 | 1180 | 16 | 90kW-6 | 300UHB-ZK-890-9 | 890 | 9 | 55kW-8 | ||||||
| 300UHB-ZK-1180-30 | 1180 | 30 | 185kW-6 | 300UHB-ZK-890-17 | 890 | 17 | 90kW-8 | ||||||
| 300UHB-ZK-1200-20 | 1200 | 20 | 110kW-6 | 300UHB-ZK-905-11 | 905 | 11 | 55kW-8 | ||||||
| 300UHB-ZK-1200-22 | 1200 | 22 | 132kW-6 | 300UHB-ZK-905-12.5 | 905 | 12.5 | 75kW-8 | ||||||
| 300UHB-ZK-1200-28 | 1200 | 28 | 160kW-6 | 300UHB-ZK-905-15.5 | 905 | 15.5 | 90kW-8 | ||||||
| 300UHB-ZK-1300-26 | 1300 | 26 | 160kW-6 | 300UHB-ZK-980-14.5 | 980 | 14.5 | 90kW-8 | ||||||
| 300UHB-ZK-1340-18 | 1340 | 18 | 110kW-6 | 300UHB-ZK-1010-10 | 1010 | 10 | 75kW-8 | ||||||
| 350UHB-ZK(350UHB-ZK-S) | 350 × 300 | 1450 ~ 2150 | 15 ~ 40 | 350UHB-ZK-1520-27 | 1520 | 27 | 185kW-6 | 1094 ~ 1623 | 8.5 ~ 22.5 | 350UHB-ZK-1150-15 | 1150 | 15 | 110kW-8 |
| 350UHB-ZK-1550-19 | 1550 | 19 | 132kW-6 | 350UHB-ZK-1150-10.5 | 1150 | 10.5 | 75kW-8 | ||||||
| 350UHB-ZK-1550-34 | 1550 | 34 | 250kW-6 | 350UHB-ZK-1150-19 | 1150 | 19 | 132kW-8 | ||||||
| 350UHB-ZK-1600-21.5 | 1600 | 21.5 | 160kW-6 | 350UHB-ZK-1200-12 | 1200 | 12 | 90kW-8 | ||||||
| 350UHB-ZK-1600-30 | 1600 | 30 | 220kW-6 | 350UHB-ZK-1200-17 | 1200 | 17 | 110kW-8 | ||||||
| 350UHB-ZK-1600-38 | 1600 | 38 | 280kW-6 | 350UHB-ZK-1200-21.5 | 1200 | 21.5 | 160kW-8 | ||||||
| 350UHB-ZK-1700-18 | 1700 | 18 | 132kW-6 | 350UHB-ZK-1300-10 | 1300 | 10 | 75kW-8 | ||||||
| 350UHB-ZK-1700-25 | 1700 | 25 | 220kW-6 | 350UHB-ZK-1280-14 | 1280 | 14 | 110kW-8 | ||||||
| 350UHB-ZK-1700-32 | 1700 | 32 | 250kW-6 | 350UHB-ZK-1280-18 | 1280 | 18 | 132kW-8 | ||||||
| 350UHB-ZK-1780-17 | 1780 | 17 | 160kW-6 | 350UHB-ZK-1350-9.5 | 1350 | 9.5 | 75kW-8 | ||||||
| 350UHB-ZK-1780-23.5 | 1780 | 23.5 | 220kW-6 | 350UHB-ZK-1355-13 | 1355 | 13 | 110kW-8 | ||||||
| 350UHB-ZK-1780-30.5 | 1780 | 30.5 | 250kW-6 | 350UHB-ZK-1350-17 | 1350 | 17 | 132kW-8 | ||||||
| 350UHB-ZK-1800-20 | 1800 | 20 | 160kW-6 | 350UHB-ZK-1350-11 | 1350 | 11 | 90kW-8 | ||||||
| 350UHB-ZK-1800-28 | 1800 | 28 | 220kW-6 | 350UHB-ZK-1350-15.5 | 1350 | 15.5 | 132kW-8 | ||||||
| 350UHB-ZK-1800-36 | 1800 | 36 | 280kW-6 | 350UHB-ZK-1350-20.5 | 1350 | 20.5 | 160kW-8 | ||||||
| 350UHB-ZK-2000-18.5 | 2000 | 18.5 | 160kW-6 | 350UHB-ZK-1500-10.5 | 1500 | 10.5 | 90kW-8 | ||||||
| 350UHB-ZK-2000-26 | 2000 | 26 | 220kW-6 | 350UHB-ZK-1500-14.5 | 1500 | 14.5 | 132kW-8 | ||||||
| 350UHB-ZK-2050-32 | 2050 | 32 | 280kW-6 | 350UHB-ZK-1550-18 | 1550 | 18 | 160kW-8 | ||||||
| 350UHB-ZK-AH | 350 × 300 | 1300 ~ 2300 | 45 ~ 58 | 350UHB-ZK-AH-1400-56 | 1400 | 56 | 400kW-6 | 900 ~ 1600 | 18 ~ 30 | 350UHB-ZK-AH-950-26 | 950 | 26 | 132kW-8 |
| 350UHB-ZK-AH-1500-62 | 1500 | 62 | 450kW-6 | 350UHB-ZK-AH-1000-28 | 1000 | 28 | 160kW-8 | ||||||
| 350UHB-ZK-AH-1700-53 | 1700 | 53 | 500kW-6 | 350UHB-ZK-AH-1150-24 | 1150 | 24 | 160kW-8 | ||||||
| 350UHB-ZK-AH-1800-58 | 1800 | 58 | 450kW-6 | 350UHB-ZK-AH-1200-26 | 1200 | 26 | 185kW-8 | ||||||
| 350UHB-ZK-AH-1900-48 | 1900 | 48 | 500kW-6 | 350UHB-ZK-AH-1280-22 | 1280 | 22 | 160kW-8 | ||||||
| 350UHB-ZK-AH-2000-53 | 2000 | 53 | 500kW-6 | 350UHB-ZK-AH-1350-24 | 1350 | 24 | 185kW-8 | ||||||
| 350UHB-ZK-AH-2200-42 | 2200 | 42 | 500kW-6 | 350UHB-ZK-AH-1500-19 | 1500 | 19 | 160kW-8 | ||||||
| 350UHB-ZK-AH-2200-48 | 2200 | 48 | 500kW-6 | 350UHB-ZK-AH-1500-22 | 1500 | 22 | 185kW-8 | ||||||
| 规格 | 进口× | 额定转速 980r/min | 额定转速 750r/min | ||||||||||
|---|---|---|---|---|---|---|---|---|---|---|---|---|---|
| 流量 范围 m3/h | 扬程 范围 m | 参考型号 | 流量 m3/h | 范围 | 配备 电机 | 流量 范围 m3/h | 扬程 范围 m | 参考型号 | 流量 m3/h | 扬程 m | 配备电机 | ||
| 400UHB-ZK (400UHB-ZKS ) | 400 × 350 | 1950 ~ 2700 | 16 ~ 30 | 400UHB-ZK-2000-19 | 2000 | 19 | 185kW-6 | 1472 ~ 2038 | 9 ~ 20 | 400UHB-ZK-S-1500-10.5 | 1500 | 10.5 | 90kW-8 |
| 400UHB-ZK-S-2000-26.5 | 2000 | 26.5 | 250kW-6 | 400UHB-ZK-S-1500-15 | 1500 | 15 | 132kW-8 | ||||||
| 400UHB-ZK-S-2150-21 | 2150 | 21 | 220kW-6 | 400UHB-ZK-S-1620-11.5 | 1620 | 11.5 | 110kW-8 | ||||||
| 400UHB-ZK-S-2150-29.5 | 2150 | 29.5 | 280kW-6 | 400UHB-ZK-S-1620-16.5 | 1620 | 16.5 | 160kW-8 | ||||||
| 400UHB-ZK-S-2250-18 | 2250 | 18 | 185kW-6 | 400UHB-ZK-S-1700-10 | 1700 | 10 | 110kW-8 | ||||||
| 400UHB-ZK-S-2250-25 | 2250 | 25 | 250kW-6 | 400UHB-ZK-S-1700-14 | 1700 | 14 | 132kW-8 | ||||||
| 400UHB-ZK-S-2250-32 | 2250 | 32 | 315kW-6 | 400UHB-ZK-S-1700-18 | 1700 | 18 | 185kW-8 | ||||||
| 400UHB-ZK-S-2380-17 | 2380 | 17 | 185kW-6 | 400UHB-ZK-S-1780-9.5 | 1780 | 9.5 | 110kW-8 | ||||||
| 400UHB-ZK-S-2380-23.5 | 2380 | 23.5 | 250kW-6 | 400UHB-ZK-S-1800-13 | 1800 | 13 | 160kW-8 | ||||||
| 400UHB-ZK-S-2380-30 | 2380 | 30 | 355kW-6 | 400UHB-ZK-S-1800-17 | 1800 | 17 | 185kW-8 | ||||||
| 400UHB-ZK-S-2400-20 | 2400 | 20 | 220kW-6 | 400UHB-ZK-S-1800-11 | 1800 | 11 | 110kW-8 | ||||||
| 400UHB-ZK-S-2400-28 | 2400 | 28 | 280kW-6 | 400UHB-ZK-S-1800-15.5 | 1800 | 15.5 | 160kW-8 | ||||||
| 400UHB-ZK-S-2550-18.5 | 2550 | 18.5 | 220kW-6 | 400UHB-ZK-S-1930-10.5 | 1930 | 10.5 | 110kW-8 | ||||||
| 500UHB-ZK (500UHB-ZK-S) | 500 × 400 | 2200 ~ 3100 | 16 ~ 39 | 500UHB-ZK-2300-19 | 2300 | 19 | 220kW-6 | 1661 ~ 2340 | 9 ~ 22 | 500UHB-ZK-1740-10.5 | 1740 | 10.5 | 110kW-8 |
| 500UHB-ZK-2300-26.5 | 2300 | 26.5 | 280kW-6 | 500UHB-ZK-1730-15 | 1730 | 15 | 160kW-8 | ||||||
| 500UHB-ZK-2400-34 | 2400 | 34 | 355kW-6 | 500UHB-ZK-1800-19 | 1800 | 19 | 220kW-8 | ||||||
| 500UHB-ZK-2500-21 | 2500 | 21 | 250kW-6 | 500UHB-ZK-1890-11.5 | 1890 | 11.5 | 132kW-8 | ||||||
| 500UHB-ZK-2500-30 | 2500 | 30 | 355kW-6 | 500UHB-ZK-1890-17 | 1890 | 17 | 185kW-8 | ||||||
| 500UHB-ZK-2550-38 | 2550 | 38 | 450kW-6 | 500UHB-ZK-1920-21.5 | 1920 | 21.5 | 220kW-8 | ||||||
| 500UHB-ZK-2600-18 | 2600 | 18 | 220kW-6 | 500UHB-ZK-1960-10 | 1960 | 10 | 110kW-8 | ||||||
| 500UHB-ZK-2600-25 | 2600 | 25 | 280kW-6 | 500UHB-ZK-1960-14 | 1960 | 14 | 160kW-8 | ||||||
| 500UHB-ZK-2650-32 | 2650 | 32 | 400kW-6 | 500UHB-ZK-2000-18 | 2000 | 18 | 220kW-8 | ||||||
| 500UHB-ZK-2800-17 | 2800 | 17 | 220kW-6 | 500UHB-ZK-2100-9.5 | 2100 | 9.5 | 110kW-8 | ||||||
| 500UHB-ZK-2800-20 | 2800 | 20 | 250kW-6 | 500UHB-ZK-2100-11 | 2100 | 11 | 132kW-8 | ||||||
| 500UHB-ZK-2800-23 | 2800 | 23 | 280kW-6 | 500UHB-ZK-2110-13 | 2110 | 13 | 160kW-8 | ||||||
| 500UHB-ZK-2800-28 | 2800 | 28 | 355kW-6 | 500UHB-ZK-2100-15.5 | 2100 | 15.5 | 185kW-8 | ||||||
| 500UHB-ZK-2800-30 | 2800 | 30 | 400kW-6 | 500UHB-ZK-2100-17 | 2100 | 17 | 220kW-8 | ||||||
| 500UHB-ZK-2800-36 | 2800 | 36 | 450kW-6 | 500UHB-ZK-2100-20.5 | 2100 | 20.5 | 220kW-8 | ||||||
| 500UHB-ZK-2950-26 | 2950 | 26 | 355kW-6 | 500UHB-ZK-2230-14.5 | 2230 | 14.5 | 185kW-8 | ||||||
| 500UHB-ZK-3000-18.5 | 3000 | 18.5 | 250kW-6 | 500UHB-ZK-2265-10.5 | 2265 | 10.5 | 132kW-8 | ||||||
| 500UHB-ZK-3000-33.5 | 3000 | 33.5 | 450kW-6 | 500UHB-ZK-2265-19 | 2265 | 19 | 250kW-8 | ||||||
| 规格 | 进口× | 额定转速 750r/min | 额定转速 590r/min | ||||||||||
|---|---|---|---|---|---|---|---|---|---|---|---|---|---|
| 流量 范围 m3/h | 扬程 范围 m | 参考型号 | 流量 m3/h | 范围 | 配备 电机 | 流量 范围 m3/h | 扬程 范围 m | 参考型号 | 流量 m3/h | 扬程 m | 配备电机 | ||
| 500UHB-ZK-D | 500 × 400 | 2900 ~ 3900 | 16 ~ 40 | 500UHB-ZK-D-3000-19 | 3000 | 19 | 250kW-8 | 2312 ~ 3109 | 10 ~ 25 | 500UHB-ZK-D-2390-12 | 2390 | 12 | 160kW-10 |
| 500UHB-ZK-D-3000-26.5 | 3000 | 26.5 | 355kW-8 | 500UHB-ZK-D-2390-16.5 | 2390 | 16.5 | 220kW-10 | ||||||
| 500UHB-ZK-D-3000-34 | 3000 | 34 | 450kW-8 | 500UHB-ZK-D-2392-21.5 | 2392 | 21.5 | 315kW-10 | ||||||
| 500UHB-ZK-D-3150-38 | 3150 | 38 | 560kW-8 | 500UHB-ZK-D-2500-24 | 2500 | 24 | 355kW-10 | ||||||
| 500UHB-ZK-D-3200-21 | 3200 | 21 | 315kW-8 | 500UHB-ZK-D-2550-13 | 2550 | 13 | 185kW-10 | ||||||
| 500UHB-ZK-D-3200-29.5 | 3200 | 29.5 | 400kW-8 | 500UHB-ZK-D-2550-18.5 | 2550 | 18.5 | 250kW-10 | ||||||
| 500UHB-ZK-D-3300-18 | 3300 | 18 | 250kW-8 | 500UHB-ZK-D-2630-11 | 2630 | 11 | 160kW-10 | ||||||
| 500UHB-ZK-D-3300-25 | 3300 | 25 | 355kW-8 | 500UHB-ZK-D-2630-15.5 | 2630 | 15.5 | 220kW-10 | ||||||
| 500UHB-ZK-D-3300-32 | 3300 | 32 | 450kW-8 | 500UHB-ZK-D-2630-20 | 2630 | 20 | 315kW-10 | ||||||
| 500UHB-ZK-D-3500-17 | 3500 | 17 | 280kW-8 | 500UHB-ZK-D-2790-10.5 | 2790 | 10.5 | 160kW-10 | ||||||
| 500UHB-ZK-D-3500-20 | 3500 | 20 | 315kW-8 | 500UHB-ZK-D-2790-12.5 | 2790 | 12.5 | 185kW-10 | ||||||
| 500UHB-ZK-D-3500-23 | 3500 | 23 | 355kW-8 | 500UHB-ZK-D-2790-14.5 | 2790 | 14.5 | 220kW-10 | ||||||
| 500UHB-ZK-D-3500-28 | 3500 | 28 | 450kW-8 | 500UHB-ZK-D-2790-17.5 | 2790 | 17.5 | 250kW-10 | ||||||
| 500UHB-ZK-D-3500-30 | 3500 | 30 | 450kW-8 | 500UHB-ZK-D-2790-19 | 2790 | 19 | 315kW-10 | ||||||
| 500UHB-ZK-D-3500-36 | 3500 | 36 | 560kW-8 | 500UHB-ZK-D-2790-22.5 | 2790 | 22.5 | 355kW-10 | ||||||
| 500UHB-ZK-D-3700-18.5 | 3700 | 18.5 | 315kW-8 | 500UHB-ZK-D-2950-11.5 | 2950 | 11.5 | 185kW-10 | ||||||
| 500UHB-ZK-D-3750-33 | 3750 | 33 | 560kW-8 | 500UHB-ZK-D-2990-20.5 | 2990 | 20.5 | 355kW-10 | ||||||
| 500UHB-ZK-D-3800-25 | 3800 | 25 | 450kW-8 | 500UHB-ZK-D-3030-15.5 | 3030 | 15.5 | 280kW-10 | ||||||
注:1. 表中轴功率为密度ρ=1时的轴功率,配备电机功率的选用应大于轴功率×ρ(介质密度);
2. 参考型号只是例举了一些常用的流量、扬程参数,实际型号根据客户需求的参数而定;
3. 本公司保留修正、调整性能参数的权利,恕不另行通知。
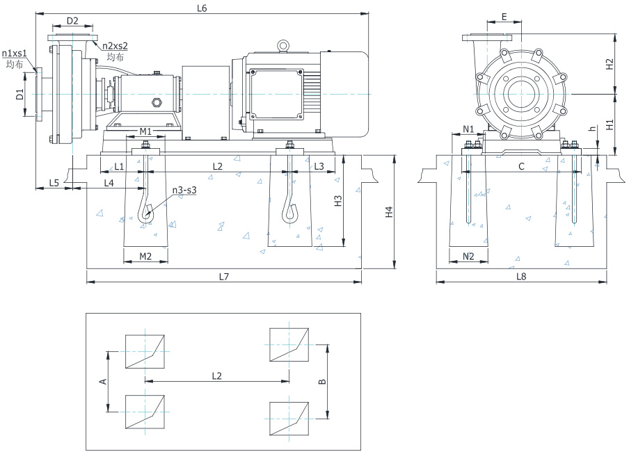
8.1 泵的出口在左侧(从进口方向看)

| 型号 | 配套电机 | A | B | C | E | H1 | H2 | L1 | L2 | L3 | L4 | L5 | L6 | h | n3×s3 | D1 | n1×s1 | D2 | n2×s2 | M1 | M2 | N1 | N2 | H3 | L7 | L8 | H4 | kg 重量 |
|---|---|---|---|---|---|---|---|---|---|---|---|---|---|---|---|---|---|---|---|---|---|---|---|---|---|---|---|---|
| 50UHB-XJ | 0.75KW-4 | 320 | 320 | 380 | 95 | 210 | 180 | 135 | 400 | 100 | 265 | 130 | 910 | 10 | 4-M12×300 | 125 | 4×φ18 | 110 | 4×φ18 | 140 | 170 | 120 | 150 | 350 | 870 | 600 | 450 | 120 |
| 1.1kW-4 | 320 | 320 | 380 | 95 | 210 | 180 | 135 | 400 | 100 | 265 | 130 | 960 | 10 | 4-M12×300 | 125 | 4×φ18 | 110 | 4×φ18 | 140 | 170 | 120 | 150 | 350 | 870 | 600 | 450 | 125 | |
| 3kW-2 | 320 | 320 | 380 | 95 | 210 | 180 | 150 | 400 | 140 | 265 | 130 | 1000 | 10 | 4-M12×300 | 125 | 4×φ18 | 110 | 4×φ18 | 140 | 170 | 120 | 150 | 350 | 870 | 600 | 450 | 135 | |
| 4kW-2 | 320 | 320 | 380 | 95 | 210 | 180 | 150 | 400 | 140 | 265 | 130 | 1020 | 10 | 4-M12×300 | 125 | 4×φ18 | 110 | 4×φ18 | 140 | 170 | 120 | 150 | 350 | 870 | 600 | 450 | 140 | |
| 5.5~7.5kW-2 | 320 | 320 | 380 | 95 | 185 | 180 | 150 | 400 | 140 | 265 | 130 | 1070 | 10 | 4-M12×300 | 125 | 4×φ18 | 110 | 4×φ18 | 140 | 170 | 120 | 150 | 350 | 870 | 600 | 450 | 160 | |
| 65UHB-XJ | 1.1kW-4 | 320 | 320 | 380 | 105 | 210 | 190 | 135 | 400 | 100 | 270 | 125 | 950 | 10 | 4-M12×300 | 145 | 4×φ18 | 125 | 4×φ18 | 140 | 170 | 120 | 150 | 350 | 870 | 600 | 450 | 115 |
| 1.5kW-4 | 320 | 320 | 380 | 105 | 210 | 190 | 150 | 400 | 140 | 270 | 125 | 980 | 10 | 4-M12×300 | 145 | 4×φ18 | 125 | 4×φ18 | 140 | 170 | 120 | 150 | 350 | 870 | 600 | 450 | 120 | |
| 5.5~7.5kW-2 | 320 | 320 | 380 | 105 | 185 | 190 | 150 | 400 | 140 | 270 | 125 | 1070 | 10 | 4-M12×300 | 145 | 4×φ18 | 125 | 4×φ18 | 140 | 170 | 120 | 150 | 350 | 870 | 600 | 450 | 160 | |
| 65UHB-XJ-H | 1.1KW-4 | 320 | 320 | 380 | 123 | 210 | 205 | 135 | 400 | 100 | 280 | 140 | 960 | 10 | 4-M12×300 | 145 | 4×φ18 | 125 | 4×φ18 | 140 | 170 | 120 | 150 | 350 | 870 | 600 | 450 | 115 |
| 1.5KW-4 | 320 | 320 | 380 | 123 | 210 | 205 | 150 | 400 | 140 | 280 | 140 | 1000 | 10 | 4-M12×300 | 145 | 4×φ18 | 125 | 4×φ18 | 140 | 170 | 120 | 150 | 350 | 870 | 600 | 450 | 120 | |
| 2.2KW-4 | 320 | 320 | 380 | 123 | 210 | 205 | 150 | 400 | 140 | 280 | 140 | 1015 | 10 | 4-M12×300 | 145 | 4×φ18 | 125 | 4×φ18 | 140 | 170 | 120 | 150 | 350 | 870 | 600 | 450 | 140 | |
| 5.5~7.5kW-2 | 320 | 320 | 380 | 123 | 185 | 205 | 150 | 400 | 140 | 280 | 140 | 1080 | 10 | 4-M12×300 | 145 | 4×φ18 | 125 | 4×φ18 | 140 | 170 | 120 | 150 | 350 | 870 | 600 | 450 | 165 | |
| 11~15kW-2 | 320 | 370 | 400 | 123 | 245 | 205 | 150 | 525 | 140 | 280 | 140 | 1230 | 10 | 4-M16×300 | 145 | 4×φ18 | 125 | 4×φ18 | 140 | 170 | 120 | 150 | 400 | 1050 | 650 | 550 | 220 | |
| 50UHB-XJ-M2 | 1.5KW-6 | 320 | 320 | 360 | 155 | 208 | 220 | 165 | 400 | 165 | 300 | 120 | 1020 | 10 | 4-M12×300 | 125 | 4×φ18 | 110 | 4×φ18 | 140 | 170 | 120 | 150 | 350 | 870 | 600 | 450 | 140 |
| 2.2KW-6 | 320 | 320 | 360 | 155 | 208 | 220 | 165 | 400 | 165 | 300 | 120 | 1040 | 10 | 4-M12×300 | 125 | 4×φ18 | 110 | 4×φ18 | 140 | 170 | 120 | 150 | 350 | 870 | 600 | 450 | 150 | |
| 4KW-4 | 320 | 320 | 360 | 155 | 208 | 220 | 165 | 400 | 165 | 300 | 120 | 1040 | 10 | 4-M12×300 | 125 | 4×φ18 | 110 | 4×φ18 | 140 | 170 | 120 | 150 | 350 | 870 | 600 | 450 | 160 | |
| 5.5KW-4 | 320 | 320 | 360 | 155 | 208 | 220 | 165 | 400 | 165 | 300 | 120 | 1070 | 10 | 4-M12×300 | 125 | 4×φ18 | 110 | 4×φ18 | 140 | 170 | 120 | 150 | 350 | 870 | 600 | 450 | 170 | |
| 7.5KW-4 | 320 | 320 | 360 | 155 | 208 | 220 | 165 | 400 | 165 | 300 | 120 | 1130 | 10 | 4-M12×300 | 125 | 4×φ18 | 110 | 4×φ18 | 140 | 170 | 120 | 150 | 350 | 870 | 600 | 450 | 180 | |
| 65UHB-XJ-M2 | 3kW-4 | 320 | 320 | 380 | 166 | 208 | 228 | 160 | 400 | 150 | 280 | 120 | 1010 | 25 | 4-M12×300 | 145 | 4×M16 | 125 | 4×φ18 | 140 | 170 | 120 | 150 | 350 | 1100 | 600 | 450 | 170 |
| 2.2KW-6 4kW-4 | 320 | 320 | 380 | 166 | 208 | 228 | 160 | 400 | 160 | 280 | 120 | 1030 | 25 | 4-M12×300 | 145 | 4×M16 | 125 | 4×φ18 | 140 | 170 | 120 | 150 | 350 | 1100 | 600 | 450 | 180 | |
| 5.5~7.5kW-4 3KW-6 | 320 | 320 | 380 | 166 | 208 | 228 | 160 | 400 | 160 | 280 | 120 | 1120 | 25 | 4-M12×300 | 145 | 4×M16 | 125 | 4×φ18 | 140 | 170 | 120 | 150 | 350 | 1100 | 600 | 450 | 200 | |
| 65UHB-XJ-MH | 4kW-4 2.2KW-6 | 400 | 400 | 475 | 205 | 280 | 400 | 190 | 550 | 210 | 310 | 135 | 1335 | 35 | 4-M16×300 | 145 | 4×M16 | 125 | 4×φ18 | 140 | 170 | 120 | 150 | 400 | 1300 | 850 | 550 | 180 |
| 5.5~7.5kW-4 3~4KW-6 | 400 | 400 | 475 | 205 | 280 | 400 | 190 | 550 | 210 | 310 | 135 | 1355 | 35 | 4-M16×300 | 145 | 4×M16 | 125 | 4×φ18 | 140 | 170 | 120 | 150 | 400 | 1300 | 850 | 550 | 200 | |
| 11kW-4 | 410 | 460 | 530 | 205 | 300 | 400 | 160 | 705 | 150 | 310 | 135 | 1390 | 20 | 4-M16×300 | 145 | 4×M16 | 125 | 4×φ18 | 140 | 170 | 120 | 150 | 400 | 1300 | 850 | 550 | 320 | |
| 80UHB-XJ | 1.1KW-4 | 320 | 320 | 380 | 125 | 210 | 220 | 135 | 400 | 100 | 260 | 135 | 965 | 10 | 4-M12×300 | 160 | 4×φ18 | 145 | 4×φ18 | 140 | 170 | 120 | 150 | 350 | 870 | 600 | 450 | 130 |
| 1.5KW-4 | 320 | 320 | 380 | 125 | 210 | 220 | 150 | 400 | 140 | 260 | 135 | 1005 | 10 | 4-M12×300 | 160 | 4×φ18 | 145 | 4×φ18 | 140 | 170 | 120 | 150 | 350 | 870 | 600 | 450 | 135 | |
| 2.2~3kW-4 | 320 | 320 | 380 | 125 | 210 | 220 | 150 | 400 | 140 | 260 | 135 | 1025 | 10 | 4-M12×300 | 160 | 4×φ18 | 145 | 4×φ18 | 140 | 170 | 120 | 150 | 350 | 870 | 600 | 450 | 140 | |
| 7.5kW-2 | 320 | 320 | 380 | 125 | 185 | 220 | 150 | 400 | 140 | 270 | 135 | 1080 | 10 | 4-M12×300 | 160 | 4×φ18 | 145 | 4×φ18 | 140 | 170 | 120 | 150 | 350 | 870 | 600 | 450 | 175 | |
| 11~15kW-2 | 320 | 370 | 400 | 125 | 245 | 220 | 150 | 525 | 140 | 270 | 135 | 1210 | 10 | 4-M16×300 | 160 | 4×φ18 | 145 | 4×φ18 | 140 | 170 | 120 | 150 | 400 | 1050 | 650 | 550 | 250 | |
| 18.5kW-2 | 320 | 370 | 400 | 125 | 245 | 220 | 150 | 570 | 140 | 270 | 135 | 1260 | 10 | 4-M16×300 | 160 | 4×φ18 | 145 | 4×φ18 | 140 | 170 | 120 | 150 | 400 | 1100 | 650 | 550 | 275 | |
| 22KW-2 | 395 | 485 | 555 | 125 | 285 | 220 | 140 | 670 | 120 | 245 | 140 | 1350 | 10 | 4-M16×300 | 160 | 4×φ18 | 145 | 4×φ18 | 140 | 170 | 120 | 150 | 400 | 1300 | 850 | 550 | 350 | |
| 100UHB-XJ | 2.2~3kW-4 | 400 | 400 | 475 | 130 | 280 | 230 | 190 | 550 | 210 | 305 | 135 | 1335 | 20 | 4-M16×300 | 180 | 8×φ18 | 160 | 4×φ18 | 140 | 170 | 120 | 150 | 400 | 1300 | 850 | 550 | 230 |
| 4kW-4 | 400 | 400 | 475 | 130 | 280 | 230 | 190 | 550 | 210 | 305 | 135 | 1335 | 20 | 4-M16×300 | 180 | 8×φ18 | 160 | 4×φ18 | 140 | 170 | 120 | 150 | 400 | 1300 | 850 | 550 | 245 | |
| 5.5kW-4 | 400 | 400 | 475 | 130 | 280 | 230 | 190 | 550 | 210 | 305 | 135 | 1335 | 20 | 4-M16×300 | 180 | 8×φ18 | 160 | 4×φ18 | 140 | 170 | 120 | 150 | 400 | 1300 | 850 | 550 | 250 | |
| 11~15kW-2 | 410 | 460 | 530 | 130 | 300 | 230 | 160 | 705 | 150 | 305 | 135 | 1390 | 20 | 4-M16×300 | 180 | 8×φ18 | 160 | 4×φ18 | 140 | 170 | 120 | 150 | 400 | 1300 | 850 | 550 | 320 | |
| 18.5kW-2 | 410 | 460 | 530 | 130 | 300 | 230 | 160 | 705 | 150 | 305 | 135 | 1430 | 20 | 4-M16×300 | 180 | 8×φ18 | 160 | 4×φ18 | 140 | 170 | 120 | 150 | 400 | 1300 | 850 | 550 | 350 | |
| 22kW-2 | 410 | 460 | 530 | 130 | 300 | 230 | 160 | 705 | 150 | 305 | 135 | 1500 | 20 | 4-M16×300 | 180 | 8×φ18 | 160 | 4×φ18 | 140 | 170 | 120 | 150 | 400 | 1300 | 850 | 550 | 380 | |
| 30~37kW-2 | 395 | 485 | 555 | 130 | 300 | 230 | 190 | 670 | 195 | 335 | 135 | 1520 | 20 | 4-M16×300 | 180 | 8×φ18 | 160 | 4×φ18 | 140 | 170 | 120 | 150 | 400 | 1300 | 850 | 550 | 460 | |
| 100UHB-XJAH | 4kW-4 | 400 | 400 | 475 | 127 | 280 | 210 | 190 | 550 | 210 | 315 | 150 | 1355 | 20 | 4-M16×300 | 180 | 8×φ18 | 160 | 4×φ18 | 140 | 170 | 120 | 150 | 400 | 1300 | 850 | 550 | 265 |
| 5.5kW-4 | 400 | 400 | 475 | 127 | 280 | 210 | 190 | 550 | 210 | 315 | 150 | 1355 | 20 | 4-M16×300 | 180 | 8×φ18 | 160 | 4×φ18 | 140 | 170 | 120 | 150 | 400 | 1300 | 850 | 550 | 280 | |
| 22kW-2 | 410 | 460 | 530 | 127 | 300 | 210 | 160 | 705 | 150 | 315 | 150 | 1465 | 20 | 4-M16×300 | 180 | 8×φ18 | 160 | 4×φ18 | 140 | 170 | 120 | 150 | 400 | 1300 | 850 | 550 | 330 | |
| 30~37kW-2 | 395 | 485 | 555 | 127 | 300 | 210 | 190 | 670 | 195 | 340 | 150 | 1540 | 20 | 4-M16×300 | 180 | 8×φ18 | 160 | 4×φ18 | 140 | 170 | 120 | 150 | 400 | 1300 | 850 | 550 | 420 | |
| 125UHB-XJ | 4kW-4 | 400 | 400 | 475 | 131 | 280 | 210 | 190 | 550 | 210 | 315 | 155 | 1360 | 20 | 4-M16×300 | 210 | 8×φ18 | 180 | 4×φ18 | 140 | 170 | 120 | 150 | 400 | 1300 | 850 | 550 | 260 |
| 5.5KW-4 | 400 | 400 | 475 | 131 | 280 | 210 | 190 | 550 | 210 | 315 | 155 | 1360 | 20 | 4-M16×300 | 210 | 8×φ18 | 180 | 4×φ18 | 140 | 170 | 120 | 150 | 400 | 1300 | 850 | 550 | 260 | |
| 22kW-2 | 410 | 460 | 530 | 131 | 300 | 210 | 160 | 705 | 150 | 315 | 155 | 1530 | 20 | 4-M16×300 | 210 | 8×φ18 | 180 | 4×φ18 | 140 | 170 | 120 | 150 | 400 | 1300 | 850 | 550 | 260 | |
| 30~37kW-2 | 395 | 485 | 555 | 131 | 300 | 210 | 190 | 670 | 195 | 345 | 155 | 1560 | 20 | 4-M16×300 | 210 | 8×φ18 | 180 | 4×φ18 | 140 | 170 | 120 | 150 | 400 | 1300 | 850 | 550 | 260 |
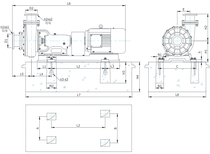
8.2 泵的出口在右侧(从进口方向看)

| 型号 | 配套电机 | A | B | C | E | H1 | H2 | L1 | L2 | L3 | L4 | L5 | L6 | h | n3-s3 | D1 | n1×s1 | D2 | n2×s2 | M1 | M2 | N1 | N2 | H3 | L7 | L8 | H4 | kg 重量 |
|---|---|---|---|---|---|---|---|---|---|---|---|---|---|---|---|---|---|---|---|---|---|---|---|---|---|---|---|---|
| 80UHB-XJ-II | 3KW-6 | 425 | 365 | 495 | 187 | 300 | 365 | 200 | 600 | 200 | 355 | 135 | 1395 | 20 | 4-M20×300 | 160 | 8×M16 | 145 | 4×φ18 | 160 | 190 | 120 | 150 | 450 | 1200 | 700 | 650 | 340 |
| 7.5kW-4 | 425 | 365 | 495 | 187 | 300 | 365 | 200 | 600 | 200 | 355 | 135 | 1420 | 20 | 4-M20×300 | 160 | 8×M16 | 145 | 4×φ18 | 160 | 190 | 120 | 150 | 450 | 1200 | 700 | 650 | 350 | |
| 4KW-6 | ||||||||||||||||||||||||||||
| 5.5KW-6 | ||||||||||||||||||||||||||||
| 11kW-4 | 460 | 460 | 530 | 187 | 300 | 365 | 190 | 800 | 130 | 315 | 135 | 1470 | 20 | 4-M20×300 | 160 | 8×M16 | 145 | 4×φ18 | 160 | 190 | 120 | 150 | 450 | 1500 | 750 | 650 | 450 | |
| 15kW-4 | 460 | 460 | 530 | 187 | 300 | 365 | 190 | 800 | 130 | 315 | 135 | 1510 | 20 | 4-M20×300 | 160 | 8×M16 | 145 | 4×φ18 | 160 | 190 | 120 | 150 | 450 | 1500 | 750 | 650 | 460 | |
| 18.5KW-4 | 460 | 460 | 530 | 187 | 300 | 365 | 180 | 800 | 180 | 315 | 135 | 1550 | 20 | 4-M20×300 | 160 | 8×M16 | 145 | 4×φ18 | 160 | 190 | 120 | 150 | 450 | 1500 | 750 | 650 | 490 | |
| 22KW-4 | 460 | 460 | 530 | 187 | 300 | 365 | 180 | 800 | 180 | 315 | 135 | 1585 | 20 | 4-M20×300 | 160 | 8×M16 | 145 | 4×φ18 | 160 | 190 | 120 | 150 | 450 | 1500 | 750 | 650 | 510 | |
| 80UHB-XJ-M | 4KW-6 5.5KW-6 | 510 | 510 | 580 | 240 | 370 | 430 | 225 | 850 | 175 | 350 | 275 | 1700 | 20 | 4-M20×300 | 160 | 4×φ18 | 145 | 4×φ18 | 160 | 190 | 120 | 150 | 450 | 1600 | 1000 | 650 | 550 |
| 11KW-4 7.5KW-6 | 510 | 510 | 580 | 240 | 370 | 430 | 225 | 850 | 175 | 350 | 275 | 1680 | 20 | 4-M20×300 | 160 | 4×φ18 | 145 | 4×φ18 | 160 | 190 | 120 | 150 | 450 | 1600 | 1000 | 650 | 600 | |
| 15KW-4 11KW-6 | 510 | 510 | 580 | 240 | 370 | 430 | 225 | 850 | 175 | 350 | 275 | 1750 | 20 | 4-M20×300 | 160 | 4×φ18 | 145 | 4×φ18 | 160 | 190 | 120 | 150 | 450 | 1600 | 1000 | 650 | 610 | |
| 18.5kW-4 | 510 | 510 | 580 | 240 | 370 | 430 | 225 | 850 | 175 | 350 | 275 | 1765 | 20 | 4-M20×300 | 160 | 4×φ18 | 145 | 4×φ18 | 160 | 190 | 120 | 150 | 450 | 1600 | 1000 | 650 | 650 | |
| 22kW-4 | 510 | 510 | 580 | 240 | 370 | 430 | 225 | 850 | 175 | 350 | 275 | 1800 | 20 | 4-M20×300 | 160 | 4×φ18 | 145 | 4×φ18 | 160 | 190 | 120 | 150 | 450 | 1600 | 1000 | 650 | 665 | |
| 30KW-4 | 510 | 510 | 580 | 240 | 370 | 430 | 225 | 850 | 220 | 350 | 275 | 1850 | 20 | 4-M20×300 | 160 | 4×φ18 | 145 | 4×φ18 | 160 | 190 | 120 | 150 | 450 | 1600 | 1000 | 650 | 700 | |
| 100UHB-XJ-II | 5.5KW-6 | 425 | 365 | 495 | 200 | 300 | 390 | 200 | 600 | 200 | 355 | 150 | 1420 | 20 | 4-M20×300 | 180 | 8×M16 | 160 | 4×φ18 | 160 | 190 | 120 | 150 | 450 | 1200 | 700 | 650 | 350 |
| 15kW-4 7.5KW-6 | 460 | 460 | 530 | 200 | 300 | 390 | 190 | 800 | 130 | 320 | 150 | 1540 | 20 | 4-M20×300 | 180 | 8×M16 | 160 | 4×φ18 | 160 | 190 | 120 | 150 | 450 | 1500 | 750 | 650 | 470 | |
| 18.5KW-4 | 460 | 460 | 530 | 200 | 300 | 390 | 190 | 800 | 180 | 320 | 150 | 1560 | 20 | 4-M20×300 | 180 | 8×M16 | 160 | 4×φ18 | 160 | 190 | 120 | 150 | 450 | 1500 | 750 | 650 | 480 | |
| 22kW-4 | 460 | 460 | 530 | 200 | 300 | 390 | 180 | 800 | 180 | 320 | 150 | 1605 | 20 | 4-M20×300 | 180 | 8×M16 | 160 | 4×φ18 | 160 | 190 | 120 | 150 | 450 | 1500 | 750 | 650 | 500 | |
| 30kw-4 | 420 | 536 | 620 | 200 | 320 | 390 | 215 | 700 | 275 | 350 | 150 | 1630 | 20 | 4-M20×300 | 180 | 8×M16 | 160 | 4×φ18 | 160 | 190 | 120 | 150 | 450 | 1500 | 750 | 650 | 530 | |
| 37kw-4 | 420 | 586 | 650 | 200 | 345 | 390 | 215 | 840 | 215 | 350 | 150 | 1660 | 20 | 4-M20×300 | 180 | 8×M16 | 160 | 4×φ18 | 160 | 190 | 120 | 150 | 450 | 1500 | 750 | 650 | 800 |
| 型号 | 配套电机 | A | B | C | E | H1 | H2 | L1 | L2 | L3 | L4 | L5 | L6 | h | n3×s3 | D1 | n1×s1 | D2 | n2×s2 | M1 | M2 | N1 | N2 | H3 | L7 | L8 | H4 | kg 重量 |
|---|---|---|---|---|---|---|---|---|---|---|---|---|---|---|---|---|---|---|---|---|---|---|---|---|---|---|---|---|
| 100UHB XJ-M | 7.5KW-6 | 510 | 510 | 580 | 250 | 370 | 440 | 225 | 850 | 175 | 360 | 275 | 1685 | 20 | 4-M20×300 | 180 | 8×φ18 | 160 | 4×φ18 | 160 | 190 | 120 | 150 | 450 | 1600 | 1000 | 650 | 580 |
| 11KW-6 | 510 | 510 | 580 | 250 | 370 | 440 | 225 | 850 | 175 | 360 | 275 | 1730 | 20 | 4-M20×300 | 180 | 8×φ18 | 160 | 4×φ18 | 160 | 190 | 120 | 150 | 450 | 1600 | 1000 | 650 | 600 | |
| 22KW-4 | 510 | 510 | 580 | 250 | 370 | 440 | 225 | 850 | 175 | 360 | 275 | 1805 | 20 | 4-M20×300 | 180 | 8×φ18 | 160 | 4×φ18 | 160 | 190 | 120 | 150 | 450 | 1600 | 1000 | 650 | 655 | |
| 30kW-4 | 510 | 510 | 580 | 250 | 370 | 440 | 225 | 850 | 220 | 360 | 275 | 1885 | 20 | 4-M20×300 | 180 | 8×φ18 | 160 | 4×φ18 | 160 | 190 | 120 | 150 | 450 | 1600 | 1000 | 650 | 700 | |
| 37kW-4 | 510 | 610 | 700 | 250 | 370 | 440 | 225 | 935 | 170 | 360 | 275 | 1920 | 20 | 4-M20×300 | 180 | 8×φ18 | 160 | 4×φ18 | 160 | 190 | 120 | 150 | 450 | 1800 | 1100 | 650 | 800 | |
| 45kW-4 | 510 | 610 | 700 | 250 | 370 | 440 | 225 | 935 | 170 | 360 | 275 | 1945 | 20 | 4-M20×300 | 180 | 8×φ18 | 160 | 4×φ18 | 160 | 190 | 120 | 150 | 450 | 1800 | 1100 | 650 | 900 | |
| 125UHBXJ-II | 7.5KW-6 | 460 | 460 | 530 | 200 | 300 | 390 | 190 | 800 | 130 | 325 | 150 | 1490 | 20 | 4-M20×300 | 210 | 8×M16 | 180 | 8×φ18 | 160 | 190 | 120 | 150 | 450 | 1500 | 750 | 650 | 350 |
| 11KW-6 | 460 | 460 | 530 | 200 | 300 | 390 | 190 | 800 | 180 | 325 | 150 | 1525 | 20 | 4-M20×300 | 210 | 8×M16 | 180 | 8×φ18 | 160 | 190 | 120 | 150 | 450 | 1500 | 750 | 650 | 450 | |
| 18.5kW-4 | 460 | 460 | 530 | 200 | 300 | 390 | 180 | 800 | 180 | 325 | 150 | 1570 | 20 | 4-M20×300 | 210 | 8×M16 | 180 | 8×φ18 | 160 | 190 | 120 | 150 | 450 | 1500 | 750 | 650 | 650 | |
| 22kW-4 | 460 | 460 | 530 | 200 | 300 | 390 | 180 | 800 | 180 | 325 | 150 | 1610 | 20 | 4-M20×300 | 210 | 8×M16 | 180 | 8×φ18 | 160 | 190 | 120 | 150 | 450 | 1500 | 750 | 650 | 660 | |
| 30KW-4 | 420 | 536 | 620 | 200 | 330 | 390 | 215 | 700 | 275 | 350 | 150 | 1635 | 20 | 4-M20×300 | 210 | 8×M16 | 180 | 8×φ18 | 160 | 190 | 120 | 150 | 450 | 1500 | 850 | 650 | 700 | |
| 125UHBXJ-M | 11kW-6 | 510 | 510 | 580 | 240 | 370 | 440 | 225 | 850 | 175 | 370 | 320 | 1800 | 20 | 4-M20×300 | 210 | 8×φ18 | 180 | 8×φ18 | 160 | 190 | 120 | 150 | 450 | 1600 | 1000 | 650 | 610 |
| 15kW-6 | 510 | 510 | 580 | 240 | 370 | 440 | 225 | 850 | 175 | 370 | 320 | 1830 | 20 | 4-M20×300 | 210 | 8×φ18 | 180 | 8×φ18 | 160 | 190 | 120 | 150 | 450 | 1600 | 1000 | 650 | 650 | |
| 18.5KW-6 | 510 | 510 | 580 | 240 | 370 | 440 | 225 | 850 | 220 | 370 | 320 | 1910 | 20 | 4-M20×300 | 210 | 8×φ18 | 180 | 8×φ18 | 160 | 190 | 120 | 150 | 450 | 1600 | 1000 | 650 | 700 | |
| 37~45kW-4 | 510 | 610 | 675 | 240 | 370 | 440 | 225 | 935 | 170 | 370 | 320 | 1980 | 20 | 4-M20×300 | 210 | 8×φ18 | 180 | 8×φ18 | 160 | 190 | 120 | 150 | 450 | 1800 | 1100 | 650 | 800 | |
| 55KW-4 | 510 | 630 | 700 | 240 | 370 | 440 | 225 | 1000 | 200 | 370 | 320 | 2030 | 20 | 4-M20×300 | 210 | 8×φ18 | 180 | 8×φ18 | 160 | 190 | 120 | 150 | 450 | 1900 | 1100 | 650 | 950 | |
| 125UHBXJ-F | 5.5KW-4 | 425 | 365 | 495 | 155 | 300 | 360 | 200 | 600 | 200 | 350 | 150 | 1360 | 20 | 4-M20×300 | 210 | 8×φ18 | 180 | 8×φ18 | 160 | 190 | 120 | 150 | 450 | 1200 | 700 | 650 | 340 |
| 7.5KW-4 | 425 | 365 | 495 | 155 | 300 | 360 | 200 | 600 | 200 | 350 | 150 | 1400 | 20 | 4-M20×300 | 210 | 8×φ18 | 180 | 8×φ18 | 160 | 190 | 120 | 150 | 450 | 1500 | 750 | 650 | 350 | |
| 11KW-4 | 460 | 460 | 525 | 155 | 300 | 360 | 180 | 800 | 130 | 316 | 150 | 1475 | 20 | 4-M20×300 | 210 | 8×φ18 | 180 | 8×φ18 | 160 | 190 | 120 | 150 | 450 | 1500 | 750 | 650 | 460 | |
| 30-37KW-2 | 420 | 536 | 620 | 155 | 330 | 360 | 225 | 700 | 275 | 350 | 150 | 1635 | 20 | 4-M20×300 | 210 | 8×φ18 | 180 | 8×φ18 | 160 | 190 | 120 | 150 | 450 | 1500 | 750 | 650 | 720 | |
| 45KW-2 | 420 | 586 | 650 | 155 | 345 | 360 | 215 | 840 | 215 | 340 | 150 | 1660 | 20 | 4-M20×300 | 210 | 8×φ18 | 180 | 8×φ18 | 160 | 190 | 120 | 150 | 450 | 1800 | 1100 | 650 | 780 | |
| 55KW-2 | 420 | 630 | 695 | 155 | 370 | 360 | 200 | 950 | 200 | 300 | 150 | 1770 | 20 | 4-M20×300 | 210 | 8×φ18 | 180 | 8×φ18 | 160 | 190 | 120 | 150 | 450 | 1900 | 1100 | 650 | 870 | |
| 75KW-2 | 510 | 660 | 750 | 155 | 440 | 360 | 170 | 1000 | 180 | 304 | 150 | 155 | 20 | 4-M20×300 | 210 | 8×φ18 | 180 | 8×φ18 | 160 | 190 | 120 | 150 | 450 | 2200 | 1000 | 800 | 920 | |
| 150UHBXJ-F | 7.5KW-4 | 420 | 536 | 495 | 178 | 300 | 400 | 200 | 600 | 200 | 360 | 325 | 1600 | 20 | 4-M20×300 | 240 | 8×φ22 | 210 | 8×φ18 | 160 | 190 | 120 | 150 | 450 | 1200 | 700 | 650 | 350 |
| 11KW-4 | 460 | 460 | 525 | 178 | 300 | 400 | 180 | 800 | 130 | 326 | 325 | 1665 | 20 | 4-M20×300 | 240 | 8×φ22 | 210 | 8×φ18 | 160 | 190 | 120 | 150 | 450 | 1500 | 750 | 650 | 450 | |
| 15KW-4 | 460 | 460 | 525 | 178 | 300 | 400 | 180 | 800 | 130 | 326 | 325 | 2010 | 20 | 4-M20×300 | 240 | 8×φ22 | 210 | 8×φ18 | 160 | 190 | 120 | 150 | 450 | 1500 | 750 | 650 | 460 | |
| 30-37KW-2 | 420 | 536 | 620 | 178 | 330 | 400 | 225 | 700 | 275 | 360 | 325 | 1810 | 20 | 4-M20×300 | 240 | 8×φ22 | 210 | 8×φ18 | 160 | 190 | 120 | 150 | 450 | 1500 | 750 | 650 | 740 | |
| 45KW-2 | 420 | 586 | 650 | 178 | 345 | 400 | 215 | 840 | 215 | 350 | 325 | 1840 | 20 | 4-M20×300 | 240 | 8×φ22 | 210 | 8×φ18 | 160 | 190 | 120 | 150 | 450 | 1800 | 1100 | 650 | 800 | |
| 55KW-2 | 420 | 630 | 695 | 178 | 370 | 400 | 200 | 950 | 200 | 310 | 325 | 1950 | 20 | 4-M20×300 | 240 | 8×φ22 | 210 | 8×φ18 | 160 | 190 | 120 | 150 | 450 | 1900 | 1100 | 650 | 915 | |
| 75KW-2 | 510 | 660 | 750 | 178 | 400 | 400 | 170 | 1000 | 180 | 310 | 325 | 2010 | 20 | 4-M20×300 | 240 | 8×φ22 | 210 | 8×φ18 | 160 | 190 | 120 | 150 | 450 | 2200 | 1000 | 800 | 960 | |
| 150UHBXJ | 7.5KW-6 | 510 | 510 | 580 | 223 | 370 | 470 | 250 | 850 | 190 | 350 | 330 | 1750 | 20 | 4-M20×300 | 240 | 8×φ22 | 210 | 8×φ18 | 160 | 190 | 120 | 150 | 450 | 1600 | 1000 | 650 | 600 |
| 11kW-6 | 510 | 510 | 580 | 223 | 370 | 470 | 225 | 850 | 175 | 350 | 330 | 1780 | 20 | 4-M20×300 | 240 | 8×φ22 | 210 | 8×φ18 | 160 | 190 | 120 | 150 | 450 | 1600 | 1000 | 650 | 625 | |
| 18.5KW-4 | 510 | 510 | 580 | 223 | 370 | 470 | 225 | 850 | 175 | 350 | 330 | 1800 | 20 | 4-M20×300 | 240 | 8×φ22 | 210 | 8×φ18 | 160 | 190 | 120 | 150 | 450 | 1600 | 1000 | 650 | 650 | |
| 22kW-4 15kW-6 | 510 | 510 | 580 | 223 | 370 | 470 | 225 | 850 | 175 | 350 | 330 | 1850 | 20 | 4-M20×300 | 240 | 8×φ22 | 210 | 8×φ18 | 160 | 190 | 120 | 150 | 450 | 1600 | 1000 | 650 | 700 | |
| 30kW-4 18.5KW-6 | 510 | 510 | 580 | 223 | 370 | 470 | 225 | 850 | 220 | 350 | 330 | 1900 | 20 | 4-M20×300 | 240 | 8×φ22 | 210 | 8×φ18 | 160 | 190 | 120 | 150 | 450 | 1600 | 1000 | 650 | 750 | |
| 37kW-4 | 510 | 610 | 700 | 223 | 370 | 470 | 225 | 935 | 170 | 350 | 330 | 1950 | 20 | 4-M20×300 | 240 | 8×φ22 | 210 | 8×φ18 | 160 | 190 | 120 | 150 | 450 | 1800 | 1100 | 650 | 800 | |
| 45kW-4 | 510 | 610 | 700 | 223 | 370 | 470 | 225 | 935 | 170 | 350 | 330 | 2000 | 20 | 4-M20×300 | 240 | 8×φ22 | 210 | 8×φ18 | 160 | 190 | 120 | 150 | 450 | 1800 | 1100 | 650 | 900 | |
| 55KW-4 | 510 | 630 | 700 | 223 | 370 | 470 | 225 | 1000 | 200 | 345 | 330 | 2020 | 20 | 4-M20×300 | 240 | 8×φ22 | 210 | 8×φ18 | 160 | 190 | 120 | 150 | 450 | 1900 | 1100 | 650 | 950 | |
| 150UHB XJ-AH | 18.5~22KW-6 | 510 | 510 | 580 | 272 | 370 | 500 | 250 | 850 | 250 | 370 | 325 | 1920 | 20 | 4-M20×300 | 240 | 8×φ22 | 210 | 8×φ18 | 160 | 190 | 120 | 150 | 450 | 1600 | 1000 | 650 | 810 |
| 30KW-6 | 510 | 610 | 680 | 272 | 370 | 500 | 225 | 935 | 170 | 370 | 325 | 1985 | 20 | 4-M20×300 | 240 | 8×φ22 | 210 | 8×φ18 | 160 | 190 | 120 | 150 | 450 | 1800 | 1100 | 650 | 885 | |
| 55kW-4 | 510 | 630 | 700 | 272 | 370 | 500 | 225 | 1000 | 200 | 370 | 325 | 2040 | 20 | 4-M20×300 | 240 | 8×φ22 | 210 | 8×φ18 | 160 | 190 | 120 | 150 | 450 | 1900 | 1100 | 650 | 940 | |
| 75kW-4 | 510 | 660 | 745 | 272 | 400 | 500 | 225 | 1000 | 275 | 370 | 325 | 2120 | 20 | 4-M20×300 | 240 | 8×φ22 | 210 | 8×φ18 | 160 | 190 | 120 | 150 | 450 | 2200 | 1000 | 800 | 1180 | |
| 200UHB XJ | 15KW-6 | 510 | 510 | 580 | 235 | 370 | 480 | 225 | 850 | 220 | 360 | 340 | 1870 | 20 | 4-M20×300 | 295 | 8×φ22 | 240 | 8×φ22 | 160 | 190 | 120 | 150 | 450 | 1600 | 1000 | 650 | 750 |
| 30KW-4 18.5~22KW-6 | 510 | 510 | 580 | 235 | 370 | 480 | 225 | 850 | 220 | 360 | 340 | 1920 | 20 | 4-M20×300 | 295 | 8×φ22 | 240 | 8×φ22 | 160 | 190 | 120 | 150 | 450 | 1600 | 1000 | 650 | 800 | |
| 37KW-4 | 510 | 610 | 700 | 235 | 370 | 480 | 225 | 935 | 170 | 360 | 340 | 1960 | 20 | 4-M20×300 | 295 | 8×φ22 | 240 | 8×φ22 | 160 | 190 | 120 | 150 | 450 | 1800 | 1100 | 650 | 880 | |
| 45kW-4 30KW-6 | 510 | 610 | 700 | 235 | 370 | 480 | 225 | 935 | 170 | 360 | 340 | 2015 | 20 | 4-M20×300 | 295 | 8×φ22 | 240 | 8×φ22 | 160 | 190 | 120 | 150 | 450 | 1800 | 1100 | 650 | 920 | |
| 55kW-4 | 510 | 630 | 745 | 235 | 370 | 480 | 225 | 1000 | 200 | 360 | 340 | 2040 | 20 | 4-M20×300 | 295 | 8×φ22 | 240 | 8×φ22 | 160 | 190 | 120 | 150 | 450 | 1900 | 1100 | 650 | 980 | |
| 75kW-4 | 510 | 660 | 745 | 235 | 400 | 480 | 225 | 1000 | 275 | 360 | 340 | 2125 | 20 | 4-M20×300 | 295 | 8×φ22 | 240 | 8×φ22 | 160 | 190 | 120 | 150 | 450 | 2200 | 1100 | 800 | 1200 |
| 型号 | 配套电机 | A | B | C | E | H1 | H2 | L1 | L2 | L3 | L4 | L5 | L6 | h | n3×s3 | D1 | n1×s1 | D2 | n2×s2 | M1 | M2 | N1 | N2 | H3 | L7 | L8 | H4 | kg 重量 |
|---|---|---|---|---|---|---|---|---|---|---|---|---|---|---|---|---|---|---|---|---|---|---|---|---|---|---|---|---|
| 200UHB-XJAH | 37KW-6 55KW-4 | 770 | 770 | 850 | 310 | 655 | 540 | 570 | 1200 | 390 | 450 | 395 | 2415 | 20 | 4-M24×400 | 295 | 8×φ22 | 240 | 8×φ22 | 180 | 210 | 120 | 150 | 550 | 3000 | 1300 | 1000 | 1685 |
| 45KW-6 75KW-4 | 770 | 770 | 850 | 310 | 655 | 540 | 570 | 1200 | 390 | 450 | 395 | 2500 | 20 | 4-M24×400 | 295 | 8×φ22 | 240 | 8×φ22 | 180 | 210 | 120 | 150 | 550 | 3000 | 1300 | 1000 | 1850 | |
| 90kW-4 | 770 | 770 | 850 | 310 | 655 | 540 | 570 | 1200 | 390 | 450 | 395 | 2560 | 20 | 4-M24×400 | 295 | 8×φ22 | 240 | 8×φ22 | 180 | 210 | 120 | 150 | 550 | 3000 | 1300 | 1000 | 1950 | |
| 110kW-4 | 770 | 770 | 850 | 310 | 655 | 540 | 570 | 1200 | 530 | 450 | 395 | 2700 | 20 | 4-M24×400 | 295 | 8×φ22 | 240 | 8×φ22 | 180 | 210 | 120 | 150 | 550 | 3000 | 1300 | 1000 | 2350 | |
| 250UHB-XJ-L | 15KW-6 22KW-4 | 510 | 510 | 580 | 235 | 370 | 515 | 225 | 850 | 175 | 340 | 360 | 1910 | 20 | 4-M20×300 | 350 | 12×φ22 | 295 | 8×φ22 | 160 | 190 | 120 | 150 | 450 | 1600 | 1000 | 650 | 685 |
| 18.5~22KW-6 30KW-4 | 510 | 510 | 580 | 235 | 370 | 515 | 225 | 850 | 220 | 360 | 360 | 1960 | 20 | 4-M20×300 | 350 | 12×φ22 | 295 | 8×φ22 | 160 | 190 | 120 | 150 | 450 | 1600 | 1000 | 650 | 770 | |
| 45KW-4 30KW-6 | 510 | 610 | 675 | 235 | 370 | 515 | 225 | 935 | 170 | 360 | 360 | 2050 | 20 | 4-M20×300 | 350 | 12×φ22 | 295 | 8×φ22 | 160 | 190 | 120 | 150 | 450 | 1800 | 1100 | 650 | 920 | |
| 55kW-4 37KW-6 | 510 | 630 | 700 | 235 | 370 | 515 | 225 | 1000 | 200 | 360 | 360 | 2080 | 20 | 4-M20×300 | 350 | 12×φ22 | 295 | 8×φ22 | 160 | 190 | 120 | 150 | 450 | 1900 | 1100 | 650 | 950 | |
| 75kW-4 | 510 | 660 | 725 | 235 | 400 | 515 | 225 | 1000 | 275 | 360 | 360 | 2160 | 20 | 4-M20×300 | 350 | 12×φ22 | 295 | 8×φ22 | 160 | 190 | 120 | 150 | 450 | 2200 | 1100 | 800 | 1200 | |
| 90KW-4 | 510 | 660 | 725 | 235 | 400 | 515 | 225 | 1000 | 275 | 360 | 360 | 2215 | 20 | 4-M20×300 | 350 | 12×φ22 | 295 | 8×φ22 | 160 | 190 | 120 | 150 | 450 | 2200 | 1100 | 800 | 1220 | |
| 110KW-4 | 750 | 750 | 845 | 235 | 560 | 515 | 245 | 1000 | 390 | 370 | 360 | 2400 | 20 | 4-M20×300 | 350 | 12×φ22 | 295 | 8×φ22 | 160 | 190 | 120 | 150 | 450 | 2200 | 1100 | 800 | 1600 | |
| 250UHB-XJDL | 18.5~22KW-6 30KW-4 | 510 | 510 | 580 | 245 | 370 | 510 | 225 | 850 | 220 | 375 | 355 | 1955 | 20 | 4-M20×300 | 350 | 12×φ22 | 295 | 8×φ22 | 180 | 210 | 120 | 150 | 450 | 1600 | 1000 | 650 | 980 |
| 30KW-6 45KW-4 | 510 | 610 | 680 | 245 | 370 | 510 | 225 | 935 | 170 | 380 | 365 | 2050 | 20 | 4-M20×300 | 350 | 12×φ22 | 295 | 8×φ22 | 160 | 190 | 120 | 150 | 450 | 1800 | 1100 | 650 | 1045 | |
| 37KW-6 55KW-4 | 510 | 630 | 700 | 245 | 370 | 510 | 225 | 1000 | 200 | 370 | 365 | 2080 | 20 | 4-M20×300 | 350 | 12×φ22 | 295 | 8×φ22 | 160 | 190 | 120 | 150 | 450 | 1900 | 1100 | 650 | 1140 | |
| 45KW-6 75KW-4 | 510 | 660 | 745 | 245 | 400 | 510 | 225 | 1000 | 275 | 370 | 365 | 2160 | 20 | 4-M20×300 | 350 | 12×φ22 | 295 | 8×φ22 | 160 | 190 | 120 | 150 | 450 | 2200 | 1100 | 800 | 1200 | |
| 90KW-4 | 510 | 660 | 745 | 245 | 400 | 510 | 225 | 1000 | 275 | 370 | 365 | 2210 | 20 | 4-M20×300 | 350 | 12×φ22 | 295 | 8×φ22 | 160 | 190 | 120 | 150 | 450 | 2200 | 1100 | 800 | 1240 | |
| 110KW-4 | 750 | 750 | 845 | 245 | 565 | 510 | 245 | 1000 | 390 | 380 | 365 | 2380 | 20 | 4-M20×300 | 350 | 12×φ22 | 295 | 8×φ22 | 160 | 190 | 120 | 150 | 450 | 2200 | 1100 | 800 | 1600 | |
| 132KW-4 | 750 | 750 | 845 | 245 | 565 | 510 | 245 | 1000 | 390 | 380 | 365 | 2420 | 20 | 4-M20×300 | 350 | 12×φ22 | 295 | 8×φ22 | 160 | 190 | 120 | 150 | 450 | 2200 | 1100 | 800 | 1650 | |
| 250UHB-XJ | 18.5KW-6 22KW-6 | 770 | 770 | 850 | 310 | 650 | 510 | 570 | 1200 | 390 | 450 | 390 | 2505 | 20 | 4-M24×400 | 350 | 12×φ22 | 295 | 8×φ22 | 180 | 210 | 120 | 150 | 550 | 3000 | 1300 | 1000 | 1535 |
| 45KW-4 30kW-6 | 770 | 770 | 850 | 310 | 650 | 510 | 570 | 1200 | 390 | 450 | 390 | 2505 | 25 | 4-M24×400 | 350 | 12×φ22 | 295 | 8×φ22 | 180 | 210 | 120 | 150 | 550 | 3000 | 1300 | 1000 | 1640 | |
| 55KW-4 37kW-6 | 770 | 770 | 850 | 310 | 650 | 510 | 570 | 1200 | 390 | 450 | 390 | 2505 | 25 | 4-M24×400 | 350 | 12×φ22 | 295 | 8×φ22 | 180 | 210 | 120 | 150 | 550 | 3000 | 1300 | 1000 | 1735 | |
| 75kW-4 45KW-6 | 770 | 770 | 850 | 310 | 650 | 510 | 570 | 1200 | 390 | 450 | 390 | 2540 | 25 | 4-M24×400 | 350 | 12×φ22 | 295 | 8×φ22 | 180 | 210 | 120 | 150 | 550 | 3000 | 1300 | 1000 | 1900 | |
| 90kW-4 | 770 | 770 | 850 | 310 | 650 | 510 | 570 | 1200 | 390 | 450 | 390 | 2600 | 25 | 4-M24×400 | 350 | 12×φ22 | 295 | 8×φ22 | 180 | 210 | 120 | 150 | 550 | 3000 | 1300 | 1000 | 2000 | |
| 110kW-4 | 770 | 770 | 850 | 310 | 650 | 510 | 570 | 1200 | 530 | 450 | 390 | 2740 | 25 | 4-M24×400 | 350 | 12×φ22 | 295 | 8×φ22 | 180 | 210 | 120 | 150 | 550 | 3000 | 1300 | 1000 | 2400 | |
| 132kW-4 | 770 | 770 | 850 | 310 | 650 | 510 | 570 | 1200 | 530 | 450 | 390 | 2775 | 25 | 4-M24×400 | 350 | 12×φ22 | 295 | 8×φ22 | 180 | 210 | 120 | 150 | 550 | 3000 | 1300 | 1000 | 2600 | |
| 300UHB-XJ-L | 22KW-6 | 770 | 770 | 850 | 310 | 650 | 525 | 570 | 1200 | 390 | 475 | 425 | 2535 | 25 | 4-M24×400 | 400 | 12×φ22 | 350 | 12×φ22 | 180 | 210 | 120 | 150 | 550 | 3000 | 1300 | 1000 | 1535 |
| 30KW-6 | 770 | 770 | 850 | 310 | 650 | 525 | 570 | 1200 | 390 | 475 | 425 | 2535 | 25 | 4-M24×400 | 400 | 12×φ22 | 350 | 12×φ22 | 180 | 210 | 120 | 150 | 550 | 3000 | 1300 | 1000 | 1640 | |
| 37KW-6 | 770 | 770 | 850 | 310 | 650 | 525 | 570 | 1200 | 390 | 475 | 425 | 2535 | 25 | 4-M24×400 | 400 | 12×φ22 | 350 | 12×φ22 | 180 | 210 | 120 | 150 | 550 | 3000 | 1300 | 1000 | 1735 | |
| 75KW-4 45KW-6 | 770 | 770 | 850 | 310 | 650 | 525 | 570 | 1200 | 390 | 475 | 425 | 2570 | 25 | 4-M24×400 | 400 | 12×φ22 | 350 | 12×φ22 | 180 | 210 | 120 | 150 | 550 | 3000 | 1300 | 1000 | 1900 | |
| 90KW-4 55KW-6 | 770 | 770 | 850 | 310 | 650 | 525 | 570 | 1200 | 390 | 475 | 425 | 2620 | 25 | 4-M24×400 | 400 | 12×φ22 | 350 | 12×φ22 | 180 | 210 | 120 | 150 | 550 | 3000 | 1300 | 1000 | 2000 | |
| 110kW-4 75KW-6 | 770 | 770 | 850 | 310 | 650 | 525 | 570 | 1200 | 530 | 475 | 425 | 2770 | 25 | 4-M24×400 | 400 | 12×φ22 | 350 | 12×φ22 | 180 | 210 | 120 | 150 | 550 | 3000 | 1300 | 1000 | 2400 | |
| 132kW-4 | 770 | 770 | 850 | 310 | 650 | 525 | 570 | 1200 | 530 | 475 | 425 | 2805 | 25 | 4-M24×400 | 400 | 12×φ22 | 350 | 12×φ22 | 180 | 210 | 120 | 150 | 550 | 3000 | 1300 | 1000 | 2500 | |
| 160KW-4 | 770 | 770 | 850 | 310 | 650 | 540 | 570 | 1200 | 530 | 475 | 425 | 2880 | 25 | 4-M24×400 | 400 | 12×φ22 | 350 | 12×φ22 | 180 | 210 | 120 | 150 | 550 | 3000 | 1300 | 1000 | 2600 | |
| 300UHB-XJDL | 18.5-22KW-6 30KW-4 | 770 | 770 | 850 | 310 | 650 | 525 | 570 | 1200 | 390 | 475 | 425 | 2535 | 25 | 4-M24×400 | 400 | 12×φ22 | 350 | 12×φ22 | 180 | 210 | 120 | 150 | 550 | 3000 | 1300 | 1000 | 1535 |
| 30KW-6 45KW-4 | 770 | 770 | 850 | 310 | 650 | 525 | 570 | 1200 | 390 | 475 | 425 | 2535 | 25 | 4-M24×400 | 400 | 12×φ22 | 350 | 12×φ22 | 180 | 210 | 120 | 150 | 550 | 3000 | 1300 | 1000 | 1640 | |
| 37KW-6 55KW-4 | 770 | 770 | 850 | 310 | 650 | 525 | 570 | 1200 | 390 | 475 | 425 | 2535 | 25 | 4-M24×400 | 400 | 12×φ22 | 350 | 12×φ22 | 180 | 210 | 120 | 150 | 550 | 3000 | 1300 | 1000 | 1735 | |
| 75KW-4 | 770 | 770 | 850 | 310 | 650 | 525 | 570 | 1200 | 390 | 475 | 425 | 2570 | 25 | 4-M24×400 | 400 | 12×φ22 | 350 | 12×φ22 | 180 | 210 | 120 | 150 | 550 | 3000 | 1300 | 1000 | 1900 | |
| 90KW-4 | 770 | 770 | 850 | 310 | 650 | 525 | 570 | 1200 | 390 | 475 | 425 | 2620 | 25 | 4-M24×400 | 400 | 12×φ22 | 350 | 12×φ22 | 180 | 210 | 120 | 150 | 550 | 3000 | 1300 | 1000 | 2000 | |
| 110KW-4 | 770 | 770 | 850 | 310 | 650 | 525 | 570 | 1200 | 530 | 475 | 425 | 2770 | 25 | 4-M24×400 | 400 | 12×φ22 | 350 | 12×φ22 | 180 | 210 | 120 | 150 | 550 | 3000 | 1300 | 1000 | 2400 | |
| 132KW-4 | 770 | 770 | 850 | 310 | 650 | 525 | 570 | 1200 | 530 | 475 | 425 | 2805 | 25 | 4-M24×400 | 400 | 12×φ22 | 350 | 12×φ22 | 180 | 210 | 120 | 150 | 550 | 3000 | 1300 | 1000 | 2500 | |
| 160KW-4 | 770 | 770 | 850 | 310 | 650 | 540 | 570 | 1200 | 530 | 475 | 425 | 2880 | 25 | 4-M24×400 | 400 | 12×φ22 | 350 | 12×φ22 | 180 | 210 | 120 | 150 | 550 | 3000 | 1300 | 1000 | 2600 | |
| 300UHB-XJ | 45KW-8 | 880 | 880 | 960 | 390 | 755 | 582 | 295 | 850×2 | 410 | 170 | 420 | 2650 | 25 | 6-M30×490 | 400 | 12×φ22 | 350 | 12×φ22 | 200 | 230 | 140 | 170 | 650 | 3500 | 1600 | 1100 | 2880 |
| 55KW-8 | 880 | 880 | 960 | 390 | 755 | 582 | 295 | 850×2 | 410 | 170 | 420 | 2770 | 25 | 6-M30×490 | 400 | 12×φ22 | 350 | 12×φ22 | 200 | 230 | 140 | 170 | 650 | 3500 | 1600 | 1100 | 2905 | |
| 90KW-6 75KW-8 | 880 | 880 | 960 | 390 | 755 | 582 | 295 | 850×2 | 410 | 170 | 420 | 2800 | 25 | 6-M30×490 | 400 | 12×φ22 | 350 | 12×φ22 | 200 | 230 | 140 | 170 | 650 | 3500 | 1600 | 1100 | 3350 | |
| 110~132kW-6 90~110kW-8 | 880 | 880 | 960 | 390 | 755 | 582 | 295 | 850×2 | 410 | 170 | 420 | 2880 | 25 | 6-M30×490 | 400 | 12×φ22 | 350 | 12×φ22 | 200 | 230 | 140 | 170 | 650 | 3500 | 1600 | 1100 | 3500 | |
| 160~185KW-6 132KW-8 | 880 | 880 | 960 | 390 | 755 | 582 | 295 | 850×2 | 465 | 170 | 420 | 2980 | 25 | 6-M30×490 | 400 | 12×φ22 | 350 | 12×φ22 | 200 | 230 | 140 | 170 | 650 | 3500 | 1600 | 1100 | 4000 | |
| 220~250KW-6 | 880 | 880 | 960 | 390 | 755 | 582 | 295 | 850×2 | 465 | 170 | 420 | 3070 | 25 | 6-M30×490 | 400 | 12×φ22 | 350 | 12×φ22 | 200 | 230 | 140 | 170 | 650 | 3500 | 1600 | 1100 | 4300 |








