联系
侧吸式钢衬塑结构,密封不承受正压力,
不泄漏,双级泵输送压力更高,
耐腐耐磨,配套JS专利新型密封,
运行稳定,寿命长,经济,性价比高。
HFM-JS1型防腐耐磨型后吸式离心泵,是在HFM-JS型防腐耐磨侧吸式离心泵的JS密封基础上改良的一种机封升级型侧吸式离心泵。主要改良之处在于:泵机的JS机封前侧的流体减压系统,由原来的副叶轮减压改进为带螺纹套减压系统(见右图),改进的目的主要在于为机封部位的流体降压的同时,提升泵机的安装性能,使泵机机封的维修安装更为方便。为了使用户对HFM型侧吸式防腐耐磨离心泵的几次改良历史进一步的了解,现把该产品历次改良情况介绍如下:
1.1 第一代HFM系列耐腐耐磨型压滤泵
1.2 第二代机封改进型HFM-JS系列耐腐耐磨压滤机配用泵
HFM-JS系列耐腐耐磨压滤泵是在HFM系列防腐耐磨型压滤泵的基础上配置使用了专利新型密封——JS型负压密封,外设风冷体系,使轴密封不用加注冷却水也可安全运行,而且该密封不仅可以适用于酸碱类介质,还可以适用清液和料浆的输送。在JS型风冷密封的组件与各自的功能组合中,各组件有各自的功能,各 种功能又相互关联、相互作用、相互依存,形成了一个动态的密封生态整体。使这种组合机封,不外接冷却水也能正常地密封泵机,功能与优势有别于其它密封。体现了这种机封的特质,也形成了JS型风冷密封的差异化优势,达到了技术创新的目的,该密封经过两年1000多家用户的应用,得到了用户的好评。
目前已申请并授权多项专利:CN201921089881.3/CN201820807683.5/CN202221702582.4
警示
★ 该系列泵禁止在泵腔内无液的状态下长时间运转,否则会损毁泵内部件。
★ 出液阀门全关闭的情况下,开闷泵不得超过五分钟,否则泵内液体升温会造成泵机损坏。
HFM系列(含HFM-JS1、HFM-JS)无泄漏耐腐耐磨泵是一种新型的衬里型后吸式(轴密封位置与进液口同向)的耐腐耐磨泵(见右下图)。该泵是总结了普通耐腐耐磨泵,在运行时,密封容易泄漏的情况下开发的一种新型压力 输送泵,其中应用五项创新技术(专利)。其主要特点是:
2.1 泵进液口在轴密封同向,轴密封处在负压环境下,因此不会泄漏,克服了原有耐腐耐磨泵易损坏,轴密封易泄漏的固疾。
2.2 应用范围广泛:该泵备有多种可以互换的衬里材料,可以适用各种化学性质的腐蚀性、磨蚀性清液和料浆的输送,而且 各种不同材料的备件互换性能好,用户调整极为方便。
2.3 运行费用低:其主要因素有二个,一是易损件泵盖和吸 入口等采用了分体式结构,设有独立的耐腐耐磨易损件,更换方便,更为经济。二是泵的密封不采用背叶轮减压,节省了轴功率的消耗,节省了能源。
2.4 HFM-II-JS1型双级耐腐耐磨料浆泵的另一个优点是:耐磨性好,因为以较低的单个叶轮线速度,获得较高的泵出口压力,从而克服了单级料浆泵为增加压力而增加叶轮线速度,而导致叶轮、泵壳磨损加剧的缺点,有效提高了叶轮、泵盖等磨损件的使用寿命。
2.5 HFM-II-JS1型双级耐腐耐磨泵由于压力高,在配用高压过滤的压滤机时、过滤效果好,滤饼含水量少,克服了压滤机配用泵压力不足的缺点。
3.1 本系列泵可输送100℃温度以内的各类腐蚀性和非腐蚀性清液和料浆或用作各类压滤机加压喂料用泵,例如:有色金属的锌、铜、钴、镍、锰等湿法冶炼工艺的压滤机配用泵或工艺流程泵,矿山选矿、非金属矿产加工(钛白粉、高岭土等)工艺中的浆体输送泵,环保产业中的污泥、废渣输送泵,锂电、新能源、化纤、纺织印染等其它化工、染料、制药、食品生产工艺中的压滤泵或压力输送泵。
3.2 长期逼压运行(泵出口压力高)输送腐蚀性介质的岗位,如烟气脱硫、大气治理中的压力喷淋泵、压力冲洗泵等。
3.3 其它泵输送介质时,容易泄漏的岗位。
3.4 该泵有单级和双级二个系列,能满足需要小流量高压力输送腐蚀性料浆的岗位。
不适用岗位:吸入口液体液位低于泵位置0.5m以下或吸入口负压过大的岗位。
注:本公司现已把JS型泵机和JS1型泵机统一合并为JS型泵机。
4.1 型号说明
4.2 过流材料的选定
默认为改性超高分子量聚乙烯:适用于100℃以内的腐蚀性、磨蚀性料浆的输送。
耐腐耐磨不锈钢(B):适用于110℃以内的磨蚀性料浆的输送。例如用于电解锌、电解锰等高温浸出的工序中的高温浆体的输送,效果会更好。
氟塑料(F):主要适用输送带溶剂的介质和强氧化性介质,例如浓硝酸等。
聚氨脂橡胶(PU):主要适用于腐蚀性要求低,而磨蚀性严重的岗位,如排渣泵,或选矿中的旋流器配用泵。
过流部件需不锈钢、A3钢等金属材料,请与本公司联系!

| 序号 | 零部件名称 | 材质 |
序号 |
零部件名称 | 材质 | 序号 | 零部件名称 | 材质 | |
| * 1 |
前泵盖 |
UHMWPE | *15 | 前轴套 | 99瓷 | 29 | 前轴承侧盖 | HT-200 | |
| * 2 | 锁紧螺母 | UHMWPE/A3 | *16 | 吸入口三通 | UHMWPE/QT | 30 | 前轴承油封 | 氯丁胶 | |
| 3 |
前泵盖压紧圈 |
QT | 17 | 轴承座 | HT-200 | 31 | 前轴承 | ||
| * 4 | 前泵盖垫 | FPM | *18 | 密封盒连接螺栓 | FPM | 32 | 油塞 | NBR/Al | |
| 5 | 防转螺母 | A3 | *19 | 减压副叶轮 | 75瓷 | 33 | 主轴 | 40Cr钢 | |
| 6 | 华司 |
A3 |
*20 | 减压副叶轮垫 | FPM | 34 | 轴肩过渡圈一 | QT | |
| * 7 |
锁紧螺母L垫 |
FPM | *21 | 密封盒垫 | FPM | 35 | 平面轴承 | ||
| * 8 | 叶轮 | UHMWPE/A3 | *22 | 密封盒 | 玻璃钢 | 36 | 轴肩过渡圈二 | QT | |
| * 9 |
泵壳 |
UHMWPE/QT | *23 | K形密封圈 | F4/FPM | 37 | 后轴承 | ||
| * 10 | 叶轮垫 | FPM | 24 | 密封盒压盖 | A3 | 38 | 后轴承侧盖 | 玻璃钢 | |
| 11 | 叶轮顶圈 | 45#钢 | *25 | 后轴套 | 99瓷 | 39 | 后轴承油封 | 氯丁胶 | |
| * 12 | 后泵盖垫 | FPM | *26 | 后轴套垫 | FPM | 40 | 冷却水嘴 | PP | |
| * 13 | 后泵盖 | UHMWPE/QT | 27 | 挡酸片 | 玻璃钢 | 41 | O形密封圈 | FPM | |
| * 14 | 吸入口三通垫床 | FPM | 28 | 主轴拼帽 | 45#钢 | 42 | 水封环 | 玻璃钢 | |
注:序号前带有“*”标志的为易损件,供用户采购备件参考;
部分泵前泵盖、前泵盖压紧圈为闷盖、闷盖压板的形式;
6.1 JS风冷密封的结构简图及简介

6.1.1 结构特点:
①JS组合双密封(见左图)是一种有动力密封、机械密封组合安装使用的泵轴密封。动力密封在叶轮侧,机械密封在电机侧,两种密封之间有存液腔,存液腔中有导热介质,机封部位有生风散热的风轮或风叶。
②设有螺纹轴套(1),隔液套(3),在主轴的旋转时,使螺纹轴套产生推力,将轴密封部的流体推向泵腔,进而降低轴密封部流体的压力,起到提升轴密封可靠性的作用。
6.1.2 使用特点:JS组合密封有自冷却体系,自润滑体系。因此使用时不需外接冷却水。该密封能适用于输送料浆或和清液的腐蚀性和非腐蚀性介质的离心泵上,包括前吸型、侧吸型、单级或双级离心泵。一是可以输送料浆;二是不用外接冷却水冲洗;三是可以适当空运转。
其工作原理为:动力密封在前挡砂,起到密封砂浆的作用,机械密封在后密封存液腔中的存液(清液或油脂),存液腔中的存液起到润滑机封的动静环和轴套与唇形橡胶密封圈的作用。与此同时,又起到传递热能的作用,即密封部位的热量传导到密封外侧的散热装置上。风轮的功能是在泵机运转时把密封部位的热量散布出去,保证轴密封安全运行。

★ HFM型耐腐耐磨泵配置螺纹轴套(1)与隔液套(3)后,不仅可以配置JS风冷机封,带螺纹减压套的后吸式泵也可以配置JZ1、HJ1型单端面机封(见示意图1)和JZ2、HJ2型双端面机械密封(见示意图2),配置双端面机封与单端面机封后的泵机型号标注方法请咨询公司业务经理人。
7.1 HFM-I-JS型单级泵的性能参数表
表格参数需要修改
| 序号 | 型号 | 转速 =2900r/min | 介质密度 =1000kg/m³ | |||||
|---|---|---|---|---|---|---|---|---|
| 流量 (m /h)3 | 扬程 (m) | 进口(mm) | 出口(mm) | 配备电机 | 转速 (r/min) | 重量 (kg) | ||
| 1 | 65HFM-I-JS | 20 | 35 | 65 | 50 | 7.5kW-2 | 2900 | 320 |
| 2 | 20 | 40 | 7.5kW-2 | 2900 | 320 | |||
| 3 | 20 | 50 | 11kW-2 | 2900 | 350 | |||
| 4 | 30 | 35 | 11kW-2 | 2900 | 350 | |||
| 5 | 30 | 40 | 11kW-2 | 2900 | 350 | |||
| 6 | 30 | 50 | 15kW-2 | 2900 | 350 | |||
| 7 | 65HFM-H-JS | 10 | 60 | 65 | 50 | 11kW-2 | 2900 | 350 |
| 8 | 10 | 70 | 15kW-2 | 2900 | 350 | |||
| 9 | 15 | 80 | 15kW-2 | 2900 | 350 | |||
| 10 | 20 | 60 | 15kW-2 | 2900 | 350 | |||
| 11 | 20 | 70 | 18.5kW-2 | 2900 | 350 | |||
| 422序号 | 型号 | 转速 =1450r/min | 介质密度 =1000kg/m³ | |||||
|---|---|---|---|---|---|---|---|---|
| 流量 (m /h)3 | 扬程 (m) | 进口(mm) | 出口(mm) | 配备电机 | 转速 (r/min) | 重量 (kg) | ||
| 12 | 65HFM-H-JS | 20 | 75 | 65 | 50 | 18.5kW-2 | 2900 | 350 |
| 13 | 25 | 73 | 18.5kW-2 | 2900 | 350 | |||
| 14 | 30 | 70 | 22kW -2 | 2900 | 365 | |||
| 15 | 35 | 70 | 22kW-2 | 2900 | 400 | |||
| 16 | 80HFM-I-JS | 40 | 35 | 80 | 65 | 11kW-2 | 2900 | 350 |
| 17 | 40 | 40 | 15kW-2 | 2900 | 350 | |||
| 18 | 40 | 50 | 18.5kW-2 | 2900 | 360 | |||
| 19 | 45 | 35 | 15kW-2 | 2900 | 350 | |||
| 20 | 45 | 40 | 15kW-2 | 2900 | 350 | |||
| 21 | 45 | 50 | 18.5kW-2 | 2900 | 360 | |||
| 22 | 80HFM-H-JS | 25 | 80 | 80 | 65 | 22kW-2 | 2900 |
400 |
| 23 |
30 |
60 | 18.5kW-2 | 2900 | 365 | |||
| 24 | 30 | 70 | 22kW-2 | 2900 | 400 | |||
| 25 | 40 | 60 | 22kW-2 | 2900 | 400 | |||
| 26 | 40 | 70 | 30kW-2 | 2900 | 500 | |||
| 27 | 40 | 75 | 30kW-2 | 2900 | 500 | |||
| 28 | 45 | 73 | 30kW-2 | 2900 | 500 | |||
| 29 | 50 | 60 | 30kW-2 | 2900 | 500 | |||
| 30 | 50 | 70 | 30kW-2 | 2900 | 500 | |||
| 31 | 60 | 70 | 37kW-2 | 2900 | 500 | |||
| 32 | 100HFM-I-JS | 50 | 35 | 100 | 80 | 15kW-2 | 2900 | 350 |
| 33 | 50 | 40 | 18.5kW-2 | 2900 | 360 | |||
| 34 | 50 | 50 | 22kW-2 | 2900 | 400 | |||
| 35 | 60 | 35 | 18.5kW-2 | 2900 | 350 | |||
| 36 | 60 | 40 | 18.5kW-2 | 2900 | 360 | |||
| 37 | 60 | 45 | 22kW-2 | 2900 | 400 | |||
| 38 | 60 | 50 | 22kW-2 | 2900 | 400 | |||
| 39 | 80 | 35 | 18.5kW-2 | 2900 | 360 | |||
| 40 | 80 | 40 | 22kW-2 | 2900 | 400 | |||
| 41 | 100 | 35 | 22kW-2 | 2900 | 400 | |||
| 42 | 100HFM-H-JS | 40 | 80 | 100 | 80 | 30kW-2 | 2900 | 520 |
| 43 | 50 | 60 | 30kW-2 | 2900 | 520 | |||
| 44 | 50 | 70 | 30kW-2 | 2900 | 520 | |||
| 45 | 60 | 60 | 30kW-2 | 2900 | 520 | |||
| 46 | 60 | 70 | 37kW-2 | 2900 | 520 | |||
| 47 | 80 | 50 | 30kW-2 | 2900 | 520 | |||
| 48 | 80 | 60 | 37kW-2 | 2900 | 520 | |||
| 49 | 100 | 40 | 30kW-2 | 2900 | 520 | |||
| 50 | 100 | 50 | 37kW-2 | 2900 | 520 | |||
| 51 | 60 | 80 | 45kW-2 | 2900 | 600 | |||
| 52 | 80 | 70 | 45kW-2 | 2900 | 600 | |||
| 53 | 100 | 60 | 45kW-2 | 2900 | 600 | |||
| 54 | 120 | 60 | 55kW-2 | 2900 | 650 | |||
| 55 | 125HFM-H-JS | 100 | 45 | 125 | 100 | 37kW-2 | 2900 | 520 |
| 56 | 100 | 75 | 55kW-2 | 2900 | 665 | |||
| 57 | 130 | 70 | 55kW-2 | 2900 | 665 | |||
| 58 | 150 | 40 | 45kW-2 | 2900 | 580 | |||
| 59 | 100 | 65 | 45kW-2 | 2900 | 580 | |||
| 60 | 130 | 60 | 55kW-2 | 2900 | 665 | |||
| 61 | 150 | 55 | 55kW-2 | 2900 | 665 | |||
| 序号 | 型号 | 转速 =1450r/min | 介质密度 =1000kg/m³ | |||||
|---|---|---|---|---|---|---|---|---|
| 流量 (m /h)3 | 扬程 (m) | 进口(mm) | 出口(mm) | 配备电机 | 转速 (r/min) | 重量 (kg) | ||
| 1 | 100HFM-M-JS | 60 | 75 | 100 | 80 | 30kW-4 | 1450 | 1170 |
| 2 | 60 | 85 | 37kW-4 | 1450 | 1250 | |||
| 3 | 80 | 72 | 37kW-4 | 1450 | 1250 | |||
| 4 | 80 | 85 | 45kW-4 | 1450 | 1300 | |||
| 5 | 100 | 70 | 45kW-4 | 1450 | 1300 | |||
| 6 | 100 | 80 | 55kW-4 | 1450 | 1390 | |||
| 7 | 120 | 68 | 55kW-4 | 1450 | 1390 | |||
| 8 | 120 | 75 | 75kW-4 | 1450 | 1500 | |||
| 9 | 125HFM-M-JS | 80 | 70 | 125 | 100 | 37kW -4 | 1450 | 1260 |
| 10 | 80 | 85 | 45kW-4 | 1450 | 1300 | |||
| 11 | 100 | 70 | 45kW -4 | 1450 | 1300 | |||
| 12 | 100 | 85 | 55kW-4 | 1450 | 1385 | |||
| 13 | 120 | 70 | 55kW-4 | 1450 | 1385 | |||
| 14 | 120 | 85 | 75kW-4 | 1450 | 1550 | |||
| 15 | 130 | 68 | 55kW -4 | 1450 | 1385 | |||
| 16 | 140 | 65 | 75kW -4 | 1450 | 1500 | |||
| 17 | 150 | 62 | 75kW-4 | 1450 | 1500 | |||
| 序号 | 型号 | 转速 =1450r/min | 介质密度 =1000kg/m³ | |||||
|---|---|---|---|---|---|---|---|---|
| 流量 (m /h)3 | 扬程 (m) | 进口(mm) | 出口(mm) | 配备电机 | 转速 (r/min) | 重量 (kg) | ||
| 18 | 150HFM-I-JS | 120 | 40 | 150 | 125 | 37kW-4 | 1450 | 1210 |
| 19 | 150 | 40 | 45kW-4 | 1450 | 1240 | |||
| 20 | 200 | 32 | 45kW-4 | 1450 | 1240 | |||
| 21 | 250 | 30 | 45kW-4 | 1450 | 1240 | |||
| 22 | 300 | 25 | 45kW-4 | 1450 | 1240 | |||
| 23 | 150HFM-M-JS | 100 | 90 | 150 | 125 | 75kW-4 | 1450 | 1550 |
| 24 | 120 | 85 | 75kW-4 | 1450 | 1550 | |||
| 25 | 150 | 70 | 75kW-4 | 1450 | 1550 | |||
| 26 | 150 | 85 | 90kW-4 | 1450 | 1680 | |||
| 27 | 180 | 68 | 90kW-4 | 1450 | 1680 | |||
| 28 | 180 | 80 | 90kW-4 | 1450 | 1680 | |||
| 29 | 200 | 66 | 90kW-4 | 1450 | 1680 | |||
| 30 | 200 | 72 | 110kW-4 | 1450 | 1980 | |||
| 31 | 200 | 75 | 110kW-4 | 1450 | 1980 | |||
| 32 | 200HFM-I-JS | 250 | 45 | 200 | 150 | 75kW-4 | 1450 | 1240 |
| 33 | 300 | 38 | 75kW-4 | 1450 | 1240 | |||
| 34 | 320 | 24 | 45kW-4 | 1450 | 1090 | |||
| 35 | 320 | 32 | 55kW-4 | 1450 | 1210 | |||
| 36 | 350 | 20 | 45kW-4 | 1450 | 1090 | |||
| 37 | 350 | 28 | 55kW-4 | 1450 | 1210 | |||
| 38 | 350 | 34 | 75kW-4 | 1450 | 1240 | |||
| 39 | 400 | 18 | 45kW-4 | 1450 | 1090 | |||
| 40 | 400 | 25 | 75kW-4 | 1450 | 1240 | |||
| 41 | 500 | 12 | 45kW-4 | 1450 | 1090 | |||
| 42 | 200HFM-M-JS | 120 | 85 | 200 | 150 | 75kW-4 | 1450 | 1650 |
| 43 | 150 | 75 | 75kW-4 | 1450 | 1650 | |||
| 44 | 150 | 83 | 90kW-4 | 1450 | 1700 | |||
| 45 | 180 | 73 | 90kW-4 | 1450 | 1700 | |||
| 46 | 200 | 70 | 90kW-4 | 1450 | 1700 | |||
| 47 | 200 | 80 | 110kW-4 | 1450 | 1845 | |||
| 48 | 250 | 67 | 110kW-4 | 1450 | 1845 | |||
| 49 | 250 | 75 | 132kW-4 | 1450 | 2050 | |||
注:泵差异化代号中的H为高扬程泵,M为慢转速泵;
有差异化的泵与常规泵零部件不通用,具体请与我公司确认;
表中配备电机功率是在密度ρ=1时的参考值,实际电机功率应大于轴功率×介质密度ρ。
7.2 HFM-II-JS型单级泵的性能参数表
| 序号 | 型号 | 转速 =1450r/min | 介质密度 =1000kg/m³ | |||||
|---|---|---|---|---|---|---|---|---|
| 流量 (m /h)3 | 扬程 (m) | 进口(mm) | 出口(mm) | 配备电机 | 转速 (r/min) | 重量 (kg) | ||
| 1 | 65HFM-II-JS | 10 | 60 | 65 | 50 | 11kW-2 | 2900 | 370 |
| 2 | 10 | 70 | 11kW-2 | 2900 | 370 | |||
| 3 | 10 | 80 | 15kW-2 | 2900 | 370 | |||
| 4 | 10 | 90 | 15kW-2 | 2900 | 370 | |||
| 5 | 10 | 100 | 22kW-2 | 2900 | 370 | |||
| 6 | 15 | 60 | 11kW-2 | 2900 | 370 | |||
| 7 | 15 | 70 | 15kW-2 | 2900 | 370 | |||
| 8 | 15 | 80 | 15kW-2 | 2900 | 370 | |||
| 9 | 15 | 90 | 18.5kW-2 | 2900 | 380 | |||
| 10 | 15 | 100 | 22kW-2 | 2900 | 420 | |||
| 11 | 30 | 80 | 22kW-2 | 2900 | 420 | |||
| 12 | 30 | 90 | 30kW-2 | 2900 | 480 | |||
| 13 | 30 | 100 | 37kW-2 | 2900 | 480 | |||
| 14 | 80HFM-II-JS | 20 | 60 | 80 | 65 | 15kW-2 | 2900 | 370 |
| 15 | 20 | 70 | 15kW-2 | 2900 | 370 | |||
| 16 | 20 | 80 | 18.5kW-2 | 2900 | 480 | |||
| 17 | 30 | 60 | 18.5kW-2 | 2900 | 480 | |||
| 18 | 30 | 70 | 22kW-2 | 2900 | 500 | |||
| 19 | 30 | 80 | 22kW-2 | 2900 | 500 | |||
| 20 | 30 | 90 | 30kW-2 | 2900 | 600 | |||
| 21 | 30 | 100 | 37kW-2 | 2900 | 600 | |||
| 22 | 30 | 120 | 30kW-2 | 2900 | 600 | |||
| 23 | 40 | 100 | 30kW-2 | 2900 | 600 | |||
| 24 | 100HFM-II-JS | 40 | 60 | 100 | 80 | 18.5kW-2 | 2900 | 520 |
| 25 | 40 | 70 | 22kW-2 | 2900 | 580 | |||
| 26 | 40 | 80 | 30kW-2 | 2900 | 600 | |||
| 27 | 50 | 60 | 22kW-2 | 2900 | 580 | |||
| 28 | 50 | 70 | 30kW-2 | 2900 | 600 | |||
| 29 | 50 | 80 | 30kW-2 | 2900 | 600 | |||
| 30 | 50 | 90 | 37kW-2 | 2900 | 650 | |||
| 31 | 50 | 100 | 45kW-2 | 2900 | 700 | |||
| 32 | 60 | 55 | 30kW-2 | 2900 | 600 | |||
| 33 | 60 | 60 | 30kW-2 | 2900 | 600 | |||
| 34 | 60 | 70 | 37kW-2 | 2900 | 650 | |||
| 35 | 60 | 80 | 37kW-2 | 2900 | 650 | |||
| 36 | 60 | 90 | 45kW-2 | 2900 | 700 | |||
| 37 | 70 | 50 | 30kW-2 | 2900 | 600 | |||
| 38 | 70 | 60 | 37kW-2 | 2900 | 650 | |||
| 39 | 70 | 70 | 37kW-2 | 2900 | 650 | |||
| 40 | 70 | 80 | 45kW-2 | 2900 | 700 | |||
| 41 | 70 | 90 | 55kW-2 | 2900 | 750 | |||
| 42 | 80 | 50 | 37kW-2 | 2900 | 650 | |||
| 43 | 80 | 60 | 37kW-2 | 2900 | 650 | |||
| 44 | 80 | 70 | 45kW-2 | 2900 | 700 | |||
| 45 | 80 | 80 | 55kW-2 | 2900 | 750 | |||
| 46 | 80 | 90 | 55kW-2 | 2900 | 750 | |||
| 47 | 60 | 120 | 45kW-2 | 2900 | 750 | |||
| 48 | 80 | 100 | 55kW-2 | 2900 | 800 | |||
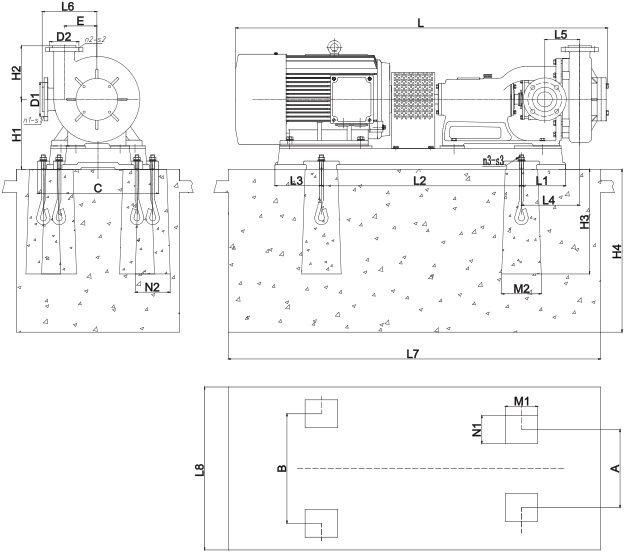
8.1 HFM-I-JS型单级泵的外形图与安装尺寸表
以下参数需要修改调整
| 型号 | 配套电机 | A | B | C | E | H1 | H2 | L1 | L2 | L3 | L4 | L5 | L6 | h | n3×s3 | D1 | n1×s1 | D2 | n2×s2 | M1 | M2 | N1 | N2 | H3 | L7 | L8 | H4 | kg 重量 |
|---|---|---|---|---|---|---|---|---|---|---|---|---|---|---|---|---|---|---|---|---|---|---|---|---|---|---|---|---|
| 80UHB-UF-II | 7.5KW-4 | 425 | 365 | 495 | 198 | 300 | 335 | 200 | 600 | 200 | 355 | 155 | 1420 | 20 | 4-M20×300 | 160 | 8×M16 | 145 | 4×φ18 | 160 | 190 | 120 | 150 | 450 | 1200 | 700 | 650 | 350 |
| 11kW-4 | 460 | 460 | 525 | 198 | 300 | 335 | 210 | 800 | 210 | 320 | 155 | 1490 | 20 | 4-M20×300 | 160 | 8×M16 | 145 | 4×φ18 | 160 | 190 | 120 | 150 | 450 | 1500 | 750 | 650 | 450 | |
| 80UHB-UF-M | 15kW-4 | 510 | 510 | 580 | 255 | 370 | 465 | 250 | 850 | 190 | 340 | 165 | 1600 | 20 | 4-M20×300 | 160 | 8×M16 | 145 | 4×φ18 | 160 | 190 | 120 | 150 | 450 | 1600 | 1000 | 650 | 600 |
| 18.5kW-4 | 510 | 510 | 580 | 255 | 370 | 465 | 250 | 850 | 190 | 340 | 165 | 1655 | 20 | 4-M20×300 | 160 | 8×M16 | 145 | 4×φ18 | 160 | 190 | 120 | 150 | 450 | 1600 | 1000 | 650 | 650 | |
| 100UHB-UF-II | 15KW-4 | 460 | 460 | 525 | 193 | 300 | 335 | 210 | 800 | 210 | 330 | 160 | 1545 | 20 | 4-M20×300 | 180 | 8×M16 | 160 | 4×φ18 | 160 | 190 | 120 | 150 | 450 | 1500 | 750 | 650 | 450 |
| 18.5~22KW-4 | 460 | 460 | 525 | 193 | 300 | 335 | 210 | 800 | 210 | 310 | 160 | 1620 | 20 | 4-M20×300 | 180 | 8×M16 | 160 | 4×φ18 | 160 | 190 | 120 | 150 | 450 | 1500 | 750 | 650 | 500 | |
| 100UHB-UF-M | 37~45KW-4 | 510 | 610 | 700 | 248 | 370 | 480 | 250 | 935 | 250 | 340 | 170 | 1800 | 20 | 4-M20×300 | 180 | 8×M16 | 160 | 4×φ18 | 160 | 190 | 120 | 150 | 450 | 1800 | 1100 | 650 | 800 |
| 55KW-4 | 510 | 630 | 750 | 248 | 390 | 480 | 245 | 1000 | 245 | 340 | 170 | 1855 | 20 | 4-M20×300 | 210 | 8×M16 | 180 | 8×φ18 | 160 | 190 | 120 | 150 | 450 | 1900 | 1100 | 650 | 950 | |
| 125UHB-UF-II | 5.5~7.5kW-4 | 425 | 365 | 495 | 188 | 300 | 335 | 200 | 600 | 200 | 360 | 165 | 1445 | 20 | 4-M20×300 | 160 | 8×M16 | 145 | 4×φ18 | 160 | 190 | 120 | 150 | 450 | 1200 | 700 | 650 | 350 |
| 22kW-4 | 460 | 460 | 525 | 188 | 300 | 335 | 210 | 800 | 210 | 330 | 165 | 1630 | 20 | 4-M20×300 | 210 | 8×M16 | 180 | 8×φ18 | 160 | 190 | 120 | 150 | 450 | 1500 | 750 | 650 | 500 | |
| 125UHB-UF-M | 37~45kW-4 | 510 | 610 | 700 | 248 | 370 | 525 | 250 | 935 | 250 | 350 | 175 | 1810 | 20 | 4-M20×300 | 210 | 8×M16 | 180 | 8×φ18 | 160 | 190 | 120 | 150 | 450 | 1800 | 1100 | 650 | 900 |
| 55kW-4 | 510 | 630 | 750 | 248 | 390 | 525 | 245 | 1000 | 245 | 365 | 175 | 1865 | 20 | 4-M20×300 | 210 | 8×M16 | 180 | 8×φ18 | 160 | 190 | 120 | 150 | 450 | 1900 | 1100 | 650 | 950 | |
| 150UHB-UF | 11KW-6 | 510 | 510 | 580 | 223 | 370 | 370 | 250 | 850 | 190 | 350 | 350 | 1795 | 20 | 4-M20×300 | 240 | 8×φ22 | 210 | 8×φ18 | 160 | 190 | 120 | 150 | 450 | 1600 | 1000 | 650 | 625 |
| 30KW-4 | 510 | 510 | 580 | 223 | 370 | 370 | 250 | 850 | 190 | 350 | 350 | 1920 | 20 | 4-M20×300 | 240 | 8×φ22 | 210 | 8×φ18 | 160 | 190 | 120 | 150 | 450 | 1600 | 1000 | 650 | 800 | |
| 37~45kW-4 | 510 | 610 | 700 | 223 | 370 | 370 | 250 | 935 | 250 | 350 | 350 | 1960 | 20 | 4-M20×300 | 240 | 8×φ22 | 210 | 8×φ18 | 160 | 190 | 120 | 150 | 450 | 1800 | 1100 | 650 | 920 |
注:表中L2尺寸“1000×2”表示底板有三个安装孔,两两之间距离是1000mm。
我公司保留技术改进及尺寸修正的权利,恕不另行通知用户。
具体安装尺寸请以订货时提供的图纸为准。
8.2 HFM-II-JS型双级泵的外形图与安装尺寸表
以下参数需要填写
| 型号 | 配套电机 | A | B | C | E | H1 | H2 | L1 | L2 | L3 | L4 | L5 | L6 | h | n3×s3 | D1 | n1×s1 | D2 | n2×s2 | M1 | M2 | N1 | N2 | H3 | L7 | L8 | H4 | kg 重量 |
|---|---|---|---|---|---|---|---|---|---|---|---|---|---|---|---|---|---|---|---|---|---|---|---|---|---|---|---|---|
| 65HFM-II-JS | ||||||||||||||||||||||||||||
| 80HFM-II-JS | ||||||||||||||||||||||||||||
| 100HFM-II-JS | ||||||||||||||||||||||||||||
注:我公司保留技术改进及尺寸修正的权利,恕不另行通知用户。
具体安装尺寸请以订货时提供的图纸为准。
① 泵的进出口依次安装阀门及橡胶抗震节(管道补偿器)以方便检修。
② 在泵的安装顺序上,要先连接进出口管路镙栓,再紧固定脚螺栓,以防连接管路时对泵产生拉伸性应力,损坏泵机。
③ 出口管路距离长(高)的岗位及HFM-II型泵,应在出口处安装止回阀,以防停车时出口高压水锤对泵产生破坏力。
④ 泵的进出口管路的配置:为减少管道流阻、提高管道的输送效率,泵的配管应大于泵进出口一个等级。
泵的进出口管路应设重力支撑系统,泵不能承受管道重量。




