一、产品简介 集多项创新于一身,与客户共享成果!
UHB-ZK/C型防腐耐磨泵是在公司老产品UHB-ZK系列耐磨耐磨泵的基础上创新改良的升级品种。UHB-ZK系列泵是一种钢衬超高分子量聚乙烯的防腐耐磨离心泵,已是公司生产近二十年的老产品,具有规格全、用户多、质量稳定的老秀才品种,同时又经过近几年来在泵结构、效率、密封可靠性方面的改良,使该泵的密封性能、效率性能、抗开裂性能等综合性能大幅度提升,因此该泵已成为公司的主打产品,2019年单品种销售近1.5亿元。
但公司没有满足现状,停留在现在的水平上,又围绕该系列泵的效率、密封、耐磨性进行了改良,并取得成功(了解详细创新内容,请扫二维码)。
同时及时把该创新技术应用于UHB-ZK/C系列泵上,让创新成果与广大用户分享。
本系列离心泵的创新要点在于:改进了主叶轮的背叶片结构,在叶轮中设置了减压流道,去除了原有的背叶片,同时增设了冷却液容腔及冷却液补液孔。优化了泵机的功率消耗系统和密封冷却系统(创新结构说明请扫二维码)。
本次改良的效率在于:一是提升了轴密封的安全可靠性;二是提升了泵机的效率5~8%;三是增加了泵机的耐磨性。
UHB-ZK/C系列耐腐耐磨泵的使用特性与UHB-ZK系列泵相似:有好的防腐性和耐磨性,能适用于各类腐蚀性和非腐蚀性清液和料浆,是一种应用广泛,多功能的防腐蚀离心泵。
二、技术性能
二、技术性能
1、结构与特点:(1)耐腐耐磨,一泵多用,酸碱类清液料浆均适用。(2)泵体为钢衬超高分子量聚乙烯结构,衬层厚8~20mm,该泵应用了龟甲网衬里技术,和其它同类泵相比较,具有衬里层抗热变形性能好,耐开裂,防脱落,使用温度高等优势。(3)叶轮分开式,闭式二种,可根据介质状况任选。(4)密封:K型动力密封,G3、G4型机械密封。
2、适 用 介 质:浓度80%以下硫酸,50%以下硝酸,各种浓度的盐酸,液碱,既适用清液也适用料浆。
3、主要技术参数:使用温度-20℃~90℃, 进口直径32mm~600mm, 流量5~6000m3/h, 扬程70m以内。
三、应用范围
三、应用范围
1、硫酸磷肥业:稀酸、母液、污水、海水、含硅胶的氟硅酸,磷酸料浆等介质的输送。
2、有色金属冶炼业:特别适用于铅、锌、金、银、铜、锰、钴、稀土等湿法冶炼的各种酸液,腐蚀性矿浆,料浆(压滤机配用)电解液,污水等介质输送。
3、化工及其它企业:各种硫酸、盐酸、碱性、油类的清液或料浆岗位。钛白粉、铁红粉生产,各种染料、颜料生产,非金属矿产加工等行业。
4、氯 碱 业:盐酸、液碱、电解液等。
5、水处理业:纯水、高纯水、污水(皮革污水、电镀污水、电子污水、造纸污水、纺织污水、食品污水、生活污水、制药业污水等等)。
6、钢铁企业:酸洗系统的硫酸、盐酸岗位、带杂质的污水。
7、湿式脱硫循环泵:能同时适用碱性、酸性、腐蚀性岗位。
8、煤碳工业、煤化工中的腐蚀性液体、煤浆的输送;洗选煤配用泵。


序号 |
零部件名称 |
材质 |
序号 |
零部件名称 |
材质 |
序号 |
零部件名称 |
材质 |
1 |
进口哈夫 |
√11 |
泵壳 |
UHMWPE/QT |
21 |
顶圈 |
PP | |
2 |
进口法兰 |
√12 |
叶轮垫 |
F26B |
22 |
密封盒盖 |
玻璃钢 | |
√3 |
泵盖 |
UHMWPE |
√13 |
密封盒垫 |
F26B |
√23 |
轴套垫 |
F26B |
√4 |
泵盖压紧圈 |
14 |
密封盒垫块 |
PP |
24 |
挡酸片 |
玻璃钢 | |
√5 |
锁紧螺母 |
UHMWPE/A3 |
√15 |
密封盒 |
玻璃钢 |
25 |
轴承侧盖 |
HT-200 |
√6 |
泵盖垫 |
F26B |
√16 |
轴套 |
氮化硅陶瓷 |
26 |
轴承油封 |
氯丁胶 |
√7 |
防转螺母 |
A3 |
√17 |
K形密封圈 |
F4/F26B |
27 |
轴承 | |
8 |
华司 |
A3 |
18 |
冷却水嘴 |
PP |
28 |
轴承座 |
HT-200 |
√9 |
锁紧螺母L垫 |
F26B |
19 |
水封环 |
玻璃钢 |
29 |
油塞 | |
√10 |
叶轮(新型) |
UHMWPE/A3 |
√20 |
O形密封圈 |
F26B | 30 |
主轴 |
40Cr钢 |
5.2 带副叶轮泵的结构简图(带冷却水K型动力密封)

序号 |
零部件名称 |
材质 |
序号 |
零部件名称 |
材质 |
序号 |
零部件名称 |
材质 |
1 |
进口哈夫 |
13 |
叶轮调节圈 |
A3 |
25 |
密封盒盖 |
玻璃钢 | |
√2 |
O形密封圈 |
F26B |
√14 |
泵壳 |
UHMWPE/QT |
26 |
挡酸片 |
玻璃钢 |
3 |
泵盖板 |
√15 |
副叶轮 |
UHMWPE/A3 |
√27 |
轴套 |
氮化硅陶瓷 | |
√4 |
泵盖 |
UHMWPE |
√16 |
密封盒垫 |
F26B |
√28 |
轴套垫 |
F26B |
√5 |
泵盖垫 |
F26B |
17 |
密封盒垫块 |
UHMWPE |
29 |
主轴拼帽 |
A3 |
√6 |
锁紧螺母 |
UHMWPE/A3 |
18 |
密封盒压盖 |
QT |
30 |
轴承侧盖 |
HT-200 |
√7 |
防转螺母 |
A3 |
√19 |
副叶轮垫 |
F26B |
31 |
轴承油封 |
氯丁胶 |
√8 |
止退圈 |
A3 |
√20 |
密封盒 |
玻璃钢 |
32 |
轴承 |
HT-200 |
9 |
华司 |
A3 |
√21 |
K形密封圈 |
F4/F26B |
33 |
油塞 | |
√11 |
锁紧螺母L垫 |
F26B |
22 |
冷却水嘴 |
PP |
34 |
主轴 |
40Cr钢 |
√10 |
主叶轮(新型) |
UHMWPE/A3 |
23 |
水封环 |
玻璃钢 |
35 |
轴承座 |
HT-200 |
√12 |
主叶轮垫 |
F26B |
√24 |
O形密封圈 |
F26B |
|
5.3 立体结构示意图


工作原理 该密封主要由叶轮幅板上排液孔与停车密封(K形密封圈)组成。工作时叶轮旋转产生的离心力使密封部位的介质通过叶轮幅板上排液孔排出,从而使密封腔处于负压状态,阻止液体向外泄漏,此时,停车密封不起作用。K形密封圈的唇口因负压而松开,与轴套产生一定间隙,减小了其之间的磨损,延长了使用寿命;停机时,由于叶轮停止旋转,密封腔由负压转为正压,停车密封开始工作,K形密封圈的唇口在压力作用下紧紧包住轴套,从而达到密封目的。若允许冷却水渗入介质内,可选用带冷却水K型动力密封,即可添加外冷却水装置,延长密封圈的使用寿命。该密封的密封圈采用氟橡胶制成,主要适用于输送含固体颗粒的料浆、含杂质的污水等腐蚀性介质(带冷却水K型动力密封用的冷却水为洁净的自来水,压力适宜在0.05MPa以内)。
6.3 G3、G4型机械密封结构简图及简介

G3密封为本公司自行设计的一种改良型抗颗粒泵用机械密封;密封的动、静环均由碳化硅或硬质合金制成,可用于输送含大量颗粒的腐蚀性液体。该密封和同类内装式机械密封相比,静环与密封盒之间设置了挡砂圈,硬颗粒不能进入静环与密封盒之间的间隙中,使静环前后位移自如,克服了原有耐颗粒密封的“卡砂”失效的缺点。G4密封是对G3密封防砂K形圈部位的进一步改进,性能更加稳定可靠。G3、G4密封均为本公司开发的品种技术。
6.4 G5防腐型集装式机械密封结构简图及简介


该密封是对常用的集装式机封的改良品种,改良的目的在于:提供一种能适用于各类腐蚀性清液及料浆输送的集装式泵轴机械密封,方便客户的采购、运输、贮存,安装等。
6.4 G5防腐型集装式机械密封结构简图及简介


该密封是对常用的集装式机封的改良品种,改良的目的在于:提供一种能适用于各类腐蚀性清液及料浆输送的集装式泵轴机械密封,方便客户的采购、运输、贮存,安装等。
改良的方法:一是把密封与介质接触部位的材料全部改为腐蚀性能极好的非金属材料,使密封既有良好的防腐性能,又有极好的经济性,能使用户在花较少的成本的同时,又能使用到性能好的防腐型集装式密封;二是在冷却水密封圈前端设置了渗漏液收集腔和渗漏液排除通道。防止冷却水密封的滴漏,克服了常规的集装机封滴漏的不足。
注意 上述密封目前处于试验性试用阶段,欢迎用户使用!

JZ1单端面集装式机械密封,集装外壳基材为不锈钢,适用于含固量在25%以下的泵使用。密封原理同G5,密封常用主体材料有:不锈钢940L、316L、双相不锈钢2205。
冷却水要求:1、加冲洗水冲洗洁净水或自来水水压力为0.3MPa,水量为30-120L/h,冲洗水全部进入泵腔,无冷却水出口,密封使用寿命长。注意:运行或调试正反转启动前必须先接通冷却水,否则密封将会损坏!2、含固量少于10%时也可不加冷却水使用,使用时直接堵掉冷却水入口即可。注意:若密封不设置内外冲洗水,则调试点启动及运行前泵腔内必须充满液体!
6.6 JZ2双端面集装式机械密封结构简图及简介

6.6 JZ2双端面集装式机械密封结构简图及简介


双端面集装式机械密封有着使用寿命长、运行稳定、安装维修方便等优点,适用于目前绝大部分烟气脱硫循环岗位。其独特的内冲洗系统在提供润滑、冷却作用的同时,有效地防止了固体颗粒杂质堆积在密封环上,延长了密封的使用寿命。
技术参数:压力0~0.6MPa,温度-20~90℃,含固量≤20%,主体材质可以选择双相不锈钢或316L,动静环材质为无压烧结碳化硅。适用于输送含固体颗粒物的浆液,特别是石灰浆液、泥浆液、煤渣液、矿渣液、废酸、污水等。
使用注意:禁止密封腔内无水情况运行!泵运行前,内、外冲洗水必须同时接通且为洁净水。外冲洗水自流通过即可,水压约为0.05MPa,流量约为5L/min;内冲洗水压大于0.3MPa即可,流量约为8L/min。停用时必须先关泵,再关冲洗水,内冲洗水的阀门也需关闭(防止浆液倒流)。
6.7 JS组合双密封结构简图及简介
1.结构特点:JS组合双密封是一种有动力密封、机械密封组合安装使用的泵轴密封。动力密封在叶轮侧,机械密封在电机侧,两种密封之间有存油腔,存油腔中有导热介质,机封部位有生风散热的风轮或风叶。
2.使用特点:JS组合密封有自冷却体系,自润滑体系。因此使用时不需外接冷却水。该密封能适用于输送料浆或和清液的腐蚀性和非腐蚀性介质的离心泵上,包括前吸型、侧吸型、单级或双级离心泵。
3.组合密封的科学性和工作原理 其科学性在于:把动力密封的挡砂功能,存油腔的存油功能,机封的封液功能,存油的导热功能和润滑功能,风轮的散热功能,有机地联系并组合起来,形成一个有特殊整体功能的新型密封,其新颖性在于:一是可以输送料浆;二是不用外接冷却水冲洗;三是可以适当空运转。
其工作原理为:动力密封在前挡砂,起到密封砂浆的作用,机械密封在后密封存油腔中的存油,村油起到润滑机封的动静环和轴套与唇形橡胶密封圈的作用。与此同时,又起到传递热能的作用,即密封部位的热量传导到密封外侧的散热装置上。散热装置包括散热片,风轮的功能是在泵机运转时把密封部位的热量散布出去,保证轴密封安全运行。JS组合双密封的科学性就是把各单一组件的独立功能组合联系起来,使他们互相配合,互相作用,功能互补,相互依存,形成一个整体的、有润滑功能的、有冷却功能的、有挡砂功能的、有停车开车均有防漏功能的,同时还可以适当开空机的先进的密封整体。






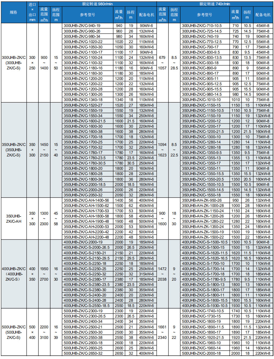
注:1. 表中轴功率为密度ρ=1时的轴功率,配备电机功率的选用应大于轴功率×ρ(介质密度);
2. 参考型号只是例举了一些常用的流量、扬程参数,实际型号根据客户需求的参数而定;


8.2 泵的出口在右侧(从进口方向看)


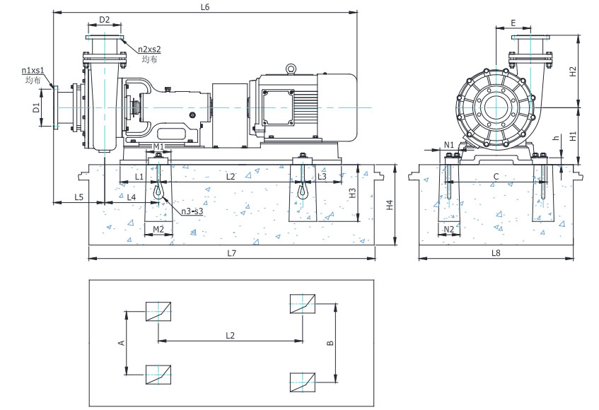
注:1. 表中基础安装尺寸(A/B/L2)保证与泵底座匹配连接;基础土建尺寸(L7/L8/H4)仅供参考,实际施工请以工程设计要求为准。
2. 表中重量为配标准电机时的整机重量。
3. 进出口法兰尺寸引用标准:GB/T 9116-2010 PN 1.0MPa。
4. 300UHB-Z以上规格泵可配普通或高压电机,电机不同安装尺寸也不同。如需相关规格泵安装尺寸,请与宙斯泵业技术部联系确认。
5. 此处备注适用于本说明书中所有的安装尺寸及重量表,不再赘述。
6. 本公司保留修正安装尺寸及重量数据的权利,恕不另行通知。
九、操作使用与维护方法


九、操作使用与维护方法
9.1 搬运与安装
(1) 泵的搬运与安装要求请参照 GB50231-1998《机械设备安装工程施工及验收通用规范》。
(2) 泵经长途运输到达工程现场,安装前应检查整机零件是否完好无损,紧固件应予紧固,检查泵轴与电机轴的同心度,如
有移位应予以校正。
(3) 搬运时应以底座为着力部分,并要水平吊装,轻起轻放,不要有大的震动和撞击。
(4) 泵要安装在宽敞明亮、便于维护的地方,基础要求平整。
(5) 进出口管路的管径不能小于泵的进出口内径。为减少管道流阻、提高输送效率,配管建议大于泵进出口一个等级。
(6) 进出口管路应清理干净,应设重力支撑系统,泵不能承受管路重量,否则容易损坏;
(7) 为方便检修与控制,泵进出口管路都应安装阀门。
(8) 泵进出口应安装补偿器,又称柔性管道接头。其主要作用是补偿输液管路因热涨冷缩或开机震动等原因引起拉伸、挤压、
扭曲的应力,从而提高设备的可拆卸性能和使用安全性能。
(9) 出口管路距离长(高)的岗位,应在靠近泵的出口处安装止回阀,以防止停车时出口高压水锤对泵产生破坏力。
(10) 建议先紧固泵进出口与管路的连接螺栓,再紧固泵的地脚螺栓,以防连接管路时对泵产生拉伸应力而损坏泵机。
(11) 泵在安装过程中应经常用手转动联轴器,检查泵内有无摩擦及碰撞的异响。
(12)由于一年四季温差大,塑料与铸铁的热膨胀系数不一,塑料的热膨胀系数较大,很难认为控制。因此,特别是夏季安
(12)由于一年四季温差大,塑料与铸铁的热膨胀系数不一,塑料的热膨胀系数较大,很难认为控制。因此,特别是夏季安
装的泵到冬季才装配使用,很容易导致进出口管的螺栓、泵体螺栓以及密封部位的螺栓松动。
(13) 泵的进口应尽量靠近液源,推荐采用倒灌工况,吸上工况需配虹吸桶使用;两种常见工况的安装方法如下图:

(14) 如下图,吸上工况要尽量减少进口管路的水力损失,不得装小于90°的弯头,90°的弯头不要超过2个;泵进口应设置滤网,防止大块杂质堵塞进口;进口管路连接螺栓要对角均匀拧紧,防止漏气;虹吸桶底部应设置底座用于承重,绝不能悬空安装;一泵配一桶,不能多台泵同时共用一只虹吸桶;如果是备用泵共用虹吸桶,泵进口前都应安装阀门。

9.2 运行前的检查
(1) 运行前应先用手盘动联轴器,检查运转是否灵活、有无异响,有异常情况应先予以排除。
(2) 检查泵的运转方向是否与标示箭头一致。检查电机转向时,切勿联接联轴器,防止电机反转损坏叶轮和泵体。
(3) 从轴承座上的油镜孔处查看润滑油(CD40#
柴机油)的位置是否在标志线附近,太多应放掉一些,太少应加上一些。
(4) 检查密封冷却水的流量与压力值(参见密封结构简图与简介部分的要求),冷却水压力太高可能会造成冷却水泄漏、影
响密封的使用寿命等问题。
(5) 对吸上工况,需要将虹吸桶灌满,并确保进口管路及虹吸桶密封不漏气;池漕中液位到泵进口的垂直距离H应不超过2m
(建议在1m以内,越短越好),否则可能无法吸上,并会影响泵的使用寿命。
9.3 启动
(1) 打开进口阀门,使液体流进泵腔。(2) 接通密封冷却水。 (3) 接通电源。
(4) 及时打开出口阀门(避免长时间逼压运行),并调节至额定的流量、扬程(严禁使用进口阀门调节)。
9.4 运行
(1) 泵运行中如有异响或其它故障时,应立即停车检查,待故障排除后才能继续运转。
(2) 要经常检查泵和电机的温升情况。轴承的温升不应大于40℃,极限温度不大于90℃;电机的最高温升为90℃,极限温度不
超过130℃。
(3) 当电机超电流时,应关小出口阀门以降低流量,防止长时间超电流运行损坏电机。
(4) 泵运行中密封冷却水不能中断;K型动力密封的陶瓷轴套,要严防升温后遇冷水,以免因温度骤降而开裂。
(5) 泵运行中要严防泵腔内缺液空运转(如池漕内液体已抽空、进口管路堵塞、低位池无法吸上等),接通冷却水的状态下空
运转不得超过3分钟,否则会烧毁泵内部件。水泵空运转后严禁立即继续使用,应待泵及密封部位冷却后再使用。
(6) 泵在关闭出口阀门时的运行称为逼压运行状态,衬塑泵的逼压运行时间应尽可能减短,常温介质以不超过5分钟为限,高温
介质最好不要超过2分钟
9.5 停泵
(1) 关闭出口阀门(防止出口管路液体倒流产生水锤冲击叶轮,使泵机反转造成叶轮松动)。
(2) 切断电源。 (3) 关闭进口阀门及密封冷却水。
9.6 维护
(1) 定期检查轴承座内润滑油的油位,定期更换润滑油(新泵首次更换周期为一个月,以后六个月更换一次)。
(2) 保持泵机外部及环境的清洁,用水冲洗时,应防止电机受潮,冲洗后用布擦净泵机上的水迹。
(3) 对含固量高或容易结晶的工况,停泵前应用清水冲洗管路及泵腔,防止沉淀物或结晶造成堵塞。
(4) 低温环境下液体可能会冰冻,停车后应将泵腔内的液体放空,以防冻裂。若有结冰现象,必要时可加热水进去解冻,直
到用手盘动联轴器能灵活转动后再启动泵。
(5) 长期停用的泵,除将泵内的腐蚀性液体放空外,还要用清水将泵体(尤其是密封部件)冲洗干净妥善保管。
(6) 使用虹吸桶的工况,要定期检查虹吸桶中的存液情况,如有不足应补满。









