联系

UHB(L)系列是一种直联式耐腐蚀离心泵,其过流部件采用改性超高分子聚乙烯材料衬塑成型,钢衬结构既保持产品结构强度又具有好的耐温耐腐性,同时其简单化的结构配合使用JS型无冷却水负压密封使UHB(L)系列泵成为了一种经济且性能可靠的耐腐耐磨离心泵。
UHB(L)型防腐耐磨离心泵与原型号UHB-ZK耐腐耐磨离心泵的区别在于:省去了轴承托架和轴承部分,使得离心泵的总长度缩短,安装尺寸也随之缩小改变;该型泵的防腐性、耐磨性与原有UHB-ZK耐腐耐磨泵相近。
其突出的比较性优势在于:
①独特的密封优势:配置使用了专利新型密封——JS型负压密封,外设风冷体系,泵运行时,泵机的独特的内部结构能将轴密封部抽吸成真空负压状态,在风冷体系的作用下,使轴密封不用加注冷却水也可安全运行,而且该密封不仅可以适用于酸碱类介质,还可以适用清液和料浆的输送。
②其次UHB(L)型泵机的叶轮采用无背叶片结构,使得泵机的轴功率消耗降低5%左右,因此有好的节能功效,能比UHB-ZK系列的泵节省能耗8%左右;
③再次该系列泵由于采用无背叶叶轮,有效减少了泵体中的输送浆体的涡流形成,使泵体、泵盖因涡流引起的挖凿性磨损减少,有明显提升泵壳等部件耐磨性能的优点。上述三个优点有效提升了防腐耐磨离心泵的安全使用性能。
④有好的经济性:在保证了具有普通钢衬塑泵优异性能的同时用过工艺、结构的优化进一步降低了生产成本,其价位合理之优势深受市场的肯定。
⑤泵机体积小,安装占地面积和空间小,维修简单、方便。
① 参数范围:进口直径φ32-100mm , 流量范围3-120m/h ,扬程50m以内,可根据性能参数表选定。
② 密封形式:主配JS密封,还可以根据用户的要求配置K型动力密封、集装式机械密封、WB2密封等。
③ 使用范围:输送温度90℃以内的腐蚀性和非腐蚀性清液或含固量低于10%的料浆。
① 化工、冶炼、环保等行业的:各种硫酸、盐酸、碱性的清液或料浆岗位。
② 水处理业:纯水、高纯水、污水(电镀污水、造纸污水、纺织污水、食品污水、生活污水、制药业污水等)。
③ 锂电、新能源、化纤、纺织印染等其他各行业的各种腐蚀性和非腐蚀性的介质输送。

| 序号 | 零部件名称 | 材质 | 序号 | 零部件名称 | 材质 |
| 1 | 进口法兰组合 | A3 | √ 13 | K形密封圈 | F4/F26B |
| √ 2 | 泵盖 | UHMWPE | √ 14 | 密封盒 | 玻璃钢 |
| √ 3 | 泵盖压紧圈 | A3 | √ 15 | 轴套垫 | FPM |
| √ 4 | 锁紧螺母 | UHMWPE/A3 | 16 | 静环压盖 | A3 |
| √ 5 | 防转螺母 | A3 | 17 | 静环 | |
| √ 6 | 锁紧螺母L垫 | F26B | 18 | 动环 | |
| √ 7 | 叶轮 | UHMWPE/A3 | √ 19 | 后轴套 | 316L |
| √ 8 | 泵壳 | UHMWPE/QT | 20 | 风轮 | 304 |
| √ 9 | 叶轮垫 | F26B | 21 | 主轴 | 40Cr钢 |
| √ 10 | 前轴套 | 氮化硅陶瓷 | 22 | 支架 | HT-200 |
| √ 11 | 密封盒垫 | F26B | 23 | 底座 | |
| 12 | 密封盒垫块 | PP | 24 | 电动机 |
注:序号前带有“√”标志的为易损件,供用户采购备件参考
6.1 JS型风冷密封结构简图及介绍
JS型风冷密封各部件的功能介绍:
1、固液分离腔(5)功能为三:一是存液,使密封部位有足够的存液,不会产生干磨;二是固液分离腔里旋转的液体把浓浆中的固体分离排出,留下相对清液冷却、润滑橡胶密封圈;三是封闭局部液体,有利于产生密封部位的负压场。
2、外置式排液通道(4)设置在叶轮的幅板上,叶轮转动时,产生离心力,进而抽吸固液分离腔中的渣浆,把含固量高的渣浆抽排出固液分离腔(5),同时使固液分离腔中的液体处于负压状态,进而保护唇形橡胶圈的使用安全。
3、进液孔(3)设在叶轮幅板上,呈轴向设置,其功能主要是把泵吸入口的浆体引入固液分离腔,为固液分离腔补液。
4、第一个K型橡胶密封圈(6)功能为挡砂,不让固液分离腔中的砂粒进入带动静环的机封部(9)。
5、第二个K型橡胶密封圈(7)为反装式结构,功能为密封存油腔(8)中的油脂,不让存液腔中的油脂流失。
6、存油腔(8)设置于机封(9)与K形密封圈之间,功能有二:一是存油,润滑机封的动静环;二是导热,把轴套上的热能传递给机封的动环(10)部,进而散发出去。
7、带动静环的机封(9)+(10)设在K形密封圈的后侧,功能为密封空气,使泵机外部的空气不进入泵腔中。
8、风轮(11)设在主轴上,随主轴转动,功能为生风,吹散密封部位各部件的热量。

JS型风冷密封整体工作原理介绍:
泵起动后,叶轮(1)旋转带动固液分离腔中的液体旋转,流体旋转产生离心力,把固液分离腔(5)中的固液分离,固体靠近外侧的抽吸孔(4)部,相对的清液靠近内侧的橡胶密封圈部,补液孔(3)为固液分离腔补液,保证固液分离腔液体充盈。设置于叶轮幅板上的径向抽吸孔(4)在叶轮转动时,产生的吸力把固液分离腔中的碴浆排出,并使固液分离腔中形成负压流体区,进而使得K形密封圈不带压运行,保证了密封圈的使用安全性。K形密封圈(1)挡住了泵腔中的浆体,使浆体不能进入机封(9)部(因为浆体呈负压状态)。第二只密封圈(2)封住存油腔中的油脂(8),不进入泵腔中。机封(10)则起到密封空气,使外部空气不进入泵机内部。风轮(11)产生的风,冷却机封的各部件。
在JS型风冷密封的组件与各自的功能组合中,各组件有各自的功能,各种功能又相互关联、相互作用、相互依存,形成了一个动态的密封生态整体。使这种组合机封,不外接冷却水也能正常地密封泵机,功能与优势有别于其它密封。体现了这种机封的特质,也形成了JS型风冷密封的差异化优势,达到了技术创新的目的,我们希也望这个创新能回报更多的客户。
★ 该系列泵禁止在泵腔内无液的状态下长时间运转,否则会损毁泵内部件。
★ 出液阀门全关闭的情况下,开闷泵不得超过五分钟,否则泵内液体升温会造成泵机损坏。
6.2 K型动力密封结构简图及简介
| 6.2.1不带冷却水K型动力密封局部图 | 6.2.2带冷却水K型动力密封局部图 |
|
|
|
|
工作原理:
该密封主要由副叶轮(或副叶片)与停车密封(K形密封圈)组成。工作时由于副叶轮(或副叶片)旋转产生的离心力使密封腔处于负压状态,从而阻止液体向外泄漏,此时,停车密封不起作用。K形密封圈的唇口因负压而松开,与轴套产生一定间隙,减小其之间的磨损,延长了使用寿命;停机时,由于副叶轮 (或副叶片)停止旋转,密封腔由负压转为正压,停车密封开始工作,K形密封圈的唇口在压力作用下紧紧包住轴套,从而达到密封目的。若允许冷却水渗入介质内,可选用带冷却水K型动力密封,即可添加外冷却水装置,延长密封圈的使用寿命。该密封的密封圈采用氟橡胶制成,主要适用于输送含固体颗粒的料浆、含杂质的污水等腐蚀性介质
(带冷却水K型动力密封用的冷却水为洁净的自来水,压力适宜在0.05MPa以内)。
6.3 XJ1(2)型机械密封结构简图及简介

XJ系列集装式机械密封的特点是通过至少一组动、静环密封端面,通过补偿机构弹簧的弹力配合,使密封面贴合组成相对的滑动摩擦副,从而达到防止泄漏的效果。从密封结构分类有:单端面(XJ1)、双端面(XJ2)两种密封形式;密封材料上分类可以根据工况的不同,配置不同的过流材质主要过流部件材料有:动、静环SSic、Sic;轴套等过流部件钢衬F46、O型圈、垫床氟橡胶;其他配套件材料可分别选用非金属陶瓷、PPS等或2205、2507、904、钛材等金属材料。
XJ1单端面集装式机械密封适用于含固量在20%以下的泵使用。注意:调试点启动及运行前泵腔内必须充满液体!
XJ2双端面集装式机械密封有着使用寿命长、运行稳定、安装维修方便等优点,其外冲洗系统提供润滑、冷却的作用,延长了密封的使用寿命。技术参数:冷却水压力≤0.03MPa,温度-20~90℃,含固量≤20%。注意:禁止密封腔内无水情况运行!泵运行前,外冲洗水必须同时接通且为洁净水。外冲洗水自流通过即可,水压约为0.05MPa,流量约为5L/h。
6.4 JZ1单端面集装式机械密封结构简图及简介
JZ1单端面集装式机械密封,集装外壳基材为不锈钢,适用于含固量在25%以下的泵使用。密封原理同G5,密封常用主体材料有:不锈钢904L、316L、双相不锈钢2205、钛合金等材料。
冷却水要求:1、加冲洗水冲洗洁净水或自来水水压力为0.3MPa,水量为30-120L/h,冲洗水全部进入泵腔,无冷却水出口,密封使用寿命长。注意:运行或调试正反转启动前必须先接通冷却水,否则密封将会损坏!2、含固量少于10%时也可不加冷却水使用,使用时直接堵掉冷却水入口即可。注意:若密封不设置内冲洗水,则调试点启动及运行前泵腔内必须充满液体!
6.5 JZ2双端面集装式机械密封结构简图及简介
双端面集装式机械密封有着使用寿命长、运行稳定、安装维修方便等优点,适用于目前绝大部分烟气脱硫循环岗位。其独特的内冲洗系统在提供润滑、冷却作用的同时,有效地防止了固体颗粒杂质堆积在密封环上,延长了密封的使用寿命。
技术参数: 压力0~0.6MPa,温度-20~90℃,含固量≤20%,主体材质可以选择双相不锈钢或316L,动静环材质为无压烧结碳化硅。
UHB-Z脱硫专用泵、脱硫循环泵,稀酸泵,适用于输送含固体颗粒物的浆液,特别是石灰浆液、泥浆液、煤渣液、矿渣液、废酸、污水等。 使用注意: 禁止密封腔内无水情况运行! 泵运行前,内、外冲洗水必须同时接通且为洁净水。外冲洗水自流通过即可,水压约为0.05MPa,流量约为5L/min;内冲洗水压大于0.3MPa即可,流量约为8L/min。停用时必须先关泵,再关冲洗水,内冲洗水的阀门也需关闭(防止浆液倒流)。
| 1、叶轮 | 2、后泵盖 | 3、密封挡环 | 4、机封垫块垫 | 5、机封垫块 |
| 6、机封垫 | 7、机封压盖 | 8、内冲洗水嘴 | 9、外冲洗水嘴 | 10、机封组合 |
| 11、定位板 | 12、固定环 | 13、主轴 | 14、叶轮垫圈 |
| 规格 | 进口× | 额定转速 2900r/min | 额定转速 1450r/min | ||||||||||
|---|---|---|---|---|---|---|---|---|---|---|---|---|---|
| 流量 范围 m3/h | 扬程 范围 m | 参考型号 | 流量 m3/h | 范围 | 配备 电机 | 流量 范围 m3/h | 扬程 范围 m | 参考型号 | 流量 m3/h | 扬程 m | 配备电机 | ||
| 32UHB(L) | 32 × 25 | 3 ~ 12 | 10 ~ 25 | 32UHB(L)-3-13 | 3 | 13 | 1.1kW -2 | 1.5 ~ 8 | 2.5 ~ 6 | 32UHB(L)-1.5-3 | 1.5 | 3 | 0.75kW-4 |
| 32UHB(L)-3-18 | 3 | 18 | 1.1kW-2 | 32UHB(L)-1.5-4.5 | 1.5 | 4.5 | 0.75kW-4 | ||||||
| 32UHB(L)-5-12 | 5 | 12 | 1.1kW-2 | 32UHB(L)-2.5-3 | 2.5 | 3 | 0.75kW-4 | ||||||
| 32UHB(L)-5-15 | 5 | 15 | 1.1kW-2 | 32UHB(L)-2.5-4 | 2.5 | 4 | 0.75kW-4 | ||||||
| 32UHB(L)-5-20 | 5 | 20 | 1.5kW-2 | 32UHB(L)-2.5-5 | 2.5 | 5 | 0.75kW-4 | ||||||
| 32UHB(L)-5-25 | 5 | 25 | 2.2kW-2 | 32UHB(L)-2.5-6 | 2.5 | 6 | 0.75kW-4 | ||||||
| 32UHB(L)-7-10 | 7 | 10 | 1.1kW-2 | 32UHB(L)-3.5-2.5 | 3.5 | 2.5 | 0.75kW-4 | ||||||
| 32UHB(L)-8-12 | 8 | 12 | 1.1kW-2 | 32UHB(L)-4-3 | 4 | 3 | 0.75kW-4 | ||||||
| 32UHB(L)-8-18 | 8 | 18 | 1.5kW-2 | 32UHB(L)-4-4.5 | 4 | 4.5 | 0.75kW-4 | ||||||
| 32UHB(L)-8-23 | 8 | 23 | 2.2kW-2 | 32UHB(L)-4-5.5 | 4 | 5.5 | 0.75kW-4 | ||||||
| 32UHB(L)-10-15 | 10 | 15 | 1.5kW-2 | 32UHB(L)-5-3.5 | 5 | 3.5 | 0.75kW-4 | ||||||
| 32UHB(L)-10-20 | 10 | 20 | 2.2kW-2 | 32UHB(L)-5-5 | 5 | 5 | 0.75kW-4 | ||||||
| 32UHB(L)-12-16 | 12 | 16 | 2.2kW-2 | 32UHB(L)-6-4 | 6 | 4 | 0.75kW-4 | ||||||
| 40UHB(L) | 40 × 32 | 5 ~ 20 | 10 ~ 34 | 40UHB(L)-10-18 | 10 | 18 | 2.2kW-2 | 2.5 ~ 10 | 2.5 ~ 8.5 | 40UHB(L)-5-4.5 | 5 | 4.5 | 0.75kW-4 |
| 40UHB(L)-10-25 | 10 | 25 | 3kW-2 | 40UHB(L)-5-6 | 5 | 6 | 0.75kW-4 | ||||||
| 40UHB(L)-10-30 | 10 | 30 | 3kW-2 | 40UHB(L)-5-7.5 | 5 | 7.5 | 0.75kW-4 | ||||||
| 40UHB(L)-15-15 | 15 | 15 | 2.2kW-2 | 40UHB(L)-7.5-3.5 | 7.5 | 3.5 | 0.75kW-4 | ||||||
| 40UHB(L)-15-20 | 15 | 20 | 3kW-2 | 40UHB(L)-7.5-5 | 7.5 | 5 | 0.75kW-4 | ||||||
| 40UHB(L)-15-25 | 15 | 25 | 4kW-2 | 40UHB(L)-7.5-6 | 7.5 | 6 | 0.75kW-4 | ||||||
| 40UHB(L)-18-20 | 18 | 20 | 3kW-2 | 40UHB(L)-9-5 | 9 | 5 | 0.75kW-4 | ||||||
| 40UHB-(L)-20-10 | 20 | 10 | 3kW-2 | 40UHB(L)-10-2.5 | 10 | 2.5 | 0.75kW-4 | ||||||
| 50UHB(L) | 50 × 40 | 5 ~ 30 | 10 ~ 43 | 50UHB(L)-10-35 | 10 | 35 | 4kW-2 | 2.5 ~ 15 | 2.5 ~ 10.5 | 50UHB(L)-5-8.5 | 5 | 8.5 | 0.75kW-4 |
| 50UHB(L)-12-40 | 12 | 40 | 5.5kW-2 | 50UHB(L)-6-10 | 6 | 10 | 0.75kW-4 | ||||||
| 50UHB(L)-15-24 | 15 | 24 | 4kW-2 | 50UHB(L)-7.5-6 | 7.5 | 6 | 0.75kW-4 | ||||||
| 50UHB(L)-15-32 | 15 | 32 | 5.5kW-2 | 50UHB(L)-7.5-8 | 7.5 | 8 | 1.1kW-4 | ||||||
| 50UHB(L)-15-43 | 15 | 43 | 7.5kW-2 | 50UHB(L)-7.5-10.5 | 7.5 | 10.5 | 1.1kW-4 | ||||||
| 50UHB(L)-20-15 | 20 | 15 | 3kW-2 | 50UHB(L)-10-3.5 | 10 | 3.5 | 1.1kW-4 | ||||||
| 50UHB(L)-20-20 | 20 | 20 | 4kW-2 | 50UHB(L)-10-5 | 10 | 5 | 1.1kW-4 | ||||||
| 50UHB(L)-20-30 | 20 | 30 | 5.5kW-2 | 50UHB(L)-10-7.5 | 10 | 7.5 | 1.1kW-4 | ||||||
| 50UHB(L)-25-15 | 25 | 15 | 4kW-2 | 50UHB(L)-12.5-3.5 | 12.5 | 3.5 | 1.1kW-4 | ||||||
| 50UHB(L)-25-28 | 25 | 28 | 5.5kW-2 | 50UHB(L)-12.5-7 | 12.5 | 7 | 1.1kW-4 | ||||||
| 50UHB(L)-30-15 | 30 | 15 | 5.5kW-2 | 50UHB(L)-15-3.5 | 15 | 3.5 | 1.1kW-4 | ||||||
| 65UHB(L) | 65 × 50 | 20 ~ 40 | 15 ~ 36 | 65UHB(L)-25-35 | 25 | 35 | 7.5kW-2 | 10 ~ 20 | 3.5 ~ 9 | 65UHB(L)-12.5-8.5 | 12.5 | 8.5 | 1.5kW-4 |
| 65UHB(L)-30-20 | 30 | 20 | 5.5kW-2 | 65UHB(L)-15-5 | 15 | 5 | 1.1kW-4 | ||||||
| 65UHB(L)-30-25 | 30 | 25 | 7.5kW-2 | 65UHB(L)-15-6 | 15 | 6 | 1.1kW-4 | ||||||
| 65UHB(L)-30-32 | 30 | 32 | 7.5kW-2 | 65UHB(L)-15-8 | 15 | 8 | 1.5kW-4 | ||||||
| 65UHB(L)-35-20 | 35 | 20 | 5.5kW-2 | 65UHB(L)-17.5-5 | 17.5 | 5 | 1.1kW-4 | ||||||
| 65UHB(L)-35-25 | 35 | 25 | 7.5kW-2 | 65UHB(L)-17.5-6 | 17.5 | 6 | 1.5kW-4 | ||||||
| 65UHB(L)-40-15 | 40 | 15 | 5.5kW-2 | 65UHB(L)-20-3.5 | 20 | 3.5 | 1.1kW-4 | ||||||
| 65UHB(L)-40-20 | 40 | 20 | 7.5kW-2 | 65UHB(L)-20-5 | 20 | 5 | 1.5kW-4 | ||||||
| 65UHB(L)-H | 65 × 50 | 5 ~ 36 | 35 ~ 58 | 65UHB(L)-H-10-40 | 10 | 40 | 5.5kW-2 | 2.5 ~ 18 | 8.5 ~ 14.5 | 65UHB(L)-H-5-10 | 5 | 10 | 1.1kW-4 |
| 65UHB(L)-H-10-50 | 10 | 50 | 7.5kW-2 | 65UHB(L)-H-5-12.5 | 5 | 12.5 | 1.1kW-4 | ||||||
| 65UHB(L)-H-15-45 | 15 | 45 | 7.5kW-2 | 65UHB(L)-H-7.5-11 | 7.5 | 11 | 1.1kW-4 | ||||||
| 65UHB(L)-H-20-50 | 20 | 50 | 11kW-2 | 65UHB(L)-H-10-12.5 | 10 | 12.5 | 1.5kW-4 | ||||||
| 65UHB(L)-H-25-45 | 25 | 45 | 11kW-2 | 65UHB(L)-H-12.5-11 | 12.5 | 11 | 2.2kW-4 | ||||||
| 65UHB(L)-H-30-40 | 30 | 40 | 11kW-2 | 65UHB(L)-H-15-10 | 15 | 10 | 2.2kW-4 | ||||||
| 65UHB(L)-H-30-50 | 30 | 50 | 15kW-2 | 65UHB(L)-H-15-12.5 | 15 | 12.5 | 2.2kW-4 | ||||||
| 65UHB(L)-H-35-45 | 35 | 45 | 15kW-2 | 65UHB(L)-H-17.5-11 | 17.5 | 11 | 2.2kW-4 | ||||||
| 80UHB(L) | 80 × 65 | 20 ~ 60 | 10 ~ 60 | 80UHB(L)-35-20 | 35 | 20 | 7.5kW-2 | 10 ~ 30 | 2.5 ~ 15 | 80UHB(L)-17.5-5 | 17.5 | 5 | 1.1kW-4 |
| 80UHB(L)-35-30 | 35 | 30 | 11kW-2 | 80UHB(L)-17.5-7.5 | 17.5 | 7.5 | 1.5kW-4 | ||||||
| 80UHB(L)-35-40 | 35 | 40 | 11kW-2 | 80UHB(L)-17.5-10 | 17.5 | 10 | 2.2kW-4 | ||||||
| 80UHB(L)-35-50 | 35 | 50 | 15kW-2 | 80UHB(L)-17.5-12.5 | 17.5 | 12.5 | 2.2kW-4 | ||||||
| 80UHB(L)-40-20 | 40 | 20 | 7.5kW-2 | 80UHB(L)-20-5 | 20 | 5 | 1.5kW-4 | ||||||
| 80UHB(L)-40-30 | 40 | 30 | 11kW-2 | 80UHB(L)-20-7.5 | 20 | 7.5 | 1.5kW-4 | ||||||
| 80UHB(L)-40-40 | 40 | 40 | 15kW-2 | 80UHB(L)-20-10 | 20 | 10 | 2.2kW-4 | ||||||
| 80UHB(L)-40-50 | 40 | 50 | 15kW-2 | 80UHB(L)-20-12.5 | 20 | 12.5 | 3kW-4 | ||||||
| 80UHB(L)-45-18 | 45 | 18 | 7.5kW-2 | 80UHB(L)-22.5-4.5 | 22.5 | 4.5 | 1.1kW-4 | ||||||
| 规格 | 进口× | 额定转速 2900r/min | 额定转速 1450r/min | ||||||||||
|---|---|---|---|---|---|---|---|---|---|---|---|---|---|
| 流量 范围 m3/h | 扬程 范围 m | 参考型号 | 流量 m3/h | 范围 | 配备 电机 | 流量 范围 m3/h | 扬程 范围 m | 参考型号 | 流量 m3/h | 扬程 m | 配备电机 | ||
| 80UHB(L) | 80 × 65 | 20 ~ 60 | 10 ~ 60 | 80UHB(L)-45-25 | 45 | 25 | 11kW-2 | 10 ~ 30 | 2.5 ~ 15 | 80UHB(L)-22.5-6 | 22.5 | 6 | 1.5kW-4 |
| 80UHB(L)-45-35 | 45 | 35 | 11kW-2 | 80UHB(L)-22.5-8.5 | 22.5 | 8.5 | 2.2kW-4 | ||||||
| 80UHB(L)-45-50 | 45 | 50 | 15kW-2 | 80UHB(L)-22.5-12.5 | 22.5 | 12.5 | 3kW-4 | ||||||
| 80UHB(L)-45-60 | 45 | 60 | 22kW-2 | 80UHB(L)-22.5-15 | 22.5 | 15 | 3kW-4 | ||||||
| 80UHB(L)-50-15 | 50 | 15 | 7.5kW-2 | 80UHB(L)-25-3.5 | 25 | 3.5 | 1.1kW-4 | ||||||
| 80UHB(L)-50-30 | 50 | 30 | 11kW-2 | 80UHB(L)-25-7.5 | 25 | 7.5 | 2.2kW-4 | ||||||
| 80UHB(L)-50-40 | 50 | 40 | 15kW-2 | 80UHB(L)-25-10 | 25 | 10 | 3kW-4 | ||||||
| 80UHB(L)-50-45 | 50 | 45 | 18.5kW-2 | 80UHB(L)-25-11 | 25 | 11 | 3kW-4 | ||||||
| 80UHB(L)-55-40 | 55 | 40 | 18.5kW-2 | 80UHB(L)-27.5-10 | 27.5 | 10 | 3kW-4 | ||||||
| 80UHB(L)-60-30 | 60 | 30 | 15kW-2 | 80UHB(L)-30-7.5 | 30 | 7.5 | 2.2kW-4 | ||||||
| 100UHB(L) | 100 × 80 | 50 ~ 145 | 10 ~ 60 | 100UHB(L)-50-50 | 50 | 50 | 18.5kW-2 | 25 ~ 72.5 | 2.5 ~ 15 | 100UHB(L)-25-12.5 | 25 | 12.5 | 3kW-4 |
| 100UHB(L)-50-58 | 50 | 58 | 22kW-2 | 100UHB(L)-25-14.5 | 25 | 14.5 | 3kW-4 | ||||||
| 100UHB(L)-60-30 | 60 | 30 | 15kW-2 | 100UHB(L)-30-7.5 | 30 | 7.5 | 2.2kW-4 | ||||||
| 100UHB(L)-60-40 | 60 | 40 | 18.5kW-2 | 100UHB(L)-30-10 | 30 | 10 | 3kW-4 | ||||||
| 100UHB(L)-60-50 | 60 | 50 | 22kW-2 | 100UHB(L)-30-12.5 | 30 | 12.5 | 4kW-4 | ||||||
| 100UHB(L)-70-30 | 70 | 30 | 18.5kW-2 | 100UHB(L)-35-7.5 | 35 | 7.5 | 3kW-4 | ||||||
| 100UHB(L)-70-40 | 70 | 40 | 22kW-2 | 100UHB(L)-35-10 | 35 | 10 | 3kW-4 | ||||||
| 100UHB(L)-70-45 | 70 | 45 | 30kW-2 | 100UHB(L)-35-11 | 35 | 11 | 4kW-4 | ||||||
| 100UHB(L)-80-15 | 80 | 15 | 11kW-2 | 100UHB(L)-40-3.5 | 40 | 3.5 | 2.2kW-4 | ||||||
| 100UHB(L)-80-25 | 80 | 25 | 15kW-2 | 100UHB(L)-40-6 | 40 | 6 | 2.2kW-4 | ||||||
| 100UHB(L)-80-30 | 80 | 30 | 18.5kW-2 | 100UHB(L)-40-7.5 | 40 | 7.5 | 3kW-4 | ||||||
| 100UHB(L)-80-40 | 80 | 40 | 22kW-2 | 100UHB(L)-40-10 | 40 | 10 | 4kW-4 | ||||||
| 100UHB(L)-100-20 | 100 | 20 | 15kW-2 | 100UHB(L)-50-5 | 50 | 5 | 2.2kW-4 | ||||||
| 100UHB(L)-100-25 | 100 | 25 | 18.5kW-2 | 100UHB(L)-50-6 | 50 | 6 | 3kW-4 | ||||||
| 100UHB(L)-100-30 | 100 | 30 | 22kW-2 | 100UHB(L)-50-7.5 | 50 | 7.5 | 3kW-4 | ||||||
| 100UHB(L)-120-15 | 120 | 15 | 18.5kW-2 | 100UHB(L)-60-3.5 | 60 | 3.5 | 3kW-4 | ||||||
注:1. 表中轴功率为密度ρ=1时的轴功率,配备电机功率的选用应大于轴功率×ρ(介质密度);
3. 本公司保留修正、调整性能参数的权利,恕不另行通知。
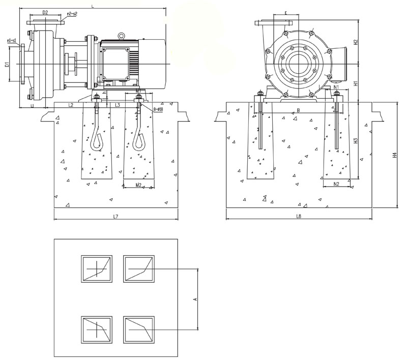
9.1 泵的出口在左侧(从进口方向看)

| 型号 | 配套电机 | A | B | E | H1 | H2 | L1 | L2 | L3 | L | h | D1 | n1×s1 | D2 | n2×s2 | n3×s3 | M1 | M2 | N1 | N2 | H3 | L7 | L8 | H4 |
|---|---|---|---|---|---|---|---|---|---|---|---|---|---|---|---|---|---|---|---|---|---|---|---|---|
| 32UHB(L) | 1.1kW-2 | 220 | 250 | 78 | 125 | 168 | 115 | 250 | 180 | 520 | 25 | 100 | 4×φ18 | 85 | 4×φ14 | 4-M12×300 | 140 | 170 | 120 | 150 | 350 | 700 | 500 | 450 |
| 1.5~2.2kW-2 | 220 | 250 | 78 | 135 | 168 | 115 | 260 | 180 | 620 | 25 | 100 | 4×φ18 | 85 | 4×φ14 | 4-M12×300 | 140 | 170 | 120 | 150 | 350 | 700 | 500 | 450 | |
| 40UHB(L) | 2.2kW-2 | 220 | 250 | 86 | 135 | 180 | 120 | 306 | 180 | 670 | 25 | 110 | 4×φ18 | 100 | 4×φ18 | 4-M12×300 | 140 | 170 | 120 | 150 | 350 | 800 | 500 | 450 |
| 3kW-2 | 220 | 250 | 86 | 145 | 180 | 120 | 306 | 220 | 675 | 25 | 110 | 4×φ18 | 100 | 4×φ18 | 4-M12×300 | 140 | 170 | 120 | 150 | 350 | 800 | 500 | 450 | |
| 50UHB(L) | 3KW-2 | 300 | 345 | 95 | 165 | 195 | 130 | 310 | 220 | 690 | 25 | 125 | 4×φ18 | 110 | 4×φ18 | 4-M12×300 | 140 | 170 | 120 | 150 | 350 | 870 | 600 | 450 |
| 4KW-2 | 300 | 345 | 95 | 165 | 195 | 130 | 310 | 220 | 695 | 25 | 125 | 4×φ18 | 110 | 4×φ18 | 4-M12×300 | 140 | 170 | 120 | 150 | 350 | 870 | 600 | 450 | |
| 5.5~7.5KW-2 | 300 | 345 | 95 | 175 | 195 | 130 | 320 | 180 | 750 | 25 | 125 | 4×φ18 | 110 | 4×φ18 | 4-M12×300 | 140 | 170 | 120 | 150 | 350 | 870 | 600 | 450 | |
| 65UHB(L) | 5.5~7.5kW-2 | 330 | 380 | 105 | 175 | 190 | 125 | 330 | 180 | 755 | 25 | 145 | 4×φ18 | 125 | 4×φ18 | 4-M12×300 | 140 | 170 | 120 | 150 | 350 | 870 | 600 | 450 |
| 65UHB(L)-H | 5.5~7.5KW-2 | 375 | 425 | 123 | 175 | 205 | 140 | 330 | 180 | 770 | 25 | 160 | 4×φ18 | 145 | 4×φ18 | 4-M12×300 | 140 | 170 | 120 | 150 | 350 | 870 | 600 | 450 |
| 11~15KW-2 | 375 | 425 | 123 | 210 | 205 | 140 | 350 | 365 | 940 | 25 | 160 | 4×φ18 | 145 | 4×φ18 | 4-M12×300 | 140 | 170 | 120 | 150 | 400 | 1050 | 650 | 550 | |
| 80UHB(L) | 7.5kW-2 | 375 | 425 | 125 | 175 | 220 | 135 | 330 | 180 | 770 | 25 | 160 | 4×φ18 | 145 | 4×φ18 | 4-M12×300 | 140 | 170 | 120 | 150 | 350 | 870 | 600 | 450 |
| 11kW-2 | 375 | 425 | 125 | 210 | 220 | 135 | 350 | 365 | 945 | 25 | 160 | 4×φ18 | 145 | 4×φ18 | 4-M16×300 | 140 | 170 | 120 | 150 | 400 | 1050 | 650 | 550 | |
| 100UHB(L) | 11~15KW-2 | 375 | 425 | 130 | 210 | 230 | 135 | 355 | 365 | 950 | 40 | 180 | 8×φ18 | 160 | 4×φ18 | 4-M16×300 | 140 | 170 | 120 | 150 | 400 | 1300 | 850 | 550 |
| 18.5KW-2 | 375 | 425 | 130 | 210 | 230 | 135 | 375 | 365 | 990 | 40 | 180 | 8×φ18 | 160 | 4×φ18 | 4-M16×300 | 140 | 170 | 120 | 150 | 400 | 1300 | 850 | 550 | |
| 22kW-2 | 375 | 425 | 130 | 230 | 230 | 135 | 375 | 380 | 1060 | 40 | 180 | 8×φ18 | 160 | 4×φ18 | 4-M16×300 | 140 | 170 | 120 | 150 | 400 | 1300 | 850 | 550 |












